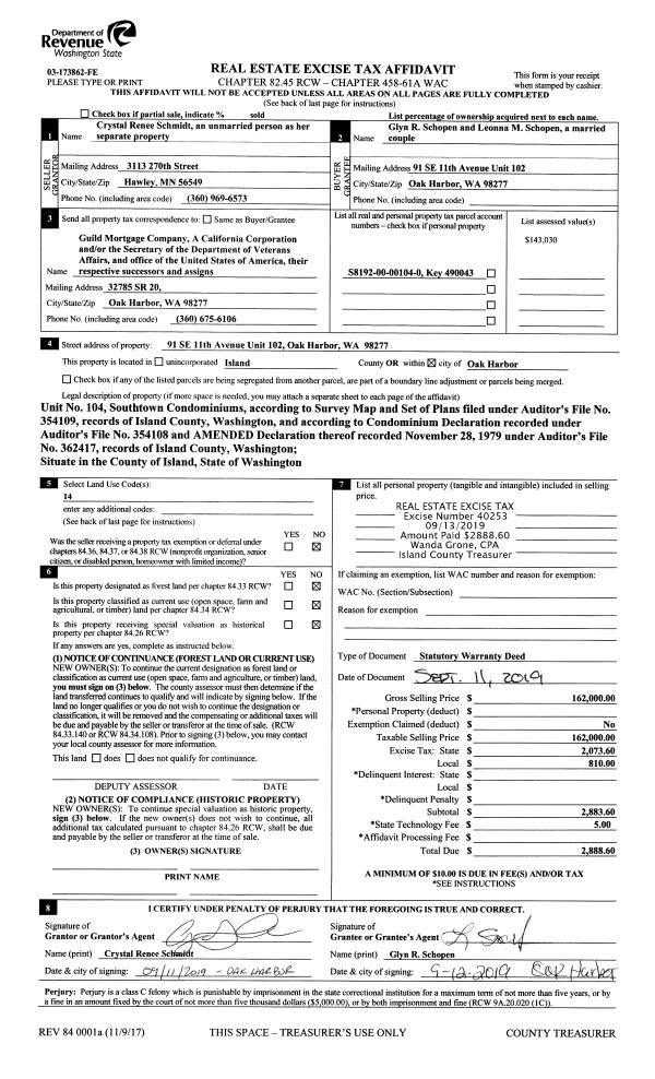
Property
Account |
| Property ID: | 423857 | Abbreviated Legal Description: | UTSA PT TR LOT 26 |
| Geographic ID: | S8355-00-00026-0 | Agent Code: | |
| Type: | Real | | |
| Tax Area: | 510 - APPRAISER-Stan/Cam Schl Dist, improved & 1 acre or less | Land Use Code | 11 |
| Open Space: | N | DFL | N |
| Historic Property: | N | Remodel Property: | N |
| Multi-Family Redevelopment: | N | | |
| Township: | | Section: | |
| Range: | |
Location |
| Address: | 308 SHORE DR CAMANO ISLAND, WA 98282 | Mapsco: | |
| Neighborhood: | North Camano | Map ID: | 550 |
| Neighborhood CD: | 06-C |
Owner |
| Name: | CLARK, SHELLEY R | Owner ID: | 285708 |
| Mailing Address: | 8015 SE 58TH ST MERCER ISLAND, WA 98040 | % Ownership: | 100.0000000000% |
| | | Exemptions: | |
Taxes and Assessment Details
Values
| (+) Improvement Homesite Value: | + | $0 | |
| (+) Improvement Non-Homesite Value: | + | $415,497 | |
| (+) Land Homesite Value: | + | $0 | |
| (+) Land Non-Homesite Value: | + | $1,425,600 | |
| (+) Curr Use (HS): | + | $0 | $0 |
| (+) Curr Use (NHS): | + | $0 | $0 |
| | | -------------------------- | |
| (=) Market Value: | = | $1,841,097 | |
| (–) Productivity Loss: | – | $0 | |
| | | -------------------------- | |
| (=) Subtotal: | = | $1,841,097 | |
| (+) Senior Appraised Value: | + | $0 | |
| (+) Non-Senior Appraised Value: | + | $1,841,097 | |
| | | -------------------------- | |
| (=) Total Appraised Value: | = | $1,841,097 | |
| (–) Senior Exemption Loss: | – | $0 | |
| (–) Exemption Loss: | – | $0 | |
| | | -------------------------- | |
| (=) Taxable Value: | = | $1,841,097 | |
Taxing Jurisdiction
| Owner: | CLARK, SHELLEY R | | |
| % Ownership: | 100.0000000000% | | |
| Total Value: | $1,841,097 | | |
| Tax Area: | 510 - APPRAISER-Stan/Cam Schl Dist, improved & 1 acre or less |
| CF | Conservation Futures | 0.0316035091 | $1,841,097 | $1,841,097 | $58.19 | | |
| EMS1 | Fire & Rescue Dist #1 Camano GEN (EMS) | 0.3677864386 | $1,841,097 | $1,841,097 | $677.13 | | |
| FIRE1 | Fire & Rescue Dist #1 Camano GEN | 1.2502910536 | $1,841,097 | $1,841,097 | $2,301.91 | | |
| FIRE1BOND | Fire & Rescue Dist #1 Camano BOND | 0.1570001679 | $1,841,097 | $1,841,097 | $289.05 | | |
| CE | County Current Expense | 0.3708482477 | $1,841,097 | $1,841,097 | $682.77 | | |
| CR | County Roads | 0.4584763726 | $1,841,097 | $1,841,097 | $844.10 | | |
| LCIB | Library Sno-Isle BOND (Camano Island) | 0.0396325772 | $1,841,097 | $1,841,097 | $72.97 | | |
| LIB | Library Sno-Isle GEN | 0.3153421757 | $1,841,097 | $1,841,097 | $580.58 | | |
| SCH205_401 | School 205-401 Enrichment | 1.2698420524 | $1,841,097 | $1,841,097 | $2,337.90 | | |
| SCH205BOND | School 205-401 BOND | 0.9396497583 | $1,841,097 | $1,841,097 | $1,729.99 | | |
| ST | State School | 1.3035497053 | $1,841,097 | $1,841,097 | $2,399.96 | | |
| ST2 | State School Part 2 | 0.8169543533 | $1,841,097 | $1,841,097 | $1,504.09 | | |
| | Total Tax Rate: | 7.3209764117 | | | | | |
| | | | | Taxes w/Current Exemptions: | $13,478.64 | | |
| | | | | Taxes w/o Exemptions: | $13,478.64 | | |
Improvement / Building
| Improvement #1: | RESIDENTIAL | State Code: | Y | 2010.0 sqft | Value: | $415,497 |
| Bathrooms: | 3 | Bedrooms: | 2 | | Ceiling: | DRYWALL PAINTED | Exterior Wall/Cover: | CEMENT FIBER | | Floor Covering: | CARPET/VINYL 80-20 | Floor Structure: | WOOD W/SUBFLOOR | | Foundation: | CONCRETE | Heating: | BASEBOARD ELECTRIC | | Interior Finish: | DRYWALL PAINT | Plumbing Fixture Cnt: | 14 | | Roof Slope: | 3" IN 12" | Roof Structure/Cover: | CJ ASPHALT |
|
| | Type | Description | Class CD | Sub Class CD | Year Built | Area |
| | BAS | BASE/MAIN FLOOR | 4 | 0 | 1955 | 1310.2 |
| | OP1 | OPEN PORCH SLAB | 4 | 0 | 1955 | 234.0 |
| | BIG | BUILT IN GARAGE | 4 | 0 | 1955 | 742.5 |
| | OWP | OPEN WOOD PORCH W/STEPS | 4 | 0 | 1955 | 608.0 |
| | OWR | OPEN WOOD PORCH W/STEPS/ROOF | 4 | 0 | 1955 | 126.0 |
| | UPS | UPPER STORY | 4 | 0 | 1955 | 699.8 |
Sketch
Property Image
Land
| 1 | LB | LOW BANK | 0.0517 | 2250.00 | 45.00 | 0.00 | 1.00 | $1,425,000 | $0 |
| 2 | 55 | TIDES | 0.0000 | 0.00 | 60.00 | 0.00 | 1.00 | $600 | $0 |
Roll Value History
| 2026 | N/A | N/A | N/A | N/A | N/A |
| 2025 | $415,497 | $1,425,600 | $0 | $1,841,097 | $1,841,097 |
| 2024 | $426,773 | $1,350,600 | $0 | $1,777,373 | $1,777,373 |
| 2023 | $417,558 | $1,275,600 | $0 | $1,693,158 | $1,693,158 |
| 2022 | $375,331 | $1,160,600 | $0 | $1,535,931 | $1,535,931 |
| 2021 | $328,790 | $775,600 | $0 | $1,104,390 | $1,104,390 |
| 2020 | $318,230 | $700,600 | $0 | $1,018,830 | $1,018,830 |
| 2019 | $205,527 | $700,600 | $0 | $906,127 | $906,127 |
| 2018 | $205,906 | $685,600 | $0 | $891,506 | $891,506 |
| 2017 | $206,662 | $685,600 | $0 | $892,262 | $892,262 |
| 2016 | $199,225 | $600,600 | $0 | $799,825 | $799,825 |
| 2015 | $200,672 | $450,600 | $0 | $651,272 | $651,272 |
| 2014 | $202,122 | $450,600 | $0 | $652,722 | $652,722 |
| 2013 | $126,495 | $450,600 | $0 | $577,095 | $577,095 |
| 2012 | $107,282 | $528,990 | $0 | $636,272 | $636,272 |
| 2011 | $108,882 | $556,800 | $0 | $665,682 | $665,682 |
| 2010 | $112,219 | $556,800 | $0 | $669,019 | $669,019 |
| 2009 | $117,123 | $627,252 | $0 | $744,375 | $744,375 |
| 2008 | $118,662 | $757,959 | $0 | $876,621 | $876,621 |
| 2007 | $120,201 | $630,540 | $0 | $750,741 | $750,741 |
Deed and Sales History
| 1 | 09/21/2019 | QCD | Quit Claim Deed | CUSHMAN, ANDREW H | CLARK, SHELLEY R | | | $0.00 | 40447 | 4472251 |
| 2 | 09/21/2019 | WD | Warranty Deed | PEEK, DAVID D | CLARK, SHELLEY R | | | $1,100,000.00 | 40446 | 4472250 |
| 3 | 07/23/1999 | WD | Warranty Deed | AUSTIN, WILLIAM W | PEEK, DAVID D | | | $429,000.00 | 93051 | 99017841 |
| 4 | 07/19/1999 | ESTSEPPROP | Establish Separate Property | PEEK, DAVID D | PEEK, DAVID D | | | $0.00 | 93052 | 99017843 |
| 5 | 07/01/1992 | WD | Warranty Deed | WALTERS, ETHEL S | AUSTIN, WILLIAM W | | | $310,000.00 | 22744 | 92013271 |
| 6 | 01/01/1900 | OTHER | Other - Misc. Documents | Unknown | WALTERS, ETHEL S | | | $0.00 | 0 | 0 |
Payout Agreement
| No payout information available.. |