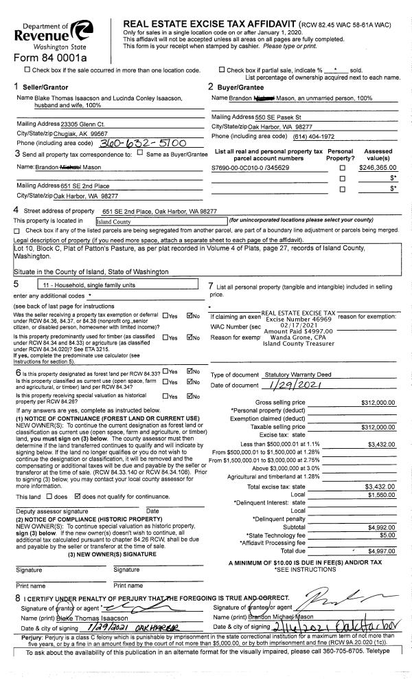
Property
Account |
| Property ID: | 423937 | Abbreviated Legal Description: | UTSA PT TR 2 LOT 9 EX PT TO IS CO AF#163838 V134 D P322 TGW PT ADJ VAC SHORE DR INCL ADJ TIDES DRAINFIELD LOC PT LOT 7&8 AF#95001566 DRAINFIELD LOC PT LOT 7 AF#95002112 AF#95016821 TGW & SUB DRIVEWAY EZ AF#95016822 |
| Geographic ID: | S8355-02-00009-0 | Agent Code: | |
| Type: | Real | | |
| Tax Area: | 510 - APPRAISER-Stan/Cam Schl Dist, improved & 1 acre or less | Land Use Code | 11 |
| Open Space: | N | DFL | N |
| Historic Property: | N | Remodel Property: | N |
| Multi-Family Redevelopment: | N | | |
| Township: | | Section: | |
| Range: | |
Location |
| Address: | 310 UTSALADY POINT RD CAMANO ISLAND, WA 98282 | Mapsco: | |
| Neighborhood: | North Camano | Map ID: | 560 |
| Neighborhood CD: | 06-C |
Owner |
| Name: | FLONES, PETER F | Owner ID: | 41049 |
| Mailing Address: | JANET R FLONES TRUSTEES 11713 51ST AVE NW GIG HARBOR, WA 98332-8201 | % Ownership: | 100.0000000000% |
| | | Exemptions: | |
Taxes and Assessment Details
Values
| (+) Improvement Homesite Value: | + | $0 | |
| (+) Improvement Non-Homesite Value: | + | $239,833 | |
| (+) Land Homesite Value: | + | $0 | |
| (+) Land Non-Homesite Value: | + | $1,050,710 | |
| (+) Curr Use (HS): | + | $0 | $0 |
| (+) Curr Use (NHS): | + | $0 | $0 |
| | | -------------------------- | |
| (=) Market Value: | = | $1,290,543 | |
| (–) Productivity Loss: | – | $0 | |
| | | -------------------------- | |
| (=) Subtotal: | = | $1,290,543 | |
| (+) Senior Appraised Value: | + | $0 | |
| (+) Non-Senior Appraised Value: | + | $1,290,543 | |
| | | -------------------------- | |
| (=) Total Appraised Value: | = | $1,290,543 | |
| (–) Senior Exemption Loss: | – | $0 | |
| (–) Exemption Loss: | – | $0 | |
| | | -------------------------- | |
| (=) Taxable Value: | = | $1,290,543 | |
Taxing Jurisdiction
| Owner: | FLONES, PETER F | | |
| % Ownership: | 100.0000000000% | | |
| Total Value: | $1,290,543 | | |
| Tax Area: | 510 - APPRAISER-Stan/Cam Schl Dist, improved & 1 acre or less |
| CF | Conservation Futures | 0.0316035091 | $1,290,543 | $1,290,543 | $40.79 | | |
| EMS1 | Fire & Rescue Dist #1 Camano GEN (EMS) | 0.3677864386 | $1,290,543 | $1,290,543 | $474.64 | | |
| FIRE1 | Fire & Rescue Dist #1 Camano GEN | 1.2502910536 | $1,290,543 | $1,290,543 | $1,613.55 | | |
| FIRE1BOND | Fire & Rescue Dist #1 Camano BOND | 0.1570001679 | $1,290,543 | $1,290,543 | $202.62 | | |
| CE | County Current Expense | 0.3708482477 | $1,290,543 | $1,290,543 | $478.60 | | |
| CR | County Roads | 0.4584763726 | $1,290,543 | $1,290,543 | $591.68 | | |
| LCIB | Library Sno-Isle BOND (Camano Island) | 0.0396325772 | $1,290,543 | $1,290,543 | $51.15 | | |
| LIB | Library Sno-Isle GEN | 0.3153421757 | $1,290,543 | $1,290,543 | $406.96 | | |
| SCH205_401 | School 205-401 Enrichment | 1.2698420524 | $1,290,543 | $1,290,543 | $1,638.79 | | |
| SCH205BOND | School 205-401 BOND | 0.9396497583 | $1,290,543 | $1,290,543 | $1,212.66 | | |
| ST | State School | 1.3035497053 | $1,290,543 | $1,290,543 | $1,682.29 | | |
| ST2 | State School Part 2 | 0.8169543533 | $1,290,543 | $1,290,543 | $1,054.31 | | |
| | Total Tax Rate: | 7.3209764117 | | | | | |
| | | | | Taxes w/Current Exemptions: | $9,448.04 | | |
| | | | | Taxes w/o Exemptions: | $9,448.04 | | |
Improvement / Building
| Improvement #1: | RESIDENTIAL | State Code: | Y | 1421.9 sqft | Value: | $239,833 |
| Bathrooms: | 2 | Bedrooms: | 2 | | Ceiling: | DRYWALL PAINTED | Exterior Wall/Cover: | CEMENT FIBER | | Floor Covering: | CARPET/VINYL 60-40 | Floor Structure: | WOOD W/SUBFLOOR | | Foundation: | CONCRETE | Heating: | WALL HEAT ELECTRIC | | Interior Finish: | DRYWALL PAINT | Plumbing Fixture Cnt: | 9 | | Roof Slope: | 5" IN 12" | Roof Structure/Cover: | CJ ASPHALT |
|
| | Type | Description | Class CD | Sub Class CD | Year Built | Area |
| | BAS | BASE/MAIN FLOOR | 3 | 0 | 1996 | 1421.9 |
| | OP2 | OPEN PORCH W/STEPS | 3 | 0 | 1996 | 48.0 |
| | OWP | OPEN WOOD PORCH W/STEPS | 3 | 0 | 1996 | 54.0 |
| | OWP | OPEN WOOD PORCH W/STEPS | 3 | 0 | 1996 | 56.0 |
| | DGR | DETACHED GARAGE | 3 | 0 | 1996 | 448.0 |
Sketch
Property Image
Land
| 1 | LB | LOW BANK | 0.0000 | 0.00 | 50.00 | 0.00 | 1.00 | $1,050,000 | $0 |
| 2 | 55 | TIDES | 0.0000 | 0.00 | 71.00 | 0.00 | 1.00 | $710 | $0 |
Roll Value History
| 2026 | N/A | N/A | N/A | N/A | N/A |
| 2025 | $239,833 | $1,050,710 | $0 | $1,290,543 | $1,290,543 |
| 2024 | $242,939 | $975,710 | $0 | $1,218,649 | $1,218,649 |
| 2023 | $246,041 | $900,710 | $0 | $1,146,751 | $1,146,751 |
| 2022 | $219,985 | $825,710 | $0 | $1,045,695 | $1,045,695 |
| 2021 | $193,734 | $550,710 | $0 | $744,444 | $744,444 |
| 2020 | $188,723 | $500,710 | $0 | $689,433 | $689,433 |
| 2019 | $136,321 | $525,710 | $0 | $662,031 | $662,031 |
| 2018 | $136,740 | $500,710 | $0 | $637,450 | $637,450 |
| 2017 | $137,526 | $500,710 | $0 | $638,236 | $638,236 |
| 2016 | $128,734 | $500,710 | $0 | $629,444 | $629,444 |
| 2015 | $130,364 | $450,710 | $0 | $581,074 | $581,074 |
| 2014 | $131,993 | $450,710 | $0 | $582,703 | $582,703 |
| 2013 | $133,623 | $450,710 | $0 | $584,333 | $584,333 |
| 2012 | $135,252 | $441,035 | $0 | $576,287 | $576,287 |
| 2011 | $136,880 | $464,210 | $0 | $601,090 | $601,090 |
| 2010 | $131,885 | $464,210 | $0 | $596,095 | $596,095 |
| 2009 | $137,440 | $522,920 | $0 | $660,360 | $660,360 |
| 2008 | $139,004 | $631,843 | $0 | $770,847 | $770,847 |
| 2007 | $140,566 | $731,220 | $0 | $871,786 | $871,786 |
Deed and Sales History
| 1 | 10/30/2020 | WD | Warranty Deed | LINN TRUSTEE, JOYCE L | FLONES, PETER F | | | $375,000.00 | 45556 | 4501502 |
| 2 | 12/01/1995 | QCD | Quit Claim Deed | LARSEN, ADA J | LINN, JOYCE L | | | $0.00 | 54231 | 95019528 |
| 3 | 06/01/1994 | TRUSTEED | Trustee's Deed | LARSEN, ADA J | LARSEN, ADA J | | | $0.00 | 42197 | 94016403 |
| 4 | 01/01/1900 | OTHER | Other - Misc. Documents | Unknown | LARSEN, ADA J | | | $0.00 | 0 | 0 |
Payout Agreement
| No payout information available.. |