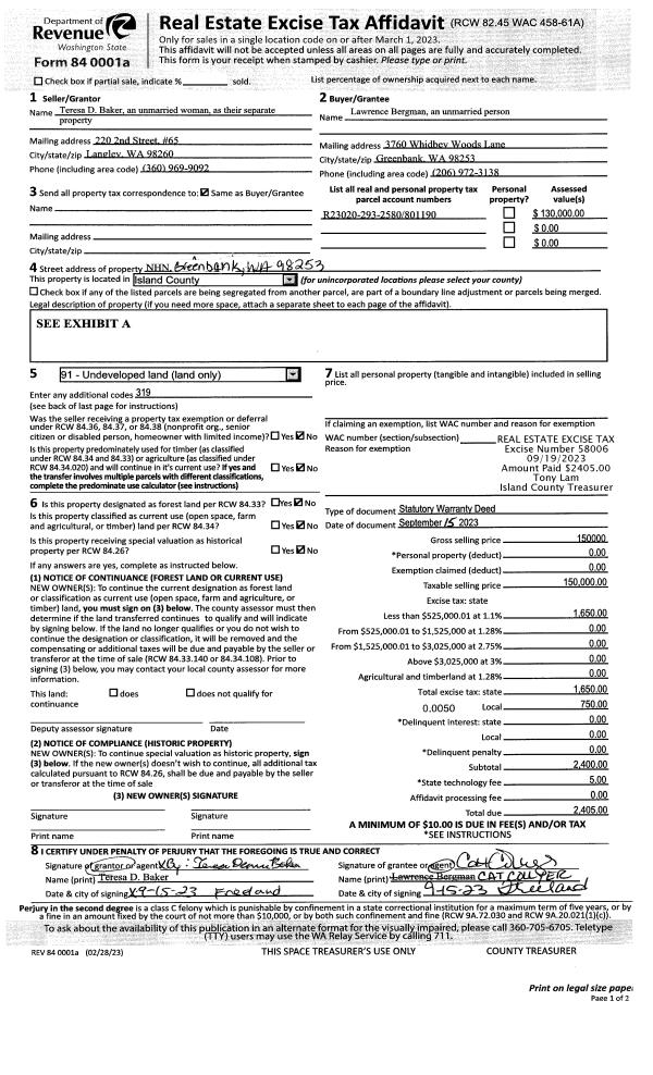
Property
Account |
| Property ID: | 423946 | Abbreviated Legal Description: | UTSA PT TR 3 LOT 1 & E39.17' OF LOT 2 INCL ADJ TIDES |
| Geographic ID: | S8355-03-00001-0 | Agent Code: | |
| Type: | Real | | |
| Tax Area: | 510 - APPRAISER-Stan/Cam Schl Dist, improved & 1 acre or less | Land Use Code | 11 |
| Open Space: | N | DFL | N |
| Historic Property: | N | Remodel Property: | N |
| Multi-Family Redevelopment: | N | | |
| Township: | | Section: | |
| Range: | |
Location |
| Address: | 408 SHORE DR CAMANO ISLAND, WA 98282 | Mapsco: | |
| Neighborhood: | North Camano | Map ID: | 551 |
| Neighborhood CD: | 06-C |
Owner |
| Name: | RIDDLE, RUSSEL A / CLARA V | Owner ID: | 158408 |
| Mailing Address: | 408 W NORTH CAMANO DR CAMANO ISLAND, WA 98282-8682 | % Ownership: | 100.0000000000% |
| | | Exemptions: | SNR/DSBL |
Taxes and Assessment Details
Values
| (+) Improvement Homesite Value: | + | $512,851 | |
| (+) Improvement Non-Homesite Value: | + | $0 | |
| (+) Land Homesite Value: | + | $775,900 | |
| (+) Land Non-Homesite Value: | + | $0 | |
| (+) Curr Use (HS): | + | $0 | $0 |
| (+) Curr Use (NHS): | + | $0 | $0 |
| | | -------------------------- | |
| (=) Market Value: | = | $1,288,751 | |
| (–) Productivity Loss: | – | $0 | |
| | | -------------------------- | |
| (=) Subtotal: | = | $1,288,751 | |
| (+) Senior Appraised Value: | + | $647,576 | |
| (+) Non-Senior Appraised Value: | + | $0 | |
| | | -------------------------- | |
| (=) Total Appraised Value: | = | $647,576 | |
| (–) Senior Exemption Loss: | – | $388,546 | |
| (–) Exemption Loss: | – | $0 | |
| | | -------------------------- | |
| (=) Taxable Value: | = | $259,030 | |
Taxing Jurisdiction
| Owner: | RIDDLE, RUSSEL A / CLARA V | | |
| % Ownership: | 100.0000000000% | | |
| Total Value: | $1,288,751 | | |
| Tax Area: | 510 - APPRAISER-Stan/Cam Schl Dist, improved & 1 acre or less |
| CF | Conservation Futures | 0.0316035091 | $1,288,751 | $259,030 | $8.19 | | |
| EMS1 | Fire & Rescue Dist #1 Camano GEN (EMS) | 0.3677864386 | $1,288,751 | $259,030 | $95.27 | | |
| FIRE1 | Fire & Rescue Dist #1 Camano GEN | 1.2502910536 | $1,288,751 | $259,030 | $323.86 | | |
| FIRE1BOND | Fire & Rescue Dist #1 Camano BOND | 0.0000000000 | $1,288,751 | $0 | $0.00 | | |
| CE | County Current Expense | 0.3708482477 | $1,288,751 | $259,030 | $96.06 | | |
| CR | County Roads | 0.4584763726 | $1,288,751 | $259,030 | $118.76 | | |
| LCIB | Library Sno-Isle BOND (Camano Island) | 0.0000000000 | $1,288,751 | $0 | $0.00 | | |
| LIB | Library Sno-Isle GEN | 0.3153421757 | $1,288,751 | $259,030 | $81.68 | | |
| SCH205_401 | School 205-401 Enrichment | 0.0000000000 | $1,288,751 | $0 | $0.00 | | |
| SCH205BOND | School 205-401 BOND | 0.0000000000 | $1,288,751 | $0 | $0.00 | | |
| ST | State School | 1.3035497053 | $1,288,751 | $259,030 | $337.66 | | |
| ST2 | State School Part 2 | 0.0000000000 | $1,288,751 | $0 | $0.00 | | |
| | Total Tax Rate: | 4.0978975026 | | | | | |
| | | | | Taxes w/Current Exemptions: | $1,061.48 | | |
| | | | | Taxes w/o Exemptions: | $9,434.91 | | |
Improvement / Building
| Improvement #1: | RESIDENTIAL | State Code: | Y | 2964.4 sqft | Value: | $512,851 |
| Bathrooms: | 2.5 | Bedrooms: | 3 | | Ceiling: | DRYWALL PAINTED | Exterior Wall/Cover: | PLY/HARDBOARD T-111 | | Floor Covering: | CARPET/VINYL 80-20 | Floor Structure: | WOOD W/SUBFLOOR | | Foundation: | CONCRETE | Heating: | CEILING ELECTRIC | | Interior Finish: | DRYWALL PAINT | Plumbing Fixture Cnt: | 13 | | Roof Slope: | 6" IN 12" | Roof Structure/Cover: | CJ ASPHALT |
|
| | Type | Description | Class CD | Sub Class CD | Year Built | Area |
| | BAS | BASE/MAIN FLOOR | 4 | 0 | 1990 | 2964.4 |
| | AGR | ATTACHED GARAGE | 4 | 0 | 1990 | 1482.0 |
| | OWP | OPEN WOOD PORCH W/STEPS | 4 | 0 | 1990 | 943.5 |
| | OWC | OPEN WOOD PORCH W/STEPS/ROOF/C | 4 | 0 | 1990 | 84.4 |
| | OWC | OPEN WOOD PORCH W/STEPS/ROOF/C | 4 | 0 | 1990 | 192.0 |
Sketch
Property Image
Land
| 1 | HB | HIGH BLUFF | 0.0000 | 0.00 | 50.00 | 0.00 | 1.00 | $775,000 | $0 |
| 2 | 55 | TIDES | 0.0000 | 0.00 | 90.00 | 0.00 | 1.00 | $900 | $0 |
Roll Value History
| 2026 | N/A | N/A | N/A | N/A | N/A |
| 2025 | $512,851 | $775,900 | $0 | $1,288,751 | $259,030 |
| 2024 | $519,323 | $775,900 | $0 | $1,295,223 | $259,030 |
| 2023 | $525,794 | $700,900 | $0 | $1,226,694 | $259,030 |
| 2022 | $458,545 | $675,900 | $0 | $1,134,445 | $647,576 |
| 2021 | $403,821 | $450,900 | $0 | $854,721 | $647,576 |
| 2020 | $394,295 | $425,900 | $0 | $820,195 | $647,576 |
| 2019 | $306,168 | $425,900 | $0 | $732,068 | $647,576 |
| 2018 | $307,110 | $375,900 | $0 | $683,010 | $647,576 |
| 2017 | $308,995 | $350,900 | $0 | $659,895 | $647,576 |
| 2016 | $296,676 | $350,900 | $0 | $647,576 | $647,576 |
| 2015 | $300,478 | $350,900 | $0 | $651,378 | $651,378 |
| 2014 | $304,283 | $350,900 | $0 | $655,183 | $655,183 |
| 2013 | $308,086 | $341,193 | $0 | $649,279 | $649,279 |
| 2012 | $311,889 | $341,193 | $0 | $653,082 | $653,082 |
| 2011 | $315,693 | $359,103 | $0 | $674,796 | $674,796 |
| 2010 | $329,233 | $359,103 | $0 | $688,336 | $688,336 |
| 2009 | $343,414 | $398,903 | $0 | $742,317 | $192,542 |
| 2008 | $347,808 | $398,903 | $0 | $746,711 | $192,542 |
| 2007 | $352,279 | $398,273 | $0 | $750,552 | $192,542 |
Deed and Sales History
| 1 | 12/01/1997 | WD | Warranty Deed | PRESSER, CHARLES F | RIDDLE, RUSSEL A | | | $360,000.00 | 74212 | 97020184 |
| 2 | 10/01/1991 | QCD | Quit Claim Deed | PRESSER, CHARLES F | PRESSER, CHARLES F | | | $0.00 | 13631 | 91015560 |
| 3 | 10/01/1991 | OTHER | Other - Misc. Documents | PRESSER, CHARLES F | PRESSER, CHARLES F | | | $0.00 | 64496 | 91015381 |
| 4 | 06/01/1990 | OTHER | Other - Misc. Documents | PRESSER, CHARLES F | PRESSER, CHARLES F | | | $0.00 | 63694 | 90009961 |
| 5 | 04/01/1990 | OTHER | Other - Misc. Documents | PRESSER, CHARLES F | PRESSER, CHARLES F | | | $0.00 | 63593 | 90005014 |
| 6 | 02/01/1990 | WD | Warranty Deed | WALKER, DAVID E | PRESSER, CHARLES F | | | $85,600.00 | 680 | 90002237 |
| 7 | 01/01/1900 | OTHER | Other - Misc. Documents | Unknown | WALKER, DAVID E | | | $0.00 | 0 | 0 |
Payout Agreement
| No payout information available.. |