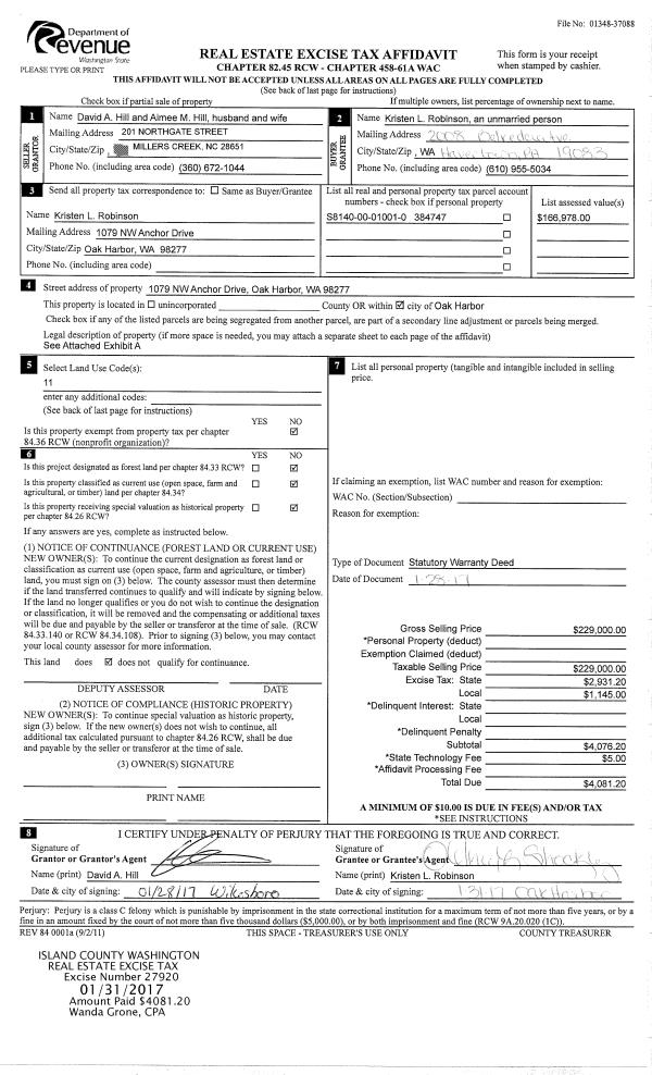
Property
Account |
| Property ID: | 423982 | Abbreviated Legal Description: | UTSA PT TR 3 LOT 7 |
| Geographic ID: | S8355-03-00007-0 | Agent Code: | |
| Type: | Real | | |
| Tax Area: | 510 - APPRAISER-Stan/Cam Schl Dist, improved & 1 acre or less | Land Use Code | 11 |
| Open Space: | N | DFL | N |
| Historic Property: | N | Remodel Property: | N |
| Multi-Family Redevelopment: | N | | |
| Township: | | Section: | |
| Range: | |
Location |
| Address: | 432 W NORTH CAMANO DR CAMANO ISLAND, WA 98282 | Mapsco: | |
| Neighborhood: | North Camano | Map ID: | 557 |
| Neighborhood CD: | 06-C |
Owner |
| Name: | TALBOTT, LORIE | Owner ID: | 285737 |
| Mailing Address: | 432 W NORTH CAMANO DR CAMANO ISLAND, WA 98282 | % Ownership: | 100.0000000000% |
| | | Exemptions: | |
Taxes and Assessment Details
Values
| (+) Improvement Homesite Value: | + | $0 | |
| (+) Improvement Non-Homesite Value: | + | $185,236 | |
| (+) Land Homesite Value: | + | $0 | |
| (+) Land Non-Homesite Value: | + | $700,600 | |
| (+) Curr Use (HS): | + | $0 | $0 |
| (+) Curr Use (NHS): | + | $0 | $0 |
| | | -------------------------- | |
| (=) Market Value: | = | $885,836 | |
| (–) Productivity Loss: | – | $0 | |
| | | -------------------------- | |
| (=) Subtotal: | = | $885,836 | |
| (+) Senior Appraised Value: | + | $0 | |
| (+) Non-Senior Appraised Value: | + | $885,836 | |
| | | -------------------------- | |
| (=) Total Appraised Value: | = | $885,836 | |
| (–) Senior Exemption Loss: | – | $0 | |
| (–) Exemption Loss: | – | $0 | |
| | | -------------------------- | |
| (=) Taxable Value: | = | $885,836 | |
Taxing Jurisdiction
| Owner: | TALBOTT, LORIE | | |
| % Ownership: | 100.0000000000% | | |
| Total Value: | $885,836 | | |
| Tax Area: | 510 - APPRAISER-Stan/Cam Schl Dist, improved & 1 acre or less |
| CF | Conservation Futures | 0.0316035091 | $885,836 | $885,836 | $28.00 | | |
| EMS1 | Fire & Rescue Dist #1 Camano GEN (EMS) | 0.3677864386 | $885,836 | $885,836 | $325.80 | | |
| FIRE1 | Fire & Rescue Dist #1 Camano GEN | 1.2502910536 | $885,836 | $885,836 | $1,107.55 | | |
| FIRE1BOND | Fire & Rescue Dist #1 Camano BOND | 0.1570001679 | $885,836 | $885,836 | $139.08 | | |
| CE | County Current Expense | 0.3708482477 | $885,836 | $885,836 | $328.51 | | |
| CR | County Roads | 0.4584763726 | $885,836 | $885,836 | $406.13 | | |
| LCIB | Library Sno-Isle BOND (Camano Island) | 0.0396325772 | $885,836 | $885,836 | $35.11 | | |
| LIB | Library Sno-Isle GEN | 0.3153421757 | $885,836 | $885,836 | $279.34 | | |
| SCH205_401 | School 205-401 Enrichment | 1.2698420524 | $885,836 | $885,836 | $1,124.87 | | |
| SCH205BOND | School 205-401 BOND | 0.9396497583 | $885,836 | $885,836 | $832.38 | | |
| ST | State School | 1.3035497053 | $885,836 | $885,836 | $1,154.73 | | |
| ST2 | State School Part 2 | 0.8169543533 | $885,836 | $885,836 | $723.69 | | |
| | Total Tax Rate: | 7.3209764117 | | | | | |
| | | | | Taxes w/Current Exemptions: | $6,485.19 | | |
| | | | | Taxes w/o Exemptions: | $6,485.19 | | |
Improvement / Building
| Improvement #1: | RESIDENTIAL | State Code: | Y | 833.8 sqft | Value: | $185,236 |
| Bathrooms: | 1.5 | Bedrooms: | 1 | | Ceiling: | DRYWALL PAINTED | Exterior Wall/Cover: | PLY/HARDBOARD T-111 | | Floor Covering: | VINYL 100% | Floor Structure: | WOOD W/SUBFLOOR | | Foundation: | CONCRETE | Heating: | FHA ELECTRIC | | Interior Finish: | DRYWALL PAINT | Plumbing Fixture Cnt: | 8 | | Roof Slope: | 4" IN 12" | Roof Structure/Cover: | CJ ASPHALT |
|
| | Type | Description | Class CD | Sub Class CD | Year Built | Area |
| | BAS | BASE/MAIN FLOOR | 3 | 0 | 1980 | 833.8 |
| | UB8 | BASEMENT UNFINISHED 8" | 3 | 0 | 1980 | 818.0 |
| | OWP | OPEN WOOD PORCH W/STEPS | 3 | 0 | 1980 | 381.0 |
Sketch
| No sketches available for this property. |
Property Image
Land
| 1 | HB | HIGH BLUFF | 0.0000 | 0.00 | 60.00 | 0.00 | 1.00 | $700,000 | $0 |
| 2 | 55 | TIDES | 0.0000 | 0.00 | 60.00 | 0.00 | 1.00 | $600 | $0 |
Roll Value History
| 2026 | N/A | N/A | N/A | N/A | N/A |
| 2025 | $185,236 | $700,600 | $0 | $885,836 | $885,836 |
| 2024 | $187,698 | $700,600 | $0 | $888,298 | $888,298 |
| 2023 | $190,159 | $615,600 | $0 | $805,759 | $805,759 |
| 2022 | $166,278 | $560,600 | $0 | $726,878 | $726,878 |
| 2021 | $146,485 | $375,600 | $0 | $522,085 | $522,085 |
| 2020 | $142,243 | $350,600 | $0 | $492,843 | $492,843 |
| 2019 | $103,719 | $350,600 | $0 | $454,319 | $454,319 |
| 2018 | $82,624 | $300,600 | $0 | $383,224 | $383,224 |
| 2017 | $83,219 | $300,600 | $0 | $383,819 | $383,819 |
| 2016 | $86,900 | $300,600 | $0 | $387,500 | $387,500 |
| 2015 | $88,125 | $300,600 | $0 | $388,725 | $388,725 |
| 2014 | $89,349 | $300,600 | $0 | $389,949 | $389,949 |
| 2013 | $90,572 | $241,942 | $0 | $332,514 | $332,514 |
| 2012 | $91,797 | $241,942 | $0 | $333,739 | $333,739 |
| 2011 | $93,020 | $254,644 | $0 | $347,664 | $347,664 |
| 2010 | $79,711 | $254,644 | $0 | $334,355 | $334,355 |
| 2009 | $83,273 | $282,872 | $0 | $366,145 | $366,145 |
| 2008 | $84,516 | $282,872 | $0 | $367,388 | $367,388 |
| 2007 | $85,721 | $282,452 | $0 | $368,173 | $368,173 |
Deed and Sales History
| 1 | 06/26/2018 | WD | Warranty Deed | TROUT, LEWIS | TALBOTT, LORIE | | | $440,000.00 | 34708 | 4446910 |
| 2 | 02/22/2017 | WD | Warranty Deed | LITTLE, DANICA | TROUT, LEWIS | | | $360,000.00 | 28199 | 4417784 |
| 3 | 02/02/2016 | MARRCERT | DNU - Marriage Certificate | MANN, DANICA | LITTLE, DANICA | | | | 87329 | |
| 4 | 04/15/2010 | QCD | Quit Claim Deed | MANN, BRIAN R | MANN, DANICA | | | $0.00 | 871 | 4272211 |
| 5 | 08/11/2000 | WD | Warranty Deed | WIATRAK, PAUL A | MANN, BRIAN R | | | $185,000.00 | 3091 | 20014480 |
| 6 | 09/01/1990 | WD | Warranty Deed | Unknown | WIATRAK, PAUL A | | | $0.00 | 6592 | 90022959 |
Payout Agreement
| No payout information available.. |