Property
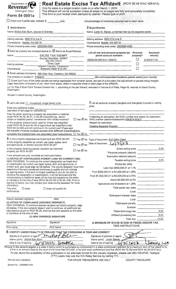
Account |
| Property ID: | 424213 | Abbreviated Legal Description: | UTSA PT TR 4 LOT 1 |
| Geographic ID: | S8355-04-00001-0 | Agent Code: | |
| Type: | Real | | |
| Tax Area: | 510 - APPRAISER-Stan/Cam Schl Dist, improved & 1 acre or less | Land Use Code | 99 |
| Open Space: | N | DFL | N |
| Historic Property: | N | Remodel Property: | N |
| Multi-Family Redevelopment: | N | | |
| Township: | | Section: | |
| Range: | |
Location |
| Address: | | Mapsco: | |
| Neighborhood: | North Camano | Map ID: | 550 |
| Neighborhood CD: | 06-C |
Owner |
| Name: | QUEK, SWEE-HWA VIVIEN | Owner ID: | 273297 |
| Mailing Address: | 378 SHORE DR CAMANO ISLAND, WA 98282 | % Ownership: | 100.0000000000% |
| | | Exemptions: | |
Taxes and Assessment Details
Values
| (+) Improvement Homesite Value: | + | $0 | |
| (+) Improvement Non-Homesite Value: | + | $0 | |
| (+) Land Homesite Value: | + | $0 | |
| (+) Land Non-Homesite Value: | + | $17,000 | |
| (+) Curr Use (HS): | + | $0 | $0 |
| (+) Curr Use (NHS): | + | $0 | $0 |
| | | -------------------------- | |
| (=) Market Value: | = | $17,000 | |
| (–) Productivity Loss: | – | $0 | |
| | | -------------------------- | |
| (=) Subtotal: | = | $17,000 | |
| (+) Senior Appraised Value: | + | $0 | |
| (+) Non-Senior Appraised Value: | + | $17,000 | |
| | | -------------------------- | |
| (=) Total Appraised Value: | = | $17,000 | |
| (–) Senior Exemption Loss: | – | $0 | |
| (–) Exemption Loss: | – | $0 | |
| | | -------------------------- | |
| (=) Taxable Value: | = | $17,000 | |
Taxing Jurisdiction
| Owner: | QUEK, SWEE-HWA VIVIEN | | |
| % Ownership: | 100.0000000000% | | |
| Total Value: | $17,000 | | |
| Tax Area: | 510 - APPRAISER-Stan/Cam Schl Dist, improved & 1 acre or less |
| CF | Conservation Futures | 0.0316035091 | $17,000 | $17,000 | $0.54 | | |
| EMS1 | Fire & Rescue Dist #1 Camano GEN (EMS) | 0.3677864386 | $17,000 | $17,000 | $6.25 | | |
| FIRE1 | Fire & Rescue Dist #1 Camano GEN | 1.2502910536 | $17,000 | $17,000 | $21.25 | | |
| FIRE1BOND | Fire & Rescue Dist #1 Camano BOND | 0.1570001679 | $17,000 | $17,000 | $2.67 | | |
| CE | County Current Expense | 0.3708482477 | $17,000 | $17,000 | $6.30 | | |
| CR | County Roads | 0.4584763726 | $17,000 | $17,000 | $7.79 | | |
| LCIB | Library Sno-Isle BOND (Camano Island) | 0.0396325772 | $17,000 | $17,000 | $0.67 | | |
| LIB | Library Sno-Isle GEN | 0.3153421757 | $17,000 | $17,000 | $5.36 | | |
| SCH205_401 | School 205-401 Enrichment | 1.2698420524 | $17,000 | $17,000 | $21.59 | | |
| SCH205BOND | School 205-401 BOND | 0.9396497583 | $17,000 | $17,000 | $15.97 | | |
| ST | State School | 1.3035497053 | $17,000 | $17,000 | $22.16 | | |
| ST2 | State School Part 2 | 0.8169543533 | $17,000 | $17,000 | $13.89 | | |
| | Total Tax Rate: | 7.3209764117 | | | | | |
| | | | | Taxes w/Current Exemptions: | $124.44 | | |
| | | | | Taxes w/o Exemptions: | $124.44 | | |
Improvement / Building
Sketch
| No sketches available for this property. |
Property Image
Land
| 1 | 14 | SQ (08001-12000) | 0.0000 | 0.00 | 0.00 | 0.00 | 1.00 | $17,000 | $0 |
Roll Value History
| 2026 | N/A | N/A | N/A | N/A | N/A |
| 2025 | $0 | $17,000 | $0 | $17,000 | $17,000 |
| 2024 | $0 | $17,000 | $0 | $17,000 | $17,000 |
| 2023 | $0 | $9,000 | $0 | $9,000 | $9,000 |
| 2022 | $0 | $9,000 | $0 | $9,000 | $9,000 |
| 2021 | $0 | $7,000 | $0 | $7,000 | $7,000 |
| 2020 | $0 | $7,000 | $0 | $7,000 | $7,000 |
| 2019 | $0 | $7,000 | $0 | $7,000 | $7,000 |
| 2018 | $0 | $7,000 | $0 | $7,000 | $7,000 |
| 2017 | $0 | $5,000 | $0 | $5,000 | $5,000 |
| 2016 | $0 | $5,000 | $0 | $5,000 | $5,000 |
| 2015 | $0 | $17,947 | $0 | $17,947 | $17,947 |
| 2014 | $0 | $17,947 | $0 | $17,947 | $17,947 |
| 2013 | $0 | $17,947 | $0 | $17,947 | $17,947 |
| 2012 | $0 | $17,947 | $0 | $17,947 | $17,947 |
| 2011 | $0 | $17,947 | $0 | $17,947 | $17,947 |
| 2010 | $0 | $17,947 | $0 | $17,947 | $17,947 |
| 2009 | $0 | $33,000 | $0 | $33,000 | $33,000 |
| 2008 | $0 | $33,000 | $0 | $33,000 | $33,000 |
| 2007 | $0 | $33,000 | $0 | $33,000 | $33,000 |
Deed and Sales History
| 1 | 12/28/2015 | WD | Warranty Deed | SPARKS, TR, GRDN / DOROTHY | QUEK, SWEE-HWA VIVIEN | | | $580,000.00 | 22680 | 4391818 |
|   | |
| 2 | 07/12/2002 | WD | Warranty Deed | MAGNER, SHIRLEY R | SPARKS TRUSTEE, GORDON | | | $60,000.00 | 22737 | 4025727 |
| 3 | 07/09/2002 | SEG | DNU - Segregation | Unknown | MAGNER, SHIRLEY R | | | $0.00 | 69488 | 0 |
Payout Agreement
| No payout information available.. |