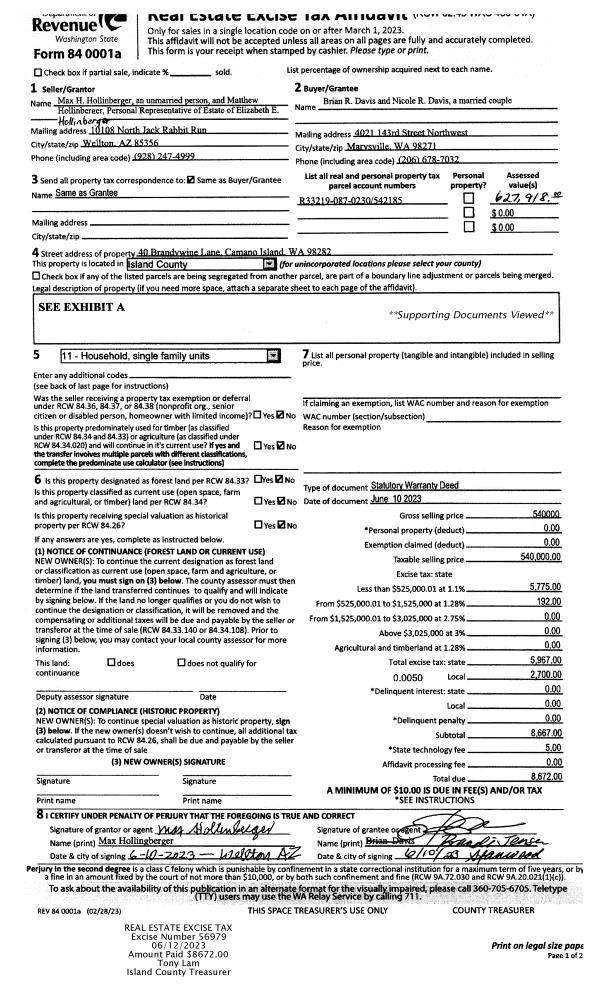
Property
Account |
| Property ID: | 424375 | Abbreviated Legal Description: | UTSA PT TRS 4 LOT 19 |
| Geographic ID: | S8355-04-00019-0 | Agent Code: | |
| Type: | Real | | |
| Tax Area: | 519 - APPRAISER-Stan/Cam Schl Dist, vacant & 50 acres or less | Land Use Code | 99 |
| Open Space: | N | DFL | N |
| Historic Property: | N | Remodel Property: | N |
| Multi-Family Redevelopment: | N | | |
| Township: | | Section: | |
| Range: | |
Location |
| Address: | | Mapsco: | |
| Neighborhood: | North Camano | Map ID: | 560 |
| Neighborhood CD: | 06-C |
Owner |
| Name: | NATIONS, KATHRYN LOCK | Owner ID: | 41082 |
| Mailing Address: | 470 OCEAN BEACH RD HOQUIAM, WA 98550-9530 | % Ownership: | 100.0000000000% |
| | | Exemptions: | |
Taxes and Assessment Details
Values
| (+) Improvement Homesite Value: | + | $0 | |
| (+) Improvement Non-Homesite Value: | + | $0 | |
| (+) Land Homesite Value: | + | $0 | |
| (+) Land Non-Homesite Value: | + | $20,000 | |
| (+) Curr Use (HS): | + | $0 | $0 |
| (+) Curr Use (NHS): | + | $0 | $0 |
| | | -------------------------- | |
| (=) Market Value: | = | $20,000 | |
| (–) Productivity Loss: | – | $0 | |
| | | -------------------------- | |
| (=) Subtotal: | = | $20,000 | |
| (+) Senior Appraised Value: | + | $0 | |
| (+) Non-Senior Appraised Value: | + | $20,000 | |
| | | -------------------------- | |
| (=) Total Appraised Value: | = | $20,000 | |
| (–) Senior Exemption Loss: | – | $0 | |
| (–) Exemption Loss: | – | $0 | |
| | | -------------------------- | |
| (=) Taxable Value: | = | $20,000 | |
Taxing Jurisdiction
| Owner: | NATIONS, KATHRYN LOCK | | |
| % Ownership: | 100.0000000000% | | |
| Total Value: | $20,000 | | |
| Tax Area: | 519 - APPRAISER-Stan/Cam Schl Dist, vacant & 50 acres or less |
| CF | Conservation Futures | 0.0316035091 | $20,000 | $20,000 | $0.63 | | |
| EMS1 | Fire & Rescue Dist #1 Camano GEN (EMS) | 0.3677864386 | $20,000 | $20,000 | $7.36 | | |
| CE | County Current Expense | 0.3708482477 | $20,000 | $20,000 | $7.42 | | |
| CR | County Roads | 0.4584763726 | $20,000 | $20,000 | $9.17 | | |
| LCIB | Library Sno-Isle BOND (Camano Island) | 0.0396325772 | $20,000 | $20,000 | $0.79 | | |
| LIB | Library Sno-Isle GEN | 0.3153421757 | $20,000 | $20,000 | $6.31 | | |
| SCH205_401 | School 205-401 Enrichment | 1.2698420524 | $20,000 | $20,000 | $25.40 | | |
| SCH205BOND | School 205-401 BOND | 0.9396497583 | $20,000 | $20,000 | $18.79 | | |
| ST | State School | 1.3035497053 | $20,000 | $20,000 | $26.07 | | |
| ST2 | State School Part 2 | 0.8169543533 | $20,000 | $20,000 | $16.34 | | |
| | Total Tax Rate: | 5.9136851902 | | | | | |
| | | | | Taxes w/Current Exemptions: | $118.28 | | |
| | | | | Taxes w/o Exemptions: | $118.28 | | |
Improvement / Building
Sketch
| No sketches available for this property. |
Property Image
Land
| 1 | 15 | SQ (12001-21780) | 0.0000 | 0.00 | 0.00 | 0.00 | 1.00 | $20,000 | $0 |
Roll Value History
| 2026 | N/A | N/A | N/A | N/A | N/A |
| 2025 | $0 | $20,000 | $0 | $20,000 | $20,000 |
| 2024 | $0 | $20,000 | $0 | $20,000 | $20,000 |
| 2023 | $0 | $20,000 | $0 | $20,000 | $20,000 |
| 2022 | $0 | $20,000 | $0 | $20,000 | $20,000 |
| 2021 | $0 | $20,000 | $0 | $20,000 | $20,000 |
| 2020 | $0 | $20,000 | $0 | $20,000 | $20,000 |
| 2019 | $0 | $20,000 | $0 | $20,000 | $20,000 |
| 2018 | $0 | $20,000 | $0 | $20,000 | $20,000 |
| 2017 | $0 | $20,750 | $0 | $20,750 | $20,750 |
| 2016 | $0 | $20,750 | $0 | $20,750 | $20,750 |
| 2015 | $0 | $20,750 | $0 | $20,750 | $20,750 |
| 2014 | $0 | $20,750 | $0 | $20,750 | $20,750 |
| 2013 | $0 | $20,750 | $0 | $20,750 | $20,750 |
| 2012 | $0 | $20,750 | $0 | $20,750 | $20,750 |
| 2011 | $0 | $20,750 | $0 | $20,750 | $20,750 |
| 2010 | $0 | $20,750 | $0 | $20,750 | $20,750 |
| 2009 | $0 | $50,000 | $0 | $50,000 | $50,000 |
| 2008 | $0 | $32,500 | $0 | $32,500 | $32,500 |
| 2007 | $0 | $32,500 | $0 | $32,500 | $32,500 |
Deed and Sales History
| 1 | 02/01/1993 | QCD | Quit Claim Deed | LOCK, FRANKLIN T | NATIONS, KATHRYN L | | | $0.00 | 30661 | 93003788 |
| 2 | 08/01/1956 | EXECUTORD | Executor Deed | POPE, & T | LOCK, FRANKLIN T | | | $0.00 | 927 | 0 |
| 3 | 01/01/1900 | OTHER | Other - Misc. Documents | Unknown | POPE, & T | | | $0.00 | 0 | 0 |
Payout Agreement
| No payout information available.. |