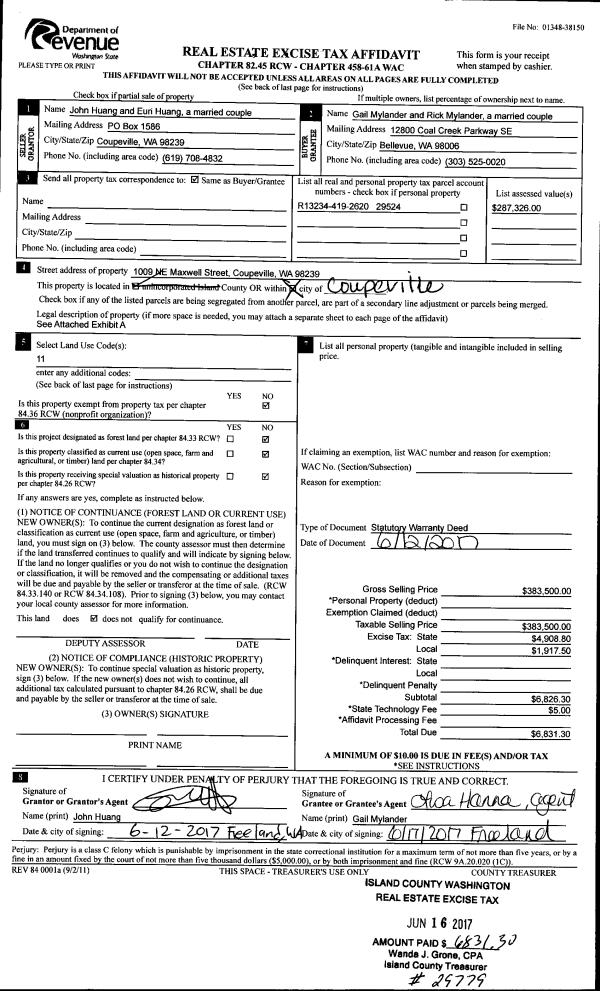
Property
Account |
| Property ID: | 424437 | Abbreviated Legal Description: | VIEW CREST TRACT A EX SUBLOTS 1,2 & 3 |
| Geographic ID: | S8365-00-0000A-0 | Agent Code: | |
| Type: | Real | | |
| Tax Area: | 112 - APPRAISER-OH Schl Dist, outside OH, improved, greater than 1 acre | Land Use Code | 11 |
| Open Space: | N | DFL | N |
| Historic Property: | N | Remodel Property: | N |
| Multi-Family Redevelopment: | N | | |
| Township: | | Section: | |
| Range: | |
Location |
| Address: | 1279 HURLEY PLACE OAK HARBOR, WA 98277 | Mapsco: | |
| Neighborhood: | Cycle 6 | Map ID: | 540 |
| Neighborhood CD: | 6 |
Owner |
| Name: | POLYEFKO TTEE, MICHAEL J | Owner ID: | 291951 |
| Mailing Address: | 1279 HURLEY PL OAK HARBOR, WA 98277 | % Ownership: | 100.0000000000% |
| | | Exemptions: | SNR/DSBL |
Taxes and Assessment Details
Values
| (+) Improvement Homesite Value: | + | $365,040 | |
| (+) Improvement Non-Homesite Value: | + | $0 | |
| (+) Land Homesite Value: | + | $300,000 | |
| (+) Land Non-Homesite Value: | + | $0 | |
| (+) Curr Use (HS): | + | $0 | $0 |
| (+) Curr Use (NHS): | + | $0 | $0 |
| | | -------------------------- | |
| (=) Market Value: | = | $665,040 | |
| (–) Productivity Loss: | – | $0 | |
| | | -------------------------- | |
| (=) Subtotal: | = | $665,040 | |
| (+) Senior Appraised Value: | + | $339,259 | |
| (+) Non-Senior Appraised Value: | + | $0 | |
| | | -------------------------- | |
| (=) Total Appraised Value: | = | $339,259 | |
| (–) Senior Exemption Loss: | – | $203,555 | |
| (–) Exemption Loss: | – | $0 | |
| | | -------------------------- | |
| (=) Taxable Value: | = | $135,704 | |
Taxing Jurisdiction
| Owner: | POLYEFKO TTEE, MICHAEL J | | |
| % Ownership: | 100.0000000000% | | |
| Total Value: | $665,040 | | |
| Tax Area: | 112 - APPRAISER-OH Schl Dist, outside OH, improved, greater than 1 acre |
| CF | Conservation Futures | 0.0316035091 | $665,040 | $135,704 | $4.29 | | |
| CEM1 | Cemetery #1 | 0.0040320932 | $665,040 | $135,704 | $0.55 | | |
| FIRE2 | Fire & Rescue Dist #2 N Whidbey GEN | 0.5475949600 | $665,040 | $135,704 | $74.31 | | |
| HOBOND | Hospital BOND | 0.0000000000 | $665,040 | $0 | $0.00 | | |
| HOGEN | Hospital GEN | 0.3902502903 | $665,040 | $135,704 | $52.96 | | |
| CE | County Current Expense | 0.3708482477 | $665,040 | $135,704 | $50.33 | | |
| CR | County Roads | 0.4584763726 | $665,040 | $135,704 | $62.22 | | |
| ISLANDEMS | Hospital GEN (EMS) | 0.5000000000 | $665,040 | $135,704 | $67.85 | | |
| LIB | Library Sno-Isle GEN | 0.3153421757 | $665,040 | $135,704 | $42.79 | | |
| NWHIDPRMT | P & R N Whidbey GEN | 0.2004466701 | $665,040 | $135,704 | $27.20 | | |
| SCH201MO | School 201 Enrichment | 0.0000000000 | $665,040 | $0 | $0.00 | | |
| ST | State School | 1.3035497053 | $665,040 | $135,704 | $176.90 | | |
| ST2 | State School Part 2 | 0.0000000000 | $665,040 | $0 | $0.00 | | |
| | Total Tax Rate: | 4.1221440240 | | | | | |
| | | | | Taxes w/Current Exemptions: | $559.40 | | |
| | | | | Taxes w/o Exemptions: | $4,646.05 | | |
Improvement / Building
| Improvement #1: | RESIDENTIAL | State Code: | Y | 2820.0 sqft | Value: | $365,040 |
| Bathrooms: | 2.5 | Bedrooms: | 3 | | Ceiling: | DRY WALL SPRAYED | Cooling: | HEAT PUMP/CONV/V | | Exterior Wall/Cover: | PLY/HARDBOARD T-111 | Floor Covering: | CARPET/VINYL 80-20 | | Floor Structure: | WOOD W/SUBFLOOR | Foundation: | CONCRETE | | Interior Finish: | DRYWALL PAINT | Plumbing Fixture Cnt: | 11 | | Roof Slope: | 5" IN 12" | Roof Structure/Cover: | ALUM LIGHT |
|
| | Type | Description | Class CD | Sub Class CD | Year Built | Area |
| | BAS | BASE/MAIN FLOOR | 3 | 0 | 1981 | 1640.0 |
| | OWP | OPEN WOOD PORCH W/STEPS | 3 | 0 | 1981 | 260.0 |
| | OWP | OPEN WOOD PORCH W/STEPS | 3 | 0 | 1981 | 672.0 |
| | ENP | ENCLOSED PORCH | 3 | 0 | 1981 | 64.0 |
| | DWN | DOWNSTAIRS LIVING AREA | 3 | 0 | 1981 | 1180.0 |
| | OP1 | OPEN PORCH SLAB | 3 | 0 | 1981 | 196.0 |
| | OP3 | OPEN PORCH W/ROOF | 3 | 0 | 1981 | 1261.3 |
| | ENP | ENCLOSED PORCH | 3 | 0 | 1981 | 240.0 |
| | CPD | OPEN CARPORT DIRT FLOOR | 3 | 0 | 1981 | 240.0 |
| | OWC | OPEN WOOD PORCH W/STEPS/ROOF/C | 3 | 0 | 1981 | 164.0 |
| | oELV | ELEVATOR | 3 | 0 | 1981 | 36.0 |
| | UTY | STORAGE/UTILITY | 3 | 0 | 1981 | 800.0 |
Sketch
Property Image
Land
| 1 | 32 | AC (03.01-09.99) | 3.8000 | 165528.00 | 0.00 | 0.00 | 1.00 | $300,000 | $0 |
Roll Value History
| 2026 | N/A | N/A | N/A | N/A | N/A |
| 2025 | $365,040 | $300,000 | $0 | $665,040 | $135,704 |
| 2024 | $370,328 | $280,000 | $0 | $650,328 | $135,704 |
| 2023 | $375,614 | $270,000 | $0 | $645,614 | $135,704 |
| 2022 | $274,735 | $240,000 | $0 | $514,735 | $135,704 |
| 2021 | $242,503 | $160,000 | $0 | $402,503 | $135,704 |
| 2020 | $237,522 | $140,000 | $0 | $377,522 | $135,704 |
| 2019 | $189,278 | $200,000 | $0 | $389,278 | $135,704 |
| 2018 | $189,962 | $170,000 | $0 | $359,962 | $135,704 |
| 2017 | $190,742 | $150,000 | $0 | $340,742 | $135,704 |
| 2016 | $199,259 | $140,000 | $0 | $339,259 | $135,704 |
| 2015 | $204,186 | $120,000 | $0 | $324,186 | $324,186 |
| 2014 | $206,972 | $100,000 | $0 | $306,972 | $306,972 |
| 2013 | $209,758 | $79,200 | $0 | $288,958 | $288,958 |
| 2012 | $212,543 | $79,200 | $0 | $291,743 | $291,743 |
| 2011 | $209,857 | $88,000 | $0 | $297,857 | $297,857 |
| 2010 | $261,244 | $88,000 | $0 | $349,244 | $349,244 |
| 2009 | $272,799 | $116,000 | $0 | $388,799 | $388,799 |
| 2008 | $293,091 | $116,000 | $0 | $409,091 | $409,091 |
| 2007 | $294,544 | $72,000 | $0 | $366,544 | $366,544 |
Deed and Sales History
| 1 | 09/03/2019 | QCD | Quit Claim Deed | POLYEFKO, MICHAEL J | POLYEFKO TTEE, MICHAEL J | | | $0.00 | 40279 | 4471457 |
| 2 | 02/23/2017 | WD | Warranty Deed | HUNTMAN, CYNTHIA L | POLYEFKO, MICHAEL J | | | $540,000.00 | 28181 | 4417664 |
|   | |
| 3 | 04/03/2014 | PRD | Personal Representatives Deed | HUNTMAN, CYNTHIA L | HUNTMAN, CYNTHIA L | | | $120,663.00 | 15145 | 4358809 |
| 4 | 04/05/2001 | QCD | Quit Claim Deed | HURLEY, JEANNE H | HUNTMAN, CYNTHIA L | | | $0.00 | 11092 | 20028935 |
| 5 | 04/05/2001 | QCD | Quit Claim Deed | HURLEY, KENNETH D | HURLEY, JEANNE H | | | $0.00 | 11091 | 20028936 |
Payout Agreement
| No payout information available.. |