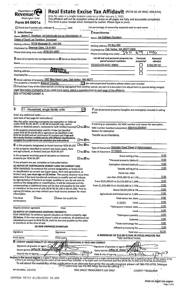
Property
Account |
| Property ID: | 424507 | Abbreviated Legal Description: | VIEW CREST LOT 2 |
| Geographic ID: | S8365-00-00002-0 | Agent Code: | |
| Type: | Real | | |
| Tax Area: | 110 - APPRAISER-OH Schl Dist, outside OH, improved & 1 acre or less | Land Use Code | 11 |
| Open Space: | N | DFL | N |
| Historic Property: | N | Remodel Property: | N |
| Multi-Family Redevelopment: | N | | |
| Township: | | Section: | |
| Range: | |
Location |
| Address: | 2123 VIEWCREST PLACE OAK HARBOR, WA 98277 | Mapsco: | |
| Neighborhood: | Cycle 6 | Map ID: | 540 |
| Neighborhood CD: | 6 |
Owner |
| Name: | O'CONNOR, VINCENT | Owner ID: | 308743 |
| Mailing Address: | CARLEENA O'CONNOR 2123 NORTH VIEWCREST PL OAK HARBOR, WA 98277 | % Ownership: | 100.0000000000% |
| | | Exemptions: | |
Taxes and Assessment Details
Values
| (+) Improvement Homesite Value: | + | $0 | |
| (+) Improvement Non-Homesite Value: | + | $253,580 | |
| (+) Land Homesite Value: | + | $0 | |
| (+) Land Non-Homesite Value: | + | $200,000 | |
| (+) Curr Use (HS): | + | $0 | $0 |
| (+) Curr Use (NHS): | + | $0 | $0 |
| | | -------------------------- | |
| (=) Market Value: | = | $453,580 | |
| (–) Productivity Loss: | – | $0 | |
| | | -------------------------- | |
| (=) Subtotal: | = | $453,580 | |
| (+) Senior Appraised Value: | + | $0 | |
| (+) Non-Senior Appraised Value: | + | $453,580 | |
| | | -------------------------- | |
| (=) Total Appraised Value: | = | $453,580 | |
| (–) Senior Exemption Loss: | – | $0 | |
| (–) Exemption Loss: | – | $0 | |
| | | -------------------------- | |
| (=) Taxable Value: | = | $453,580 | |
Taxing Jurisdiction
| Owner: | O'CONNOR, VINCENT | | |
| % Ownership: | 100.0000000000% | | |
| Total Value: | $453,580 | | |
| Tax Area: | 110 - APPRAISER-OH Schl Dist, outside OH, improved & 1 acre or less |
| CF | Conservation Futures | 0.0316035091 | $453,580 | $453,580 | $14.33 | | |
| CEM1 | Cemetery #1 | 0.0040320932 | $453,580 | $453,580 | $1.83 | | |
| FIRE2 | Fire & Rescue Dist #2 N Whidbey GEN | 0.5475949600 | $453,580 | $453,580 | $248.38 | | |
| HOBOND | Hospital BOND | 0.1910887512 | $453,580 | $453,580 | $86.67 | | |
| HOGEN | Hospital GEN | 0.3902502903 | $453,580 | $453,580 | $177.01 | | |
| CE | County Current Expense | 0.3708482477 | $453,580 | $453,580 | $168.21 | | |
| CR | County Roads | 0.4584763726 | $453,580 | $453,580 | $207.96 | | |
| ISLANDEMS | Hospital GEN (EMS) | 0.5000000000 | $453,580 | $453,580 | $226.79 | | |
| LIB | Library Sno-Isle GEN | 0.3153421757 | $453,580 | $453,580 | $143.03 | | |
| NWHIDPRMT | P & R N Whidbey GEN | 0.2004466701 | $453,580 | $453,580 | $90.92 | | |
| SCH201MO | School 201 Enrichment | 1.8559231640 | $453,580 | $453,580 | $841.81 | | |
| ST | State School | 1.3035497053 | $453,580 | $453,580 | $591.26 | | |
| ST2 | State School Part 2 | 0.8169543533 | $453,580 | $453,580 | $370.55 | | |
| | Total Tax Rate: | 6.9861102925 | | | | | |
| | | | | Taxes w/Current Exemptions: | $3,168.75 | | |
| | | | | Taxes w/o Exemptions: | $3,168.75 | | |
Improvement / Building
| Improvement #1: | RESIDENTIAL | State Code: | Y | 1396.0 sqft | Value: | $253,580 |
| Bathrooms: | 2 | Bedrooms: | 3 | | Ceiling: | DRY WALL SPRAYED | Exterior Wall/Cover: | WOOD SIDING | | Floor Covering: | CERAMIC TILE/CPT 40-60 | Floor Structure: | WOOD W/SUBFLOOR | | Foundation: | CONCRETE | Heating: | FHA GAS | | Interior Finish: | DRYWALL PAINT | Plumbing Fixture Cnt: | 11 | | Roof Slope: | 4" IN 12" | Roof Structure/Cover: | CJ ASPHALT |
|
| | Type | Description | Class CD | Sub Class CD | Year Built | Area |
| | BAS | BASE/MAIN FLOOR | 3 | 0 | 1975 | 1396.0 |
| | AGR | ATTACHED GARAGE | 3 | 0 | 1975 | 462.0 |
| | OP3 | OPEN PORCH W/ROOF | 3 | 0 | 1975 | 8.0 |
Sketch
Property Image
Land
| 1 | 16 | AC (00.51-01.00) | 0.0000 | 24829.20 | 0.00 | 0.00 | 1.00 | $200,000 | $0 |
Roll Value History
| 2026 | N/A | N/A | N/A | N/A | N/A |
| 2025 | $253,580 | $200,000 | $0 | $453,580 | $453,580 |
| 2024 | $256,863 | $190,000 | $0 | $446,863 | $446,863 |
| 2023 | $260,146 | $190,000 | $0 | $450,146 | $450,146 |
| 2022 | $231,778 | $160,000 | $0 | $391,778 | $391,778 |
| 2021 | $204,125 | $130,000 | $0 | $334,125 | $334,125 |
| 2020 | $186,222 | $130,000 | $0 | $316,222 | $316,222 |
| 2019 | $134,035 | $185,000 | $0 | $319,035 | $319,035 |
| 2018 | $134,476 | $165,000 | $0 | $299,476 | $299,476 |
| 2017 | $116,558 | $150,000 | $0 | $266,558 | $266,558 |
| 2016 | $104,058 | $100,000 | $0 | $204,058 | $204,058 |
| 2015 | $105,765 | $85,000 | $0 | $190,765 | $190,765 |
| 2014 | $107,470 | $100,000 | $0 | $207,470 | $207,470 |
| 2013 | $109,176 | $77,400 | $0 | $186,576 | $186,576 |
| 2012 | $110,881 | $77,400 | $0 | $188,281 | $188,281 |
| 2011 | $112,587 | $86,000 | $0 | $198,587 | $198,587 |
| 2010 | $125,833 | $86,000 | $0 | $211,833 | $211,833 |
| 2009 | $131,859 | $130,000 | $0 | $261,859 | $261,859 |
| 2008 | $134,119 | $130,000 | $0 | $264,119 | $264,119 |
| 2007 | $136,383 | $130,242 | $0 | $266,625 | $266,625 |
Deed and Sales History
| 1 | 05/24/2023 | WD | Warranty Deed | MARTINEZ, EDITH | O'CONNOR, VINCENT | | | $450,000.00 | 56809 | 4560313 |
| 2 | 03/26/2020 | WD | Warranty Deed | GLENN, AMATUL H | MARTINEZ, EDITH | | | $339,900.00 | 42537 | 4483992 |
| 3 | 10/20/2017 | WD | Warranty Deed | DURLING, MATTHEW W | GLENN, AMATUL H | | | $291,000.00 | 31676 | 4432881 |
| 4 | 03/02/2009 | ESTSEPPROP | Establish Separate Property | DURLING, MATTHEW W | DURLING, MATTHEW W | | | $0.00 | 90712 | 4247732 |
| 5 | 10/30/2006 | WD | Warranty Deed | CHESTER, MARK J | DURLING, MATTHEW W | | | $287,150.00 | 64828 | 4186768 |
| 6 | 06/01/2004 | WD | Warranty Deed | LEADBETTER, FREEMONT R | CHESTER, MARK J | | | $188,000.00 | 42463 | 4103038 |
| 7 | 01/01/1984 | WD | Warranty Deed | MASSEY, WILLIAM L | LEADBETTER, FREEMONT R | | | $68,500.00 | 40183 | 420131 |
| 8 | 12/01/1983 | WD | Warranty Deed | MCDOWELL, WILLIAM L | MASSEY, WILLIAM L | | | $48,328.00 | 33583 | 418439 |
| 9 | 12/01/1983 | WD | Warranty Deed | UBER, DONALD C | MCDOWELL, WILLIAM L | | | $55,200.00 | 33584 | 418440 |
| 10 | 01/01/1900 | OTHER | Other - Misc. Documents | Unknown | UBER, DONALD C | | | $0.00 | 0 | 0 |
Payout Agreement
| No payout information available.. |