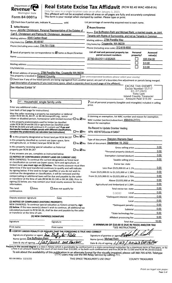
Property
Account |
| Property ID: | 424525 | Abbreviated Legal Description: | VIEW CREST LOT 4 |
| Geographic ID: | S8365-00-00004-0 | Agent Code: | |
| Type: | Real | | |
| Tax Area: | 110 - APPRAISER-OH Schl Dist, outside OH, improved & 1 acre or less | Land Use Code | 11 |
| Open Space: | N | DFL | N |
| Historic Property: | N | Remodel Property: | N |
| Multi-Family Redevelopment: | N | | |
| Township: | | Section: | |
| Range: | |
Location |
| Address: | 2135 VIEWCREST PLACE OAK HARBOR, WA 98277 | Mapsco: | |
| Neighborhood: | Cycle 6 | Map ID: | 540 |
| Neighborhood CD: | 6 |
Owner |
| Name: | FARRELL, MICHAEL J | Owner ID: | 287732 |
| Mailing Address: | 2135 VIEWCREST PL OAK HARBOR, WA 98277 | % Ownership: | 100.0000000000% |
| | | Exemptions: | |
Taxes and Assessment Details
Values
| (+) Improvement Homesite Value: | + | $0 | |
| (+) Improvement Non-Homesite Value: | + | $241,685 | |
| (+) Land Homesite Value: | + | $0 | |
| (+) Land Non-Homesite Value: | + | $200,000 | |
| (+) Curr Use (HS): | + | $0 | $0 |
| (+) Curr Use (NHS): | + | $0 | $0 |
| | | -------------------------- | |
| (=) Market Value: | = | $441,685 | |
| (–) Productivity Loss: | – | $0 | |
| | | -------------------------- | |
| (=) Subtotal: | = | $441,685 | |
| (+) Senior Appraised Value: | + | $0 | |
| (+) Non-Senior Appraised Value: | + | $441,685 | |
| | | -------------------------- | |
| (=) Total Appraised Value: | = | $441,685 | |
| (–) Senior Exemption Loss: | – | $0 | |
| (–) Exemption Loss: | – | $0 | |
| | | -------------------------- | |
| (=) Taxable Value: | = | $441,685 | |
Taxing Jurisdiction
| Owner: | FARRELL, MICHAEL J | | |
| % Ownership: | 100.0000000000% | | |
| Total Value: | $441,685 | | |
| Tax Area: | 110 - APPRAISER-OH Schl Dist, outside OH, improved & 1 acre or less |
| CF | Conservation Futures | 0.0316035091 | $441,685 | $441,685 | $13.96 | | |
| CEM1 | Cemetery #1 | 0.0040320932 | $441,685 | $441,685 | $1.78 | | |
| FIRE2 | Fire & Rescue Dist #2 N Whidbey GEN | 0.5475949600 | $441,685 | $441,685 | $241.86 | | |
| HOBOND | Hospital BOND | 0.1910887512 | $441,685 | $441,685 | $84.40 | | |
| HOGEN | Hospital GEN | 0.3902502903 | $441,685 | $441,685 | $172.37 | | |
| CE | County Current Expense | 0.3708482477 | $441,685 | $441,685 | $163.80 | | |
| CR | County Roads | 0.4584763726 | $441,685 | $441,685 | $202.50 | | |
| ISLANDEMS | Hospital GEN (EMS) | 0.5000000000 | $441,685 | $441,685 | $220.84 | | |
| LIB | Library Sno-Isle GEN | 0.3153421757 | $441,685 | $441,685 | $139.28 | | |
| NWHIDPRMT | P & R N Whidbey GEN | 0.2004466701 | $441,685 | $441,685 | $88.53 | | |
| SCH201MO | School 201 Enrichment | 1.8559231640 | $441,685 | $441,685 | $819.73 | | |
| ST | State School | 1.3035497053 | $441,685 | $441,685 | $575.76 | | |
| ST2 | State School Part 2 | 0.8169543533 | $441,685 | $441,685 | $360.84 | | |
| | Total Tax Rate: | 6.9861102925 | | | | | |
| | | | | Taxes w/Current Exemptions: | $3,085.65 | | |
| | | | | Taxes w/o Exemptions: | $3,085.65 | | |
Improvement / Building
| Improvement #1: | RESIDENTIAL | State Code: | Y | 1487.0 sqft | Value: | $241,685 |
| Bathrooms: | 2 | Bedrooms: | 3 | | Ceiling: | DRY WALL SPRAYED | Exterior Wall/Cover: | PLY/HARDBOARD T-111 | | Floor Covering: | HARDWOOD/CARP 60-40 | Floor Structure: | WOOD W/SUBFLOOR | | Foundation: | CONCRETE BLOCKS | Heating: | FHA GAS | | Interior Finish: | DRYWALL PAINT | Plumbing Fixture Cnt: | 9 | | Roof Slope: | 5" IN 12" | Roof Structure/Cover: | CJ ASPHALT |
|
| | Type | Description | Class CD | Sub Class CD | Year Built | Area |
| | BAS | BASE/MAIN FLOOR | 3 | 0 | 1975 | 1487.0 |
| | AGR | ATTACHED GARAGE | 3 | 0 | 1975 | 484.0 |
| | OP3 | OPEN PORCH W/ROOF | 3 | 0 | 1975 | 10.0 |
Sketch
Property Image
Land
| 1 | 16 | AC (00.51-01.00) | 0.0000 | 0.00 | 0.00 | 0.00 | 1.00 | $200,000 | $0 |
Roll Value History
| 2026 | N/A | N/A | N/A | N/A | N/A |
| 2025 | $241,685 | $200,000 | $0 | $441,685 | $441,685 |
| 2024 | $244,939 | $190,000 | $0 | $434,939 | $434,939 |
| 2023 | $248,194 | $190,000 | $0 | $438,194 | $438,194 |
| 2022 | $215,903 | $160,000 | $0 | $375,903 | $375,903 |
| 2021 | $190,080 | $130,000 | $0 | $320,080 | $320,080 |
| 2020 | $185,470 | $130,000 | $0 | $315,470 | $315,470 |
| 2019 | $135,091 | $185,000 | $0 | $320,091 | $320,091 |
| 2018 | $123,142 | $165,000 | $0 | $288,142 | $288,142 |
| 2017 | $124,029 | $150,000 | $0 | $274,029 | $274,029 |
| 2016 | $105,018 | $100,000 | $0 | $205,018 | $205,018 |
| 2015 | $106,739 | $85,000 | $0 | $191,739 | $191,739 |
| 2014 | $108,461 | $100,000 | $0 | $208,461 | $208,461 |
| 2013 | $110,183 | $77,400 | $0 | $187,583 | $187,583 |
| 2012 | $111,904 | $77,400 | $0 | $189,304 | $189,304 |
| 2011 | $113,626 | $86,000 | $0 | $199,626 | $199,626 |
| 2010 | $118,723 | $86,000 | $0 | $204,723 | $204,723 |
| 2009 | $123,996 | $130,000 | $0 | $253,996 | $253,996 |
| 2008 | $125,836 | $130,000 | $0 | $255,836 | $255,836 |
| 2007 | $127,713 | $130,242 | $0 | $257,955 | $257,955 |
Deed and Sales History
| 1 | 05/26/2020 | QCD | Quit Claim Deed | FERRELL, THERESA | FARRELL, MICHAEL J | | | $0.00 | 43140 | 4487587 |
| 2 | 09/11/2018 | QCD | Quit Claim Deed | FARRELL, TERESA | FARRELL, MICHAEL J | | | $0.00 | 36498 | 4454338 |
| 3 | 10/29/2018 | WD | Warranty Deed | GRONBACH, ERIK E / PAULA K | FARRELL, MICHAEL J | | | $330,000.00 | 36496 | 4454337 |
| 4 | 01/01/1997 | WD | Warranty Deed | JACKSON, JAYCEE P | GRONBACH, ERIK E | | | $139,000.00 | 70147 | 97000552 |
| 5 | 07/01/1987 | WD | Warranty Deed | KOGER, THOMAS H | JACKSON, JAYCEE P | | | $71,000.00 | 72107 | 87009555 |
| 6 | 01/01/1900 | OTHER | Other - Misc. Documents | Unknown | KOGER, THOMAS H | | | $0.00 | 0 | 0 |
Payout Agreement
| No payout information available.. |