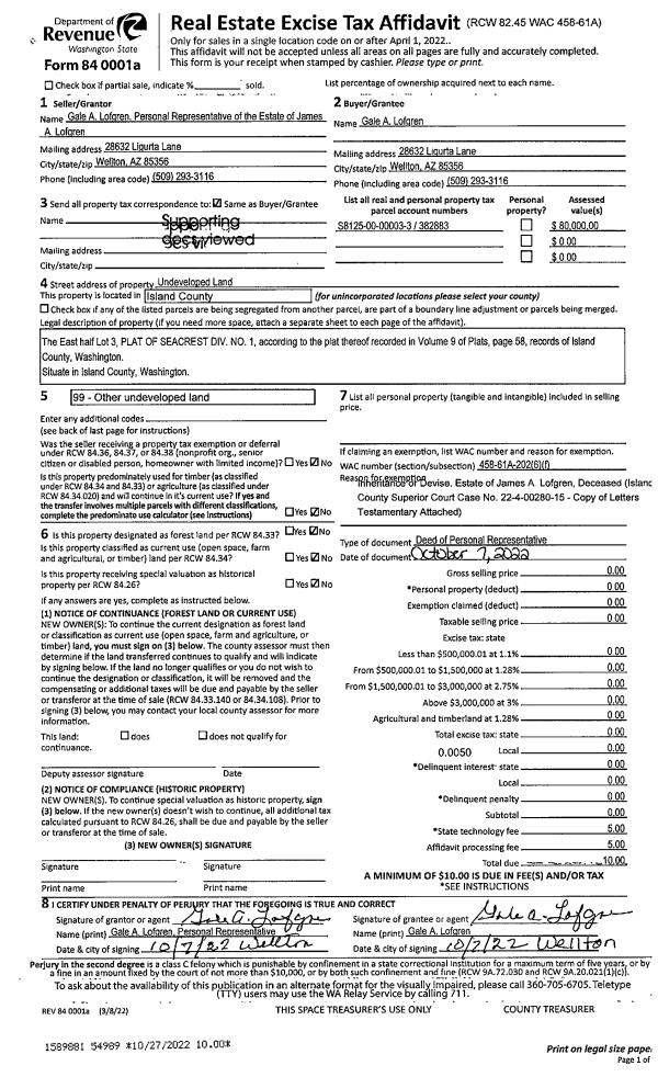
Property
Account |
| Property ID: | 424918 | Abbreviated Legal Description: | VILLAGE GREEN LOT 4 BLK 2 |
| Geographic ID: | S8375-00-02004-0 | Agent Code: | |
| Type: | Real | | |
| Tax Area: | 760 - APPRAISER-S Whid Schl Dist, Special District, improved & less than 1 acre | Land Use Code | 11 |
| Open Space: | N | DFL | N |
| Historic Property: | N | Remodel Property: | N |
| Multi-Family Redevelopment: | N | | |
| Township: | | Section: | |
| Range: | |
Location |
| Address: | 1657 DORSEY DR FREELAND, WA 98249 | Mapsco: | |
| Neighborhood: | Cycle 3 | Map ID: | 313 |
| Neighborhood CD: | 3 |
Owner |
| Name: | STONE JTWROS , ELISA | Owner ID: | 300487 |
| Mailing Address: | SARAH RACHEL STONE JTWROS 1657 DORSEY DR FREELAND, WA 98249 | % Ownership: | 100.0000000000% |
| | | Exemptions: | |
Taxes and Assessment Details
Values
| (+) Improvement Homesite Value: | + | $0 | |
| (+) Improvement Non-Homesite Value: | + | $282,197 | |
| (+) Land Homesite Value: | + | $0 | |
| (+) Land Non-Homesite Value: | + | $330,000 | |
| (+) Curr Use (HS): | + | $0 | $0 |
| (+) Curr Use (NHS): | + | $0 | $0 |
| | | -------------------------- | |
| (=) Market Value: | = | $612,197 | |
| (–) Productivity Loss: | – | $0 | |
| | | -------------------------- | |
| (=) Subtotal: | = | $612,197 | |
| (+) Senior Appraised Value: | + | $0 | |
| (+) Non-Senior Appraised Value: | + | $612,197 | |
| | | -------------------------- | |
| (=) Total Appraised Value: | = | $612,197 | |
| (–) Senior Exemption Loss: | – | $0 | |
| (–) Exemption Loss: | – | $0 | |
| | | -------------------------- | |
| (=) Taxable Value: | = | $612,197 | |
Taxing Jurisdiction
| Owner: | STONE JTWROS , ELISA | | |
| % Ownership: | 100.0000000000% | | |
| Total Value: | $612,197 | | |
| Tax Area: | 760 - APPRAISER-S Whid Schl Dist, Special District, improved & less than 1 acre |
| CF | Conservation Futures | 0.0316035091 | $612,197 | $612,197 | $19.35 | | |
| FIRE3 | Fire & Rescue Dist #3 S Whidbey GEN | 1.2004855531 | $612,197 | $612,197 | $734.93 | | |
| HOBOND | Hospital BOND | 0.1910887512 | $612,197 | $612,197 | $116.98 | | |
| HOGEN | Hospital GEN | 0.3902502903 | $612,197 | $612,197 | $238.91 | | |
| CE | County Current Expense | 0.3708482477 | $612,197 | $612,197 | $227.03 | | |
| CR | County Roads | 0.4584763726 | $612,197 | $612,197 | $280.68 | | |
| ISLANDEMS | Hospital GEN (EMS) | 0.5000000000 | $612,197 | $612,197 | $306.10 | | |
| LIB | Library Sno-Isle GEN | 0.3153421757 | $612,197 | $612,197 | $193.05 | | |
| PORTWHID | Port of S Whidbey GEN | 0.1094540357 | $612,197 | $612,197 | $67.01 | | |
| SCH206BOND | School 206 BOND | 0.3161759235 | $612,197 | $612,197 | $193.56 | | |
| SCH206MO | School 206 Enrichment | 0.4547169547 | $612,197 | $612,197 | $278.38 | | |
| ST | State School | 1.3035497053 | $612,197 | $612,197 | $798.03 | | |
| ST2 | State School Part 2 | 0.8169543533 | $612,197 | $612,197 | $500.14 | | |
| SWHIDPRBD | P & R S Whidbey BOND | 0.0152817568 | $612,197 | $612,197 | $9.36 | | |
| SWHIDPRBD2 | P & R S Whidbey BOND2 | 0.0138911264 | $612,197 | $612,197 | $8.50 | | |
| SWHIDPRMT | P & R S Whidbey GEN | 0.2053334452 | $612,197 | $612,197 | $125.70 | | |
| | Total Tax Rate: | 6.6934522006 | | | | | |
| | | | | Taxes w/Current Exemptions: | $4,097.71 | | |
| | | | | Taxes w/o Exemptions: | $4,097.71 | | |
Improvement / Building
| Improvement #1: | RESIDENTIAL | State Code: | Y | 2080.0 sqft | Value: | $282,197 |
| Bathrooms: | 3 | Bedrooms: | 3 | | Ceiling: | DRYWALL PAINTED | Cooling: | HEAT PUMP/CONV/V | | Exterior Wall/Cover: | WOOD SIDING | Floor Covering: | VINYL/HARDWOOD 20-80 | | Floor Structure: | WOOD W/SUBFLOOR | Foundation: | CONCRETE BLOCKS | | Interior Finish: | DRYWALL PAINT | Plumbing Fixture Cnt: | 12 | | Roof Slope: | 4" IN 12" | Roof Structure/Cover: | CJ BUILT-UP ROCK |
|
| | Type | Description | Class CD | Sub Class CD | Year Built | Area |
| | BAS | BASE/MAIN FLOOR | 3 | 0 | 1978 | 1326.0 |
| | DWN | DOWNSTAIRS LIVING AREA | 3 | 0 | 1978 | 754.0 |
| | OP2 | OPEN PORCH W/STEPS | 3 | 0 | 1978 | 48.0 |
| | BIG | BUILT IN GARAGE | 3 | 0 | 1978 | 572.0 |
| | UTY | STORAGE/UTILITY | 3 | 0 | 1978 | 126.0 |
| | OWR | OPEN WOOD PORCH W/STEPS/ROOF | 3 | 0 | 1978 | 344.0 |
Sketch
Property Image
Land
| 1 | 14 | SQ (08001-12000) | 0.0000 | 0.00 | 0.00 | 0.00 | 1.00 | $330,000 | $0 |
Roll Value History
| 2026 | N/A | N/A | N/A | N/A | N/A |
| 2025 | $282,197 | $330,000 | $0 | $612,197 | $612,197 |
| 2024 | $286,272 | $300,000 | $0 | $586,272 | $586,272 |
| 2023 | $290,346 | $350,000 | $0 | $640,346 | $640,346 |
| 2022 | $266,600 | $300,000 | $0 | $566,600 | $566,600 |
| 2021 | $235,044 | $190,000 | $0 | $425,044 | $425,044 |
| 2020 | $229,537 | $160,000 | $0 | $389,537 | $133,634 |
| 2019 | $143,168 | $190,000 | $0 | $333,168 | $133,267 |
| 2018 | $143,708 | $150,000 | $0 | $293,708 | $117,483 |
| 2017 | $144,789 | $140,000 | $0 | $284,789 | $113,916 |
| 2016 | $146,949 | $90,000 | $0 | $236,949 | $94,780 |
| 2015 | $149,111 | $90,000 | $0 | $239,111 | $95,644 |
| 2014 | $151,273 | $90,000 | $0 | $241,273 | $171,273 |
| 2013 | $143,908 | $90,000 | $0 | $233,908 | $163,908 |
| 2012 | $146,089 | $106,250 | $0 | $252,339 | $100,936 |
| 2011 | $148,268 | $125,000 | $0 | $273,268 | $109,307 |
| 2010 | $160,098 | $125,000 | $0 | $285,098 | $114,039 |
| 2009 | $167,073 | $140,000 | $0 | $307,073 | $122,829 |
| 2008 | $170,384 | $163,702 | $0 | $334,086 | $133,634 |
| 2007 | $171,285 | $164,826 | $0 | $336,111 | $336,111 |
Deed and Sales History
| 1 | 03/17/2022 | QCD | Quit Claim Deed | ROSE TTEE, BEVERLY | STONE JTWROS, ELISA | | | $0.00 | 52390 | 4541947 |
| 2 | 04/06/2021 | QCD | Quit Claim Deed | ROSE JTWROS, BEVERLY | STONE JTWROS , ELISA | | | $0.00 | 48885 | 4522930 |
| 3 | 01/21/2015 | QCD | Quit Claim Deed | ROSE, BEVERLY | ROSE JTWROS, BEVERLY | | | $0.00 | 18331 | 4372345 |
| 4 | 10/27/2005 | 5 | DNU - Marriage License/Name Change | ROSE, BEVERLY | ROSE TRUSTEE, BEVERLY | | | $0.00 | 55940 | 4155451 |
| 5 | 07/12/2004 | WD | Warranty Deed | MUNOZ, MARGARITA A | ROSE, BEVERLY | | | $243,000.00 | 43117 | 4106576 |
| 6 | 08/01/1995 | QCD | Quit Claim Deed | HOWARD, PAUL D | MUNOZ, MARGARITA A | | | $0.00 | 60021 | 96000081 |
| 7 | 07/01/1992 | WD | Warranty Deed | SYLVESTER, WILLIAM S | HOWARD, PAUL D | | | $135,000.00 | 23112 | 92015068 |
| 8 | 01/01/1992 | QCD | Quit Claim Deed | DEARSTYNE, EDNA S | SYLVESTER, WILLIAM S | | | $0.00 | 20379 | 92001719 |
| 9 | 06/01/1987 | OTHER | Other - Misc. Documents | SYLVESTER, WILLIAM S | DEARSTYNE, EDNA S | | | $0.00 | 62237 | 0 |
| 10 | 05/01/1987 | QCD | Quit Claim Deed | DEARSTYNE, S C | SYLVESTER, WILLIAM S | | | $0.00 | 71204 | 87005957 |
| 11 | 01/01/1900 | OTHER | Other - Misc. Documents | Unknown | DEARSTYNE, S C | | | $0.00 | 0 | 0 |
Payout Agreement
| No payout information available.. |