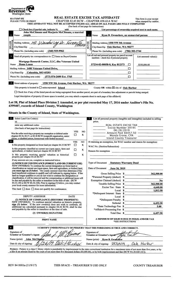
Property
Account |
| Property ID: | 424927 | Abbreviated Legal Description: | VILLAGE GRN LOT 5 BLK 2 |
| Geographic ID: | S8375-00-02005-0 | Agent Code: | |
| Type: | Real | | |
| Tax Area: | 760 - APPRAISER-S Whid Schl Dist, Special District, improved & less than 1 acre | Land Use Code | 11 |
| Open Space: | N | DFL | N |
| Historic Property: | N | Remodel Property: | N |
| Multi-Family Redevelopment: | N | | |
| Township: | | Section: | |
| Range: | |
Location |
| Address: | 1663 DORSEY DR FREELAND, WA 98249 | Mapsco: | |
| Neighborhood: | Cycle 3 | Map ID: | 313 |
| Neighborhood CD: | 3 |
Owner |
| Name: | PETERSON, NANNETTE F | Owner ID: | 304046 |
| Mailing Address: | 1663 DORSEY DR FREELAND, WA 98249 | % Ownership: | 100.0000000000% |
| | | Exemptions: | |
Taxes and Assessment Details
Values
| (+) Improvement Homesite Value: | + | $0 | |
| (+) Improvement Non-Homesite Value: | + | $419,761 | |
| (+) Land Homesite Value: | + | $0 | |
| (+) Land Non-Homesite Value: | + | $330,000 | |
| (+) Curr Use (HS): | + | $0 | $0 |
| (+) Curr Use (NHS): | + | $0 | $0 |
| | | -------------------------- | |
| (=) Market Value: | = | $749,761 | |
| (–) Productivity Loss: | – | $0 | |
| | | -------------------------- | |
| (=) Subtotal: | = | $749,761 | |
| (+) Senior Appraised Value: | + | $0 | |
| (+) Non-Senior Appraised Value: | + | $749,761 | |
| | | -------------------------- | |
| (=) Total Appraised Value: | = | $749,761 | |
| (–) Senior Exemption Loss: | – | $0 | |
| (–) Exemption Loss: | – | $0 | |
| | | -------------------------- | |
| (=) Taxable Value: | = | $749,761 | |
Taxing Jurisdiction
| Owner: | PETERSON, NANNETTE F | | |
| % Ownership: | 100.0000000000% | | |
| Total Value: | $749,761 | | |
| Tax Area: | 760 - APPRAISER-S Whid Schl Dist, Special District, improved & less than 1 acre |
| CF | Conservation Futures | 0.0316035091 | $749,761 | $749,761 | $23.70 | | |
| FIRE3 | Fire & Rescue Dist #3 S Whidbey GEN | 1.2004855531 | $749,761 | $749,761 | $900.08 | | |
| HOBOND | Hospital BOND | 0.1910887512 | $749,761 | $749,761 | $143.27 | | |
| HOGEN | Hospital GEN | 0.3902502903 | $749,761 | $749,761 | $292.59 | | |
| CE | County Current Expense | 0.3708482477 | $749,761 | $749,761 | $278.05 | | |
| CR | County Roads | 0.4584763726 | $749,761 | $749,761 | $343.75 | | |
| ISLANDEMS | Hospital GEN (EMS) | 0.5000000000 | $749,761 | $749,761 | $374.88 | | |
| LIB | Library Sno-Isle GEN | 0.3153421757 | $749,761 | $749,761 | $236.43 | | |
| PORTWHID | Port of S Whidbey GEN | 0.1094540357 | $749,761 | $749,761 | $82.06 | | |
| SCH206BOND | School 206 BOND | 0.3161759235 | $749,761 | $749,761 | $237.06 | | |
| SCH206MO | School 206 Enrichment | 0.4547169547 | $749,761 | $749,761 | $340.93 | | |
| ST | State School | 1.3035497053 | $749,761 | $749,761 | $977.35 | | |
| ST2 | State School Part 2 | 0.8169543533 | $749,761 | $749,761 | $612.52 | | |
| SWHIDPRBD | P & R S Whidbey BOND | 0.0152817568 | $749,761 | $749,761 | $11.46 | | |
| SWHIDPRBD2 | P & R S Whidbey BOND2 | 0.0138911264 | $749,761 | $749,761 | $10.42 | | |
| SWHIDPRMT | P & R S Whidbey GEN | 0.2053334452 | $749,761 | $749,761 | $153.95 | | |
| | Total Tax Rate: | 6.6934522006 | | | | | |
| | | | | Taxes w/Current Exemptions: | $5,018.50 | | |
| | | | | Taxes w/o Exemptions: | $5,018.50 | | |
Improvement / Building
| Improvement #1: | RESIDENTIAL | State Code: | Y | 2828.0 sqft | Value: | $419,761 |
| Bathrooms: | 3 | Bedrooms: | 2 | | Ceiling: | DRYWALL PAINTED | Exterior Wall/Cover: | WOOD SIDING | | Floor Covering: | HARDWOOD/CARP 60-40 | Floor Structure: | WOOD W/SUBFLOOR | | Foundation: | CONCRETE | Heating: | WALL HEAT ELECTRIC | | Interior Finish: | DRYWALL PAINT | Plumbing Fixture Cnt: | 13 | | Roof Slope: | 6" IN 12" | Roof Structure/Cover: | CJ ASPHALT |
|
| | Type | Description | Class CD | Sub Class CD | Year Built | Area |
| | BAS | BASE/MAIN FLOOR | 3 | 0 | 1993 | 1414.0 |
| | OP4 | OPEN PORCH W/CEILING-ROOF | 3 | 0 | 1993 | 30.0 |
| | AGR | ATTACHED GARAGE | 3 | 0 | 1993 | 400.0 |
| | OWP | OPEN WOOD PORCH W/STEPS | 3 | 0 | 1993 | 440.0 |
| | DWN | DOWNSTAIRS LIVING AREA | 3 | 0 | 1993 | 1414.0 |
| | OP1 | OPEN PORCH SLAB | 3 | 0 | 1993 | 520.0 |
Sketch
Property Image
Land
| 1 | 14 | SQ (08001-12000) | 0.0000 | 0.00 | 0.00 | 0.00 | 1.00 | $330,000 | $0 |
Roll Value History
| 2026 | N/A | N/A | N/A | N/A | N/A |
| 2025 | $419,761 | $330,000 | $0 | $749,761 | $749,761 |
| 2024 | $423,288 | $300,000 | $0 | $723,288 | $723,288 |
| 2023 | $427,051 | $350,000 | $0 | $777,051 | $777,051 |
| 2022 | $329,416 | $300,000 | $0 | $629,416 | $629,416 |
| 2021 | $293,457 | $190,000 | $0 | $483,457 | $483,457 |
| 2020 | $286,357 | $160,000 | $0 | $446,357 | $446,357 |
| 2019 | $216,514 | $190,000 | $0 | $406,514 | $406,514 |
| 2018 | $217,164 | $150,000 | $0 | $367,164 | $367,164 |
| 2017 | $218,464 | $140,000 | $0 | $358,464 | $358,464 |
| 2016 | $221,065 | $90,000 | $0 | $311,065 | $311,065 |
| 2015 | $222,220 | $90,000 | $0 | $312,220 | $312,220 |
| 2014 | $224,929 | $90,000 | $0 | $314,929 | $314,929 |
| 2013 | $214,261 | $90,000 | $0 | $304,261 | $304,261 |
| 2012 | $216,973 | $106,250 | $0 | $323,223 | $323,223 |
| 2011 | $219,682 | $125,000 | $0 | $344,682 | $344,682 |
| 2010 | $222,730 | $125,000 | $0 | $347,730 | $347,730 |
| 2009 | $232,296 | $140,000 | $0 | $372,296 | $372,296 |
| 2008 | $235,065 | $164,826 | $0 | $399,891 | $399,891 |
| 2007 | $224,722 | $164,826 | $0 | $389,548 | $389,548 |
Deed and Sales History
| 1 | 04/26/2022 | WD | Warranty Deed | MERRITT, KIMBERLY J | PETERSON, NANNETTE F | | | $799,000.00 | 52942 | 4544516 |
| 2 | 07/18/2019 | QCD | Quit Claim Deed | HAWKS, JANET L | MERRITT, KIMBERLY J | | | $130,000.00 | 39515 | 4467757 |
| 3 | 04/28/2015 | WD | Warranty Deed | JOHNSON, THERESA MARIE | HAWKS, JANET L | | | $300,000.00 | 19432 | 4377824 |
| 4 | 02/04/2009 | QCD | Quit Claim Deed | JOHNSON, THERESA M | JOHNSON, THERESA MARIE | | | $0.00 | 90532 | 4246272 |
| 5 | 05/01/1996 | WD | Warranty Deed | SWARTZ, JERRY W | JOHNSON, THERESA M | | | $171,000.00 | 61705 | 96008438 |
| 6 | 05/01/1993 | WD | Warranty Deed | HENNESSEY, JOHN P | SWARTZ, JERRY W | | | $13,000.00 | 32078 | 93010730 |
| 7 | 08/01/1990 | WD | Warranty Deed | WHYTE, SUSAN B | HENNESSEY, JOHN P | | | $24,000.00 | 4846 | 90016065 |
| 8 | 04/01/1982 | CD | DNU - Correction Deed | WHYTE, SUSAN B | WHYTE, SUSAN B | | | $1.00 | 21031 | 395857 |
| 9 | 01/01/1900 | OTHER | Other - Misc. Documents | Unknown | WHYTE, SUSAN B | | | $0.00 | 0 | 0 |
Payout Agreement
| No payout information available.. |