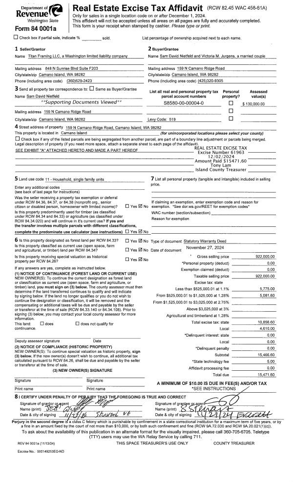
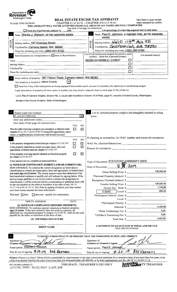
Property
Account |
| Property ID: | 425221 | Abbreviated Legal Description: | WATERLOO AC 1 S 150.80' LOT 9 MEAS ALG E LINE |
| Geographic ID: | S8380-00-00009-1 | Agent Code: | |
| Type: | Real | | |
| Tax Area: | 112 - APPRAISER-OH Schl Dist, outside OH, improved, greater than 1 acre | Land Use Code | 11 |
| Open Space: | N | DFL | N |
| Historic Property: | N | Remodel Property: | N |
| Multi-Family Redevelopment: | N | | |
| Township: | | Section: | |
| Range: | |
Location |
| Address: | 1979 BONAPARTE LN OAK HARBOR, WA 98277 | Mapsco: | |
| Neighborhood: | Cycle 1 | Map ID: | 115 |
| Neighborhood CD: | 1 |
Owner |
| Name: | O'CONNOR, ANTHONY G | Owner ID: | 291037 |
| Mailing Address: | MICHELLE O'CONNOR 1979 BONAPARTE LN OAK HARBOR, WA 98277 | % Ownership: | 100.0000000000% |
| | | Exemptions: | |
Taxes and Assessment Details
Values
| (+) Improvement Homesite Value: | + | $0 | |
| (+) Improvement Non-Homesite Value: | + | $376,262 | |
| (+) Land Homesite Value: | + | $0 | |
| (+) Land Non-Homesite Value: | + | $200,000 | |
| (+) Curr Use (HS): | + | $0 | $0 |
| (+) Curr Use (NHS): | + | $0 | $0 |
| | | -------------------------- | |
| (=) Market Value: | = | $576,262 | |
| (–) Productivity Loss: | – | $0 | |
| | | -------------------------- | |
| (=) Subtotal: | = | $576,262 | |
| (+) Senior Appraised Value: | + | $0 | |
| (+) Non-Senior Appraised Value: | + | $576,262 | |
| | | -------------------------- | |
| (=) Total Appraised Value: | = | $576,262 | |
| (–) Senior Exemption Loss: | – | $0 | |
| (–) Exemption Loss: | – | $0 | |
| | | -------------------------- | |
| (=) Taxable Value: | = | $576,262 | |
Taxing Jurisdiction
| Owner: | O'CONNOR, ANTHONY G | | |
| % Ownership: | 100.0000000000% | | |
| Total Value: | $576,262 | | |
| Tax Area: | 112 - APPRAISER-OH Schl Dist, outside OH, improved, greater than 1 acre |
| CF | Conservation Futures | 0.0316035091 | $576,262 | $576,262 | $18.21 | | |
| CEM1 | Cemetery #1 | 0.0040320932 | $576,262 | $576,262 | $2.32 | | |
| FIRE2 | Fire & Rescue Dist #2 N Whidbey GEN | 0.5475949600 | $576,262 | $576,262 | $315.56 | | |
| HOBOND | Hospital BOND | 0.1910887512 | $576,262 | $576,262 | $110.12 | | |
| HOGEN | Hospital GEN | 0.3902502903 | $576,262 | $576,262 | $224.89 | | |
| CE | County Current Expense | 0.3708482477 | $576,262 | $576,262 | $213.71 | | |
| CR | County Roads | 0.4584763726 | $576,262 | $576,262 | $264.20 | | |
| ISLANDEMS | Hospital GEN (EMS) | 0.5000000000 | $576,262 | $576,262 | $288.13 | | |
| LIB | Library Sno-Isle GEN | 0.3153421757 | $576,262 | $576,262 | $181.72 | | |
| NWHIDPRMT | P & R N Whidbey GEN | 0.2004466701 | $576,262 | $576,262 | $115.51 | | |
| SCH201MO | School 201 Enrichment | 1.8559231640 | $576,262 | $576,262 | $1,069.50 | | |
| ST | State School | 1.3035497053 | $576,262 | $576,262 | $751.19 | | |
| ST2 | State School Part 2 | 0.8169543533 | $576,262 | $576,262 | $470.78 | | |
| | Total Tax Rate: | 6.9861102925 | | | | | |
| | | | | Taxes w/Current Exemptions: | $4,025.84 | | |
| | | | | Taxes w/o Exemptions: | $4,025.84 | | |
Improvement / Building
| Improvement #1: | RESIDENTIAL | State Code: | Y | 2556.0 sqft | Value: | $376,262 |
| Bathrooms: | 3 | Bedrooms: | 3 | | Ceiling: | DRY WALL SPRAYED | Cooling: | HEAT PUMP/CONV/V | | Exterior Wall/Cover: | WOOD SIDING | Floor Covering: | CARPET/VINYL 80-20 | | Floor Structure: | WOOD W/SUBFLOOR | Foundation: | CONCRETE | | Interior Finish: | DRYWALL PAINT | Plumbing Fixture Cnt: | 9 | | Roof Slope: | 4" IN 12" | Roof Structure/Cover: | CJ ASPHALT |
|
| | Type | Description | Class CD | Sub Class CD | Year Built | Area |
| | BAS | BASE/MAIN FLOOR | 3 | 0 | 1972 | 2556.0 |
| | OWR | OPEN WOOD PORCH W/STEPS/ROOF | 3 | 0 | 1972 | 225.0 |
| | AGR | ATTACHED GARAGE | 3 | 0 | 1972 | 430.0 |
| | DGR | DETACHED GARAGE | 3 | 0 | 1972 | 168.0 |
| | DGR | DETACHED GARAGE | 3 | 0 | 1972 | 168.0 |
| | OWP | OPEN WOOD PORCH W/STEPS | 3 | 0 | 1972 | 140.0 |
Sketch
Property Image
Land
| 1 | 16 | AC (00.51-01.00) | 0.0000 | 0.00 | 0.00 | 0.00 | 1.00 | $200,000 | $0 |
Roll Value History
| 2026 | N/A | N/A | N/A | N/A | N/A |
| 2025 | $376,262 | $200,000 | $0 | $576,262 | $576,262 |
| 2024 | $380,782 | $200,000 | $0 | $580,782 | $580,782 |
| 2023 | $351,767 | $220,000 | $0 | $571,767 | $571,767 |
| 2022 | $322,255 | $220,000 | $0 | $542,255 | $542,255 |
| 2021 | $283,477 | $120,000 | $0 | $403,477 | $403,477 |
| 2020 | $276,688 | $100,000 | $0 | $376,688 | $376,688 |
| 2019 | $213,961 | $160,000 | $0 | $373,961 | $373,961 |
| 2018 | $214,562 | $140,000 | $0 | $354,562 | $354,562 |
| 2017 | $106,501 | $120,000 | $0 | $226,501 | $226,501 |
| 2016 | $108,275 | $90,000 | $0 | $198,275 | $198,275 |
| 2015 | $110,051 | $90,000 | $0 | $200,051 | $200,051 |
| 2014 | $111,826 | $90,000 | $0 | $201,826 | $201,826 |
| 2013 | $113,600 | $102,000 | $0 | $215,600 | $215,600 |
| 2012 | $115,376 | $102,000 | $0 | $217,376 | $217,376 |
| 2011 | $126,354 | $120,000 | $0 | $246,354 | $246,354 |
| 2010 | $133,853 | $120,000 | $0 | $253,853 | $253,853 |
| 2009 | $139,621 | $120,000 | $0 | $259,621 | $259,621 |
| 2008 | $140,198 | $123,975 | $0 | $264,173 | $264,173 |
| 2007 | $142,088 | $123,975 | $0 | $266,063 | $266,063 |
Deed and Sales History
| 1 | 07/22/2019 | WD | Warranty Deed | KIEPE JR, CARL T | O'CONNOR, ANTHONY G | | | $470,000.00 | 39540 | 4467883 |
| 2 | 08/09/2013 | WD | Warranty Deed | BRANDHORST, JIM D | KIEPE JR, CARL T | | | $203,900.00 | 12505 | 4346807 |
| 3 | 05/04/2007 | WD | Warranty Deed | ERVIN, SAMUEL D | BRANDHORST, JIM D | | | $150,000.00 | 71542 | 4201705 |
| 4 | 01/01/1900 | OTHER | Other - Misc. Documents | Unknown | ERVIN, SAMUEL D | | | $0.00 | 0 | 0 |
Payout Agreement
| No payout information available.. |