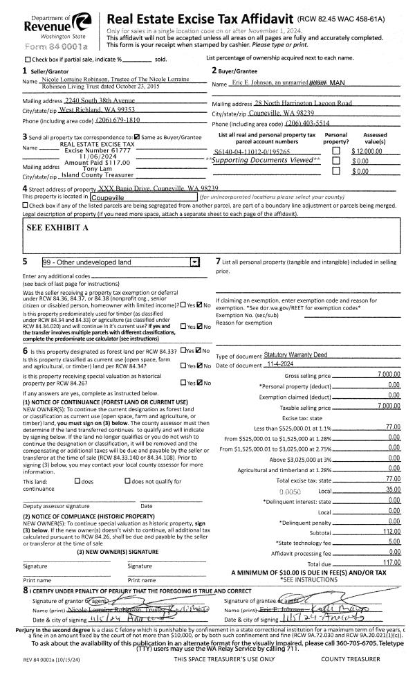
Property
Account |
| Property ID: | 425258 | Abbreviated Legal Description: | WATERLOO AC 2 LOT 1 |
| Geographic ID: | S8380-02-00001-0 | Agent Code: | |
| Type: | Real | | |
| Tax Area: | 112 - APPRAISER-OH Schl Dist, outside OH, improved, greater than 1 acre | Land Use Code | 11 |
| Open Space: | N | DFL | N |
| Historic Property: | N | Remodel Property: | N |
| Multi-Family Redevelopment: | N | | |
| Township: | | Section: | |
| Range: | |
Location |
| Address: | 1311 NAPOLEON DR OAK HARBOR, WA 98277 | Mapsco: | |
| Neighborhood: | Cycle 1 | Map ID: | 113 |
| Neighborhood CD: | 1 |
Owner |
| Name: | RICHARD, EDWARD C | Owner ID: | 80922 |
| Mailing Address: | 1311 NAPOLEON DR OAK HARBOR, WA 98277-8405 | % Ownership: | 100.0000000000% |
| | | Exemptions: | |
Taxes and Assessment Details
Values
| (+) Improvement Homesite Value: | + | $0 | |
| (+) Improvement Non-Homesite Value: | + | $37,181 | |
| (+) Land Homesite Value: | + | $0 | |
| (+) Land Non-Homesite Value: | + | $200,000 | |
| (+) Curr Use (HS): | + | $0 | $0 |
| (+) Curr Use (NHS): | + | $0 | $0 |
| | | -------------------------- | |
| (=) Market Value: | = | $237,181 | |
| (–) Productivity Loss: | – | $0 | |
| | | -------------------------- | |
| (=) Subtotal: | = | $237,181 | |
| (+) Senior Appraised Value: | + | $0 | |
| (+) Non-Senior Appraised Value: | + | $237,181 | |
| | | -------------------------- | |
| (=) Total Appraised Value: | = | $237,181 | |
| (–) Senior Exemption Loss: | – | $0 | |
| (–) Exemption Loss: | – | $0 | |
| | | -------------------------- | |
| (=) Taxable Value: | = | $237,181 | |
Taxing Jurisdiction
| Owner: | RICHARD, EDWARD C | | |
| % Ownership: | 100.0000000000% | | |
| Total Value: | $237,181 | | |
| Tax Area: | 112 - APPRAISER-OH Schl Dist, outside OH, improved, greater than 1 acre |
| CF | Conservation Futures | 0.0316035091 | $237,181 | $237,181 | $7.50 | | |
| CEM1 | Cemetery #1 | 0.0040320932 | $237,181 | $237,181 | $0.96 | | |
| FIRE2 | Fire & Rescue Dist #2 N Whidbey GEN | 0.5475949600 | $237,181 | $237,181 | $129.88 | | |
| HOBOND | Hospital BOND | 0.1910887512 | $237,181 | $237,181 | $45.32 | | |
| HOGEN | Hospital GEN | 0.3902502903 | $237,181 | $237,181 | $92.56 | | |
| CE | County Current Expense | 0.3708482477 | $237,181 | $237,181 | $87.96 | | |
| CR | County Roads | 0.4584763726 | $237,181 | $237,181 | $108.74 | | |
| ISLANDEMS | Hospital GEN (EMS) | 0.5000000000 | $237,181 | $237,181 | $118.59 | | |
| LIB | Library Sno-Isle GEN | 0.3153421757 | $237,181 | $237,181 | $74.79 | | |
| NWHIDPRMT | P & R N Whidbey GEN | 0.2004466701 | $237,181 | $237,181 | $47.54 | | |
| SCH201MO | School 201 Enrichment | 1.8559231640 | $237,181 | $237,181 | $440.19 | | |
| ST | State School | 1.3035497053 | $237,181 | $237,181 | $309.18 | | |
| ST2 | State School Part 2 | 0.8169543533 | $237,181 | $237,181 | $193.77 | | |
| | Total Tax Rate: | 6.9861102925 | | | | | |
| | | | | Taxes w/Current Exemptions: | $1,656.98 | | |
| | | | | Taxes w/o Exemptions: | $1,656.98 | | |
Improvement / Building
| Improvement #1: | MANUFACTURED HOME | State Code: | Y | 1616.0 sqft | Value: | $37,181 |
| Bathrooms: | 2 | Bedrooms: | 2 | | Ceiling: | PLASTER PAINTED | Cooling: | EVAP NO DUCT | | Exterior Wall/Cover: | VINYL | Floor Covering: | CARPET 100% | | Floor Structure: | SLAB ON GRADE | Foundation: | SLAB | | Heating: | FHA ELECTRIC | Interior Finish: | PLASTER | | Plumbing Fixture Cnt: | 1 | Roof Slope: | FLAT | | Roof Structure/Cover: | CJ ALUMINIUM HEAVY |   |   |
|
Sketch
Property Image
Land
| 1 | 32 | AC (03.01-09.99) | 6.4700 | 0.00 | 0.00 | 0.00 | 1.00 | $200,000 | $0 |
Roll Value History
| 2026 | N/A | N/A | N/A | N/A | N/A |
| 2025 | $37,181 | $200,000 | $0 | $237,181 | $237,181 |
| 2024 | $37,181 | $200,000 | $0 | $237,181 | $237,181 |
| 2023 | $32,330 | $220,000 | $0 | $252,330 | $252,330 |
| 2022 | $29,275 | $220,000 | $0 | $249,275 | $249,275 |
| 2021 | $25,458 | $180,000 | $0 | $205,458 | $205,458 |
| 2020 | $24,715 | $140,000 | $0 | $164,715 | $164,715 |
| 2019 | $19,466 | $220,000 | $0 | $239,466 | $239,466 |
| 2018 | $19,466 | $170,000 | $0 | $189,466 | $189,466 |
| 2017 | $44,810 | $160,000 | $0 | $204,810 | $204,810 |
| 2016 | $45,295 | $160,000 | $0 | $205,295 | $205,295 |
| 2015 | $45,780 | $150,000 | $0 | $195,780 | $195,780 |
| 2014 | $47,636 | $150,000 | $0 | $197,636 | $197,636 |
| 2013 | $49,492 | $157,221 | $0 | $206,713 | $206,713 |
| 2012 | $50,663 | $157,221 | $0 | $207,884 | $207,884 |
| 2011 | $52,826 | $174,690 | $0 | $227,516 | $227,516 |
| 2010 | $57,103 | $174,690 | $0 | $231,793 | $231,793 |
| 2009 | $78,541 | $207,040 | $0 | $285,581 | $285,581 |
| 2008 | $82,243 | $156,522 | $0 | $238,765 | $238,765 |
| 2007 | $83,843 | $156,522 | $0 | $240,365 | $240,365 |
Deed and Sales History
| 1 | 01/01/1900 | OTHER | Other - Misc. Documents | Unknown | RICHARD, EDWARD C | | | $0.00 | 0 | 0 |
Payout Agreement
| No payout information available.. |