Property
Account |
| Property ID: | 425695 | Abbreviated Legal Description: | WEST BCH VTA 2 LOT 19 |
| Geographic ID: | S8385-00-00019-0 | Agent Code: | |
| Type: | Real | | |
| Tax Area: | 119 - APPRAISER-OH Schl Dist, outside OH, vacant & 50 acres or less | Land Use Code | 99 |
| Open Space: | N | DFL | N |
| Historic Property: | N | Remodel Property: | N |
| Multi-Family Redevelopment: | N | | |
| Township: | | Section: | |
| Range: | |
Location |
| Address: | | Mapsco: | |
| Neighborhood: | Cycle 1 | Map ID: | 243 |
| Neighborhood CD: | 1 |
Owner |
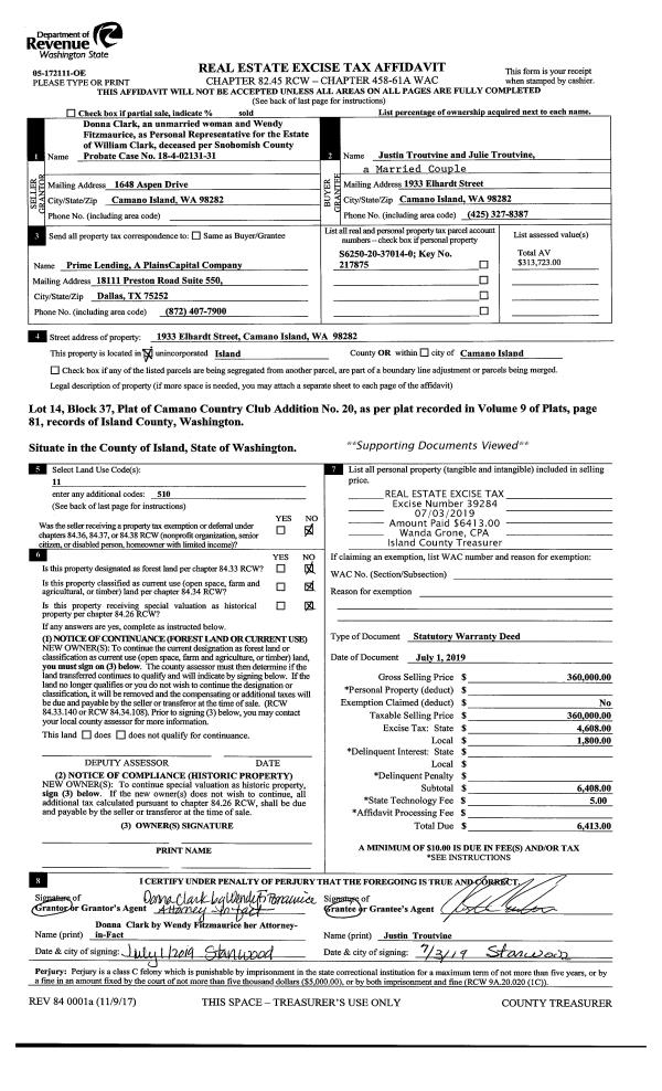
| Name: | TYHUIS TTEE, JOHN E | Owner ID: | 300415 |
| Mailing Address: | 100 W QUEEN CREEK RD #145 CHANDLER, AZ 85248 | % Ownership: | 100.0000000000% |
| | | Exemptions: | |
Taxes and Assessment Details
Values
| (+) Improvement Homesite Value: | + | $0 | |
| (+) Improvement Non-Homesite Value: | + | $0 | |
| (+) Land Homesite Value: | + | $0 | |
| (+) Land Non-Homesite Value: | + | $290,000 | |
| (+) Curr Use (HS): | + | $0 | $0 |
| (+) Curr Use (NHS): | + | $0 | $0 |
| | | -------------------------- | |
| (=) Market Value: | = | $290,000 | |
| (–) Productivity Loss: | – | $0 | |
| | | -------------------------- | |
| (=) Subtotal: | = | $290,000 | |
| (+) Senior Appraised Value: | + | $0 | |
| (+) Non-Senior Appraised Value: | + | $290,000 | |
| | | -------------------------- | |
| (=) Total Appraised Value: | = | $290,000 | |
| (–) Senior Exemption Loss: | – | $0 | |
| (–) Exemption Loss: | – | $0 | |
| | | -------------------------- | |
| (=) Taxable Value: | = | $290,000 | |
Taxing Jurisdiction
| Owner: | TYHUIS TTEE, JOHN E | | |
| % Ownership: | 100.0000000000% | | |
| Total Value: | $290,000 | | |
| Tax Area: | 119 - APPRAISER-OH Schl Dist, outside OH, vacant & 50 acres or less |
| CF | Conservation Futures | 0.0316035091 | $290,000 | $290,000 | $9.17 | | |
| CEM1 | Cemetery #1 | 0.0040320932 | $290,000 | $290,000 | $1.17 | | |
| HOBOND | Hospital BOND | 0.1910887512 | $290,000 | $290,000 | $55.42 | | |
| HOGEN | Hospital GEN | 0.3902502903 | $290,000 | $290,000 | $113.17 | | |
| CE | County Current Expense | 0.3708482477 | $290,000 | $290,000 | $107.55 | | |
| CR | County Roads | 0.4584763726 | $290,000 | $290,000 | $132.96 | | |
| ISLANDEMS | Hospital GEN (EMS) | 0.5000000000 | $290,000 | $290,000 | $145.00 | | |
| LIB | Library Sno-Isle GEN | 0.3153421757 | $290,000 | $290,000 | $91.45 | | |
| NWHIDPRMT | P & R N Whidbey GEN | 0.2004466701 | $290,000 | $290,000 | $58.13 | | |
| SCH201MO | School 201 Enrichment | 1.8559231640 | $290,000 | $290,000 | $538.22 | | |
| ST | State School | 1.3035497053 | $290,000 | $290,000 | $378.03 | | |
| ST2 | State School Part 2 | 0.8169543533 | $290,000 | $290,000 | $236.92 | | |
| | Total Tax Rate: | 6.4385153325 | | | | | |
| | | | | Taxes w/Current Exemptions: | $1,867.19 | | |
| | | | | Taxes w/o Exemptions: | $1,867.19 | | |
Improvement / Building
Sketch
| No sketches available for this property. |
Property Image
Land
| 1 | LB | LOW BANK | 0.0000 | 0.00 | 60.00 | 0.00 | 1.00 | $290,000 | $0 |
Roll Value History
| 2026 | N/A | N/A | N/A | N/A | N/A |
| 2025 | $0 | $290,000 | $0 | $290,000 | $290,000 |
| 2024 | $0 | $290,000 | $0 | $290,000 | $290,000 |
| 2023 | $0 | $290,000 | $0 | $290,000 | $290,000 |
| 2022 | $0 | $250,000 | $0 | $250,000 | $250,000 |
| 2021 | $0 | $200,000 | $0 | $200,000 | $200,000 |
| 2020 | $0 | $200,000 | $0 | $200,000 | $200,000 |
| 2019 | $0 | $210,000 | $0 | $210,000 | $210,000 |
| 2018 | $0 | $200,000 | $0 | $200,000 | $200,000 |
| 2017 | $0 | $5,000 | $0 | $5,000 | $5,000 |
| 2016 | $0 | $5,000 | $0 | $5,000 | $5,000 |
| 2015 | $0 | $5,000 | $0 | $5,000 | $5,000 |
| 2014 | $0 | $8,000 | $0 | $8,000 | $8,000 |
| 2013 | $0 | $8,000 | $0 | $8,000 | $8,000 |
| 2012 | $0 | $8,000 | $0 | $8,000 | $8,000 |
| 2011 | $0 | $27,302 | $0 | $27,302 | $27,302 |
| 2010 | $0 | $27,302 | $0 | $27,302 | $27,302 |
| 2009 | $0 | $39,244 | $0 | $39,244 | $39,244 |
| 2008 | $0 | $39,244 | $0 | $39,244 | $39,244 |
| 2007 | $0 | $51,020 | $0 | $51,020 | $51,020 |
Deed and Sales History
| 1 | 07/14/2021 | WD | Warranty Deed | TYHUIS, JOHN | TYHUIS TTEE, JOHN E | | | $0.00 | 49399 | 4525647 |
| 2 | 08/06/2019 | WD | Warranty Deed | PROSPERITY INVESTMENTS F L P | TYHUIS, JOHN | | | $200,000.00 | 40147 | 4470869 |
| 3 | 12/29/2004 | EZ | Easement | PROSPERITY INVESTMENTS F. L. P | PROSPERITY INVESTMENTS F. L. P | | | $4,360.00 | 46049 | 4122037 |
| 4 | 12/28/2004 | QCD | Quit Claim Deed | HANSHAW, CATHY | PROSPERITY INVESTMENTS F. L. P | | | $0.00 | 45981 | 4121691 |
| 5 | 09/01/1994 | QCD | Quit Claim Deed | BOUFFARD, THOMAS F | HANSHAW, CATHY | | | $35,000.00 | 43623 | 94019138 |
| 6 | 09/01/1990 | WD | Warranty Deed | , | BOUFFARD, THOMAS F | | | $25,000.00 | 5511 | 90018420 |
| 7 | 01/01/1900 | OTHER | Other - Misc. Documents | Unknown | , | | | $0.00 | 0 | 0 |
Payout Agreement
| No payout information available.. |