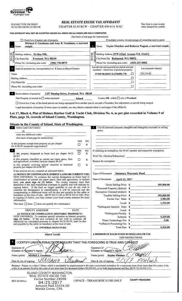
Property
Account |
| Property ID: | 425926 | Abbreviated Legal Description: | WEST RIDGE LOT 1 |
| Geographic ID: | S8390-00-00001-0 | Agent Code: | |
| Type: | Real | | |
| Tax Area: | 100 - APPRAISER-OH Schl Dist, in OH | Land Use Code | 11 |
| Open Space: | N | DFL | N |
| Historic Property: | N | Remodel Property: | N |
| Multi-Family Redevelopment: | N | | |
| Township: | | Section: | |
| Range: | |
Location |
| Address: | | Mapsco: | |
| Neighborhood: | Cycle 1 | Map ID: | 118 |
| Neighborhood CD: | 1 |
Owner |
| Name: | HAWRYLUK, JACOB P | Owner ID: | 296903 |
| Mailing Address: | JUSTIN V HAWRYLUK 1184 RIDGEWAY DR OAK HARBOR, WA 98277 | % Ownership: | 100.0000000000% |
| | | Exemptions: | |
Taxes and Assessment Details
Values
| (+) Improvement Homesite Value: | + | $0 | |
| (+) Improvement Non-Homesite Value: | + | $499,164 | |
| (+) Land Homesite Value: | + | $0 | |
| (+) Land Non-Homesite Value: | + | $190,000 | |
| (+) Curr Use (HS): | + | $0 | $0 |
| (+) Curr Use (NHS): | + | $0 | $0 |
| | | -------------------------- | |
| (=) Market Value: | = | $689,164 | |
| (–) Productivity Loss: | – | $0 | |
| | | -------------------------- | |
| (=) Subtotal: | = | $689,164 | |
| (+) Senior Appraised Value: | + | $0 | |
| (+) Non-Senior Appraised Value: | + | $689,164 | |
| | | -------------------------- | |
| (=) Total Appraised Value: | = | $689,164 | |
| (–) Senior Exemption Loss: | – | $0 | |
| (–) Exemption Loss: | – | $0 | |
| | | -------------------------- | |
| (=) Taxable Value: | = | $689,164 | |
Taxing Jurisdiction
| Owner: | HAWRYLUK, JACOB P | | |
| % Ownership: | 100.0000000000% | | |
| Total Value: | $689,164 | | |
| Tax Area: | 100 - APPRAISER-OH Schl Dist, in OH |
| CF | Conservation Futures | 0.0316035091 | $689,164 | $689,164 | $21.78 | | |
| CEM1 | Cemetery #1 | 0.0040320932 | $689,164 | $689,164 | $2.78 | | |
| COH | City of Oak Harbor | 2.3001546061 | $689,164 | $689,164 | $1,585.18 | | |
| OAKBOND | City of Oak Harbor BOND | 0.1926904192 | $689,164 | $689,164 | $132.80 | | |
| HOBOND | Hospital BOND | 0.1910887512 | $689,164 | $689,164 | $131.69 | | |
| HOGEN | Hospital GEN | 0.3902502903 | $689,164 | $689,164 | $268.95 | | |
| CE | County Current Expense | 0.3708482477 | $689,164 | $689,164 | $255.58 | | |
| ISLANDEMS | Hospital GEN (EMS) | 0.5000000000 | $689,164 | $689,164 | $344.58 | | |
| LIB | Library Sno-Isle GEN | 0.3153421757 | $689,164 | $689,164 | $217.32 | | |
| NWHIDPRMT | P & R N Whidbey GEN | 0.2004466701 | $689,164 | $689,164 | $138.14 | | |
| SCH201MO | School 201 Enrichment | 1.8559231640 | $689,164 | $689,164 | $1,279.04 | | |
| ST | State School | 1.3035497053 | $689,164 | $689,164 | $898.36 | | |
| ST2 | State School Part 2 | 0.8169543533 | $689,164 | $689,164 | $563.02 | | |
| | Total Tax Rate: | 8.4728839852 | | | | | |
| | | | | Taxes w/Current Exemptions: | $5,839.22 | | |
| | | | | Taxes w/o Exemptions: | $5,839.22 | | |
Improvement / Building
| Improvement #1: | RESIDENTIAL | State Code: | Y | 2372.0 sqft | Value: | $499,164 |
| Bathrooms: | 2.5 | Bedrooms: | 2 | | Ceiling: | DRYWALL PAINTED | Cooling: | HEAT PUMP/CONV/V | | Exterior Wall/Cover: | CEMENT FIBER | Floor Covering: | HARDWOOD 100% | | Floor Structure: | WOOD W/SUBFLOOR | Foundation: | CONCRETE | | Interior Finish: | DRYWALL PAINT | Plumbing Fixture Cnt: | 13 | | Roof Slope: | 3" IN 12" | Roof Structure/Cover: | CJ ASPHALT |
|
| | Type | Description | Class CD | Sub Class CD | Year Built | Area |
| | BAS | BASE/MAIN FLOOR | 4 | 0 | 2017 | 1033.0 |
| | UPS | UPPER STORY | 4 | 0 | 2017 | 1339.0 |
| | AGR | ATTACHED GARAGE | 4 | 0 | 2017 | 528.0 |
Sketch
Property Image
Land
| 1 | 14 | SQ (08001-12000) | 0.0000 | 0.00 | 0.00 | 0.00 | 1.00 | $190,000 | $0 |
Roll Value History
| 2026 | N/A | N/A | N/A | N/A | N/A |
| 2025 | $499,164 | $190,000 | $0 | $689,164 | $689,164 |
| 2024 | $503,223 | $190,000 | $0 | $693,223 | $693,223 |
| 2023 | $505,899 | $190,000 | $0 | $695,899 | $695,899 |
| 2022 | $461,784 | $190,000 | $0 | $651,784 | $651,784 |
| 2021 | $404,771 | $160,000 | $0 | $564,771 | $564,771 |
| 2020 | $393,054 | $135,000 | $0 | $528,054 | $528,054 |
| 2019 | $298,214 | $150,000 | $0 | $448,214 | $448,214 |
| 2018 | $298,974 | $130,000 | $0 | $428,974 | $428,974 |
| 2017 | $0 | $50,000 | $0 | $50,000 | $50,000 |
| 2016 | $0 | $50,000 | $0 | $50,000 | $50,000 |
| 2015 | $0 | $55,000 | $0 | $55,000 | $55,000 |
| 2014 | $0 | $55,000 | $0 | $55,000 | $55,000 |
| 2013 | $0 | $50,000 | $0 | $50,000 | $50,000 |
| 2012 | $0 | $65,000 | $0 | $65,000 | $65,000 |
| 2011 | $0 | $50,000 | $0 | $50,000 | $50,000 |
| 2010 | $0 | $50,000 | $0 | $50,000 | $50,000 |
| 2009 | $0 | $65,000 | $0 | $65,000 | $65,000 |
| 2008 | $0 | $75,000 | $0 | $75,000 | $75,000 |
| 2007 | $0 | $75,000 | $0 | $75,000 | $75,000 |
Deed and Sales History
| 1 | 10/01/2020 | WD | Warranty Deed | THE RUBICON GROUP LLC | HAWRYLUK, JACOB P | | | $528,888.00 | 45191 | 4499166 |
| 2 | 03/10/2017 | WD | Warranty Deed | JORDAN, STACI L G | THE RUBICON GROUP LLC | | | $37,000.00 | 28436 | 4418820 |
| 3 | 11/01/1991 | PRD | Personal Representatives Deed | GOWARD, CLARENCE E | JORDAN, STACI L | | | $0.00 | 23706 | 92017909 |
| 4 | 01/01/1900 | OTHER | Other - Misc. Documents | Unknown | GOWARD, CLARENCE E | | | $0.00 | 0 | 0 |
Payout Agreement
| No payout information available.. |