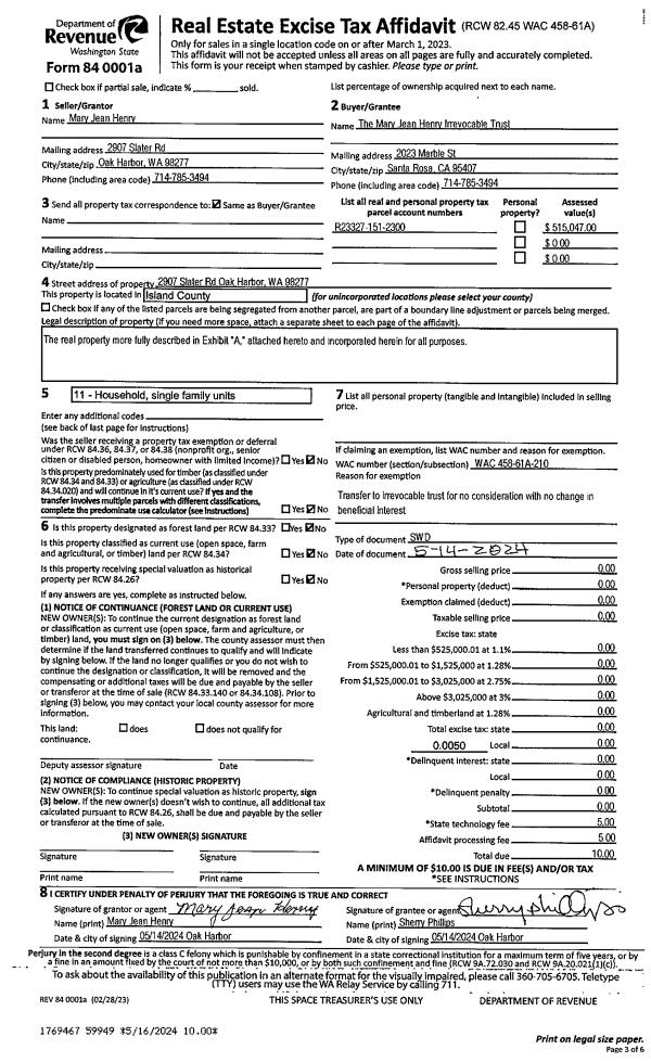
Property
Account |
| Property ID: | 426275 | Abbreviated Legal Description: | WEST RIDGE LOT 36 & PT TR E: BG SWCR LOT 36 S23' E PAR/TO SLN LOT 36 TP S31*W FR SECR LOT 36 N31*E TO SECR LOT 36 W TPB |
| Geographic ID: | S8390-00-00036-0 | Agent Code: | |
| Type: | Real | | |
| Tax Area: | 110 - APPRAISER-OH Schl Dist, outside OH, improved & 1 acre or less | Land Use Code | 11 |
| Open Space: | N | DFL | N |
| Historic Property: | N | Remodel Property: | N |
| Multi-Family Redevelopment: | N | | |
| Township: | | Section: | |
| Range: | |
Location |
| Address: | 1004 RIDGEWAY DR OAK HARBOR, WA 98277 | Mapsco: | |
| Neighborhood: | Cycle 1 | Map ID: | 118 |
| Neighborhood CD: | 1 |
Owner |
| Name: | KRUG, ADELA A | Owner ID: | 81034 |
| Mailing Address: | 1004 RIDGEWAY DR OAK HARBOR, WA 98277-8430 | % Ownership: | 100.0000000000% |
| | | Exemptions: | |
Taxes and Assessment Details
Values
| (+) Improvement Homesite Value: | + | $0 | |
| (+) Improvement Non-Homesite Value: | + | $130,988 | |
| (+) Land Homesite Value: | + | $0 | |
| (+) Land Non-Homesite Value: | + | $190,000 | |
| (+) Curr Use (HS): | + | $0 | $0 |
| (+) Curr Use (NHS): | + | $0 | $0 |
| | | -------------------------- | |
| (=) Market Value: | = | $320,988 | |
| (–) Productivity Loss: | – | $0 | |
| | | -------------------------- | |
| (=) Subtotal: | = | $320,988 | |
| (+) Senior Appraised Value: | + | $0 | |
| (+) Non-Senior Appraised Value: | + | $320,988 | |
| | | -------------------------- | |
| (=) Total Appraised Value: | = | $320,988 | |
| (–) Senior Exemption Loss: | – | $0 | |
| (–) Exemption Loss: | – | $0 | |
| | | -------------------------- | |
| (=) Taxable Value: | = | $320,988 | |
Taxing Jurisdiction
| Owner: | KRUG, ADELA A | | |
| % Ownership: | 100.0000000000% | | |
| Total Value: | $320,988 | | |
| Tax Area: | 110 - APPRAISER-OH Schl Dist, outside OH, improved & 1 acre or less |
| CF | Conservation Futures | 0.0316035091 | $320,988 | $320,988 | $10.14 | | |
| CEM1 | Cemetery #1 | 0.0040320932 | $320,988 | $320,988 | $1.29 | | |
| FIRE2 | Fire & Rescue Dist #2 N Whidbey GEN | 0.5475949600 | $320,988 | $320,988 | $175.77 | | |
| HOBOND | Hospital BOND | 0.1910887512 | $320,988 | $320,988 | $61.34 | | |
| HOGEN | Hospital GEN | 0.3902502903 | $320,988 | $320,988 | $125.27 | | |
| CE | County Current Expense | 0.3708482477 | $320,988 | $320,988 | $119.04 | | |
| CR | County Roads | 0.4584763726 | $320,988 | $320,988 | $147.17 | | |
| ISLANDEMS | Hospital GEN (EMS) | 0.5000000000 | $320,988 | $320,988 | $160.49 | | |
| LIB | Library Sno-Isle GEN | 0.3153421757 | $320,988 | $320,988 | $101.22 | | |
| NWHIDPRMT | P & R N Whidbey GEN | 0.2004466701 | $320,988 | $320,988 | $64.34 | | |
| SCH201MO | School 201 Enrichment | 1.8559231640 | $320,988 | $320,988 | $595.73 | | |
| ST | State School | 1.3035497053 | $320,988 | $320,988 | $418.42 | | |
| ST2 | State School Part 2 | 0.8169543533 | $320,988 | $320,988 | $262.23 | | |
| | Total Tax Rate: | 6.9861102925 | | | | | |
| | | | | Taxes w/Current Exemptions: | $2,242.45 | | |
| | | | | Taxes w/o Exemptions: | $2,242.45 | | |
Improvement / Building
| Improvement #1: | RESIDENTIAL | State Code: | Y | 1129.5 sqft | Value: | $130,988 |
| Bathrooms: | 1 | Bedrooms: | 3 | | Ceiling: | DRY WALL SPRAYED | Exterior Wall/Cover: | PLY/HARDBOARD T-111 | | Floor Covering: | CARPET/VINYL 80-20 | Floor Structure: | WOOD W/SUBFLOOR | | Foundation: | CONCRETE | Heating: | BASEBOARD ELECTRIC | | Interior Finish: | DRYWALL PAINT | Plumbing Fixture Cnt: | 6 | | Roof Slope: | 4" IN 12" | Roof Structure/Cover: | CJ ASPHALT |
|
| | Type | Description | Class CD | Sub Class CD | Year Built | Area |
| | BAS | BASE/MAIN FLOOR | 3 | 0 | 1974 | 1129.5 |
| | AGR | ATTACHED GARAGE | 3 | 0 | 1974 | 287.5 |
| | OWP | OPEN WOOD PORCH W/STEPS | 3 | 0 | 1974 | 96.0 |
Sketch
Property Image
Land
| 1 | 14 | SQ (08001-12000) | 0.0000 | 0.00 | 0.00 | 0.00 | 1.00 | $190,000 | $0 |
Roll Value History
| 2026 | N/A | N/A | N/A | N/A | N/A |
| 2025 | $130,988 | $190,000 | $0 | $320,988 | $320,988 |
| 2024 | $136,200 | $190,000 | $0 | $326,200 | $326,200 |
| 2023 | $138,538 | $190,000 | $0 | $328,538 | $328,538 |
| 2022 | $127,566 | $190,000 | $0 | $317,566 | $317,566 |
| 2021 | $112,769 | $160,000 | $0 | $272,769 | $272,769 |
| 2020 | $110,408 | $135,000 | $0 | $245,408 | $245,408 |
| 2019 | $79,152 | $150,000 | $0 | $229,152 | $229,152 |
| 2018 | $79,465 | $130,000 | $0 | $209,465 | $209,465 |
| 2017 | $80,143 | $120,000 | $0 | $200,143 | $200,143 |
| 2016 | $81,396 | $80,000 | $0 | $161,396 | $161,396 |
| 2015 | $82,649 | $70,000 | $0 | $152,649 | $152,649 |
| 2014 | $83,901 | $60,000 | $0 | $143,901 | $143,901 |
| 2013 | $85,153 | $50,000 | $0 | $135,153 | $135,153 |
| 2012 | $86,406 | $65,000 | $0 | $151,406 | $151,406 |
| 2011 | $89,707 | $50,000 | $0 | $139,707 | $139,707 |
| 2010 | $95,892 | $50,000 | $0 | $145,892 | $145,892 |
| 2009 | $100,089 | $75,000 | $0 | $175,089 | $175,089 |
| 2008 | $101,427 | $100,000 | $0 | $201,427 | $201,427 |
| 2007 | $102,755 | $100,000 | $0 | $202,755 | $202,755 |
Deed and Sales History
| 1 | 03/29/2006 | DECREE | Divorce Decree/Legal Separation | KRUG, TOM E | KRUG, ADELA A | | | $0.00 | 61465 | 4166674 |
| 2 | 05/01/1996 | WD | Warranty Deed | MCCORMICK, TODD M | KRUG, TOM E | | | $110,000.00 | 61890 | 96009449 |
| 3 | 03/01/1992 | WD | Warranty Deed | TOLSON, THOMAS D | MCCORMICK, TODD M | | | $81,000.00 | 20970 | 92004883 |
| 4 | 03/01/1986 | WD | Warranty Deed | HOFFMAN, RONALD E | TOLSON, THOMAS D | | | $55,000.00 | 60674 | 86003247 |
| 5 | 01/01/1980 | WD | Warranty Deed | ROIS, ROBERT D | HOFFMAN, RONALD E | | | $43,750.00 | 293 | 364435 |
| 6 | 01/01/1900 | OTHER | Other - Misc. Documents | Unknown | ROIS, ROBERT D | | | $0.00 | 0 | 0 |
Payout Agreement
| No payout information available.. |