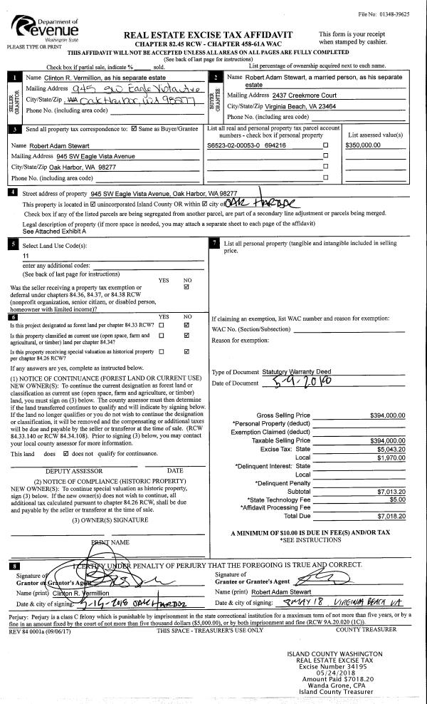
Property
Account |
| Property ID: | 426337 | Abbreviated Legal Description: | WEST RIDGE LOT 42 |
| Geographic ID: | S8390-00-00042-0 | Agent Code: | |
| Type: | Real | | |
| Tax Area: | 110 - APPRAISER-OH Schl Dist, outside OH, improved & 1 acre or less | Land Use Code | 11 |
| Open Space: | N | DFL | N |
| Historic Property: | N | Remodel Property: | N |
| Multi-Family Redevelopment: | N | | |
| Township: | | Section: | |
| Range: | |
Location |
| Address: | 1097 GREENWOOD ST OAK HARBOR, WA 98277 | Mapsco: | |
| Neighborhood: | Cycle 1 | Map ID: | 118 |
| Neighborhood CD: | 1 |
Owner |
| Name: | RODRIGUEZ, DANIEL Z | Owner ID: | 286645 |
| Mailing Address: | RACHEL VANESSA RODRIGUEZ 1097 GREENWOOD ST OAK HARBOR, WA 98277 | % Ownership: | 100.0000000000% |
| | | Exemptions: | |
Taxes and Assessment Details
Values
| (+) Improvement Homesite Value: | + | $0 | |
| (+) Improvement Non-Homesite Value: | + | $190,008 | |
| (+) Land Homesite Value: | + | $0 | |
| (+) Land Non-Homesite Value: | + | $190,000 | |
| (+) Curr Use (HS): | + | $0 | $0 |
| (+) Curr Use (NHS): | + | $0 | $0 |
| | | -------------------------- | |
| (=) Market Value: | = | $380,008 | |
| (–) Productivity Loss: | – | $0 | |
| | | -------------------------- | |
| (=) Subtotal: | = | $380,008 | |
| (+) Senior Appraised Value: | + | $0 | |
| (+) Non-Senior Appraised Value: | + | $380,008 | |
| | | -------------------------- | |
| (=) Total Appraised Value: | = | $380,008 | |
| (–) Senior Exemption Loss: | – | $0 | |
| (–) Exemption Loss: | – | $0 | |
| | | -------------------------- | |
| (=) Taxable Value: | = | $380,008 | |
Taxing Jurisdiction
| Owner: | RODRIGUEZ, DANIEL Z | | |
| % Ownership: | 100.0000000000% | | |
| Total Value: | $380,008 | | |
| Tax Area: | 110 - APPRAISER-OH Schl Dist, outside OH, improved & 1 acre or less |
| CF | Conservation Futures | 0.0316035091 | $380,008 | $380,008 | $12.01 | | |
| CEM1 | Cemetery #1 | 0.0040320932 | $380,008 | $380,008 | $1.53 | | |
| FIRE2 | Fire & Rescue Dist #2 N Whidbey GEN | 0.5475949600 | $380,008 | $380,008 | $208.09 | | |
| HOBOND | Hospital BOND | 0.1910887512 | $380,008 | $380,008 | $72.62 | | |
| HOGEN | Hospital GEN | 0.3902502903 | $380,008 | $380,008 | $148.30 | | |
| CE | County Current Expense | 0.3708482477 | $380,008 | $380,008 | $140.93 | | |
| CR | County Roads | 0.4584763726 | $380,008 | $380,008 | $174.22 | | |
| ISLANDEMS | Hospital GEN (EMS) | 0.5000000000 | $380,008 | $380,008 | $190.00 | | |
| LIB | Library Sno-Isle GEN | 0.3153421757 | $380,008 | $380,008 | $119.83 | | |
| NWHIDPRMT | P & R N Whidbey GEN | 0.2004466701 | $380,008 | $380,008 | $76.17 | | |
| SCH201MO | School 201 Enrichment | 1.8559231640 | $380,008 | $380,008 | $705.27 | | |
| ST | State School | 1.3035497053 | $380,008 | $380,008 | $495.36 | | |
| ST2 | State School Part 2 | 0.8169543533 | $380,008 | $380,008 | $310.45 | | |
| | Total Tax Rate: | 6.9861102925 | | | | | |
| | | | | Taxes w/Current Exemptions: | $2,654.78 | | |
| | | | | Taxes w/o Exemptions: | $2,654.78 | | |
Improvement / Building
| Improvement #1: | RESIDENTIAL | State Code: | Y | 1344.0 sqft | Value: | $190,008 |
| Bathrooms: | 2 | Bedrooms: | 3 | | Ceiling: | DRY WALL SPRAYED | Exterior Wall/Cover: | PLY/HARDBOARD T-111 | | Floor Covering: | CARPET/VINYL 80-20 | Floor Structure: | WOOD W/SUBFLOOR | | Foundation: | CONCRETE | Heating: | WALL HEAT ELECTRIC | | Interior Finish: | DRYWALL PAINT | Plumbing Fixture Cnt: | 9 | | Roof Slope: | 4" IN 12" | Roof Structure/Cover: | CJ ASPHALT |
|
Sketch
Property Image
Land
| 1 | 14 | SQ (08001-12000) | 0.0000 | 0.00 | 0.00 | 0.00 | 1.00 | $190,000 | $0 |
Roll Value History
| 2026 | N/A | N/A | N/A | N/A | N/A |
| 2025 | $190,008 | $190,000 | $0 | $380,008 | $380,008 |
| 2024 | $192,468 | $190,000 | $0 | $382,468 | $382,468 |
| 2023 | $194,927 | $190,000 | $0 | $384,927 | $384,927 |
| 2022 | $178,739 | $190,000 | $0 | $368,739 | $368,739 |
| 2021 | $157,357 | $160,000 | $0 | $317,357 | $317,357 |
| 2020 | $153,159 | $135,000 | $0 | $288,159 | $288,159 |
| 2019 | $108,677 | $150,000 | $0 | $258,677 | $258,677 |
| 2018 | $81,589 | $130,000 | $0 | $211,589 | $211,589 |
| 2017 | $79,242 | $120,000 | $0 | $199,242 | $199,242 |
| 2016 | $80,541 | $80,000 | $0 | $160,541 | $160,541 |
| 2015 | $81,840 | $70,000 | $0 | $151,840 | $151,840 |
| 2014 | $83,139 | $60,000 | $0 | $143,139 | $143,139 |
| 2013 | $84,438 | $50,000 | $0 | $134,438 | $134,438 |
| 2012 | $85,738 | $65,000 | $0 | $150,738 | $150,738 |
| 2011 | $87,037 | $50,000 | $0 | $137,037 | $137,037 |
| 2010 | $91,892 | $50,000 | $0 | $141,892 | $141,892 |
| 2009 | $95,979 | $75,000 | $0 | $170,979 | $170,979 |
| 2008 | $97,274 | $100,000 | $0 | $197,274 | $197,274 |
| 2007 | $98,570 | $100,000 | $0 | $198,570 | $198,570 |
Deed and Sales History
| 1 | 08/23/2018 | WD | Warranty Deed | BODEN, SEAN M | RODRIGUEZ, DANIEL Z | | | $277,450.00 | 35650 | 4450708 |
| 2 | 05/01/2015 | WD | Warranty Deed | COCHRAN, STEVEN M | BODEN, SEAN M | | | $199,900.00 | 19588 | 4378615 |
| 3 | 10/15/2013 | WD | Warranty Deed | LENZ, JEFFREY | COCHRAN, STEVEN M | | | $169,900.00 | 13125 | 4349732 |
| 4 | 06/26/2013 | SPWARDEED | Special Warranty Deed | HSBC BANK USA NA | LENZ, JEFFREY | | | $91,699.00 | 11846 | 4342920 |
| 5 | 01/08/2013 | TRUSTEED | Trustee's Deed | DENMON, EDWARD A | HSBC BANK USA NA | | | $152,000.00 | 10123 | 4331275 |
| 6 | 04/21/1998 | WD | Warranty Deed | KOSTER, ANDREW D | DENMON, EDWARD A | | | $105,000.00 | 81502 | 98008220 |
| 7 | 08/01/1982 | WD | Warranty Deed | ATES, ACIE V | KOSTER, ANDREW D | | | $51,000.00 | 22043 | 399913 |
| 8 | 10/01/1979 | WD | Warranty Deed | ANDERSON, PETER | ATES, ACIE V | | | $47,000.00 | 95159 | 360706 |
Payout Agreement
| No payout information available.. |