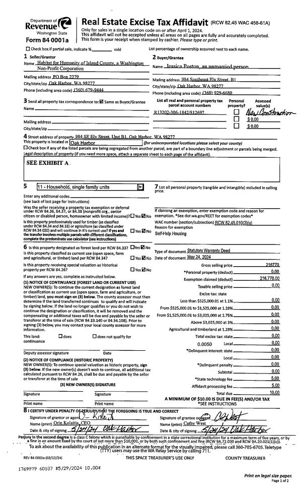
Property
Account |
| Property ID: | 426408 | Abbreviated Legal Description: | WEST RIDGE LOT 49 |
| Geographic ID: | S8390-00-00049-0 | Agent Code: | |
| Type: | Real | | |
| Tax Area: | 110 - APPRAISER-OH Schl Dist, outside OH, improved & 1 acre or less | Land Use Code | 11 |
| Open Space: | N | DFL | N |
| Historic Property: | N | Remodel Property: | N |
| Multi-Family Redevelopment: | N | | |
| Township: | | Section: | |
| Range: | |
Location |
| Address: | 1147 SPARROW DR OAK HARBOR, WA 98277 | Mapsco: | |
| Neighborhood: | Cycle 1 | Map ID: | 118 |
| Neighborhood CD: | 1 |
Owner |
| Name: | LEE, WILLIAM JODY | Owner ID: | 176586 |
| Mailing Address: | SHEILA R LEE 1147 SPARROW DR OAK HARBOR, WA 98277 | % Ownership: | 100.0000000000% |
| | | Exemptions: | |
Taxes and Assessment Details
Values
| (+) Improvement Homesite Value: | + | $0 | |
| (+) Improvement Non-Homesite Value: | + | $140,976 | |
| (+) Land Homesite Value: | + | $0 | |
| (+) Land Non-Homesite Value: | + | $190,000 | |
| (+) Curr Use (HS): | + | $0 | $0 |
| (+) Curr Use (NHS): | + | $0 | $0 |
| | | -------------------------- | |
| (=) Market Value: | = | $330,976 | |
| (–) Productivity Loss: | – | $0 | |
| | | -------------------------- | |
| (=) Subtotal: | = | $330,976 | |
| (+) Senior Appraised Value: | + | $0 | |
| (+) Non-Senior Appraised Value: | + | $330,976 | |
| | | -------------------------- | |
| (=) Total Appraised Value: | = | $330,976 | |
| (–) Senior Exemption Loss: | – | $0 | |
| (–) Exemption Loss: | – | $0 | |
| | | -------------------------- | |
| (=) Taxable Value: | = | $330,976 | |
Taxing Jurisdiction
| Owner: | LEE, WILLIAM JODY | | |
| % Ownership: | 100.0000000000% | | |
| Total Value: | $330,976 | | |
| Tax Area: | 110 - APPRAISER-OH Schl Dist, outside OH, improved & 1 acre or less |
| CF | Conservation Futures | 0.0316035091 | $330,976 | $330,976 | $10.46 | | |
| CEM1 | Cemetery #1 | 0.0040320932 | $330,976 | $330,976 | $1.33 | | |
| FIRE2 | Fire & Rescue Dist #2 N Whidbey GEN | 0.5475949600 | $330,976 | $330,976 | $181.24 | | |
| HOBOND | Hospital BOND | 0.1910887512 | $330,976 | $330,976 | $63.25 | | |
| HOGEN | Hospital GEN | 0.3902502903 | $330,976 | $330,976 | $129.16 | | |
| CE | County Current Expense | 0.3708482477 | $330,976 | $330,976 | $122.74 | | |
| CR | County Roads | 0.4584763726 | $330,976 | $330,976 | $151.74 | | |
| ISLANDEMS | Hospital GEN (EMS) | 0.5000000000 | $330,976 | $330,976 | $165.49 | | |
| LIB | Library Sno-Isle GEN | 0.3153421757 | $330,976 | $330,976 | $104.37 | | |
| NWHIDPRMT | P & R N Whidbey GEN | 0.2004466701 | $330,976 | $330,976 | $66.34 | | |
| SCH201MO | School 201 Enrichment | 1.8559231640 | $330,976 | $330,976 | $614.27 | | |
| ST | State School | 1.3035497053 | $330,976 | $330,976 | $431.44 | | |
| ST2 | State School Part 2 | 0.8169543533 | $330,976 | $330,976 | $270.39 | | |
| | Total Tax Rate: | 6.9861102925 | | | | | |
| | | | | Taxes w/Current Exemptions: | $2,312.22 | | |
| | | | | Taxes w/o Exemptions: | $2,312.22 | | |
Improvement / Building
| Improvement #1: | RESIDENTIAL | State Code: | Y | 929.0 sqft | Value: | $140,976 |
| Bathrooms: | 1 | Bedrooms: | 3 | | Ceiling: | DRYWALL PAINTED | Exterior Wall/Cover: | PLY/HARDBOARD T-111 | | Floor Covering: | CARPET/VINYL 80-20 | Floor Structure: | WOOD W/SUBFLOOR | | Foundation: | CONCRETE | Heating: | BASEBOARD ELECTRIC | | Interior Finish: | DRYWALL PAINT | Plumbing Fixture Cnt: | 6 | | Roof Slope: | 4" IN 12" | Roof Structure/Cover: | CJ ASPHALT |
|
| | Type | Description | Class CD | Sub Class CD | Year Built | Area |
| | BAS | BASE/MAIN FLOOR | 3 | 0 | 1974 | 929.0 |
| | AGR | ATTACHED GARAGE | 3 | 0 | 1974 | 300.0 |
Sketch
Property Image
Land
| 1 | 14 | SQ (08001-12000) | 0.0000 | 0.00 | 0.00 | 0.00 | 1.00 | $190,000 | $0 |
Roll Value History
| 2026 | N/A | N/A | N/A | N/A | N/A |
| 2025 | $140,976 | $190,000 | $0 | $330,976 | $330,976 |
| 2024 | $146,062 | $190,000 | $0 | $336,062 | $336,062 |
| 2023 | $135,667 | $190,000 | $0 | $325,667 | $325,667 |
| 2022 | $124,731 | $190,000 | $0 | $314,731 | $314,731 |
| 2021 | $110,103 | $160,000 | $0 | $270,103 | $270,103 |
| 2020 | $107,501 | $135,000 | $0 | $242,501 | $242,501 |
| 2019 | $76,090 | $150,000 | $0 | $226,090 | $226,090 |
| 2018 | $76,365 | $130,000 | $0 | $206,365 | $206,365 |
| 2017 | $71,680 | $120,000 | $0 | $191,680 | $191,680 |
| 2016 | $72,801 | $80,000 | $0 | $152,801 | $152,801 |
| 2015 | $73,920 | $70,000 | $0 | $143,920 | $143,920 |
| 2014 | $75,039 | $60,000 | $0 | $135,039 | $135,039 |
| 2013 | $76,160 | $50,000 | $0 | $126,160 | $126,160 |
| 2012 | $77,281 | $65,000 | $0 | $142,281 | $142,281 |
| 2011 | $77,642 | $50,000 | $0 | $127,642 | $127,642 |
| 2010 | $82,503 | $50,000 | $0 | $132,503 | $132,503 |
| 2009 | $86,972 | $75,000 | $0 | $161,972 | $161,972 |
| 2008 | $97,361 | $100,000 | $0 | $197,361 | $197,361 |
| 2007 | $98,731 | $100,000 | $0 | $198,731 | $198,731 |
Deed and Sales History
| 1 | 01/06/2003 | QCD | Quit Claim Deed | LEE, WILLIAM JODY | LEE, WILLIAM JODY | | | $0.00 | 30158 | 4044170 |
| 2 | 05/01/1998 | WD | Warranty Deed | NORWEST, MORTGAGE I | LEE, WILLIAM JODY | | | $90,050.00 | 81843 | 98009832 |
| 3 | 08/01/1997 | TRUSTEED | Trustee's Deed | SECRETARY, VETERANS A | NORWEST, MORTGAGE I | | | $0.00 | 72997 | 97014216 |
| 4 | 08/01/1997 | WD | Warranty Deed | SORDELET, PETER L | SECRETARY, VETERANS A | | | $0.00 | 73275 | 97015459 |
| 5 | 03/01/1994 | WD | Warranty Deed | DEBODE, DONALD G | SORDELET, PETER L | | | $88,000.00 | 41198 | 94007617 |
| 6 | 12/01/1982 | WD | Warranty Deed | DAVIS, BENNIE R | DEBODE, DONALD G | | | $48,500.00 | 22961 | 403623 |
| 7 | 09/01/1979 | WD | Warranty Deed | CARR, JERRY E | DAVIS, BENNIE R | | | $42,000.00 | 94583 | 358887 |
| 8 | 01/01/1900 | OTHER | Other - Misc. Documents | Unknown | WILLIAM, JODY L | | | $0.00 | 81843 | 98009832 |
| 9 | 01/01/1900 | OTHER | Other - Misc. Documents | WILLIAM, JODY L | CARR, JERRY E | | | $0.00 | 0 | 0 |
Payout Agreement
| No payout information available.. |