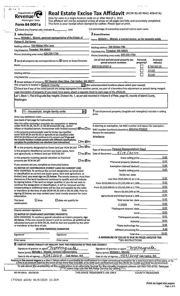
Property
Account |
| Property ID: | 426532 | Abbreviated Legal Description: | WEST RIDGE LOT 62 |
| Geographic ID: | S8390-00-00062-0 | Agent Code: | |
| Type: | Real | | |
| Tax Area: | 110 - APPRAISER-OH Schl Dist, outside OH, improved & 1 acre or less | Land Use Code | 11 |
| Open Space: | N | DFL | N |
| Historic Property: | N | Remodel Property: | N |
| Multi-Family Redevelopment: | N | | |
| Township: | | Section: | |
| Range: | |
Location |
| Address: | 1143 RIDGEWAY DR OAK HARBOR, WA 98277 | Mapsco: | |
| Neighborhood: | Cycle 1 | Map ID: | 118 |
| Neighborhood CD: | 1 |
Owner |
| Name: | RAMSEY, ROBERT M | Owner ID: | 81060 |
| Mailing Address: | 1143 RIDGEWAY DR OAK HARBOR, WA 98277-8461 | % Ownership: | 100.0000000000% |
| | | Exemptions: | |
Taxes and Assessment Details
Values
| (+) Improvement Homesite Value: | + | $0 | |
| (+) Improvement Non-Homesite Value: | + | $156,926 | |
| (+) Land Homesite Value: | + | $0 | |
| (+) Land Non-Homesite Value: | + | $190,000 | |
| (+) Curr Use (HS): | + | $0 | $0 |
| (+) Curr Use (NHS): | + | $0 | $0 |
| | | -------------------------- | |
| (=) Market Value: | = | $346,926 | |
| (–) Productivity Loss: | – | $0 | |
| | | -------------------------- | |
| (=) Subtotal: | = | $346,926 | |
| (+) Senior Appraised Value: | + | $0 | |
| (+) Non-Senior Appraised Value: | + | $346,926 | |
| | | -------------------------- | |
| (=) Total Appraised Value: | = | $346,926 | |
| (–) Senior Exemption Loss: | – | $0 | |
| (–) Exemption Loss: | – | $0 | |
| | | -------------------------- | |
| (=) Taxable Value: | = | $346,926 | |
Taxing Jurisdiction
| Owner: | RAMSEY, ROBERT M | | |
| % Ownership: | 100.0000000000% | | |
| Total Value: | $346,926 | | |
| Tax Area: | 110 - APPRAISER-OH Schl Dist, outside OH, improved & 1 acre or less |
| CF | Conservation Futures | 0.0316035091 | $346,926 | $346,926 | $10.96 | | |
| CEM1 | Cemetery #1 | 0.0040320932 | $346,926 | $346,926 | $1.40 | | |
| FIRE2 | Fire & Rescue Dist #2 N Whidbey GEN | 0.5475949600 | $346,926 | $346,926 | $189.97 | | |
| HOBOND | Hospital BOND | 0.1910887512 | $346,926 | $346,926 | $66.29 | | |
| HOGEN | Hospital GEN | 0.3902502903 | $346,926 | $346,926 | $135.39 | | |
| CE | County Current Expense | 0.3708482477 | $346,926 | $346,926 | $128.66 | | |
| CR | County Roads | 0.4584763726 | $346,926 | $346,926 | $159.06 | | |
| ISLANDEMS | Hospital GEN (EMS) | 0.5000000000 | $346,926 | $346,926 | $173.46 | | |
| LIB | Library Sno-Isle GEN | 0.3153421757 | $346,926 | $346,926 | $109.40 | | |
| NWHIDPRMT | P & R N Whidbey GEN | 0.2004466701 | $346,926 | $346,926 | $69.54 | | |
| SCH201MO | School 201 Enrichment | 1.8559231640 | $346,926 | $346,926 | $643.87 | | |
| ST | State School | 1.3035497053 | $346,926 | $346,926 | $452.24 | | |
| ST2 | State School Part 2 | 0.8169543533 | $346,926 | $346,926 | $283.42 | | |
| | Total Tax Rate: | 6.9861102925 | | | | | |
| | | | | Taxes w/Current Exemptions: | $2,423.66 | | |
| | | | | Taxes w/o Exemptions: | $2,423.66 | | |
Improvement / Building
| Improvement #1: | RESIDENTIAL | State Code: | Y | 1008.0 sqft | Value: | $156,926 |
| Bathrooms: | 1 | Bedrooms: | 3 | | Ceiling: | DRY WALL SPRAYED | Exterior Wall/Cover: | WOOD SIDING | | Floor Covering: | CARPET/VINYL 80-20 | Floor Structure: | WOOD W/SUBFLOOR | | Foundation: | CONCRETE | Heating: | FHA GAS | | Interior Finish: | DRYWALL PAINT | Plumbing Fixture Cnt: | 6 | | Roof Slope: | 4" IN 12" | Roof Structure/Cover: | CJ ASPHALT |
|
| | Type | Description | Class CD | Sub Class CD | Year Built | Area |
| | BAS | BASE/MAIN FLOOR | 3 | 0 | 1971 | 1008.0 |
| | AGR | ATTACHED GARAGE | 3 | 0 | 1971 | 288.0 |
Sketch
Property Image
Land
| 1 | 14 | SQ (08001-12000) | 0.0000 | 0.00 | 0.00 | 0.00 | 1.00 | $190,000 | $0 |
Roll Value History
| 2026 | N/A | N/A | N/A | N/A | N/A |
| 2025 | $156,926 | $190,000 | $0 | $346,926 | $346,926 |
| 2024 | $159,129 | $190,000 | $0 | $349,129 | $349,129 |
| 2023 | $143,712 | $190,000 | $0 | $333,712 | $333,712 |
| 2022 | $132,123 | $190,000 | $0 | $322,123 | $322,123 |
| 2021 | $116,631 | $160,000 | $0 | $276,631 | $276,631 |
| 2020 | $113,955 | $135,000 | $0 | $248,955 | $248,955 |
| 2019 | $81,294 | $150,000 | $0 | $231,294 | $231,294 |
| 2018 | $81,588 | $130,000 | $0 | $211,588 | $211,588 |
| 2017 | $69,414 | $120,000 | $0 | $189,414 | $189,414 |
| 2016 | $70,591 | $80,000 | $0 | $150,591 | $150,591 |
| 2015 | $71,768 | $70,000 | $0 | $141,768 | $141,768 |
| 2014 | $72,944 | $60,000 | $0 | $132,944 | $132,944 |
| 2013 | $74,121 | $50,000 | $0 | $124,121 | $124,121 |
| 2012 | $75,296 | $65,000 | $0 | $140,296 | $140,296 |
| 2011 | $75,058 | $50,000 | $0 | $125,058 | $125,058 |
| 2010 | $81,918 | $50,000 | $0 | $131,918 | $131,918 |
| 2009 | $84,335 | $75,000 | $0 | $159,335 | $159,335 |
| 2008 | $85,507 | $100,000 | $0 | $185,507 | $185,507 |
| 2007 | $86,678 | $100,000 | $0 | $186,678 | $186,678 |
Deed and Sales History
| 1 | 08/20/2001 | WD | Warranty Deed | STANDAGE, RAYMOND G | RAMSEY, ROBERT M | | | $106,500.00 | 13263 | 20041367 |
| 2 | 05/01/1994 | WD | Warranty Deed | SHUSTER, MICHAEL A | STANDAGE, RAYMOND G | | | $97,000.00 | 42170 | 94012483 |
| 3 | 06/01/1989 | WD | Warranty Deed | HOLLAND, EARL J | SHUSTER, MICHAEL A | | | $62,500.00 | 92516 | 89008592 |
| 4 | 01/01/1900 | OTHER | Other - Misc. Documents | Unknown | HOLLAND, EARL J | | | $0.00 | 0 | 0 |
Payout Agreement
| No payout information available.. |