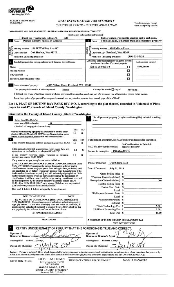
Property
Account |
| Property ID: | 426747 | Abbreviated Legal Description: | WEST RIDGE LOT 83 |
| Geographic ID: | S8390-00-00083-0 | Agent Code: | |
| Type: | Real | | |
| Tax Area: | 110 - APPRAISER-OH Schl Dist, outside OH, improved & 1 acre or less | Land Use Code | 11 |
| Open Space: | N | DFL | N |
| Historic Property: | N | Remodel Property: | N |
| Multi-Family Redevelopment: | N | | |
| Township: | | Section: | |
| Range: | |
Location |
| Address: | 1100 GREENWOOD ST OAK HARBOR, WA 98277 | Mapsco: | |
| Neighborhood: | Cycle 1 | Map ID: | 118 |
| Neighborhood CD: | 1 |
Owner |
| Name: | VETTER, CHAD A | Owner ID: | 317064 |
| Mailing Address: | 1100 GREENWOOD ST OAK HARBOR, WA 98277 | % Ownership: | 100.0000000000% |
| | | Exemptions: | |
Taxes and Assessment Details
Values
| (+) Improvement Homesite Value: | + | $0 | |
| (+) Improvement Non-Homesite Value: | + | $185,991 | |
| (+) Land Homesite Value: | + | $0 | |
| (+) Land Non-Homesite Value: | + | $190,000 | |
| (+) Curr Use (HS): | + | $0 | $0 |
| (+) Curr Use (NHS): | + | $0 | $0 |
| | | -------------------------- | |
| (=) Market Value: | = | $375,991 | |
| (–) Productivity Loss: | – | $0 | |
| | | -------------------------- | |
| (=) Subtotal: | = | $375,991 | |
| (+) Senior Appraised Value: | + | $0 | |
| (+) Non-Senior Appraised Value: | + | $375,991 | |
| | | -------------------------- | |
| (=) Total Appraised Value: | = | $375,991 | |
| (–) Senior Exemption Loss: | – | $0 | |
| (–) Exemption Loss: | – | $0 | |
| | | -------------------------- | |
| (=) Taxable Value: | = | $375,991 | |
Taxing Jurisdiction
| Owner: | VETTER, CHAD A | | |
| % Ownership: | 100.0000000000% | | |
| Total Value: | $375,991 | | |
| Tax Area: | 110 - APPRAISER-OH Schl Dist, outside OH, improved & 1 acre or less |
| CF | Conservation Futures | 0.0316035091 | $375,991 | $375,991 | $11.88 | | |
| CEM1 | Cemetery #1 | 0.0040320932 | $375,991 | $375,991 | $1.52 | | |
| FIRE2 | Fire & Rescue Dist #2 N Whidbey GEN | 0.5475949600 | $375,991 | $375,991 | $205.89 | | |
| HOBOND | Hospital BOND | 0.1910887512 | $375,991 | $375,991 | $71.85 | | |
| HOGEN | Hospital GEN | 0.3902502903 | $375,991 | $375,991 | $146.73 | | |
| CE | County Current Expense | 0.3708482477 | $375,991 | $375,991 | $139.44 | | |
| CR | County Roads | 0.4584763726 | $375,991 | $375,991 | $172.38 | | |
| ISLANDEMS | Hospital GEN (EMS) | 0.5000000000 | $375,991 | $375,991 | $188.00 | | |
| LIB | Library Sno-Isle GEN | 0.3153421757 | $375,991 | $375,991 | $118.57 | | |
| NWHIDPRMT | P & R N Whidbey GEN | 0.2004466701 | $375,991 | $375,991 | $75.37 | | |
| SCH201MO | School 201 Enrichment | 1.8559231640 | $375,991 | $375,991 | $697.81 | | |
| ST | State School | 1.3035497053 | $375,991 | $375,991 | $490.12 | | |
| ST2 | State School Part 2 | 0.8169543533 | $375,991 | $375,991 | $307.17 | | |
| | Total Tax Rate: | 6.9861102925 | | | | | |
| | | | | Taxes w/Current Exemptions: | $2,626.73 | | |
| | | | | Taxes w/o Exemptions: | $2,626.73 | | |
Improvement / Building
| Improvement #1: | RESIDENTIAL | State Code: | Y | 1152.0 sqft | Value: | $185,991 |
| Bathrooms: | 1 | Bedrooms: | 3 | | Ceiling: | DRY WALL SPRAYED | Exterior Wall/Cover: | WOOD SIDING | | Floor Covering: | CARPET/VINYL 60-40 | Floor Structure: | WOOD W/SUBFLOOR | | Foundation: | CONCRETE | Heating: | FHA GAS | | Interior Finish: | DRYWALL PAINT | Plumbing Fixture Cnt: | 6 | | Roof Slope: | 4" IN 12" | Roof Structure/Cover: | CJ ASPHALT |
|
| | Type | Description | Class CD | Sub Class CD | Year Built | Area |
| | BAS | BASE/MAIN FLOOR | 3 | 0 | 1972 | 1152.0 |
| | AGR | ATTACHED GARAGE | 3 | 0 | 1972 | 144.0 |
Sketch
Property Image
Land
| 1 | 14 | SQ (08001-12000) | 0.0000 | 0.00 | 0.00 | 0.00 | 1.00 | $190,000 | $0 |
Roll Value History
| 2026 | N/A | N/A | N/A | N/A | N/A |
| 2025 | $185,991 | $190,000 | $0 | $375,991 | $375,991 |
| 2024 | $188,279 | $190,000 | $0 | $378,279 | $378,279 |
| 2023 | $172,196 | $190,000 | $0 | $362,196 | $362,196 |
| 2022 | $157,894 | $190,000 | $0 | $347,894 | $347,894 |
| 2021 | $139,014 | $160,000 | $0 | $299,014 | $299,014 |
| 2020 | $135,474 | $135,000 | $0 | $270,474 | $270,474 |
| 2019 | $96,446 | $150,000 | $0 | $246,446 | $246,446 |
| 2018 | $70,781 | $130,000 | $0 | $200,781 | $200,781 |
| 2017 | $72,297 | $120,000 | $0 | $192,297 | $192,297 |
| 2016 | $73,463 | $80,000 | $0 | $153,463 | $153,463 |
| 2015 | $74,629 | $70,000 | $0 | $144,629 | $144,629 |
| 2014 | $75,794 | $60,000 | $0 | $135,794 | $135,794 |
| 2013 | $76,960 | $50,000 | $0 | $126,960 | $126,960 |
| 2012 | $78,127 | $65,000 | $0 | $143,127 | $143,127 |
| 2011 | $77,293 | $50,000 | $0 | $127,293 | $127,293 |
| 2010 | $80,792 | $50,000 | $0 | $130,792 | $130,792 |
| 2009 | $84,452 | $75,000 | $0 | $159,452 | $159,452 |
| 2008 | $85,651 | $100,000 | $0 | $185,651 | $185,651 |
| 2007 | $83,376 | $100,000 | $0 | $183,376 | $183,376 |
Deed and Sales History
| 1 | 06/15/2025 | WD | Warranty Deed | BREGANT, JULIA | VETTER, CHAD A | | | $435,000.00 | 63904 | 4587324 |
| 2 | 10/24/2023 | WD | Warranty Deed | FERNANDEZ, JAVIER | BREGANT, JULIA | | | $395,000.00 | 58385 | 4566249 |
| 3 | 08/15/2018 | WD | Warranty Deed | PARSONS, GLENNA RAE | FERNANDEZ, JAVIER | | | $279,000.00 | 35515 | 4450122 |
| 4 | 06/20/2018 | WD | Warranty Deed | BETANCOURT, BARBARA L | PARSONS, GLENNA RAE | | | $175,000.00 | 34624 | 4446609 |
| 5 | 06/01/1989 | WD | Warranty Deed | JONES, RAY A | BETANCOURT, BARBARA L | | | $58,500.00 | 92687 | 89009068 |
| 6 | 01/01/1900 | OTHER | Other - Misc. Documents | Unknown | JONES, RAY A | | | $0.00 | 0 | 0 |
Payout Agreement
| No payout information available.. |