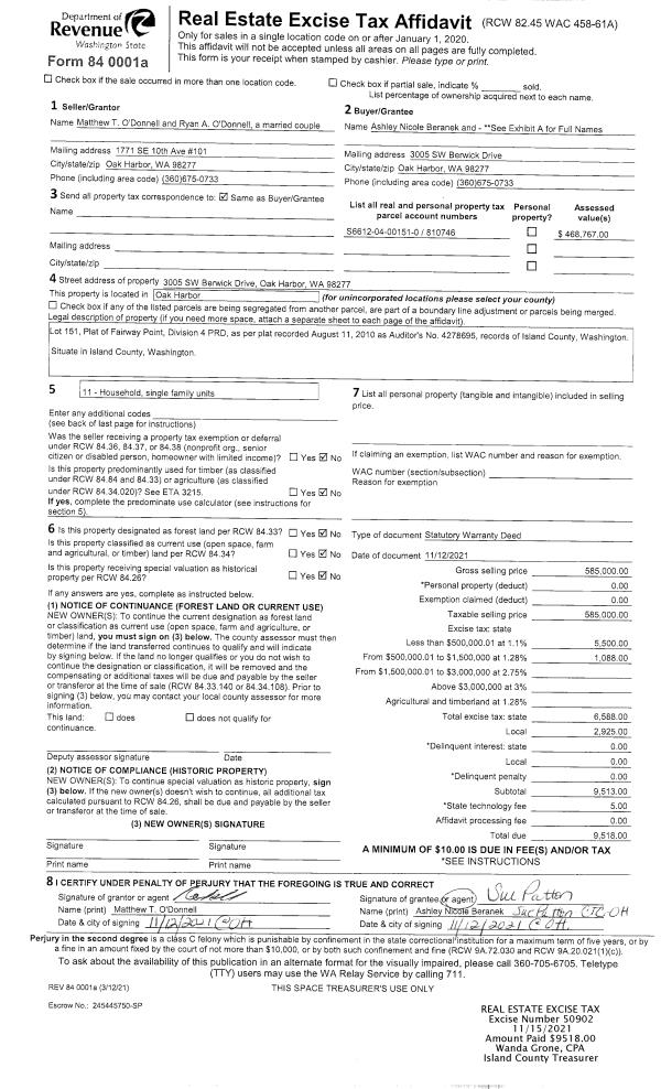
Property
Account |
| Property ID: | 426863 | Abbreviated Legal Description: | WEST VIEW LOT 11 INCL ADJ TIDES |
| Geographic ID: | S8395-00-00011-0 | Agent Code: | |
| Type: | Real | | |
| Tax Area: | 710 - APPRAISER-S Whid Schl Dist, outside Langley, improved & 1 acre or less | Land Use Code | 11 |
| Open Space: | N | DFL | N |
| Historic Property: | N | Remodel Property: | N |
| Multi-Family Redevelopment: | N | | |
| Township: | | Section: | |
| Range: | |
Location |
| Address: | 5916 CEDAR ST FREELAND, WA 98249 | Mapsco: | |
| Neighborhood: | Cycle 3 | Map ID: | 329 |
| Neighborhood CD: | 3 |
Owner |
| Name: | CARTWRIGHT, HEATHER JORDAN | Owner ID: | 294153 |
| Mailing Address: | KENNETH RICHARD CARTWRIGHT 8204 SE 62ND ST MERCER ISLAND, WA 98040 | % Ownership: | 100.0000000000% |
| | | Exemptions: | |
Taxes and Assessment Details
Values
| (+) Improvement Homesite Value: | + | $0 | |
| (+) Improvement Non-Homesite Value: | + | $1,466,955 | |
| (+) Land Homesite Value: | + | $0 | |
| (+) Land Non-Homesite Value: | + | $2,250,600 | |
| (+) Curr Use (HS): | + | $0 | $0 |
| (+) Curr Use (NHS): | + | $0 | $0 |
| | | -------------------------- | |
| (=) Market Value: | = | $3,717,555 | |
| (–) Productivity Loss: | – | $0 | |
| | | -------------------------- | |
| (=) Subtotal: | = | $3,717,555 | |
| (+) Senior Appraised Value: | + | $0 | |
| (+) Non-Senior Appraised Value: | + | $3,717,555 | |
| | | -------------------------- | |
| (=) Total Appraised Value: | = | $3,717,555 | |
| (–) Senior Exemption Loss: | – | $0 | |
| (–) Exemption Loss: | – | $0 | |
| | | -------------------------- | |
| (=) Taxable Value: | = | $3,717,555 | |
Taxing Jurisdiction
| Owner: | CARTWRIGHT, HEATHER JORDAN | | |
| % Ownership: | 100.0000000000% | | |
| Total Value: | $3,717,555 | | |
| Tax Area: | 710 - APPRAISER-S Whid Schl Dist, outside Langley, improved & 1 acre or less |
| CF | Conservation Futures | 0.0316035091 | $3,717,555 | $3,717,555 | $117.49 | | |
| FIRE3 | Fire & Rescue Dist #3 S Whidbey GEN | 1.2004855531 | $3,717,555 | $3,717,555 | $4,462.87 | | |
| HOBOND | Hospital BOND | 0.1910887512 | $3,717,555 | $3,717,555 | $710.38 | | |
| HOGEN | Hospital GEN | 0.3902502903 | $3,717,555 | $3,717,555 | $1,450.78 | | |
| CE | County Current Expense | 0.3708482477 | $3,717,555 | $3,717,555 | $1,378.65 | | |
| CR | County Roads | 0.4584763726 | $3,717,555 | $3,717,555 | $1,704.41 | | |
| ISLANDEMS | Hospital GEN (EMS) | 0.5000000000 | $3,717,555 | $3,717,555 | $1,858.78 | | |
| LIB | Library Sno-Isle GEN | 0.3153421757 | $3,717,555 | $3,717,555 | $1,172.30 | | |
| PORTWHID | Port of S Whidbey GEN | 0.1094540357 | $3,717,555 | $3,717,555 | $406.90 | | |
| SCH206BOND | School 206 BOND | 0.3161759235 | $3,717,555 | $3,717,555 | $1,175.40 | | |
| SCH206MO | School 206 Enrichment | 0.4547169547 | $3,717,555 | $3,717,555 | $1,690.44 | | |
| ST | State School | 1.3035497053 | $3,717,555 | $3,717,555 | $4,846.02 | | |
| ST2 | State School Part 2 | 0.8169543533 | $3,717,555 | $3,717,555 | $3,037.07 | | |
| SWHIDPRBD | P & R S Whidbey BOND | 0.0152817568 | $3,717,555 | $3,717,555 | $56.81 | | |
| SWHIDPRBD2 | P & R S Whidbey BOND2 | 0.0138911264 | $3,717,555 | $3,717,555 | $51.64 | | |
| SWHIDPRMT | P & R S Whidbey GEN | 0.2053334452 | $3,717,555 | $3,717,555 | $763.34 | | |
| | Total Tax Rate: | 6.6934522006 | | | | | |
| | | | | Taxes w/Current Exemptions: | $24,883.28 | | |
| | | | | Taxes w/o Exemptions: | $24,883.28 | | |
Improvement / Building
| Improvement #1: | RESIDENTIAL | State Code: | Y | 3856.5 sqft | Value: | $1,466,955 |
| Bathrooms: | 3.5 | Bedrooms: | 3 | | Ceiling: | BEAM PAINTED | Exterior Wall/Cover: | CEMENT FIBER | | Floor Covering: | CERAMIC TILE/CPT 40-60 | Floor Structure: | WOOD W/SUBFLOOR | | Foundation: | CONCRETE | Heating: | RADIANT FLOOR | | Interior Finish: | DRYWALL PAINT | Plumbing Fixture Cnt: | 18 | | Roof Slope: | FLAT | Roof Structure/Cover: | BEAM BUILT-UP ROCK |
|
| | Type | Description | Class CD | Sub Class CD | Year Built | Area |
| | BAS | BASE/MAIN FLOOR | 8 | 0 | 2001 | 1852.1 |
| | OP2 | OPEN PORCH W/STEPS | 8 | 0 | 2001 | 18.0 |
| | OP4 | OPEN PORCH W/CEILING-ROOF | 8 | 0 | 2001 | 48.0 |
| | OP4 | OPEN PORCH W/CEILING-ROOF | 8 | 0 | 2001 | 141.5 |
| | UTY | STORAGE/UTILITY | 8 | 0 | 2001 | 145.0 |
| | UPS | UPPER STORY | 8 | 0 | 2001 | 1582.3 |
| | OWP | OPEN WOOD PORCH W/STEPS | 8 | 0 | 2001 | 260.7 |
| | OWP | OPEN WOOD PORCH W/STEPS | 8 | 0 | 2001 | 1121.8 |
| | UPS | UPPER STORY | 8 | 0 | 2001 | 422.1 |
Sketch
Property Image
Land
| 1 | LB | LOW BANK | 0.1904 | 8293.82 | 60.00 | 0.00 | 1.00 | $2,250,000 | $0 |
| 2 | 55 | TIDES | 0.0000 | 0.00 | 60.00 | 0.00 | 1.00 | $600 | $0 |
Roll Value History
| 2026 | N/A | N/A | N/A | N/A | N/A |
| 2025 | $1,466,955 | $2,250,600 | $0 | $3,717,555 | $3,717,555 |
| 2024 | $1,466,370 | $2,250,600 | $0 | $3,716,970 | $3,716,970 |
| 2023 | $1,482,830 | $2,300,600 | $0 | $3,783,430 | $3,783,430 |
| 2022 | $1,354,023 | $2,000,600 | $0 | $3,354,623 | $3,354,623 |
| 2021 | $1,187,861 | $1,300,600 | $0 | $2,488,461 | $2,488,461 |
| 2020 | $1,141,459 | $1,050,600 | $0 | $2,192,059 | $2,192,059 |
| 2019 | $871,527 | $1,100,600 | $0 | $1,972,127 | $1,972,127 |
| 2018 | $874,055 | $950,600 | $0 | $1,824,655 | $1,824,655 |
| 2017 | $878,962 | $950,600 | $0 | $1,829,562 | $1,829,562 |
| 2016 | $889,062 | $950,600 | $0 | $1,839,662 | $1,839,662 |
| 2015 | $899,168 | $950,600 | $0 | $1,849,768 | $1,849,768 |
| 2014 | $909,269 | $950,600 | $0 | $1,859,869 | $1,859,869 |
| 2013 | $720,584 | $901,644 | $0 | $1,622,228 | $1,622,228 |
| 2012 | $728,695 | $901,644 | $0 | $1,630,339 | $1,630,339 |
| 2011 | $736,804 | $901,644 | $0 | $1,638,448 | $1,638,448 |
| 2010 | $741,793 | $901,644 | $0 | $1,643,437 | $1,643,437 |
| 2009 | $773,133 | $1,077,774 | $0 | $1,850,907 | $1,850,907 |
| 2008 | $1,098,014 | $1,233,510 | $0 | $2,331,524 | $2,331,524 |
| 2007 | $1,193,237 | $1,146,444 | $0 | $2,339,681 | $2,339,681 |
Deed and Sales History
| 1 | 05/06/2020 | WD | Warranty Deed | THOMPSON, RICHARD | CARTWRIGHT, HEATHER JORDAN | | | $2,600,000.00 | 42958 | 4486359 |
| 2 | 07/15/2016 | WD | Warranty Deed | ROBINSON III, THEODORE A | THOMPSON, RICHARD | | | $1,860,000.00 | 25248 | 4403281 |
| 3 | 05/15/2002 | QCD | Quit Claim Deed | ROBINSON, KIMBERLY S | ROBINSON III, THEODORE A | | | $0.00 | 21963 | 4020885 |
| 4 | 06/02/2000 | QCD | Quit Claim Deed | SUMMERS, SUSAN A | ROBINSON, KIMBERLY S | | | $0.00 | 2040 | 20009715 |
| 5 | 03/01/1979 | OTHER | Other - Misc. Documents | Unknown | SUMMERS, SUSAN A | | | $0.00 | 91411 | 349900 |
Payout Agreement
| No payout information available.. |