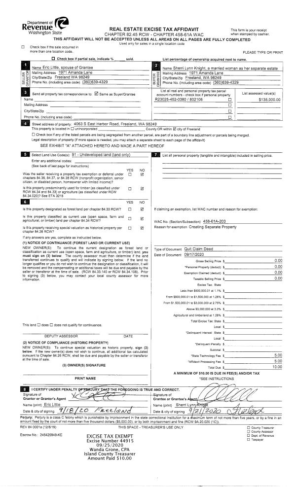
Property
Account |
| Property ID: | 426890 | Abbreviated Legal Description: | WEST VIEW LOT 14 INCL ADJ TIDES |
| Geographic ID: | S8395-00-00014-0 | Agent Code: | |
| Type: | Real | | |
| Tax Area: | 710 - APPRAISER-S Whid Schl Dist, outside Langley, improved & 1 acre or less | Land Use Code | 11 |
| Open Space: | N | DFL | N |
| Historic Property: | N | Remodel Property: | N |
| Multi-Family Redevelopment: | N | | |
| Township: | | Section: | |
| Range: | |
Location |
| Address: | 5928 CEDAR ST FREELAND, WA 98249 | Mapsco: | |
| Neighborhood: | Cycle 3 | Map ID: | 329 |
| Neighborhood CD: | 3 |
Owner |
| Name: | NANCY BEACH LLC | Owner ID: | 305705 |
| Mailing Address: | PO BOX 6356 BELLEVUE, WA 98008 | % Ownership: | 100.0000000000% |
| | | Exemptions: | |
Taxes and Assessment Details
Values
| (+) Improvement Homesite Value: | + | $0 | |
| (+) Improvement Non-Homesite Value: | + | $192,365 | |
| (+) Land Homesite Value: | + | $0 | |
| (+) Land Non-Homesite Value: | + | $2,250,600 | |
| (+) Curr Use (HS): | + | $0 | $0 |
| (+) Curr Use (NHS): | + | $0 | $0 |
| | | -------------------------- | |
| (=) Market Value: | = | $2,442,965 | |
| (–) Productivity Loss: | – | $0 | |
| | | -------------------------- | |
| (=) Subtotal: | = | $2,442,965 | |
| (+) Senior Appraised Value: | + | $0 | |
| (+) Non-Senior Appraised Value: | + | $2,442,965 | |
| | | -------------------------- | |
| (=) Total Appraised Value: | = | $2,442,965 | |
| (–) Senior Exemption Loss: | – | $0 | |
| (–) Exemption Loss: | – | $0 | |
| | | -------------------------- | |
| (=) Taxable Value: | = | $2,442,965 | |
Taxing Jurisdiction
| Owner: | NANCY BEACH LLC | | |
| % Ownership: | 100.0000000000% | | |
| Total Value: | $2,442,965 | | |
| Tax Area: | 710 - APPRAISER-S Whid Schl Dist, outside Langley, improved & 1 acre or less |
| CF | Conservation Futures | 0.0316035091 | $2,442,965 | $2,442,965 | $77.21 | | |
| FIRE3 | Fire & Rescue Dist #3 S Whidbey GEN | 1.2004855531 | $2,442,965 | $2,442,965 | $2,932.74 | | |
| HOBOND | Hospital BOND | 0.1910887512 | $2,442,965 | $2,442,965 | $466.82 | | |
| HOGEN | Hospital GEN | 0.3902502903 | $2,442,965 | $2,442,965 | $953.37 | | |
| CE | County Current Expense | 0.3708482477 | $2,442,965 | $2,442,965 | $905.97 | | |
| CR | County Roads | 0.4584763726 | $2,442,965 | $2,442,965 | $1,120.04 | | |
| ISLANDEMS | Hospital GEN (EMS) | 0.5000000000 | $2,442,965 | $2,442,965 | $1,221.48 | | |
| LIB | Library Sno-Isle GEN | 0.3153421757 | $2,442,965 | $2,442,965 | $770.37 | | |
| PORTWHID | Port of S Whidbey GEN | 0.1094540357 | $2,442,965 | $2,442,965 | $267.39 | | |
| SCH206BOND | School 206 BOND | 0.3161759235 | $2,442,965 | $2,442,965 | $772.41 | | |
| SCH206MO | School 206 Enrichment | 0.4547169547 | $2,442,965 | $2,442,965 | $1,110.86 | | |
| ST | State School | 1.3035497053 | $2,442,965 | $2,442,965 | $3,184.53 | | |
| ST2 | State School Part 2 | 0.8169543533 | $2,442,965 | $2,442,965 | $1,995.79 | | |
| SWHIDPRBD | P & R S Whidbey BOND | 0.0152817568 | $2,442,965 | $2,442,965 | $37.33 | | |
| SWHIDPRBD2 | P & R S Whidbey BOND2 | 0.0138911264 | $2,442,965 | $2,442,965 | $33.94 | | |
| SWHIDPRMT | P & R S Whidbey GEN | 0.2053334452 | $2,442,965 | $2,442,965 | $501.62 | | |
| | Total Tax Rate: | 6.6934522006 | | | | | |
| | | | | Taxes w/Current Exemptions: | $16,351.87 | | |
| | | | | Taxes w/o Exemptions: | $16,351.87 | | |
Improvement / Building
| Improvement #1: | RESIDENTIAL | State Code: | Y | 988.0 sqft | Value: | $192,365 |
| Bathrooms: | 1 | Bedrooms: | 3 | | Ceiling: | DRYWALL PAINTED | Exterior Wall/Cover: | WOOD SIDING | | Floor Covering: | CARPET/VINYL 60-40 | Floor Structure: | WOOD W/SUBFLOOR | | Foundation: | CONCRETE | Heating: | BASEBOARD ELECTRIC | | Interior Finish: | DRYWALL PAINT | Plumbing Fixture Cnt: | 7 | | Roof Slope: | 5" IN 12" | Roof Structure/Cover: | BEAM ALUMINUM HEAVY |
|
| | Type | Description | Class CD | Sub Class CD | Year Built | Area |
| | BAS | BASE/MAIN FLOOR | 3 | 0 | 1969 | 988.0 |
| | DGR | DETACHED GARAGE | 3 | 0 | 1969 | 560.0 |
| | OWP | OPEN WOOD PORCH W/STEPS | 3 | 0 | 1969 | 679.0 |
Sketch
Property Image
Land
| 1 | LB | LOW BANK | 0.0000 | 0.00 | 60.00 | 0.00 | 1.00 | $2,250,000 | $0 |
| 2 | 55 | TIDES | 0.0000 | 0.00 | 60.00 | 0.00 | 1.00 | $600 | $0 |
Roll Value History
| 2026 | N/A | N/A | N/A | N/A | N/A |
| 2025 | $192,365 | $2,250,600 | $0 | $2,442,965 | $2,442,965 |
| 2024 | $198,791 | $2,250,600 | $0 | $2,449,391 | $2,449,391 |
| 2023 | $202,256 | $2,300,600 | $0 | $2,502,856 | $2,502,856 |
| 2022 | $185,553 | $2,000,600 | $0 | $2,186,153 | $2,186,153 |
| 2021 | $163,436 | $1,300,600 | $0 | $1,464,036 | $1,464,036 |
| 2020 | $159,220 | $1,050,600 | $0 | $1,209,820 | $1,209,820 |
| 2019 | $109,818 | $1,100,600 | $0 | $1,210,418 | $1,210,418 |
| 2018 | $110,169 | $950,600 | $0 | $1,060,769 | $1,060,769 |
| 2017 | $110,870 | $950,600 | $0 | $1,061,470 | $1,061,470 |
| 2016 | $112,273 | $950,600 | $0 | $1,062,873 | $1,062,873 |
| 2015 | $113,676 | $950,600 | $0 | $1,064,276 | $1,064,276 |
| 2014 | $115,080 | $950,600 | $0 | $1,065,680 | $1,065,680 |
| 2013 | $99,629 | $901,644 | $0 | $1,001,273 | $1,001,273 |
| 2012 | $101,026 | $901,644 | $0 | $1,002,670 | $1,002,670 |
| 2011 | $102,424 | $901,644 | $0 | $1,004,068 | $1,004,068 |
| 2010 | $112,323 | $901,644 | $0 | $1,013,967 | $1,013,967 |
| 2009 | $115,673 | $1,077,774 | $0 | $1,193,447 | $1,193,447 |
| 2008 | $99,897 | $1,233,510 | $0 | $1,333,407 | $1,333,407 |
| 2007 | $100,553 | $1,233,101 | $0 | $1,333,654 | $1,333,654 |
Deed and Sales History
| 1 | 02/18/2022 | WD | Warranty Deed | CORBIN, NANCY L | NANCY BEACH LLC | | | $0.00 | 58995 | 4568524 |
| 2 | 02/18/2022 | WD | Warranty Deed | PIONEER SPIRIT, LLC | CORBIN, NANCY L | | | $0.00 | 58991 | 4568505 |
| 3 | 04/29/2020 | WD | Warranty Deed | CORBIN, NANCY L | PIONEER SPIRIT, LLC | | | $0.00 | 58971 | 4568423 |
| 4 | 06/21/2022 | WD | Warranty Deed | OPDYCKE, LINDA LOUISE | CORBIN, NANCY L | | | $0.00 | 58956 | 4568368 |
| 5 | 06/21/2022 | WD | Warranty Deed | NANCY BEACH LLC | NANCY BEACH LLC | | | $0.00 | 54196 | 4549869 |
| 6 | 02/18/2022 | WD | Warranty Deed | CORBIN, NANCY L | NANCY BEACH LLC | | | $0.00 | 52134 | 4540692 |
| 7 | 02/18/2022 | WD | Warranty Deed | PIONEER SPIRIT, LLC | CORBIN, NANCY L | | | $0.00 | 52087 | 4540490 |
| 8 | 04/29/2020 | WD | Warranty Deed | CORBIN TRUSTEE, NANCY L | PIONEER SPIRIT, LLC | | | $0.00 | 42900 | 4485924 |
| 9 | 12/18/2003 | 5 | DNU - Marriage License/Name Change | CORBIN, NANCY L | CORBIN TRUSTEE, NANCY L | | | $0.00 | 40050 | 4088425 |
| 10 | 11/01/1987 | QCD | Quit Claim Deed | OPDYCKE, WALLACE E | CORBIN, NANCY L | | | $85,000.00 | 73531 | 87015399 |
| 11 | 01/01/1900 | OTHER | Other - Misc. Documents | Unknown | OPDYCKE, WALLACE E | | | $0.00 | 0 | 0 |
Payout Agreement
| No payout information available.. |