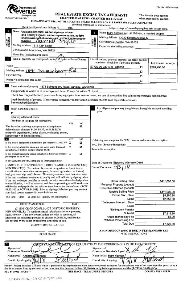
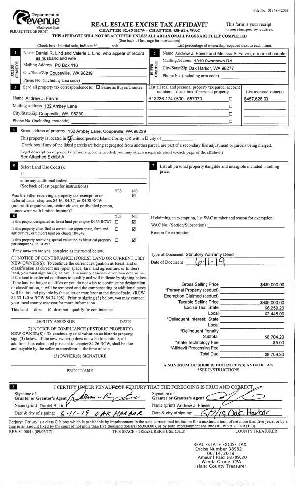
Property
Account |
| Property ID: | 426934 | Abbreviated Legal Description: | WEST VIEW LOT 18 INCL ADJ TIDES |
| Geographic ID: | S8395-00-00018-0 | Agent Code: | |
| Type: | Real | | |
| Tax Area: | 710 - APPRAISER-S Whid Schl Dist, outside Langley, improved & 1 acre or less | Land Use Code | 11 |
| Open Space: | N | DFL | N |
| Historic Property: | N | Remodel Property: | N |
| Multi-Family Redevelopment: | N | | |
| Township: | | Section: | |
| Range: | |
Location |
| Address: | 5944 CEDAR ST FREELAND, WA 98249 | Mapsco: | |
| Neighborhood: | Cycle 3 | Map ID: | 329 |
| Neighborhood CD: | 3 |
Owner |
| Name: | OLSON, MARGARET ANNE | Owner ID: | 309492 |
| Mailing Address: | 8010 RIDGE DR NE SEATTLE, WA 98115 | % Ownership: | 100.0000000000% |
| | | Exemptions: | |
Taxes and Assessment Details
Values
| (+) Improvement Homesite Value: | + | $0 | |
| (+) Improvement Non-Homesite Value: | + | $255,517 | |
| (+) Land Homesite Value: | + | $0 | |
| (+) Land Non-Homesite Value: | + | $1,275,600 | |
| (+) Curr Use (HS): | + | $0 | $0 |
| (+) Curr Use (NHS): | + | $0 | $0 |
| | | -------------------------- | |
| (=) Market Value: | = | $1,531,117 | |
| (–) Productivity Loss: | – | $0 | |
| | | -------------------------- | |
| (=) Subtotal: | = | $1,531,117 | |
| (+) Senior Appraised Value: | + | $0 | |
| (+) Non-Senior Appraised Value: | + | $1,531,117 | |
| | | -------------------------- | |
| (=) Total Appraised Value: | = | $1,531,117 | |
| (–) Senior Exemption Loss: | – | $0 | |
| (–) Exemption Loss: | – | $0 | |
| | | -------------------------- | |
| (=) Taxable Value: | = | $1,531,117 | |
Taxing Jurisdiction
| Owner: | OLSON, MARGARET ANNE | | |
| % Ownership: | 100.0000000000% | | |
| Total Value: | $1,531,117 | | |
| Tax Area: | 710 - APPRAISER-S Whid Schl Dist, outside Langley, improved & 1 acre or less |
| CF | Conservation Futures | 0.0316035091 | $1,531,117 | $1,531,117 | $48.39 | | |
| FIRE3 | Fire & Rescue Dist #3 S Whidbey GEN | 1.2004855531 | $1,531,117 | $1,531,117 | $1,838.08 | | |
| HOBOND | Hospital BOND | 0.1910887512 | $1,531,117 | $1,531,117 | $292.58 | | |
| HOGEN | Hospital GEN | 0.3902502903 | $1,531,117 | $1,531,117 | $597.52 | | |
| CE | County Current Expense | 0.3708482477 | $1,531,117 | $1,531,117 | $567.81 | | |
| CR | County Roads | 0.4584763726 | $1,531,117 | $1,531,117 | $701.98 | | |
| ISLANDEMS | Hospital GEN (EMS) | 0.5000000000 | $1,531,117 | $1,531,117 | $765.56 | | |
| LIB | Library Sno-Isle GEN | 0.3153421757 | $1,531,117 | $1,531,117 | $482.83 | | |
| PORTWHID | Port of S Whidbey GEN | 0.1094540357 | $1,531,117 | $1,531,117 | $167.59 | | |
| SCH206BOND | School 206 BOND | 0.3161759235 | $1,531,117 | $1,531,117 | $484.10 | | |
| SCH206MO | School 206 Enrichment | 0.4547169547 | $1,531,117 | $1,531,117 | $696.22 | | |
| ST | State School | 1.3035497053 | $1,531,117 | $1,531,117 | $1,995.89 | | |
| ST2 | State School Part 2 | 0.8169543533 | $1,531,117 | $1,531,117 | $1,250.85 | | |
| SWHIDPRBD | P & R S Whidbey BOND | 0.0152817568 | $1,531,117 | $1,531,117 | $23.40 | | |
| SWHIDPRBD2 | P & R S Whidbey BOND2 | 0.0138911264 | $1,531,117 | $1,531,117 | $21.27 | | |
| SWHIDPRMT | P & R S Whidbey GEN | 0.2053334452 | $1,531,117 | $1,531,117 | $314.39 | | |
| | Total Tax Rate: | 6.6934522006 | | | | | |
| | | | | Taxes w/Current Exemptions: | $10,248.46 | | |
| | | | | Taxes w/o Exemptions: | $10,248.46 | | |
Improvement / Building
| Improvement #1: | RESIDENTIAL | State Code: | Y | 3977.0 sqft | Value: | $255,517 |
| Bathrooms: | 4.5 | Bedrooms: | 3 | | Ceiling: | DRYWALL PAINTED | Exterior Wall/Cover: | CEMENT FIBER | | Floor Covering: | (NONE) | Floor Structure: | WOOD W/SUBFLOOR | | Foundation: | CONCRETE | Heating: | (NONE) | | Interior Finish: | DRYWALL PAINT | Plumbing Fixture Cnt: | 20 | | Roof Slope: | 8" IN 12" | Roof Structure/Cover: | CJ ASPHALT |
|
| | Type | Description | Class CD | Sub Class CD | Year Built | Area |
| | BAS | BASE/MAIN FLOOR | 4 | 0 | 2025 | 2124.0 |
| | UPS | UPPER STORY | 4 | 0 | 2025 | 1853.0 |
| | AGR | ATTACHED GARAGE | 4 | 0 | 2025 | 556.0 |
| | OP4 | OPEN PORCH W/CEILING-ROOF | 4 | 0 | 2025 | 153.0 |
| | OP4 | OPEN PORCH W/CEILING-ROOF | 4 | 0 | 2025 | 130.0 |
| | OP4 | OPEN PORCH W/CEILING-ROOF | 4 | 0 | 2025 | 75.0 |
Sketch
| No sketches available for this property. |
Property Image
Land
| 1 | LB | LOW BANK | 0.2369 | 10319.36 | 60.00 | 0.00 | 1.00 | $1,275,000 | $0 |
| 2 | 55 | TIDES | 0.0000 | 0.00 | 60.00 | 0.00 | 1.00 | $600 | $0 |
Roll Value History
| 2026 | N/A | N/A | N/A | N/A | N/A |
| 2025 | $255,517 | $1,275,600 | $0 | $1,531,117 | $1,531,117 |
| 2024 | $4,000 | $950,600 | $0 | $954,600 | $954,600 |
| 2023 | $113,551 | $2,300,600 | $0 | $2,414,151 | $2,414,151 |
| 2022 | $104,527 | $2,000,600 | $0 | $2,105,127 | $2,105,127 |
| 2021 | $92,376 | $1,300,600 | $0 | $1,392,976 | $1,392,976 |
| 2020 | $90,428 | $1,050,600 | $0 | $1,141,028 | $1,141,028 |
| 2019 | $62,820 | $1,100,600 | $0 | $1,163,420 | $1,163,420 |
| 2018 | $63,072 | $950,600 | $0 | $1,013,672 | $1,013,672 |
| 2017 | $63,576 | $950,600 | $0 | $1,014,176 | $1,014,176 |
| 2016 | $64,586 | $950,600 | $0 | $1,015,186 | $1,015,186 |
| 2015 | $65,595 | $950,600 | $0 | $1,016,195 | $1,016,195 |
| 2014 | $66,605 | $950,600 | $0 | $1,017,205 | $1,017,205 |
| 2013 | $53,917 | $901,644 | $0 | $955,561 | $955,561 |
| 2012 | $54,929 | $901,644 | $0 | $956,573 | $956,573 |
| 2011 | $55,942 | $901,644 | $0 | $957,586 | $957,586 |
| 2010 | $62,853 | $901,644 | $0 | $964,497 | $964,497 |
| 2009 | $65,728 | $1,077,774 | $0 | $1,143,502 | $1,143,502 |
| 2008 | $62,564 | $1,233,510 | $0 | $1,296,074 | $1,296,074 |
| 2007 | $62,100 | $1,233,101 | $0 | $1,295,201 | $1,295,201 |
Deed and Sales History
| 1 | 07/28/2023 | WD | Warranty Deed | HISCOCK, DAVID F | OLSON, MARGARET ANNE | | | $1,677,500.00 | 57474 | 4562896 |
| 2 | 02/18/2018 | QCD | Quit Claim Deed | BUOL, DIXIE L | HISCOCK, DAVID F | | | $0.00 | 37403 | 4458411 |
| 3 | 12/15/2017 | REC | Real Estate Contract | HISCOCK, D F | HISCOCK, DAVID F | | | $410,000.00 | 33267 | 4440692 |
Payout Agreement
| No payout information available.. |