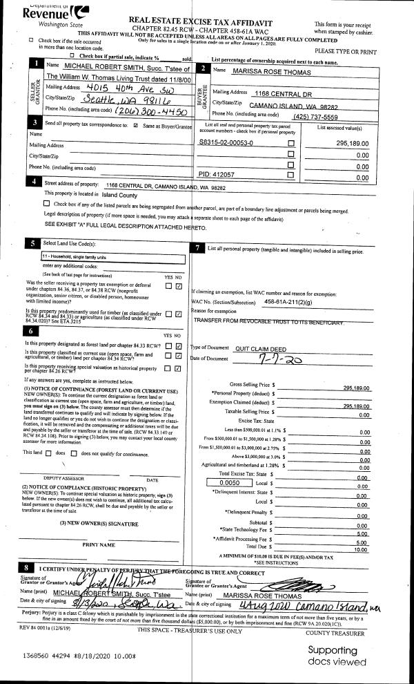
Property
Account |
| Property ID: | 427229 | Abbreviated Legal Description: | WHERE SHIPS PASS LOT 7 |
| Geographic ID: | S8405-00-00007-0 | Agent Code: | |
| Type: | Real | | |
| Tax Area: | 710 - APPRAISER-S Whid Schl Dist, outside Langley, improved & 1 acre or less | Land Use Code | 11 |
| Open Space: | N | DFL | N |
| Historic Property: | N | Remodel Property: | N |
| Multi-Family Redevelopment: | N | | |
| Township: | | Section: | |
| Range: | |
Location |
| Address: | 5827 MUTINY BAY RD FREELAND, WA 98249 | Mapsco: | |
| Neighborhood: | Cycle 3 | Map ID: | 329 |
| Neighborhood CD: | 3 |
Owner |
| Name: | FLOM TTEE, LOIS D | Owner ID: | 288599 |
| Mailing Address: | 2704 VALLEY DOWNS DR LAS VEGAS, NV 89134 | % Ownership: | 100.0000000000% |
| | | Exemptions: | |
Taxes and Assessment Details
Values
| (+) Improvement Homesite Value: | + | $0 | |
| (+) Improvement Non-Homesite Value: | + | $4,000 | |
| (+) Land Homesite Value: | + | $0 | |
| (+) Land Non-Homesite Value: | + | $160,000 | |
| (+) Curr Use (HS): | + | $0 | $0 |
| (+) Curr Use (NHS): | + | $0 | $0 |
| | | -------------------------- | |
| (=) Market Value: | = | $164,000 | |
| (–) Productivity Loss: | – | $0 | |
| | | -------------------------- | |
| (=) Subtotal: | = | $164,000 | |
| (+) Senior Appraised Value: | + | $0 | |
| (+) Non-Senior Appraised Value: | + | $164,000 | |
| | | -------------------------- | |
| (=) Total Appraised Value: | = | $164,000 | |
| (–) Senior Exemption Loss: | – | $0 | |
| (–) Exemption Loss: | – | $0 | |
| | | -------------------------- | |
| (=) Taxable Value: | = | $164,000 | |
Taxing Jurisdiction
| Owner: | FLOM TTEE, LOIS D | | |
| % Ownership: | 100.0000000000% | | |
| Total Value: | $164,000 | | |
| Tax Area: | 710 - APPRAISER-S Whid Schl Dist, outside Langley, improved & 1 acre or less |
| CF | Conservation Futures | 0.0316035091 | $164,000 | $164,000 | $5.18 | | |
| FIRE3 | Fire & Rescue Dist #3 S Whidbey GEN | 1.2004855531 | $164,000 | $164,000 | $196.88 | | |
| HOBOND | Hospital BOND | 0.1910887512 | $164,000 | $164,000 | $31.34 | | |
| HOGEN | Hospital GEN | 0.3902502903 | $164,000 | $164,000 | $64.00 | | |
| CE | County Current Expense | 0.3708482477 | $164,000 | $164,000 | $60.82 | | |
| CR | County Roads | 0.4584763726 | $164,000 | $164,000 | $75.19 | | |
| ISLANDEMS | Hospital GEN (EMS) | 0.5000000000 | $164,000 | $164,000 | $82.00 | | |
| LIB | Library Sno-Isle GEN | 0.3153421757 | $164,000 | $164,000 | $51.72 | | |
| PORTWHID | Port of S Whidbey GEN | 0.1094540357 | $164,000 | $164,000 | $17.95 | | |
| SCH206BOND | School 206 BOND | 0.3161759235 | $164,000 | $164,000 | $51.85 | | |
| SCH206MO | School 206 Enrichment | 0.4547169547 | $164,000 | $164,000 | $74.57 | | |
| ST | State School | 1.3035497053 | $164,000 | $164,000 | $213.78 | | |
| ST2 | State School Part 2 | 0.8169543533 | $164,000 | $164,000 | $133.98 | | |
| SWHIDPRBD | P & R S Whidbey BOND | 0.0152817568 | $164,000 | $164,000 | $2.51 | | |
| SWHIDPRBD2 | P & R S Whidbey BOND2 | 0.0138911264 | $164,000 | $164,000 | $2.28 | | |
| SWHIDPRMT | P & R S Whidbey GEN | 0.2053334452 | $164,000 | $164,000 | $33.67 | | |
| | Total Tax Rate: | 6.6934522006 | | | | | |
| | | | | Taxes w/Current Exemptions: | $1,097.72 | | |
| | | | | Taxes w/o Exemptions: | $1,097.72 | | |
Improvement / Building
| Improvement #1: | RESIDENTIAL | State Code: | Y | 0.0 sqft | Value: | $4,000 |
Sketch
| No sketches available for this property. |
Property Image
Land
| 1 | 15 | SQ (12001-21780) | 0.0000 | 0.00 | 0.00 | 0.00 | 1.00 | $160,000 | $0 |
Roll Value History
| 2026 | N/A | N/A | N/A | N/A | N/A |
| 2025 | $4,000 | $160,000 | $0 | $164,000 | $164,000 |
| 2024 | $4,000 | $160,000 | $0 | $164,000 | $164,000 |
| 2023 | $4,000 | $160,000 | $0 | $164,000 | $164,000 |
| 2022 | $4,000 | $160,000 | $0 | $164,000 | $164,000 |
| 2021 | $4,000 | $160,000 | $0 | $164,000 | $164,000 |
| 2020 | $4,000 | $120,000 | $0 | $124,000 | $124,000 |
| 2019 | $4,000 | $120,000 | $0 | $124,000 | $124,000 |
| 2018 | $4,000 | $100,000 | $0 | $104,000 | $104,000 |
| 2017 | $4,000 | $100,000 | $0 | $104,000 | $104,000 |
| 2016 | $4,000 | $100,000 | $0 | $104,000 | $104,000 |
| 2015 | $4,000 | $100,000 | $0 | $104,000 | $104,000 |
| 2014 | $4,000 | $100,000 | $0 | $104,000 | $104,000 |
| 2013 | $4,000 | $100,000 | $0 | $104,000 | $104,000 |
| 2012 | $4,000 | $97,750 | $0 | $101,750 | $101,750 |
| 2011 | $4,000 | $115,000 | $0 | $119,000 | $119,000 |
| 2010 | $4,000 | $115,000 | $0 | $119,000 | $119,000 |
| 2009 | $4,000 | $140,000 | $0 | $144,000 | $144,000 |
| 2008 | $4,000 | $154,500 | $0 | $158,500 | $158,500 |
| 2007 | $4,000 | $108,150 | $0 | $112,150 | $112,150 |
Deed and Sales History
| 1 | 01/22/2019 | QCD | Quit Claim Deed | FLOM, GORDON K | FLOM TTEE, LOIS D | | | $0.00 | 37409 | 4458443 |
| 2 | 12/19/2013 | QCD | Quit Claim Deed | FLOM, GORDON K | FLOM, GORDON K | | | $0.00 | 13902 | 4353338 |
| 3 | 01/01/1900 | OTHER | Other - Misc. Documents | Unknown | FLOM, GORDON K | | | $0.00 | 0 | 0 |
Payout Agreement
| No payout information available.. |