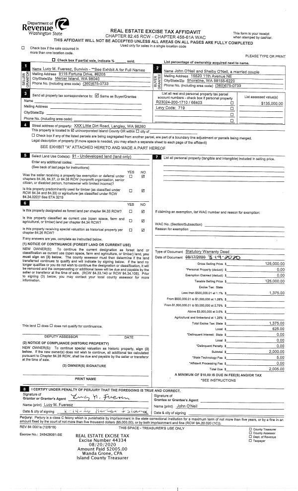
Property
Account |
| Property ID: | 427345 | Abbreviated Legal Description: | WHERE SHIPS PASS 1ST LOTS 4 & 5 INCL R/W |
| Geographic ID: | S8405-01-00005-0 | Agent Code: | |
| Type: | Real | | |
| Tax Area: | 710 - APPRAISER-S Whid Schl Dist, outside Langley, improved & 1 acre or less | Land Use Code | 11 |
| Open Space: | N | DFL | N |
| Historic Property: | N | Remodel Property: | N |
| Multi-Family Redevelopment: | N | | |
| Township: | | Section: | |
| Range: | |
Location |
| Address: | 5808 PIRATE LN FREELAND, WA 98249 | Mapsco: | |
| Neighborhood: | Cycle 3 | Map ID: | 329 |
| Neighborhood CD: | 3 |
Owner |
| Name: | WESLEY JTWROS, MATTHEW W | Owner ID: | 311285 |
| Mailing Address: | MARCIA A WESLEY JTWROS KIERA A WESLEY JTWROS 5808 PIRATE LN FREELAND, WA 98249 | % Ownership: | 100.0000000000% |
| | | Exemptions: | |
Taxes and Assessment Details
Values
| (+) Improvement Homesite Value: | + | $0 | |
| (+) Improvement Non-Homesite Value: | + | $305,569 | |
| (+) Land Homesite Value: | + | $0 | |
| (+) Land Non-Homesite Value: | + | $280,000 | |
| (+) Curr Use (HS): | + | $0 | $0 |
| (+) Curr Use (NHS): | + | $0 | $0 |
| | | -------------------------- | |
| (=) Market Value: | = | $585,569 | |
| (–) Productivity Loss: | – | $0 | |
| | | -------------------------- | |
| (=) Subtotal: | = | $585,569 | |
| (+) Senior Appraised Value: | + | $0 | |
| (+) Non-Senior Appraised Value: | + | $585,569 | |
| | | -------------------------- | |
| (=) Total Appraised Value: | = | $585,569 | |
| (–) Senior Exemption Loss: | – | $0 | |
| (–) Exemption Loss: | – | $0 | |
| | | -------------------------- | |
| (=) Taxable Value: | = | $585,569 | |
Taxing Jurisdiction
| Owner: | WESLEY JTWROS, MATTHEW W | | |
| % Ownership: | 100.0000000000% | | |
| Total Value: | $585,569 | | |
| Tax Area: | 710 - APPRAISER-S Whid Schl Dist, outside Langley, improved & 1 acre or less |
| CF | Conservation Futures | 0.0316035091 | $585,569 | $585,569 | $18.51 | | |
| FIRE3 | Fire & Rescue Dist #3 S Whidbey GEN | 1.2004855531 | $585,569 | $585,569 | $702.97 | | |
| HOBOND | Hospital BOND | 0.1910887512 | $585,569 | $585,569 | $111.90 | | |
| HOGEN | Hospital GEN | 0.3902502903 | $585,569 | $585,569 | $228.52 | | |
| CE | County Current Expense | 0.3708482477 | $585,569 | $585,569 | $217.16 | | |
| CR | County Roads | 0.4584763726 | $585,569 | $585,569 | $268.47 | | |
| ISLANDEMS | Hospital GEN (EMS) | 0.5000000000 | $585,569 | $585,569 | $292.78 | | |
| LIB | Library Sno-Isle GEN | 0.3153421757 | $585,569 | $585,569 | $184.65 | | |
| PORTWHID | Port of S Whidbey GEN | 0.1094540357 | $585,569 | $585,569 | $64.09 | | |
| SCH206BOND | School 206 BOND | 0.3161759235 | $585,569 | $585,569 | $185.14 | | |
| SCH206MO | School 206 Enrichment | 0.4547169547 | $585,569 | $585,569 | $266.27 | | |
| ST | State School | 1.3035497053 | $585,569 | $585,569 | $763.32 | | |
| ST2 | State School Part 2 | 0.8169543533 | $585,569 | $585,569 | $478.38 | | |
| SWHIDPRBD | P & R S Whidbey BOND | 0.0152817568 | $585,569 | $585,569 | $8.95 | | |
| SWHIDPRBD2 | P & R S Whidbey BOND2 | 0.0138911264 | $585,569 | $585,569 | $8.13 | | |
| SWHIDPRMT | P & R S Whidbey GEN | 0.2053334452 | $585,569 | $585,569 | $120.24 | | |
| | Total Tax Rate: | 6.6934522006 | | | | | |
| | | | | Taxes w/Current Exemptions: | $3,919.48 | | |
| | | | | Taxes w/o Exemptions: | $3,919.48 | | |
Improvement / Building
| Improvement #1: | RESIDENTIAL | State Code: | Y | 2039.7 sqft | Value: | $305,569 |
| Bathrooms: | 2.5 | Bedrooms: | 3 | | Ceiling: | DRYWALL PAINTED | Exterior Wall/Cover: | WOOD SIDING | | Floor Covering: | HARDWOOD/CARP 20-80 | Floor Structure: | WOOD W/SUBFLOOR | | Foundation: | CONCRETE | Heating: | WALL HEAT ELECTRIC | | Interior Finish: | DRYWALL PAINT | Plumbing Fixture Cnt: | 12 | | Roof Slope: | 4" IN 12" | Roof Structure/Cover: | CJ ALUMINIUM HEAVY |
|
| | Type | Description | Class CD | Sub Class CD | Year Built | Area |
| | BAS | BASE/MAIN FLOOR | 3 | 0 | 1964 | 1516.2 |
| | OP3 | OPEN PORCH W/ROOF | 3 | 0 | 1964 | 30.0 |
| | OCP | OPEN CARPORT | 3 | 0 | 1964 | 228.0 |
| | UPS | UPPER STORY | 3 | 0 | 1964 | 523.5 |
| | OWP | OPEN WOOD PORCH W/STEPS | 3 | 0 | 1964 | 138.4 |
| | OWP | OPEN WOOD PORCH W/STEPS | 3 | 0 | 1964 | 420.3 |
| | DGR | DETACHED GARAGE | 3 | 0 | 1964 | 672.0 |
Sketch
Property Image
Land
| 1 | 16 | AC (00.51-01.00) | 0.5600 | 24393.60 | 0.00 | 0.00 | 1.00 | $280,000 | $0 |
Roll Value History
| 2026 | N/A | N/A | N/A | N/A | N/A |
| 2025 | $305,569 | $280,000 | $0 | $585,569 | $585,569 |
| 2024 | $309,981 | $280,000 | $0 | $589,981 | $589,981 |
| 2023 | $314,394 | $280,000 | $0 | $594,394 | $594,394 |
| 2022 | $288,676 | $220,000 | $0 | $508,676 | $508,676 |
| 2021 | $254,494 | $160,000 | $0 | $414,494 | $414,494 |
| 2020 | $248,476 | $110,000 | $0 | $358,476 | $358,476 |
| 2019 | $159,060 | $170,000 | $0 | $329,060 | $329,060 |
| 2018 | $159,651 | $160,000 | $0 | $319,651 | $319,651 |
| 2017 | $160,822 | $125,000 | $0 | $285,822 | $285,822 |
| 2016 | $163,187 | $125,000 | $0 | $288,187 | $288,187 |
| 2015 | $165,553 | $100,000 | $0 | $265,553 | $265,553 |
| 2014 | $167,916 | $100,000 | $0 | $267,916 | $267,916 |
| 2013 | $169,509 | $100,000 | $0 | $269,509 | $269,509 |
| 2012 | $177,391 | $89,250 | $0 | $266,641 | $266,641 |
| 2011 | $179,506 | $105,000 | $0 | $284,506 | $284,506 |
| 2010 | $189,570 | $105,000 | $0 | $294,570 | $294,570 |
| 2009 | $197,137 | $132,000 | $0 | $329,137 | $329,137 |
| 2008 | $200,146 | $146,000 | $0 | $346,146 | $346,146 |
| 2007 | $211,058 | $105,000 | $0 | $316,058 | $316,058 |
Deed and Sales History
| 1 | 12/07/2023 | QCD | Quit Claim Deed | WESLEY, MATTHEW W | WESLEY JTWROS, MATTHEW W | | | $10.00 | 59083 | 4568942 |
| 2 | 11/26/2019 | WD | Warranty Deed | FIELDS, DOROTHY V | WESLEY, MATTHEW W | | | $365,000.00 | 41341 | 4476841 |
| 3 | 01/25/2006 | BLA | DNU - Boundary Line Adjustment | FIELDS, DOROTHY V | FIELDS, DOROTHY V | | | $0.00 | 70799 | 4124014 |
| 4 | 01/01/1900 | OTHER | Other - Misc. Documents | Unknown | FIELDS, DOROTHY V | | | $0.00 | 0 | 0 |
Payout Agreement
| No payout information available.. |