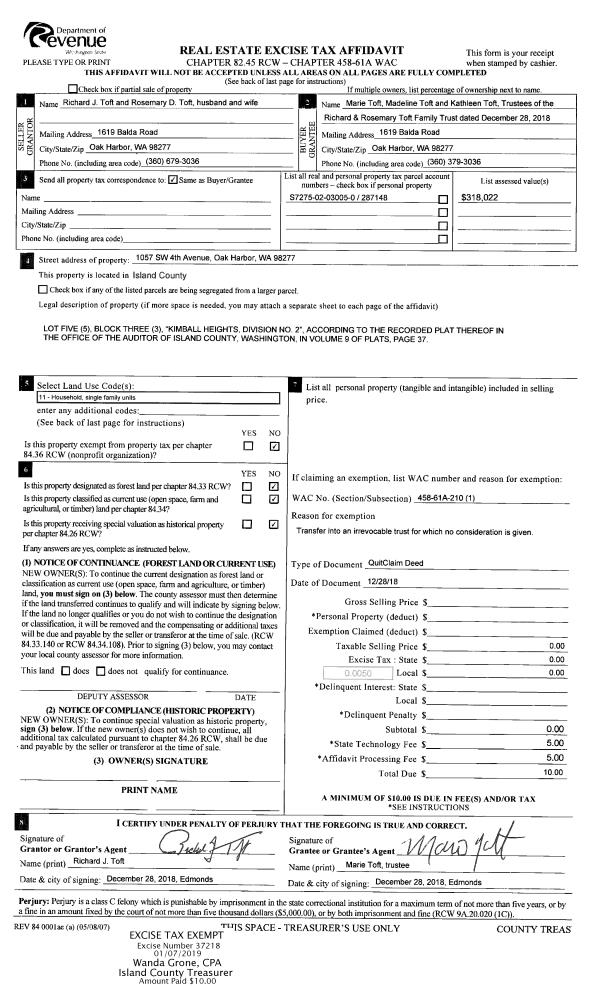
Property
Account |
| Property ID: | 42741 | Abbreviated Legal Description: | 50 ALLEN DC - BG 30'W OF NWCR TAFTEZON DLC N1*E1605 .87' N88*W1093.78' S1*W416 .86' TPB S1*W250' S88*E1093 .78' N1*E250' N88*W1093.78' TPB |
| Geographic ID: | R13335-360-2350 | Agent Code: | |
| Type: | Real | | |
| Tax Area: | 119 - APPRAISER-OH Schl Dist, outside OH, vacant & 50 acres or less | Land Use Code | 91 |
| Open Space: | N | DFL | N |
| Historic Property: | N | Remodel Property: | N |
| Multi-Family Redevelopment: | N | | |
| Township: | 33 | Section: | 35 |
| Range: | R1 |
Location |
| Address: | | Mapsco: | |
| Neighborhood: | Cycle 1 | Map ID: | 258 |
| Neighborhood CD: | 1 |
Owner |
| Name: | CITY OF OAK HARBOR | Owner ID: | 185966 |
| Mailing Address: | 865 SE BARRINGTON DR OAK HARBOR, WA 98277-3280 | % Ownership: | 100.0000000000% |
| | | Exemptions: | EX |
Taxes and Assessment Details
Values
| (+) Improvement Homesite Value: | + | $0 | |
| (+) Improvement Non-Homesite Value: | + | $0 | |
| (+) Land Homesite Value: | + | $0 | |
| (+) Land Non-Homesite Value: | + | $150,000 | |
| (+) Curr Use (HS): | + | $0 | $0 |
| (+) Curr Use (NHS): | + | $0 | $0 |
| | | -------------------------- | |
| (=) Market Value: | = | $150,000 | |
| (–) Productivity Loss: | – | $0 | |
| | | -------------------------- | |
| (=) Subtotal: | = | $150,000 | |
| (+) Senior Appraised Value: | + | $0 | |
| (+) Non-Senior Appraised Value: | + | $150,000 | |
| | | -------------------------- | |
| (=) Total Appraised Value: | = | $150,000 | |
| (–) Senior Exemption Loss: | – | $0 | |
| (–) Exemption Loss: | – | $150,000 | |
| | | -------------------------- | |
| (=) Taxable Value: | = | $0 | |
Taxing Jurisdiction
| Owner: | CITY OF OAK HARBOR | | |
| % Ownership: | 100.0000000000% | | |
| Total Value: | $150,000 | | |
| Tax Area: | 119 - APPRAISER-OH Schl Dist, outside OH, vacant & 50 acres or less |
| CF | Conservation Futures | 0.0316035091 | $150,000 | $0 | $0.00 | | |
| CEM1 | Cemetery #1 | 0.0040320932 | $150,000 | $0 | $0.00 | | |
| HOBOND | Hospital BOND | 0.1910887512 | $150,000 | $0 | $0.00 | | |
| HOGEN | Hospital GEN | 0.3902502903 | $150,000 | $0 | $0.00 | | |
| CE | County Current Expense | 0.3708482477 | $150,000 | $0 | $0.00 | | |
| CR | County Roads | 0.4584763726 | $150,000 | $0 | $0.00 | | |
| ISLANDEMS | Hospital GEN (EMS) | 0.5000000000 | $150,000 | $0 | $0.00 | | |
| LIB | Library Sno-Isle GEN | 0.3153421757 | $150,000 | $0 | $0.00 | | |
| NWHIDPRMT | P & R N Whidbey GEN | 0.2004466701 | $150,000 | $0 | $0.00 | | |
| SCH201MO | School 201 Enrichment | 1.8559231640 | $150,000 | $0 | $0.00 | | |
| ST | State School | 1.3035497053 | $150,000 | $0 | $0.00 | | |
| ST2 | State School Part 2 | 0.8169543533 | $150,000 | $0 | $0.00 | | |
| | Total Tax Rate: | 6.4385153325 | | | | | |
| | | | | Taxes w/Current Exemptions: | $0.00 | | |
| | | | | Taxes w/o Exemptions: | $965.77 | | |
Improvement / Building
Sketch
| No sketches available for this property. |
Property Image
Land
| 1 | 32 | AC (03.01-09.99) | 6.2900 | 273992.40 | 0.00 | 0.00 | 1.00 | $150,000 | $0 |
Roll Value History
| 2026 | N/A | N/A | N/A | N/A | N/A |
| 2025 | $0 | $150,000 | $0 | $150,000 | $0 |
| 2024 | $0 | $150,000 | $0 | $150,000 | $0 |
| 2023 | $0 | $150,000 | $0 | $150,000 | $0 |
| 2022 | $0 | $150,000 | $0 | $150,000 | $0 |
| 2021 | $0 | $120,000 | $0 | $120,000 | $0 |
| 2020 | $0 | $90,000 | $0 | $90,000 | $0 |
| 2019 | $0 | $120,000 | $0 | $120,000 | $0 |
| 2018 | $0 | $105,000 | $0 | $105,000 | $0 |
| 2017 | $0 | $105,000 | $0 | $105,000 | $105,000 |
| 2016 | $0 | $85,000 | $0 | $85,000 | $85,000 |
| 2015 | $0 | $49,850 | $0 | $49,850 | $49,850 |
| 2014 | $0 | $49,850 | $0 | $49,850 | $49,850 |
| 2013 | $0 | $49,850 | $0 | $49,850 | $49,850 |
| 2012 | $0 | $49,850 | $0 | $49,850 | $49,850 |
| 2011 | $0 | $49,850 | $0 | $49,850 | $49,850 |
| 2010 | $0 | $49,850 | $0 | $49,850 | $49,850 |
| 2009 | $0 | $52,000 | $0 | $52,000 | $52,000 |
| 2008 | $0 | $52,000 | $0 | $52,000 | $52,000 |
| 2007 | $0 | $52,000 | $0 | $52,000 | $52,000 |
Deed and Sales History
| 1 | 02/26/2019 | WD | Warranty Deed | MATERNE, JOSE P | CITY OF OAK HARBOR | | | $0.00 | 37741 | 4459892 |
| 2 | 03/01/1992 | QCD | Quit Claim Deed | MATERNE, JOSE P | MATERNE, JOSE P | | | $0.00 | 20985 | 92004941 |
| 3 | 01/01/1900 | OTHER | Other - Misc. Documents | Unknown | MATERNE, JOSE P | | | $0.00 | 0 | 0 |
Payout Agreement
| No payout information available.. |