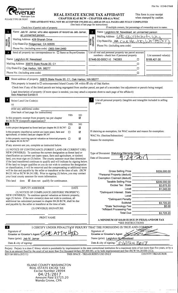
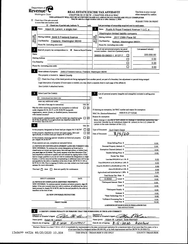
Property
Account |
| Property ID: | 427434 | Abbreviated Legal Description: | WHERE SHIPS PASS 1ST LOT 14 |
| Geographic ID: | S8405-01-00014-0 | Agent Code: | |
| Type: | Real | | |
| Tax Area: | 710 - APPRAISER-S Whid Schl Dist, outside Langley, improved & 1 acre or less | Land Use Code | 11 |
| Open Space: | N | DFL | N |
| Historic Property: | N | Remodel Property: | N |
| Multi-Family Redevelopment: | N | | |
| Township: | | Section: | |
| Range: | |
Location |
| Address: | 5825 PIRATE LN FREELAND, WA 98249 | Mapsco: | |
| Neighborhood: | Cycle 3 | Map ID: | 329 |
| Neighborhood CD: | 3 |
Owner |
| Name: | WOOD, DAGMAR | Owner ID: | 278422 |
| Mailing Address: | WHITNEY BORDEN 5825 PIRATE LN FREELAND, WA 98249 | % Ownership: | 100.0000000000% |
| | | Exemptions: | SNR/DSBL |
Taxes and Assessment Details
Values
| (+) Improvement Homesite Value: | + | $27,366 | |
| (+) Improvement Non-Homesite Value: | + | $27,366 | |
| (+) Land Homesite Value: | + | $125,000 | |
| (+) Land Non-Homesite Value: | + | $125,000 | |
| (+) Curr Use (HS): | + | $0 | $0 |
| (+) Curr Use (NHS): | + | $0 | $0 |
| | | -------------------------- | |
| (=) Market Value: | = | $304,732 | |
| (–) Productivity Loss: | – | $0 | |
| | | -------------------------- | |
| (=) Subtotal: | = | $304,732 | |
| (+) Senior Appraised Value: | + | $95,043 | |
| (+) Non-Senior Appraised Value: | + | $152,366 | |
| | | -------------------------- | |
| (=) Total Appraised Value: | = | $247,409 | |
| (–) Senior Exemption Loss: | – | $60,000 | |
| (–) Exemption Loss: | – | $0 | |
| | | -------------------------- | |
| (=) Taxable Value: | = | $187,409 | |
Taxing Jurisdiction
| Owner: | WOOD, DAGMAR | | |
| % Ownership: | 100.0000000000% | | |
| Total Value: | $304,732 | | |
| Tax Area: | 710 - APPRAISER-S Whid Schl Dist, outside Langley, improved & 1 acre or less |
| CF | Conservation Futures | 0.0316035091 | $304,732 | $187,409 | $5.92 | | |
| FIRE3 | Fire & Rescue Dist #3 S Whidbey GEN | 1.2004855531 | $304,732 | $187,409 | $224.98 | | |
| HOBOND | Hospital BOND | 0.0000000000 | $304,732 | $152,366 | $29.12 | | |
| HOGEN | Hospital GEN | 0.3902502903 | $304,732 | $187,409 | $73.14 | | |
| CE | County Current Expense | 0.3708482477 | $304,732 | $187,409 | $69.50 | | |
| CR | County Roads | 0.4584763726 | $304,732 | $187,409 | $85.92 | | |
| ISLANDEMS | Hospital GEN (EMS) | 0.5000000000 | $304,732 | $187,409 | $93.70 | | |
| LIB | Library Sno-Isle GEN | 0.3153421757 | $304,732 | $187,409 | $59.10 | | |
| PORTWHID | Port of S Whidbey GEN | 0.1094540357 | $304,732 | $187,409 | $20.51 | | |
| SCH206BOND | School 206 BOND | 0.3161759235 | $304,732 | $187,409 | $59.25 | | |
| SCH206MO | School 206 Enrichment | 0.0000000000 | $304,732 | $152,366 | $69.28 | | |
| ST | State School | 1.3035497053 | $304,732 | $187,409 | $244.30 | | |
| ST2 | State School Part 2 | 0.0000000000 | $304,732 | $152,366 | $124.48 | | |
| SWHIDPRBD | P & R S Whidbey BOND | 0.0000000000 | $304,732 | $152,366 | $2.33 | | |
| SWHIDPRBD2 | P & R S Whidbey BOND2 | 0.0000000000 | $304,732 | $152,366 | $2.12 | | |
| SWHIDPRMT | P & R S Whidbey GEN | 0.2053334452 | $304,732 | $187,409 | $38.48 | | |
| | Total Tax Rate: | 5.2015192582 | | | | | |
| | | | | Taxes w/Current Exemptions: | $1,202.13 | | |
| | | | | Taxes w/o Exemptions: | $2,039.70 | | |
Improvement / Building
| Improvement #1: | RESIDENTIAL | State Code: | Y | 472.0 sqft | Value: | $54,732 |
| Bathrooms: | 1 | Bedrooms: | 1 | | Ceiling: | TONGUE & GROOVE | Cooling: | HEAT PUMP/CONV/V | | Exterior Wall/Cover: | WOOD SIDING | Floor Covering: | SOFTWOOD/VINYL 60-40 | | Floor Structure: | WOOD W/SUBFLOOR | Foundation: | PEIRS | | Interior Finish: | DRYWALL PAINT | Plumbing Fixture Cnt: | 6 | | Roof Slope: | 8" IN 12" | Roof Structure/Cover: | CJ ASPHALT |
|
| | Type | Description | Class CD | Sub Class CD | Year Built | Area |
| | BAS | BASE/MAIN FLOOR | 2 | 0 | 1951 | 472.0 |
| | OWR | OPEN WOOD PORCH W/STEPS/ROOF | 2 | 0 | 1951 | 103.0 |
Sketch
Property Image
Land
| 1 | 12 | SQ (00000-06000) | 0.0000 | 0.00 | 0.00 | 0.00 | 1.00 | $250,000 | $0 |
Roll Value History
| 2026 | N/A | N/A | N/A | N/A | N/A |
| 2025 | $54,732 | $250,000 | $0 | $304,732 | $187,409 |
| 2024 | $57,681 | $250,000 | $0 | $307,681 | $188,883 |
| 2023 | $58,806 | $250,000 | $0 | $308,806 | $189,446 |
| 2022 | $54,267 | $220,000 | $0 | $274,267 | $172,176 |
| 2021 | $48,075 | $160,000 | $0 | $208,075 | $139,080 |
| 2020 | $46,900 | $110,000 | $0 | $156,900 | $96,900 |
| 2019 | $29,943 | $170,000 | $0 | $199,943 | $135,014 |
| 2018 | $30,086 | $160,000 | $0 | $190,086 | $130,086 |
| 2017 | $30,373 | $100,000 | $0 | $130,373 | $130,373 |
| 2016 | $30,946 | $100,000 | $0 | $130,946 | $130,946 |
| 2015 | $31,518 | $80,000 | $0 | $111,518 | $111,518 |
| 2014 | $32,092 | $59,500 | $0 | $91,592 | $91,592 |
| 2013 | $23,248 | $100,000 | $0 | $123,248 | $123,248 |
| 2012 | $23,789 | $89,250 | $0 | $113,039 | $113,039 |
| 2011 | $24,329 | $105,000 | $0 | $129,329 | $129,329 |
| 2010 | $29,536 | $105,000 | $0 | $134,536 | $134,536 |
| 2009 | $30,891 | $132,000 | $0 | $162,891 | $162,891 |
| 2008 | $31,421 | $146,000 | $0 | $177,421 | $177,421 |
| 2007 | $31,951 | $105,000 | $0 | $136,951 | $136,951 |
Deed and Sales History
| 1 | 01/25/2017 | WD | Warranty Deed | ELDRED ET AL, GAIL M | WOOD, DAGMAR | | | $129,900.00 | 27964 | 4416440 |
| 2 | 12/05/2016 | ESTSEPPROP | Establish Separate Property | ELDRED ET AL, GAIL M | ELDRED ET AL, GAIL M | | | $0.00 | 27963 | 4416439 |
| 3 | 10/01/1997 | 5 | DNU - Marriage License/Name Change | JOHNSON, GAIL M | ELDRED, GAIL M | | | $0.00 | 67638 | 0 |
| 4 | 04/01/1995 | OTHER | Other - Misc. Documents | JOHNSON, BERTHA - | JOHNSON, GAIL M | | | $0.00 | 66386 | 0 |
| 5 | 07/01/1988 | OTHER | Other - Misc. Documents | JOHNSON, BERTHA - | JOHNSON, BERTHA - | | | $0.00 | 62723 | 0 |
| 6 | 05/01/1980 | CD | DNU - Correction Deed | JOHNSON, WILLIAM G | JOHNSON, BERTHA - | | | $0.00 | 0 | 368857 |
| 7 | 03/01/1979 | CD | DNU - Correction Deed | JOHNSON, BERTHA A | JOHNSON, WILLIAM G | | | $0.00 | 91038 | 348709 |
Payout Agreement
| No payout information available.. |