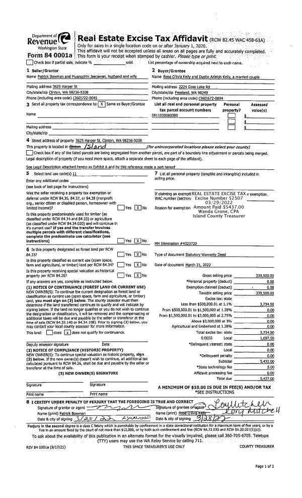
Property
Account |
| Property ID: | 42769 | Abbreviated Legal Description: | EXCESS TO 367-4011 1 - N410' OF W/2 SE NE & PT N410' OF GL7 LY ELY OF HWY EX E510' & EX: BG INT ELN HWY & SLN OF N410' LY E OF GOLDIE RD NELY 50' R/A SELY TO SLN N410' W TPB |
| Geographic ID: | R13335-367-4010 | Agent Code: | |
| Type: | Real | | |
| Tax Area: | 100 - APPRAISER-OH Schl Dist, in OH | Land Use Code | 16 |
| Open Space: | N | DFL | N |
| Historic Property: | N | Remodel Property: | N |
| Multi-Family Redevelopment: | N | | |
| Township: | 33 | Section: | 35 |
| Range: | R1 |
Location |
| Address: | 33020 SR20 OAK HARBOR, WA 98277 | Mapsco: | |
| Neighborhood: | 6AcOH-highway 20 | Map ID: | 259 |
| Neighborhood CD: | 6AcOHhwy20 |
Owner |
| Name: | REIYS OAK HARBOR, LLC | Owner ID: | 307051 |
| Mailing Address: | 15600 NE 8TH ST SUITE B1 #637 BELLEVUE, WA 98008 | % Ownership: | 100.0000000000% |
| | | Exemptions: | |
Taxes and Assessment Details
Values
| (+) Improvement Homesite Value: | + | $0 | |
| (+) Improvement Non-Homesite Value: | + | $544,844 | |
| (+) Land Homesite Value: | + | $0 | |
| (+) Land Non-Homesite Value: | + | $849,420 | |
| (+) Curr Use (HS): | + | $0 | $0 |
| (+) Curr Use (NHS): | + | $0 | $0 |
| | | -------------------------- | |
| (=) Market Value: | = | $1,394,264 | |
| (–) Productivity Loss: | – | $0 | |
| | | -------------------------- | |
| (=) Subtotal: | = | $1,394,264 | |
| (+) Senior Appraised Value: | + | $0 | |
| (+) Non-Senior Appraised Value: | + | $1,394,264 | |
| | | -------------------------- | |
| (=) Total Appraised Value: | = | $1,394,264 | |
| (–) Senior Exemption Loss: | – | $0 | |
| (–) Exemption Loss: | – | $0 | |
| | | -------------------------- | |
| (=) Taxable Value: | = | $1,394,264 | |
Taxing Jurisdiction
| Owner: | REIYS OAK HARBOR, LLC | | |
| % Ownership: | 100.0000000000% | | |
| Total Value: | $1,394,264 | | |
| Tax Area: | 100 - APPRAISER-OH Schl Dist, in OH |
| CF | Conservation Futures | 0.0316035091 | $1,394,264 | $1,394,264 | $44.06 | | |
| CEM1 | Cemetery #1 | 0.0040320932 | $1,394,264 | $1,394,264 | $5.62 | | |
| COH | City of Oak Harbor | 2.3001546061 | $1,394,264 | $1,394,264 | $3,207.02 | | |
| OAKBOND | City of Oak Harbor BOND | 0.1926904192 | $1,394,264 | $1,394,264 | $268.66 | | |
| HOBOND | Hospital BOND | 0.1910887512 | $1,394,264 | $1,394,264 | $266.43 | | |
| HOGEN | Hospital GEN | 0.3902502903 | $1,394,264 | $1,394,264 | $544.11 | | |
| CE | County Current Expense | 0.3708482477 | $1,394,264 | $1,394,264 | $517.06 | | |
| ISLANDEMS | Hospital GEN (EMS) | 0.5000000000 | $1,394,264 | $1,394,264 | $697.13 | | |
| LIB | Library Sno-Isle GEN | 0.3153421757 | $1,394,264 | $1,394,264 | $439.67 | | |
| NWHIDPRMT | P & R N Whidbey GEN | 0.2004466701 | $1,394,264 | $1,394,264 | $279.48 | | |
| SCH201MO | School 201 Enrichment | 1.8559231640 | $1,394,264 | $1,394,264 | $2,587.65 | | |
| ST | State School | 1.3035497053 | $1,394,264 | $1,394,264 | $1,817.49 | | |
| ST2 | State School Part 2 | 0.8169543533 | $1,394,264 | $1,394,264 | $1,139.05 | | |
| | Total Tax Rate: | 8.4728839852 | | | | | |
| | | | | Taxes w/Current Exemptions: | $11,813.43 | | |
| | | | | Taxes w/o Exemptions: | $11,813.43 | | |
Improvement / Building
| Improvement #1: | COMMERCIAL | State Code: | A1 | 2980.5 sqft | Value: | $226,094 |
| Bathrooms: | 0 | Bedrooms: | 0 | | Ceiling: | DRYWALL PAINTED | Exterior Wall/Cover: | WOOD SIDING | | Floor Covering: | CARPET/VINYL 80-20 | Floor Structure: | SLAB ON GRADE | | Foundation: | SLAB | Heating: | BASEBOARD ELECTRIC | | Interior Finish: | DRYWALL PAINT | Plumbing Fixture Cnt: | 16 | | Roof Slope: | FLAT | Roof Structure/Cover: | BEAM BUILT-UP ROCK |
|
| | Type | Description | Class CD | Sub Class CD | Year Built | Area |
| | BAS | BASE/MAIN FLOOR | 3 | 0 | 1959 | 2980.5 |
| | OP4 | OPEN PORCH W/CEILING-ROOF | 3 | 0 | 1959 | 472.2 |
| | oPV2 | PV/ASPH 3" | 3 | 0 | 1959 | 0.0 |
| Improvement #2: | RESIDENTIAL | State Code: | A1 | 1116.0 sqft | Value: | $140,224 |
| Bathrooms: | 1 | Bedrooms: | 0 | | Ceiling: | DRYWALL PAINTED | Exterior Wall/Cover: | PLY/HARDBOARD T-111 | | Floor Covering: | CARPET 100% | Floor Structure: | SLAB ON GRADE | | Foundation: | SLAB | Heating: | BASEBOARD ELECTRIC | | Interior Finish: | DRYWALL PAINT | Plumbing Fixture Cnt: | 6 | | Roof Slope: | 4" IN 12" | Roof Structure/Cover: | CJ ASPHALT |
|
| | Type | Description | Class CD | Sub Class CD | Year Built | Area |
| | BAS | BASE/MAIN FLOOR | 3 | 0 | 1958 | 1116.0 |
| | OP4 | OPEN PORCH W/CEILING-ROOF | 3 | 0 | 1958 | 64.0 |
| | CPD | OPEN CARPORT DIRT FLOOR | 3 | 0 | 1958 | 180.0 |
| | DGR | DETACHED GARAGE | 3 | 0 | 1958 | 572.0 |
| Improvement #3: | COMMERCIAL | State Code: | F1 | 2160.0 sqft | Value: | $178,526 |
| Bathrooms: | 0 | Bedrooms: | 0 | | Ceiling: | DRY WALL SPRAYED | Exterior Wall/Cover: | PLYWD/WD OR ST STUDS | | Floor Covering: | CARPET 100% | Floor Structure: | CONCRETE ON GROUND | | Foundation: | SLAB | Heating: | B/B HOT WATER-GAS | | Interior Finish: | OFFICE | Plumbing Fixture Cnt: | 1 | | Roof Structure/Cover: | BEAM BUILT-UP ROCK |   |   |
|
| | Type | Description | Class CD | Sub Class CD | Year Built | Area |
| | BAS | BASE/MAIN FLOOR | 3 | 0 | 1976 | 1080.0 |
| | UPS | UPPER STORY | 3 | 0 | 1976 | 1080.0 |
| | OWP | OPEN WOOD PORCH W/STEPS | 3 | 0 | 1976 | 87.0 |
| | OWP | OPEN WOOD PORCH W/STEPS | 3 | 0 | 1976 | 87.0 |
| | oPV2 | PV/ASPH 3" | 1 | 0 | 1976 | 0.0 |
| | oLIT | LITE POLE | 1 | 0 | 1976 | 0.0 |
Sketch
Property Image
Land
| 1 | 68 | COMMERCIAL RETAIL | 1.9500 | 84942.00 | 0.00 | 0.00 | 1.00 | $849,420 | $0 |
Roll Value History
| 2026 | N/A | N/A | N/A | N/A | N/A |
| 2025 | $544,844 | $849,420 | $0 | $1,394,264 | $1,394,264 |
| 2024 | $575,385 | $849,420 | $0 | $1,424,805 | $1,424,805 |
| 2023 | $594,152 | $849,420 | $0 | $1,443,572 | $1,443,572 |
| 2022 | $591,271 | $679,536 | $0 | $1,270,807 | $1,270,807 |
| 2021 | $524,629 | $1,189,188 | $0 | $1,713,817 | $1,713,817 |
| 2020 | $515,433 | $1,189,188 | $0 | $1,704,621 | $1,704,621 |
| 2019 | $398,794 | $934,362 | $0 | $1,333,156 | $1,333,156 |
| 2018 | $400,322 | $849,420 | $0 | $1,249,742 | $1,249,742 |
| 2017 | $403,381 | $509,652 | $0 | $913,033 | $913,033 |
| 2016 | $379,394 | $607,320 | $0 | $986,714 | $986,714 |
| 2015 | $239,570 | $607,320 | $0 | $846,890 | $846,890 |
| 2014 | $239,570 | $607,320 | $0 | $846,890 | $846,890 |
| 2013 | $239,570 | $607,320 | $0 | $846,890 | $846,890 |
| 2012 | $239,570 | $607,320 | $0 | $846,890 | $846,890 |
| 2011 | $239,570 | $607,320 | $0 | $846,890 | $846,890 |
| 2010 | $187,760 | $607,320 | $0 | $795,080 | $795,080 |
| 2009 | $193,179 | $687,960 | $0 | $881,139 | $881,139 |
| 2008 | $199,360 | $687,960 | $0 | $887,320 | $887,320 |
| 2007 | $204,327 | $687,960 | $0 | $892,287 | $892,287 |
Deed and Sales History
| 1 | 12/22/2022 | QCD | Quit Claim Deed | EVERYWHERE REAL ESTATE INVESTMENTS LLC | REIYS OAK HARBOR, LLC | | | $0.00 | 55492 | 4555211 |
| 2 | 10/22/2021 | WD | Warranty Deed | HOMES FOR RENT SERVICES | EVERYWHERE REAL ESTATE INVESTMENTS LLC | | | $0.00 | 50741 | 4533040 |
| 3 | 10/22/2021 | WD | Warranty Deed | HOMES FOR RENT SERVICES | EVERYWHERE REAL ESTATE INVESTMENTS LLC | | | $1,250,000.00 | 50717 | 4532795 |
| 4 | 11/17/2004 | WD | Warranty Deed | COHICK, PATRICIA A | HOMES FOR RENT SERVICES, | | | $485,100.00 | 45594 | 4119406 |
| 5 | 12/01/1992 | QCD | Quit Claim Deed | TULL, ROBERT E | COHICK, PATRICIA A | | | $0.00 | 25135 | 92025308 |
| 6 | 06/01/1991 | QCD | Quit Claim Deed | TULL, ROBERT | TULL, ROBERT E | | | $0.00 | 12014 | 91008571 |
| 7 | 12/01/1990 | QCD | Quit Claim Deed | TULL, ROBERT | TULL, ROBERT | | | $0.00 | 6737 | 90023522 |
| 8 | 01/01/1900 | OTHER | Other - Misc. Documents | Unknown | TULL, ROBERT | | | $0.00 | 0 | 0 |
Payout Agreement
| No payout information available.. |