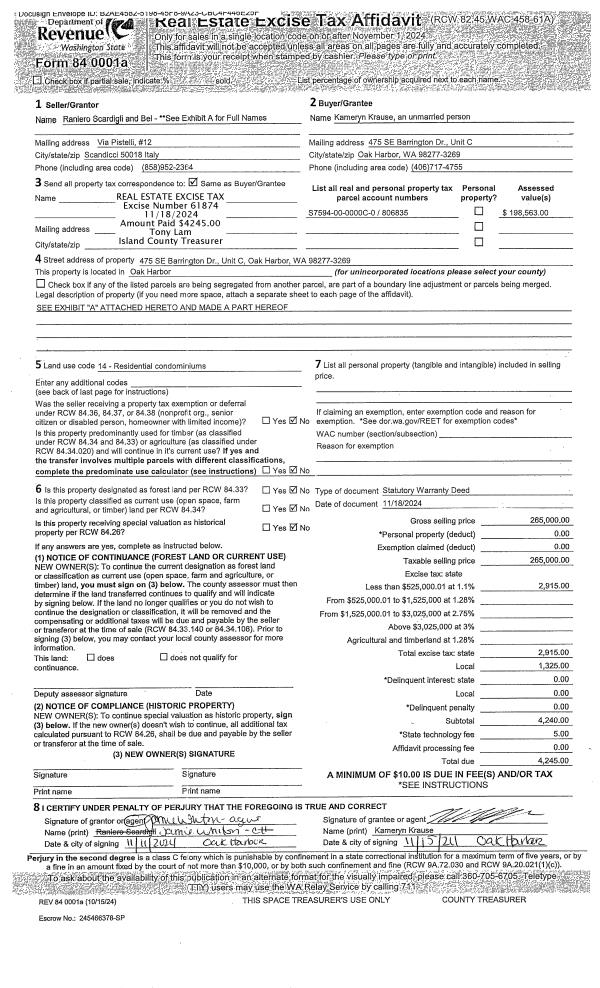
Property
Account |
| Property ID: | 427746 | Abbreviated Legal Description: | WHID CC 1 LOT 19 |
| Geographic ID: | S8410-00-00019-0 | Agent Code: | |
| Type: | Real | | |
| Tax Area: | 160 - APPRAISER-OH Schl Dist, Special Dist, improved & 1 acre or less | Land Use Code | 11 |
| Open Space: | N | DFL | N |
| Historic Property: | N | Remodel Property: | N |
| Multi-Family Redevelopment: | N | | |
| Township: | | Section: | |
| Range: | |
Location |
| Address: | 2262 FAIRWAY LN OAK HARBOR, WA 98277 | Mapsco: | |
| Neighborhood: | Cycle 1 | Map ID: | 96 |
| Neighborhood CD: | 1 |
Owner |
| Name: | LOUNSBERY, HENRY K | Owner ID: | 81102 |
| Mailing Address: | SANDRA T LOUNSBERY 1330 SW KALAMA LOOP OAK HARBOR, WA 98277-4557 | % Ownership: | 100.0000000000% |
| | | Exemptions: | |
Taxes and Assessment Details
Values
| (+) Improvement Homesite Value: | + | $0 | |
| (+) Improvement Non-Homesite Value: | + | $242,485 | |
| (+) Land Homesite Value: | + | $0 | |
| (+) Land Non-Homesite Value: | + | $280,000 | |
| (+) Curr Use (HS): | + | $0 | $0 |
| (+) Curr Use (NHS): | + | $0 | $0 |
| | | -------------------------- | |
| (=) Market Value: | = | $522,485 | |
| (–) Productivity Loss: | – | $0 | |
| | | -------------------------- | |
| (=) Subtotal: | = | $522,485 | |
| (+) Senior Appraised Value: | + | $0 | |
| (+) Non-Senior Appraised Value: | + | $522,485 | |
| | | -------------------------- | |
| (=) Total Appraised Value: | = | $522,485 | |
| (–) Senior Exemption Loss: | – | $0 | |
| (–) Exemption Loss: | – | $0 | |
| | | -------------------------- | |
| (=) Taxable Value: | = | $522,485 | |
Taxing Jurisdiction
| Owner: | LOUNSBERY, HENRY K | | |
| % Ownership: | 100.0000000000% | | |
| Total Value: | $522,485 | | |
| Tax Area: | 160 - APPRAISER-OH Schl Dist, Special Dist, improved & 1 acre or less |
| CF | Conservation Futures | 0.0316035091 | $522,485 | $522,485 | $16.51 | | |
| CEM1 | Cemetery #1 | 0.0040320932 | $522,485 | $522,485 | $2.11 | | |
| FIRE2 | Fire & Rescue Dist #2 N Whidbey GEN | 0.5475949600 | $522,485 | $522,485 | $286.11 | | |
| HOBOND | Hospital BOND | 0.1910887512 | $522,485 | $522,485 | $99.84 | | |
| HOGEN | Hospital GEN | 0.3902502903 | $522,485 | $522,485 | $203.90 | | |
| CE | County Current Expense | 0.3708482477 | $522,485 | $522,485 | $193.76 | | |
| CR | County Roads | 0.4584763726 | $522,485 | $522,485 | $239.55 | | |
| ISLANDEMS | Hospital GEN (EMS) | 0.5000000000 | $522,485 | $522,485 | $261.24 | | |
| LIB | Library Sno-Isle GEN | 0.3153421757 | $522,485 | $522,485 | $164.76 | | |
| NWHIDPRMT | P & R N Whidbey GEN | 0.2004466701 | $522,485 | $522,485 | $104.73 | | |
| SCH201MO | School 201 Enrichment | 1.8559231640 | $522,485 | $522,485 | $969.69 | | |
| ST | State School | 1.3035497053 | $522,485 | $522,485 | $681.09 | | |
| ST2 | State School Part 2 | 0.8169543533 | $522,485 | $522,485 | $426.85 | | |
| | Total Tax Rate: | 6.9861102925 | | | | | |
| | | | | Taxes w/Current Exemptions: | $3,650.14 | | |
| | | | | Taxes w/o Exemptions: | $3,650.14 | | |
Improvement / Building
| Improvement #1: | RESIDENTIAL | State Code: | Y | 1623.0 sqft | Value: | $242,485 |
| Bathrooms: | 2.5 | Bedrooms: | 3 | | Ceiling: | DRYWALL PAINTED | Cooling: | HEAT PUMP/CONV/V | | Exterior Wall/Cover: | PLY/HARDBOARD T-111 | Floor Covering: | CARPET/VINYL 80-20 | | Floor Structure: | WOOD W/SUBFLOOR | Foundation: | CONCRETE BLOCKS | | Interior Finish: | DRYWALL PAINT | Plumbing Fixture Cnt: | 11 | | Roof Slope: | 4" IN 12" | Roof Structure/Cover: | CJ WOOD SHAKES |
|
| | Type | Description | Class CD | Sub Class CD | Year Built | Area |
| | BAS | BASE/MAIN FLOOR | 3 | 0 | 1963 | 1623.0 |
| | OP3 | OPEN PORCH W/ROOF | 3 | 0 | 1963 | 45.0 |
| | OP3 | OPEN PORCH W/ROOF | 3 | 0 | 1963 | 120.0 |
| | OP4 | OPEN PORCH W/CEILING-ROOF | 3 | 0 | 1963 | 25.0 |
| | AGR | ATTACHED GARAGE | 3 | 0 | 1963 | 590.5 |
| | UTY | STORAGE/UTILITY | 3 | 0 | 1963 | 117.0 |
Sketch
Property Image
Land
| 1 | 15 | SQ (12001-21780) | 0.0000 | 0.00 | 0.00 | 0.00 | 1.00 | $280,000 | $0 |
Roll Value History
| 2026 | N/A | N/A | N/A | N/A | N/A |
| 2025 | $242,485 | $280,000 | $0 | $522,485 | $522,485 |
| 2024 | $246,145 | $280,000 | $0 | $526,145 | $526,145 |
| 2023 | $238,823 | $220,000 | $0 | $458,823 | $458,823 |
| 2022 | $219,569 | $190,000 | $0 | $409,569 | $409,569 |
| 2021 | $193,807 | $135,000 | $0 | $328,807 | $328,807 |
| 2020 | $189,189 | $100,000 | $0 | $289,189 | $289,189 |
| 2019 | $136,199 | $150,000 | $0 | $286,199 | $286,199 |
| 2018 | $136,690 | $140,000 | $0 | $276,690 | $276,690 |
| 2017 | $94,588 | $130,000 | $0 | $224,588 | $224,588 |
| 2016 | $96,644 | $130,000 | $0 | $226,644 | $226,644 |
| 2015 | $98,700 | $100,000 | $0 | $198,700 | $198,700 |
| 2014 | $100,756 | $60,000 | $0 | $160,756 | $160,756 |
| 2013 | $102,815 | $80,000 | $0 | $182,815 | $182,815 |
| 2012 | $104,871 | $85,000 | $0 | $189,871 | $189,871 |
| 2011 | $106,989 | $100,000 | $0 | $206,989 | $206,989 |
| 2010 | $122,482 | $100,000 | $0 | $222,482 | $222,482 |
| 2009 | $128,234 | $112,800 | $0 | $241,034 | $241,034 |
| 2008 | $128,234 | $112,800 | $0 | $241,034 | $241,034 |
| 2007 | $130,312 | $112,800 | $0 | $243,112 | $243,112 |
Deed and Sales History
| 1 | 05/01/1980 | WD | Warranty Deed | Unknown | LOUNSBERY, HENRY K | | | $72,000.00 | 1503 | 368333 |
Payout Agreement
| No payout information available.. |