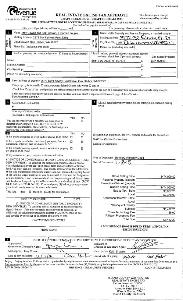
Property
Account |
| Property ID: | 428031 | Abbreviated Legal Description: | WHID CC 2 LOT 47 |
| Geographic ID: | S8410-02-00047-0 | Agent Code: | |
| Type: | Real | | |
| Tax Area: | 160 - APPRAISER-OH Schl Dist, Special Dist, improved & 1 acre or less | Land Use Code | 11 |
| Open Space: | N | DFL | N |
| Historic Property: | N | Remodel Property: | N |
| Multi-Family Redevelopment: | N | | |
| Township: | | Section: | |
| Range: | |
Location |
| Address: | 1553 WEDGEWOOD LN OAK HARBOR, WA 98277 | Mapsco: | |
| Neighborhood: | Cycle 1 | Map ID: | 94 |
| Neighborhood CD: | 1 |
Owner |
| Name: | ESTRADA, AMANDA MARIE | Owner ID: | 287735 |
| Mailing Address: | 6418 COPPERHEAD CT WALDORF, MD 20603 | % Ownership: | 100.0000000000% |
| | | Exemptions: | |
Taxes and Assessment Details
Values
| (+) Improvement Homesite Value: | + | $0 | |
| (+) Improvement Non-Homesite Value: | + | $320,586 | |
| (+) Land Homesite Value: | + | $0 | |
| (+) Land Non-Homesite Value: | + | $190,000 | |
| (+) Curr Use (HS): | + | $0 | $0 |
| (+) Curr Use (NHS): | + | $0 | $0 |
| | | -------------------------- | |
| (=) Market Value: | = | $510,586 | |
| (–) Productivity Loss: | – | $0 | |
| | | -------------------------- | |
| (=) Subtotal: | = | $510,586 | |
| (+) Senior Appraised Value: | + | $0 | |
| (+) Non-Senior Appraised Value: | + | $510,586 | |
| | | -------------------------- | |
| (=) Total Appraised Value: | = | $510,586 | |
| (–) Senior Exemption Loss: | – | $0 | |
| (–) Exemption Loss: | – | $0 | |
| | | -------------------------- | |
| (=) Taxable Value: | = | $510,586 | |
Taxing Jurisdiction
| Owner: | ESTRADA, AMANDA MARIE | | |
| % Ownership: | 100.0000000000% | | |
| Total Value: | $510,586 | | |
| Tax Area: | 160 - APPRAISER-OH Schl Dist, Special Dist, improved & 1 acre or less |
| CF | Conservation Futures | 0.0316035091 | $510,586 | $510,586 | $16.14 | | |
| CEM1 | Cemetery #1 | 0.0040320932 | $510,586 | $510,586 | $2.06 | | |
| FIRE2 | Fire & Rescue Dist #2 N Whidbey GEN | 0.5475949600 | $510,586 | $510,586 | $279.59 | | |
| HOBOND | Hospital BOND | 0.1910887512 | $510,586 | $510,586 | $97.57 | | |
| HOGEN | Hospital GEN | 0.3902502903 | $510,586 | $510,586 | $199.26 | | |
| CE | County Current Expense | 0.3708482477 | $510,586 | $510,586 | $189.35 | | |
| CR | County Roads | 0.4584763726 | $510,586 | $510,586 | $234.09 | | |
| ISLANDEMS | Hospital GEN (EMS) | 0.5000000000 | $510,586 | $510,586 | $255.29 | | |
| LIB | Library Sno-Isle GEN | 0.3153421757 | $510,586 | $510,586 | $161.01 | | |
| NWHIDPRMT | P & R N Whidbey GEN | 0.2004466701 | $510,586 | $510,586 | $102.35 | | |
| SCH201MO | School 201 Enrichment | 1.8559231640 | $510,586 | $510,586 | $947.61 | | |
| ST | State School | 1.3035497053 | $510,586 | $510,586 | $665.57 | | |
| ST2 | State School Part 2 | 0.8169543533 | $510,586 | $510,586 | $417.13 | | |
| | Total Tax Rate: | 6.9861102925 | | | | | |
| | | | | Taxes w/Current Exemptions: | $3,567.02 | | |
| | | | | Taxes w/o Exemptions: | $3,567.02 | | |
Improvement / Building
| Improvement #1: | RESIDENTIAL | State Code: | Y | 2364.0 sqft | Value: | $320,586 |
| Bathrooms: | 3.25 | Bedrooms: | 5 | | Ceiling: | DRYWALL PAINTED | Exterior Wall/Cover: | WOOD SIDING | | Floor Covering: | HARDWOOD/CARP 20-80 | Floor Structure: | WOOD W/SUBFLOOR | | Foundation: | CONCRETE BLOCKS | Heating: | BASEBOARD ELECTRIC | | Interior Finish: | DRYWALL PAINT | Plumbing Fixture Cnt: | 15 | | Roof Slope: | 5" IN 12" | Roof Structure/Cover: | CJ ASPHALT |
|
| | Type | Description | Class CD | Sub Class CD | Year Built | Area |
| | BAS | BASE/MAIN FLOOR | 3 | 0 | 1973 | 1224.0 |
| | AGR | ATTACHED GARAGE | 3 | 0 | 1973 | 506.0 |
| | UPS | UPPER STORY | 3 | 0 | 1973 | 1140.0 |
| | OWP | OPEN WOOD PORCH W/STEPS | 3 | 0 | 1973 | 400.0 |
| | OWC | OPEN WOOD PORCH W/STEPS/ROOF/C | 3 | 0 | 1973 | 54.0 |
Sketch
Property Image
Land
| 1 | 15 | SQ (12001-21780) | 0.0000 | 0.00 | 0.00 | 0.00 | 1.00 | $190,000 | $0 |
Roll Value History
| 2026 | N/A | N/A | N/A | N/A | N/A |
| 2025 | $320,586 | $190,000 | $0 | $510,586 | $510,586 |
| 2024 | $331,556 | $190,000 | $0 | $521,556 | $521,556 |
| 2023 | $322,972 | $190,000 | $0 | $512,972 | $512,972 |
| 2022 | $296,337 | $190,000 | $0 | $486,337 | $486,337 |
| 2021 | $261,065 | $135,000 | $0 | $396,065 | $396,065 |
| 2020 | $254,501 | $100,000 | $0 | $354,501 | $354,501 |
| 2019 | $194,372 | $150,000 | $0 | $344,372 | $344,372 |
| 2018 | $186,458 | $140,000 | $0 | $326,458 | $326,458 |
| 2017 | $159,278 | $120,000 | $0 | $279,278 | $279,278 |
| 2016 | $161,767 | $90,000 | $0 | $251,767 | $251,767 |
| 2015 | $164,255 | $65,000 | $0 | $229,255 | $229,255 |
| 2014 | $166,744 | $60,000 | $0 | $226,744 | $226,744 |
| 2013 | $169,233 | $60,000 | $0 | $229,233 | $229,233 |
| 2012 | $171,721 | $63,750 | $0 | $235,471 | $235,471 |
| 2011 | $176,440 | $75,000 | $0 | $251,440 | $251,440 |
| 2010 | $188,611 | $75,000 | $0 | $263,611 | $263,611 |
| 2009 | $197,001 | $88,800 | $0 | $285,801 | $285,801 |
| 2008 | $199,697 | $88,800 | $0 | $288,497 | $288,497 |
| 2007 | $202,393 | $88,800 | $0 | $291,193 | $291,193 |
Deed and Sales History
| 1 | 10/29/2018 | WD | Warranty Deed | STODOLA RENTAL PROPERTIES | ESTRADA, AMANDA MARIE | | | $369,000.00 | 36500 | 4454343 |
| 2 | 06/25/2014 | QCD | Quit Claim Deed | STODOLA, JEFFREY | STODOLA RENTAL PROPERTIES | | | $0.00 | 16265 | 4363315 |
| 3 | 04/20/2012 | CCOMPROP | Create Community Property | STODOLA, JERRFEY W | STODOLA, JEFFREY | | | $0.00 | 7479 | 431243 |
| 4 | 08/22/2008 | WD | Warranty Deed | MERRITT, DONALD B | STODOLA, JERRFEY W | | | $306,000.00 | 82258 | 4235747 |
| 5 | 02/20/2003 | ESTSEPPROP | Establish Separate Property | WARDLAW, PATRICIA M | MERRITT, DONALD B | | | $0.00 | 3097 | 4050753 |
| 6 | 01/10/2001 | QCD | Quit Claim Deed | WARDLAW, PATRICIA M | WARDLAW, PATRICIA M | | | $0.00 | 10133 | 20023428 |
| 7 | 11/30/1998 | WD | Warranty Deed | KLINE, RONALD E | WARDLAW, PATRICIA M | | | $167,500.00 | 84777 | 98026203 |
| 8 | 10/01/1982 | WD | Warranty Deed | JACKSON, GRADY L | KLINE, RONALD E | | | $102,000.00 | 22627 | 402296 |
| 9 | 01/01/1900 | OTHER | Other - Misc. Documents | Unknown | JACKSON, GRADY L | | | $0.00 | 0 | 0 |
Payout Agreement
| No payout information available.. |