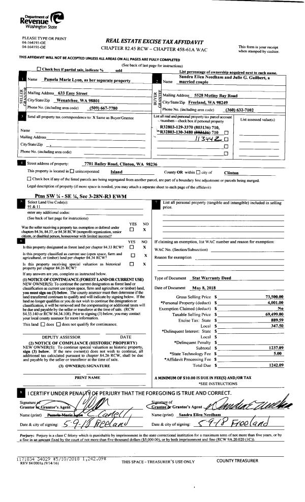
Property
Account |
| Property ID: | 428497 | Abbreviated Legal Description: | WHIDBEY HIGHLANDS LOT 10 TGW (38) - IN NE SE:BG NE CR L10 WHIDBEY HGLNDS N3*W200' W115' S3*E200' TO NW CR L10 E115' TPB |
| Geographic ID: | S8415-00-00010-0 | Agent Code: | |
| Type: | Real | | |
| Tax Area: | 112 - APPRAISER-OH Schl Dist, outside OH, improved, greater than 1 acre | Land Use Code | 11 |
| Open Space: | N | DFL | N |
| Historic Property: | N | Remodel Property: | N |
| Multi-Family Redevelopment: | N | | |
| Township: | | Section: | |
| Range: | |
Location |
| Address: | 756 GREENOCH LOOP OAK HARBOR, WA 98277 | Mapsco: | |
| Neighborhood: | Cycle 6 | Map ID: | 601 |
| Neighborhood CD: | 6 |
Owner |
| Name: | LINS, JAMES MATTHEW | Owner ID: | 285755 |
| Mailing Address: | 756 GREENOCH LOOP OAK HARBOR, WA 98277 | % Ownership: | 100.0000000000% |
| | | Exemptions: | |
Taxes and Assessment Details
Values
| (+) Improvement Homesite Value: | + | $0 | |
| (+) Improvement Non-Homesite Value: | + | $360,543 | |
| (+) Land Homesite Value: | + | $0 | |
| (+) Land Non-Homesite Value: | + | $260,000 | |
| (+) Curr Use (HS): | + | $0 | $0 |
| (+) Curr Use (NHS): | + | $0 | $0 |
| | | -------------------------- | |
| (=) Market Value: | = | $620,543 | |
| (–) Productivity Loss: | – | $0 | |
| | | -------------------------- | |
| (=) Subtotal: | = | $620,543 | |
| (+) Senior Appraised Value: | + | $0 | |
| (+) Non-Senior Appraised Value: | + | $620,543 | |
| | | -------------------------- | |
| (=) Total Appraised Value: | = | $620,543 | |
| (–) Senior Exemption Loss: | – | $0 | |
| (–) Exemption Loss: | – | $0 | |
| | | -------------------------- | |
| (=) Taxable Value: | = | $620,543 | |
Taxing Jurisdiction
| Owner: | LINS, JAMES MATTHEW | | |
| % Ownership: | 100.0000000000% | | |
| Total Value: | $620,543 | | |
| Tax Area: | 112 - APPRAISER-OH Schl Dist, outside OH, improved, greater than 1 acre |
| CF | Conservation Futures | 0.0316035091 | $620,543 | $620,543 | $19.61 | | |
| CEM1 | Cemetery #1 | 0.0040320932 | $620,543 | $620,543 | $2.50 | | |
| FIRE2 | Fire & Rescue Dist #2 N Whidbey GEN | 0.5475949600 | $620,543 | $620,543 | $339.81 | | |
| HOBOND | Hospital BOND | 0.1910887512 | $620,543 | $620,543 | $118.58 | | |
| HOGEN | Hospital GEN | 0.3902502903 | $620,543 | $620,543 | $242.17 | | |
| CE | County Current Expense | 0.3708482477 | $620,543 | $620,543 | $230.13 | | |
| CR | County Roads | 0.4584763726 | $620,543 | $620,543 | $284.50 | | |
| ISLANDEMS | Hospital GEN (EMS) | 0.5000000000 | $620,543 | $620,543 | $310.27 | | |
| LIB | Library Sno-Isle GEN | 0.3153421757 | $620,543 | $620,543 | $195.68 | | |
| NWHIDPRMT | P & R N Whidbey GEN | 0.2004466701 | $620,543 | $620,543 | $124.39 | | |
| SCH201MO | School 201 Enrichment | 1.8559231640 | $620,543 | $620,543 | $1,151.68 | | |
| ST | State School | 1.3035497053 | $620,543 | $620,543 | $808.91 | | |
| ST2 | State School Part 2 | 0.8169543533 | $620,543 | $620,543 | $506.96 | | |
| | Total Tax Rate: | 6.9861102925 | | | | | |
| | | | | Taxes w/Current Exemptions: | $4,335.19 | | |
| | | | | Taxes w/o Exemptions: | $4,335.19 | | |
Improvement / Building
| Improvement #1: | RESIDENTIAL | State Code: | Y | 2993.0 sqft | Value: | $360,543 |
| Bathrooms: | 2.5 | Bedrooms: | 4 | | Ceiling: | DRYWALL PAINTED | Exterior Wall/Cover: | PLY/HARDBOARD T-111 | | Floor Covering: | VINYL/HARDWOOD 80-20 | Floor Structure: | WOOD W/SUBFLOOR | | Foundation: | CONCRETE BLOCKS | Heating: | BASEBOARD ELECTRIC | | Interior Finish: | DRYWALL PAINT | Plumbing Fixture Cnt: | 11 | | Roof Slope: | 4" IN 12" | Roof Structure/Cover: | CJ ASPHALT |
|
| | Type | Description | Class CD | Sub Class CD | Year Built | Area |
| | BAS | BASE/MAIN FLOOR | 3 | 0 | 1964 | 1659.0 |
| | UB6 | BASEMENT UNFINISHED 6" | 3 | 0 | 1964 | 325.0 |
| | OP1 | OPEN PORCH SLAB | 3 | 0 | 1964 | 290.0 |
| | AGR | ATTACHED GARAGE | 3 | 0 | 1964 | 650.0 |
| | OCP | OPEN CARPORT | 3 | 0 | 1964 | 300.0 |
| | OWP | OPEN WOOD PORCH W/STEPS | 3 | 0 | 1964 | 232.0 |
| | DWN | DOWNSTAIRS LIVING AREA | 3 | 0 | 1964 | 1334.0 |
| | UTY | STORAGE/UTILITY | 3 | 0 | 1964 | 256.0 |
Sketch
Property Image
Land
| 1 | 17 | AC (01.01-02.00) | 1.6700 | 72745.20 | 0.00 | 0.00 | 1.00 | $260,000 | $0 |
Roll Value History
| 2026 | N/A | N/A | N/A | N/A | N/A |
| 2025 | $360,543 | $260,000 | $0 | $620,543 | $620,543 |
| 2024 | $373,709 | $220,000 | $0 | $593,709 | $593,709 |
| 2023 | $378,744 | $220,000 | $0 | $598,744 | $598,744 |
| 2022 | $347,499 | $220,000 | $0 | $567,499 | $567,499 |
| 2021 | $306,148 | $160,000 | $0 | $466,148 | $466,148 |
| 2020 | $299,373 | $130,000 | $0 | $429,373 | $429,373 |
| 2019 | $241,086 | $150,000 | $0 | $391,086 | $391,086 |
| 2018 | $241,847 | $150,000 | $0 | $391,847 | $391,847 |
| 2017 | $243,369 | $130,000 | $0 | $373,369 | $373,369 |
| 2016 | $230,176 | $120,000 | $0 | $350,176 | $350,176 |
| 2015 | $233,361 | $170,000 | $0 | $403,361 | $403,361 |
| 2014 | $236,546 | $100,000 | $0 | $336,546 | $336,546 |
| 2013 | $247,178 | $80,750 | $0 | $327,928 | $327,928 |
| 2012 | $250,466 | $80,750 | $0 | $331,216 | $331,216 |
| 2011 | $253,752 | $95,000 | $0 | $348,752 | $348,752 |
| 2010 | $265,993 | $95,000 | $0 | $360,993 | $360,993 |
| 2009 | $277,448 | $105,000 | $0 | $382,448 | $382,448 |
| 2008 | $280,996 | $175,750 | $0 | $456,746 | $456,746 |
| 2007 | $284,523 | $175,750 | $0 | $460,273 | $460,273 |
Deed and Sales History
| 1 | 05/22/2018 | QCD | Quit Claim Deed | LINS, JAMES M | LINS, JAMES MATTHEW | | | $0.00 | 34736 | 4446986 |
| 2 | 09/24/2004 | WD | Warranty Deed | LAMAR, MICHAEL D | LINS, JAMES M | | | $323,587.00 | 44654 | 4114537 |
| 3 | 09/10/1999 | WD | Warranty Deed | LEBAILLY, EUGENE B/MARGRET | LAMAR, MICHAEL D | | | $242,500.00 | 93789 | 99021202 |
| 4 | 01/01/1900 | OTHER | Other - Misc. Documents | Unknown | LEBAILLY, EUGENE B/MARGRET | | | $0.00 | 0 | 0 |
Payout Agreement
| No payout information available.. |