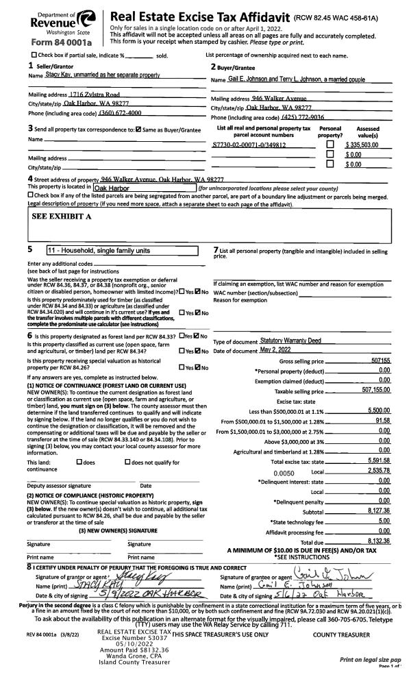
Property
Account |
| Property ID: | 428503 | Abbreviated Legal Description: | WHIDBEY HIGHLANDS LOT 11 |
| Geographic ID: | S8415-00-00011-0 | Agent Code: | |
| Type: | Real | | |
| Tax Area: | 110 - APPRAISER-OH Schl Dist, outside OH, improved & 1 acre or less | Land Use Code | 11 |
| Open Space: | N | DFL | N |
| Historic Property: | N | Remodel Property: | N |
| Multi-Family Redevelopment: | N | | |
| Township: | | Section: | |
| Range: | |
Location |
| Address: | 752 GREENOCH LOOP OAK HARBOR, WA 98277 | Mapsco: | |
| Neighborhood: | Cycle 6 | Map ID: | 601 |
| Neighborhood CD: | 6 |
Owner |
| Name: | CHRISTIAN JTWROS, DENNIS H | Owner ID: | 301756 |
| Mailing Address: | LESLIE CHRISTIAN JTWROS 752 GREENOCH LP OAK HARBOR, WA 98277 | % Ownership: | 100.0000000000% |
| | | Exemptions: | |
Taxes and Assessment Details
Values
| (+) Improvement Homesite Value: | + | $0 | |
| (+) Improvement Non-Homesite Value: | + | $326,875 | |
| (+) Land Homesite Value: | + | $0 | |
| (+) Land Non-Homesite Value: | + | $250,000 | |
| (+) Curr Use (HS): | + | $0 | $0 |
| (+) Curr Use (NHS): | + | $0 | $0 |
| | | -------------------------- | |
| (=) Market Value: | = | $576,875 | |
| (–) Productivity Loss: | – | $0 | |
| | | -------------------------- | |
| (=) Subtotal: | = | $576,875 | |
| (+) Senior Appraised Value: | + | $0 | |
| (+) Non-Senior Appraised Value: | + | $576,875 | |
| | | -------------------------- | |
| (=) Total Appraised Value: | = | $576,875 | |
| (–) Senior Exemption Loss: | – | $0 | |
| (–) Exemption Loss: | – | $0 | |
| | | -------------------------- | |
| (=) Taxable Value: | = | $576,875 | |
Taxing Jurisdiction
| Owner: | CHRISTIAN JTWROS, DENNIS H | | |
| % Ownership: | 100.0000000000% | | |
| Total Value: | $576,875 | | |
| Tax Area: | 110 - APPRAISER-OH Schl Dist, outside OH, improved & 1 acre or less |
| CF | Conservation Futures | 0.0316035091 | $576,875 | $576,875 | $18.23 | | |
| CEM1 | Cemetery #1 | 0.0040320932 | $576,875 | $576,875 | $2.33 | | |
| FIRE2 | Fire & Rescue Dist #2 N Whidbey GEN | 0.5475949600 | $576,875 | $576,875 | $315.89 | | |
| HOBOND | Hospital BOND | 0.1910887512 | $576,875 | $576,875 | $110.23 | | |
| HOGEN | Hospital GEN | 0.3902502903 | $576,875 | $576,875 | $225.13 | | |
| CE | County Current Expense | 0.3708482477 | $576,875 | $576,875 | $213.93 | | |
| CR | County Roads | 0.4584763726 | $576,875 | $576,875 | $264.48 | | |
| ISLANDEMS | Hospital GEN (EMS) | 0.5000000000 | $576,875 | $576,875 | $288.44 | | |
| LIB | Library Sno-Isle GEN | 0.3153421757 | $576,875 | $576,875 | $181.91 | | |
| NWHIDPRMT | P & R N Whidbey GEN | 0.2004466701 | $576,875 | $576,875 | $115.63 | | |
| SCH201MO | School 201 Enrichment | 1.8559231640 | $576,875 | $576,875 | $1,070.64 | | |
| ST | State School | 1.3035497053 | $576,875 | $576,875 | $751.99 | | |
| ST2 | State School Part 2 | 0.8169543533 | $576,875 | $576,875 | $471.28 | | |
| | Total Tax Rate: | 6.9861102925 | | | | | |
| | | | | Taxes w/Current Exemptions: | $4,030.11 | | |
| | | | | Taxes w/o Exemptions: | $4,030.11 | | |
Improvement / Building
| Improvement #1: | RESIDENTIAL | State Code: | Y | 3036.0 sqft | Value: | $326,875 |
| Bathrooms: | 3 | Bedrooms: | 4 | | Ceiling: | DRY WALL SPRAYED | Exterior Wall/Cover: | VINYL | | Floor Covering: | CARPET/VINYL 80-20 | Floor Structure: | WOOD W/SUBFLOOR | | Foundation: | CONCRETE | Heating: | BASEBOARD ELECTRIC | | Interior Finish: | DRYWALL PAINT | Plumbing Fixture Cnt: | 12 | | Roof Slope: | 4" IN 12" | Roof Structure/Cover: | CJ ASPHALT |
|
| | Type | Description | Class CD | Sub Class CD | Year Built | Area |
| | BAS | BASE/MAIN FLOOR | 3 | 0 | 1974 | 979.0 |
| | DWN | DOWNSTAIRS LIVING AREA | 3 | 0 | 1974 | 1091.0 |
| | OP1 | OPEN PORCH SLAB | 3 | 0 | 1974 | 615.0 |
| | UPS | UPPER STORY | 3 | 0 | 1974 | 966.0 |
| | OP4 | OPEN PORCH W/CEILING-ROOF | 3 | 0 | 1974 | 40.0 |
| | BIG | BUILT IN GARAGE | 3 | 0 | 1974 | 483.0 |
| | UTY | STORAGE/UTILITY | 3 | 0 | 1974 | 276.0 |
| | OWC | OPEN WOOD PORCH W/STEPS/ROOF/C | 3 | 0 | 1974 | 112.0 |
| | OWC | OPEN WOOD PORCH W/STEPS/ROOF/C | 3 | 0 | 1974 | 112.0 |
| | OWP | OPEN WOOD PORCH W/STEPS | 3 | 0 | 1974 | 196.0 |
Sketch
Property Image
Land
| 1 | 15 | SQ (12001-21780) | 0.4577 | 19937.41 | 0.00 | 0.00 | 1.00 | $250,000 | $0 |
Roll Value History
| 2026 | N/A | N/A | N/A | N/A | N/A |
| 2025 | $326,875 | $250,000 | $0 | $576,875 | $576,875 |
| 2024 | $338,819 | $220,000 | $0 | $558,819 | $558,819 |
| 2023 | $343,505 | $220,000 | $0 | $563,505 | $563,505 |
| 2022 | $306,796 | $220,000 | $0 | $526,796 | $526,796 |
| 2021 | $270,490 | $160,000 | $0 | $430,490 | $430,490 |
| 2020 | $264,634 | $130,000 | $0 | $394,634 | $394,634 |
| 2019 | $213,101 | $150,000 | $0 | $363,101 | $363,101 |
| 2018 | $213,809 | $150,000 | $0 | $363,809 | $363,809 |
| 2017 | $215,225 | $130,000 | $0 | $345,225 | $345,225 |
| 2016 | $182,617 | $120,000 | $0 | $302,617 | $302,617 |
| 2015 | $185,342 | $110,000 | $0 | $295,342 | $295,342 |
| 2014 | $188,067 | $63,750 | $0 | $251,817 | $251,817 |
| 2013 | $190,793 | $63,750 | $0 | $254,543 | $254,543 |
| 2012 | $193,519 | $63,750 | $0 | $257,269 | $257,269 |
| 2011 | $196,246 | $75,000 | $0 | $271,246 | $271,246 |
| 2010 | $183,365 | $75,000 | $0 | $258,365 | $258,365 |
| 2009 | $191,266 | $80,000 | $0 | $271,266 | $271,266 |
| 2008 | $193,808 | $71,690 | $0 | $265,498 | $265,498 |
| 2007 | $196,349 | $71,690 | $0 | $268,039 | $268,039 |
Deed and Sales History
| 1 | 10/28/2021 | QCD | Quit Claim Deed | CHRISTIAN, DENNIS H | CHRISTIAN JTWROS, DENNIS H | | | $0.00 | 50643 | 4532467 |
| 2 | 04/25/2011 | QCD | Quit Claim Deed | CHRISTIAN, DENNIS H | CHRISTIAN, DENNIS H | | | $0.00 | 4399 | 4295056 |
| 3 | 10/01/1996 | WD | Warranty Deed | LEVINGS, WILLIAM H | CHRISTIAN, DENNIS H | | | $174,500.00 | 63814 | 96018467 |
| 4 | 08/01/1980 | REC | Real Estate Contract | ORWALL, WALTER B | LEVINGS, WILLIAM H | | | $99,950.00 | 2841 | 372904 |
| 5 | 08/01/1978 | OTHER | Other - Misc. Documents | Unknown | ORWALL, WALTER B | | | $84,000.00 | 84159 | 338756 |
Payout Agreement
| No payout information available.. |