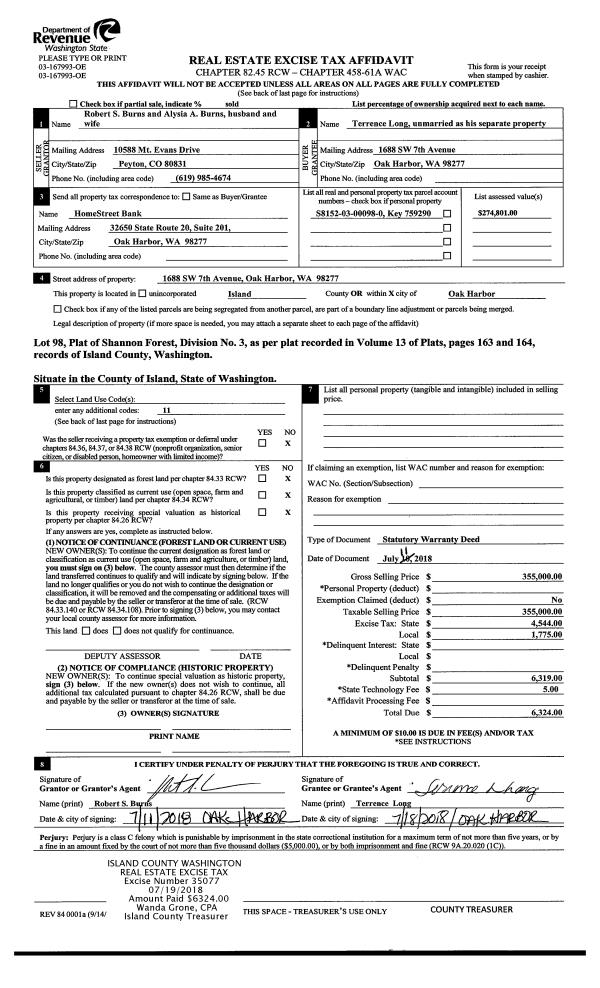
Property
Account |
| Property ID: | 428558 | Abbreviated Legal Description: | WHIDBEY HIGHLANDS LOT 16 |
| Geographic ID: | S8415-00-00016-0 | Agent Code: | |
| Type: | Real | | |
| Tax Area: | 110 - APPRAISER-OH Schl Dist, outside OH, improved & 1 acre or less | Land Use Code | 11 |
| Open Space: | N | DFL | N |
| Historic Property: | N | Remodel Property: | N |
| Multi-Family Redevelopment: | N | | |
| Township: | | Section: | |
| Range: | |
Location |
| Address: | 732 GREENOCH LOOP OAK HARBOR, WA 98277 | Mapsco: | |
| Neighborhood: | Cycle 6 | Map ID: | 601 |
| Neighborhood CD: | 6 |
Owner |
| Name: | MERRIMAN, RYAN DOUGLAS | Owner ID: | 285718 |
| Mailing Address: | SARALYN R MERRIMAN 732 GREENOCH LOOP OAK HARBOR, WA 98277 | % Ownership: | 100.0000000000% |
| | | Exemptions: | |
Taxes and Assessment Details
Values
| (+) Improvement Homesite Value: | + | $0 | |
| (+) Improvement Non-Homesite Value: | + | $448,485 | |
| (+) Land Homesite Value: | + | $0 | |
| (+) Land Non-Homesite Value: | + | $200,000 | |
| (+) Curr Use (HS): | + | $0 | $0 |
| (+) Curr Use (NHS): | + | $0 | $0 |
| | | -------------------------- | |
| (=) Market Value: | = | $648,485 | |
| (–) Productivity Loss: | – | $0 | |
| | | -------------------------- | |
| (=) Subtotal: | = | $648,485 | |
| (+) Senior Appraised Value: | + | $0 | |
| (+) Non-Senior Appraised Value: | + | $648,485 | |
| | | -------------------------- | |
| (=) Total Appraised Value: | = | $648,485 | |
| (–) Senior Exemption Loss: | – | $0 | |
| (–) Exemption Loss: | – | $0 | |
| | | -------------------------- | |
| (=) Taxable Value: | = | $648,485 | |
Taxing Jurisdiction
| Owner: | MERRIMAN, RYAN DOUGLAS | | |
| % Ownership: | 100.0000000000% | | |
| Total Value: | $648,485 | | |
| Tax Area: | 110 - APPRAISER-OH Schl Dist, outside OH, improved & 1 acre or less |
| CF | Conservation Futures | 0.0316035091 | $648,485 | $648,485 | $20.49 | | |
| CEM1 | Cemetery #1 | 0.0040320932 | $648,485 | $648,485 | $2.61 | | |
| FIRE2 | Fire & Rescue Dist #2 N Whidbey GEN | 0.5475949600 | $648,485 | $648,485 | $355.11 | | |
| HOBOND | Hospital BOND | 0.1910887512 | $648,485 | $648,485 | $123.92 | | |
| HOGEN | Hospital GEN | 0.3902502903 | $648,485 | $648,485 | $253.07 | | |
| CE | County Current Expense | 0.3708482477 | $648,485 | $648,485 | $240.49 | | |
| CR | County Roads | 0.4584763726 | $648,485 | $648,485 | $297.32 | | |
| ISLANDEMS | Hospital GEN (EMS) | 0.5000000000 | $648,485 | $648,485 | $324.24 | | |
| LIB | Library Sno-Isle GEN | 0.3153421757 | $648,485 | $648,485 | $204.49 | | |
| NWHIDPRMT | P & R N Whidbey GEN | 0.2004466701 | $648,485 | $648,485 | $129.99 | | |
| SCH201MO | School 201 Enrichment | 1.8559231640 | $648,485 | $648,485 | $1,203.54 | | |
| ST | State School | 1.3035497053 | $648,485 | $648,485 | $845.33 | | |
| ST2 | State School Part 2 | 0.8169543533 | $648,485 | $648,485 | $529.78 | | |
| | Total Tax Rate: | 6.9861102925 | | | | | |
| | | | | Taxes w/Current Exemptions: | $4,530.38 | | |
| | | | | Taxes w/o Exemptions: | $4,530.38 | | |
Improvement / Building
| Improvement #1: | RESIDENTIAL | State Code: | Y | 2100.8 sqft | Value: | $448,485 |
| Bathrooms: | 2.5 | Bedrooms: | 3 | | Ceiling: | DRYWALL PAINTED | Exterior Wall/Cover: | CEMENT FIBER | | Floor Covering: | HARDWOOD/CARP 60-40 | Floor Structure: | WOOD W/SUBFLOOR | | Foundation: | CONCRETE | Heating: | FHA GAS | | Interior Finish: | DRYWALL PAINT | Plumbing Fixture Cnt: | 13 | | Roof Slope: | 6" IN 12" | Roof Structure/Cover: | CJ ASPHALT |
|
| | Type | Description | Class CD | Sub Class CD | Year Built | Area |
| | BAS | BASE/MAIN FLOOR | 4 | 0 | 2005 | 1054.8 |
| | AGR | ATTACHED GARAGE | 4 | 0 | 2005 | 576.0 |
| | UPS | UPPER STORY | 4 | 0 | 2005 | 1046.0 |
| | OWP | OPEN WOOD PORCH W/STEPS | 4 | 0 | 2005 | 477.9 |
| | OWC | OPEN WOOD PORCH W/STEPS/ROOF/C | 4 | 0 | 2005 | 126.5 |
| | UTY | STORAGE/UTILITY | 4 | 0 | 2005 | 120.0 |
Sketch
Property Image
Land
| 1 | 16 | AC (00.51-01.00) | 0.8700 | 37897.20 | 0.00 | 0.00 | 1.00 | $200,000 | $0 |
Roll Value History
| 2026 | N/A | N/A | N/A | N/A | N/A |
| 2025 | $448,485 | $200,000 | $0 | $648,485 | $648,485 |
| 2024 | $453,686 | $200,000 | $0 | $653,686 | $653,686 |
| 2023 | $458,885 | $200,000 | $0 | $658,885 | $658,885 |
| 2022 | $414,949 | $200,000 | $0 | $614,949 | $614,949 |
| 2021 | $363,878 | $130,000 | $0 | $493,878 | $493,878 |
| 2020 | $353,229 | $130,000 | $0 | $483,229 | $483,229 |
| 2019 | $262,004 | $150,000 | $0 | $412,004 | $412,004 |
| 2018 | $230,412 | $150,000 | $0 | $380,412 | $380,412 |
| 2017 | $231,684 | $120,000 | $0 | $351,684 | $351,684 |
| 2016 | $224,290 | $90,000 | $0 | $314,290 | $314,290 |
| 2015 | $226,840 | $85,000 | $0 | $311,840 | $311,840 |
| 2014 | $229,389 | $80,000 | $0 | $309,389 | $309,389 |
| 2013 | $231,937 | $80,750 | $0 | $312,687 | $312,687 |
| 2012 | $234,484 | $80,750 | $0 | $315,234 | $315,234 |
| 2011 | $237,034 | $95,000 | $0 | $332,034 | $332,034 |
| 2010 | $251,961 | $95,000 | $0 | $346,961 | $346,961 |
| 2009 | $260,113 | $105,000 | $0 | $365,113 | $365,113 |
| 2008 | $263,366 | $65,270 | $0 | $328,636 | $328,636 |
| 2007 | $232,294 | $99,555 | $0 | $331,849 | $331,849 |
Deed and Sales History
| 1 | 06/22/2018 | WD | Warranty Deed | FREEMAN, LEE T | MERRIMAN, RYAN DOUGLAS | | | $407,000.00 | 34692 | 4446844 |
| 2 | 12/08/2015 | WD | Warranty Deed | HINDERER, WAYNE D | FREEMAN, LEE T | | | $310,000.00 | 22461 | 4390942 |
| 3 | 04/04/2005 | WD | Warranty Deed | RAYMOND, JESSE | HINDERER, WAYNE D | | | $285,000.00 | 51431 | 4130479 |
| 4 | 06/22/2004 | WD | Warranty Deed | BADGER TRUSTEE, JOY | RAYMOND, JESSE | | | $55,000.00 | 42742 | 4104625 |
| 5 | 01/04/2002 | TRUSTEED | Trustee's Deed | BADGER, HAROLD R | BADGER TRUSTEE, JOY | | | $0.00 | 20299 | 4009107 |
| 6 | 03/01/1994 | QCD | Quit Claim Deed | BADGER, HAROLD R | BADGER, HAROLD R | | | $0.00 | 41368 | 94008443 |
| 7 | 01/01/1900 | OTHER | Other - Misc. Documents | Unknown | BADGER, HAROLD R | | | $0.00 | 0 | 0 |
Payout Agreement
| No payout information available.. |