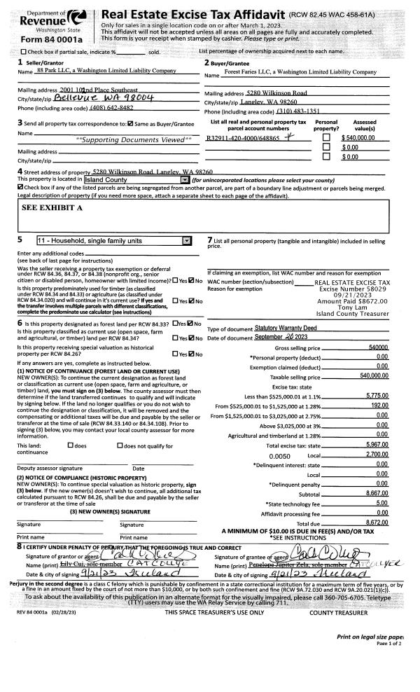
Property
Account |
| Property ID: | 428567 | Abbreviated Legal Description: | WHIDBEY HIGHLANDS LOT 17 |
| Geographic ID: | S8415-00-00017-0 | Agent Code: | |
| Type: | Real | | |
| Tax Area: | 110 - APPRAISER-OH Schl Dist, outside OH, improved & 1 acre or less | Land Use Code | 11 |
| Open Space: | N | DFL | N |
| Historic Property: | N | Remodel Property: | N |
| Multi-Family Redevelopment: | N | | |
| Township: | | Section: | |
| Range: | |
Location |
| Address: | 730 GREENOCH LOOP OAK HARBOR, WA 98277 | Mapsco: | |
| Neighborhood: | Cycle 6 | Map ID: | 601 |
| Neighborhood CD: | 6 |
Owner |
| Name: | KRAGNESS, BRIAN D | Owner ID: | 270449 |
| Mailing Address: | 730 GREENOCH LOOP OAK HARBOR, WA 98277 | % Ownership: | 100.0000000000% |
| | | Exemptions: | |
Taxes and Assessment Details
Values
| (+) Improvement Homesite Value: | + | $0 | |
| (+) Improvement Non-Homesite Value: | + | $446,873 | |
| (+) Land Homesite Value: | + | $0 | |
| (+) Land Non-Homesite Value: | + | $200,000 | |
| (+) Curr Use (HS): | + | $0 | $0 |
| (+) Curr Use (NHS): | + | $0 | $0 |
| | | -------------------------- | |
| (=) Market Value: | = | $646,873 | |
| (–) Productivity Loss: | – | $0 | |
| | | -------------------------- | |
| (=) Subtotal: | = | $646,873 | |
| (+) Senior Appraised Value: | + | $0 | |
| (+) Non-Senior Appraised Value: | + | $646,873 | |
| | | -------------------------- | |
| (=) Total Appraised Value: | = | $646,873 | |
| (–) Senior Exemption Loss: | – | $0 | |
| (–) Exemption Loss: | – | $0 | |
| | | -------------------------- | |
| (=) Taxable Value: | = | $646,873 | |
Taxing Jurisdiction
| Owner: | KRAGNESS, BRIAN D | | |
| % Ownership: | 100.0000000000% | | |
| Total Value: | $646,873 | | |
| Tax Area: | 110 - APPRAISER-OH Schl Dist, outside OH, improved & 1 acre or less |
| CF | Conservation Futures | 0.0316035091 | $646,873 | $646,873 | $20.44 | | |
| CEM1 | Cemetery #1 | 0.0040320932 | $646,873 | $646,873 | $2.61 | | |
| FIRE2 | Fire & Rescue Dist #2 N Whidbey GEN | 0.5475949600 | $646,873 | $646,873 | $354.22 | | |
| HOBOND | Hospital BOND | 0.1910887512 | $646,873 | $646,873 | $123.61 | | |
| HOGEN | Hospital GEN | 0.3902502903 | $646,873 | $646,873 | $252.44 | | |
| CE | County Current Expense | 0.3708482477 | $646,873 | $646,873 | $239.89 | | |
| CR | County Roads | 0.4584763726 | $646,873 | $646,873 | $296.58 | | |
| ISLANDEMS | Hospital GEN (EMS) | 0.5000000000 | $646,873 | $646,873 | $323.44 | | |
| LIB | Library Sno-Isle GEN | 0.3153421757 | $646,873 | $646,873 | $203.99 | | |
| NWHIDPRMT | P & R N Whidbey GEN | 0.2004466701 | $646,873 | $646,873 | $129.66 | | |
| SCH201MO | School 201 Enrichment | 1.8559231640 | $646,873 | $646,873 | $1,200.55 | | |
| ST | State School | 1.3035497053 | $646,873 | $646,873 | $843.23 | | |
| ST2 | State School Part 2 | 0.8169543533 | $646,873 | $646,873 | $528.47 | | |
| | Total Tax Rate: | 6.9861102925 | | | | | |
| | | | | Taxes w/Current Exemptions: | $4,519.13 | | |
| | | | | Taxes w/o Exemptions: | $4,519.13 | | |
Improvement / Building
| Improvement #1: | RESIDENTIAL | State Code: | Y | 2634.5 sqft | Value: | $446,873 |
| Bathrooms: | 2.5 | Bedrooms: | 3 | | Ceiling: | DRYWALL PAINTED | Cooling: | HEAT PUMP/CONV/V | | Exterior Wall/Cover: | CEMENT FIBER | Floor Covering: | CARPET/VINYL 80-20 | | Floor Structure: | WOOD W/SUBFLOOR | Foundation: | CONCRETE | | Interior Finish: | DRYWALL PAINT | Plumbing Fixture Cnt: | 14 | | Roof Slope: | 6" IN 12" | Roof Structure/Cover: | CJ ASPHALT |
|
| | Type | Description | Class CD | Sub Class CD | Year Built | Area |
| | BAS | BASE/MAIN FLOOR | 3 | 0 | 1992 | 1568.5 |
| | OP1 | OPEN PORCH SLAB | 3 | 0 | 1992 | 512.3 |
| | AGR | ATTACHED GARAGE | 3 | 0 | 1992 | 462.0 |
| | UPS | UPPER STORY | 3 | 0 | 1992 | 1066.0 |
| | OWP | OPEN WOOD PORCH W/STEPS | 3 | 0 | 1992 | 289.8 |
| | OWC | OPEN WOOD PORCH W/STEPS/ROOF/C | 3 | 0 | 1992 | 416.0 |
| | DGR | DETACHED GARAGE | 3 | 0 | 1992 | 988.0 |
Sketch
Property Image
Land
| 1 | 16 | AC (00.51-01.00) | 0.8700 | 37897.20 | 0.00 | 0.00 | 1.00 | $200,000 | $0 |
Roll Value History
| 2026 | N/A | N/A | N/A | N/A | N/A |
| 2025 | $446,873 | $200,000 | $0 | $646,873 | $646,873 |
| 2024 | $452,512 | $200,000 | $0 | $652,512 | $652,512 |
| 2023 | $458,153 | $200,000 | $0 | $658,153 | $658,153 |
| 2022 | $419,969 | $200,000 | $0 | $619,969 | $619,969 |
| 2021 | $369,611 | $130,000 | $0 | $499,611 | $499,611 |
| 2020 | $360,450 | $130,000 | $0 | $490,450 | $490,450 |
| 2019 | $280,487 | $150,000 | $0 | $430,487 | $430,487 |
| 2018 | $281,310 | $150,000 | $0 | $431,310 | $431,310 |
| 2017 | $282,957 | $120,000 | $0 | $402,957 | $402,957 |
| 2016 | $289,371 | $90,000 | $0 | $379,371 | $379,371 |
| 2015 | $292,943 | $85,000 | $0 | $377,943 | $377,943 |
| 2014 | $274,747 | $80,000 | $0 | $354,747 | $354,747 |
| 2013 | $278,225 | $80,750 | $0 | $358,975 | $358,975 |
| 2012 | $281,703 | $80,750 | $0 | $362,453 | $362,453 |
| 2011 | $285,180 | $95,000 | $0 | $380,180 | $380,180 |
| 2010 | $319,139 | $95,000 | $0 | $414,139 | $414,139 |
| 2009 | $331,549 | $105,000 | $0 | $436,549 | $436,549 |
| 2008 | $333,778 | $65,270 | $0 | $399,048 | $399,048 |
| 2007 | $302,569 | $100,856 | $0 | $403,425 | $403,425 |
Deed and Sales History
| 1 | 06/01/2015 | WD | Warranty Deed | SAMPSON, TERRY E | KRAGNESS, BRIAN D | | | $370,000.00 | 19805 | 4379424 |
| 2 | 09/16/2003 | WD | Warranty Deed | BUTLER, JAMES G | SAMPSON, TERRY E | | | $265,000.00 | 34304 | 4076529 |
| 3 | 03/01/1993 | WD | Warranty Deed | PARKER, ALAN D | BUTLER, JAMES G | | | $197,000.00 | 30913 | 93004803 |
| 4 | 11/01/1991 | WD | Warranty Deed | LINDER, ARTHUR S | PARKER, ALAN D | | | $16,600.00 | 14019 | 91017203 |
| 5 | 01/01/1900 | OTHER | Other - Misc. Documents | Unknown | LINDER, ARTHUR S | | | $0.00 | 0 | 0 |
Payout Agreement
| No payout information available.. |