Property
Account |
| Property ID: | 428674 | Abbreviated Legal Description: | WHIDBEY HIGHLANDS LOT 28 |
| Geographic ID: | S8415-00-00028-0 | Agent Code: | |
| Type: | Real | | |
| Tax Area: | 110 - APPRAISER-OH Schl Dist, outside OH, improved & 1 acre or less | Land Use Code | 11 |
| Open Space: | N | DFL | N |
| Historic Property: | N | Remodel Property: | N |
| Multi-Family Redevelopment: | N | | |
| Township: | | Section: | |
| Range: | |
Location |
| Address: | 735 GREENOCH LOOP OAK HARBOR, WA 98277 | Mapsco: | |
| Neighborhood: | Cycle 6 | Map ID: | 601 |
| Neighborhood CD: | 6 |
Owner |
| Name: | JACOBSON, TYLER A | Owner ID: | 285517 |
| Mailing Address: | DANIELLE M JACOBSON 735 GREENOCH LOOP OAK HARBOR, WA 98277 | % Ownership: | 100.0000000000% |
| | | Exemptions: | |
Taxes and Assessment Details
Values
| (+) Improvement Homesite Value: | + | $0 | |
| (+) Improvement Non-Homesite Value: | + | $259,451 | |
| (+) Land Homesite Value: | + | $0 | |
| (+) Land Non-Homesite Value: | + | $200,000 | |
| (+) Curr Use (HS): | + | $0 | $0 |
| (+) Curr Use (NHS): | + | $0 | $0 |
| | | -------------------------- | |
| (=) Market Value: | = | $459,451 | |
| (–) Productivity Loss: | – | $0 | |
| | | -------------------------- | |
| (=) Subtotal: | = | $459,451 | |
| (+) Senior Appraised Value: | + | $0 | |
| (+) Non-Senior Appraised Value: | + | $459,451 | |
| | | -------------------------- | |
| (=) Total Appraised Value: | = | $459,451 | |
| (–) Senior Exemption Loss: | – | $0 | |
| (–) Exemption Loss: | – | $0 | |
| | | -------------------------- | |
| (=) Taxable Value: | = | $459,451 | |
Taxing Jurisdiction
| Owner: | JACOBSON, TYLER A | | |
| % Ownership: | 100.0000000000% | | |
| Total Value: | $459,451 | | |
| Tax Area: | 110 - APPRAISER-OH Schl Dist, outside OH, improved & 1 acre or less |
| CF | Conservation Futures | 0.0316035091 | $459,451 | $459,451 | $14.52 | | |
| CEM1 | Cemetery #1 | 0.0040320932 | $459,451 | $459,451 | $1.85 | | |
| FIRE2 | Fire & Rescue Dist #2 N Whidbey GEN | 0.5475949600 | $459,451 | $459,451 | $251.59 | | |
| HOBOND | Hospital BOND | 0.1910887512 | $459,451 | $459,451 | $87.80 | | |
| HOGEN | Hospital GEN | 0.3902502903 | $459,451 | $459,451 | $179.30 | | |
| CE | County Current Expense | 0.3708482477 | $459,451 | $459,451 | $170.39 | | |
| CR | County Roads | 0.4584763726 | $459,451 | $459,451 | $210.65 | | |
| ISLANDEMS | Hospital GEN (EMS) | 0.5000000000 | $459,451 | $459,451 | $229.73 | | |
| LIB | Library Sno-Isle GEN | 0.3153421757 | $459,451 | $459,451 | $144.88 | | |
| NWHIDPRMT | P & R N Whidbey GEN | 0.2004466701 | $459,451 | $459,451 | $92.10 | | |
| SCH201MO | School 201 Enrichment | 1.8559231640 | $459,451 | $459,451 | $852.71 | | |
| ST | State School | 1.3035497053 | $459,451 | $459,451 | $598.92 | | |
| ST2 | State School Part 2 | 0.8169543533 | $459,451 | $459,451 | $375.35 | | |
| | Total Tax Rate: | 6.9861102925 | | | | | |
| | | | | Taxes w/Current Exemptions: | $3,209.79 | | |
| | | | | Taxes w/o Exemptions: | $3,209.79 | | |
Improvement / Building
| Improvement #1: | RESIDENTIAL | State Code: | Y | 1601.0 sqft | Value: | $259,451 |
| Bathrooms: | 1.75 | Bedrooms: | 3 | | Ceiling: | BEAM PAINTED | Exterior Wall/Cover: | WOOD SIDING | | Floor Covering: | CARPET/VINYL 80-20 | Floor Structure: | WOOD W/SUBFLOOR | | Foundation: | CONCRETE | Heating: | FHA ELECTRIC | | Interior Finish: | DRYWALL PAINT | Plumbing Fixture Cnt: | 9 | | Roof Slope: | 5" IN 12" | Roof Structure/Cover: | BEAM ASPHALT |
|
| | Type | Description | Class CD | Sub Class CD | Year Built | Area |
| | BAS | BASE/MAIN FLOOR | 3 | 0 | 1979 | 1601.0 |
| | AGR | ATTACHED GARAGE | 3 | 0 | 1979 | 459.0 |
| | OWP | OPEN WOOD PORCH W/STEPS | 3 | 0 | 1979 | 600.0 |
| | OWC | OPEN WOOD PORCH W/STEPS/ROOF/C | 3 | 0 | 1979 | 28.0 |
Sketch
Property Image
Land
| 1 | 15 | SQ (12001-21780) | 0.4040 | 17598.24 | 0.00 | 0.00 | 1.00 | $200,000 | $0 |
Roll Value History
| 2026 | N/A | N/A | N/A | N/A | N/A |
| 2025 | $259,451 | $200,000 | $0 | $459,451 | $459,451 |
| 2024 | $258,466 | $200,000 | $0 | $458,466 | $458,466 |
| 2023 | $262,043 | $200,000 | $0 | $462,043 | $462,043 |
| 2022 | $240,515 | $200,000 | $0 | $440,515 | $440,515 |
| 2021 | $211,977 | $130,000 | $0 | $341,977 | $341,977 |
| 2020 | $206,933 | $130,000 | $0 | $336,933 | $336,933 |
| 2019 | $151,680 | $150,000 | $0 | $301,680 | $301,680 |
| 2018 | $140,440 | $150,000 | $0 | $290,440 | $290,440 |
| 2017 | $141,423 | $120,000 | $0 | $261,423 | $261,423 |
| 2016 | $131,621 | $90,000 | $0 | $221,621 | $221,621 |
| 2015 | $133,556 | $85,000 | $0 | $218,556 | $218,556 |
| 2014 | $135,492 | $63,750 | $0 | $199,242 | $199,242 |
| 2013 | $137,427 | $63,750 | $0 | $201,177 | $201,177 |
| 2012 | $139,364 | $63,750 | $0 | $203,114 | $203,114 |
| 2011 | $141,300 | $75,000 | $0 | $216,300 | $216,300 |
| 2010 | $151,905 | $75,000 | $0 | $226,905 | $226,905 |
| 2009 | $156,503 | $80,000 | $0 | $236,503 | $236,503 |
| 2008 | $158,491 | $65,270 | $0 | $223,761 | $223,761 |
| 2007 | $160,481 | $65,270 | $0 | $225,751 | $225,751 |
Deed and Sales History
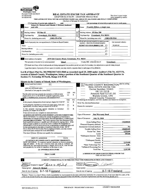
| 1 | 06/19/2018 | WD | Warranty Deed | DICKINSON, CHESTER R | JACOBSON, TYLER A | | | $309,900.00 | 34623 | 4446597 |
| 2 | 03/01/1995 | WD | Warranty Deed | EWING, WALTER L | DICKINSON, CHESTER R | | | $136,000.00 | 50987 | 95004794 |
| 3 | 05/01/1987 | WD | Warranty Deed | THOMPSON, JOHN M | EWING, WALTER L | | | $76,500.00 | 71426 | 87006863 |
| 4 | 07/01/1981 | WD | Warranty Deed | RIPPINGER, DANIEL J | THOMPSON, JOHN M | | | $81,000.00 | 12323 | 386035 |
| 5 | 10/01/1979 | WD | Warranty Deed | VENTURE, EXCAVATION & | RIPPINGER, DANIEL J | | | $68,950.00 | 94998 | 360203 |
| 6 | 06/01/1978 | OTHER | Other - Misc. Documents | Unknown | VENTURE, EXCAVATION & | | | $24,023.00 | 830160 | 3352410 |
Payout Agreement
| No payout information available.. |