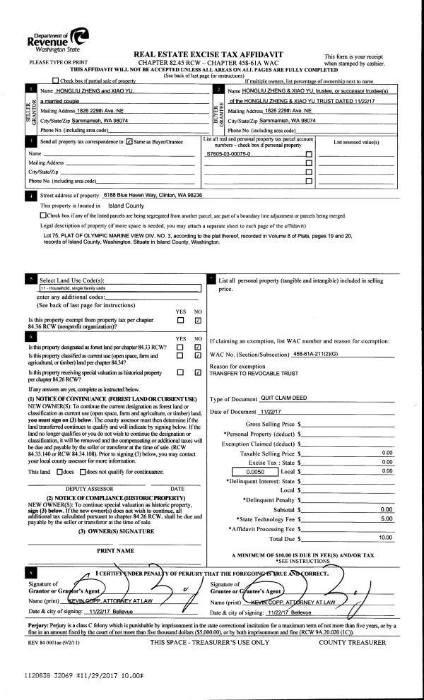
Property
Account |
| Property ID: | 428692 | Abbreviated Legal Description: | WHIDBEY HIGHLANDS LOT 30 |
| Geographic ID: | S8415-00-00030-0 | Agent Code: | |
| Type: | Real | | |
| Tax Area: | 110 - APPRAISER-OH Schl Dist, outside OH, improved & 1 acre or less | Land Use Code | 11 |
| Open Space: | N | DFL | N |
| Historic Property: | N | Remodel Property: | N |
| Multi-Family Redevelopment: | N | | |
| Township: | | Section: | |
| Range: | |
Location |
| Address: | 727 GREENOCH LOOP OAK HARBOR, WA 98277 | Mapsco: | |
| Neighborhood: | Cycle 6 | Map ID: | 601 |
| Neighborhood CD: | 6 |
Owner |
| Name: | BUABENG, DANIEL | Owner ID: | 301872 |
| Mailing Address: | 727GREENOCH LP OAK HARBOR, WA 98277 | % Ownership: | 100.0000000000% |
| | | Exemptions: | |
Taxes and Assessment Details
Values
| (+) Improvement Homesite Value: | + | $0 | |
| (+) Improvement Non-Homesite Value: | + | $303,481 | |
| (+) Land Homesite Value: | + | $0 | |
| (+) Land Non-Homesite Value: | + | $200,000 | |
| (+) Curr Use (HS): | + | $0 | $0 |
| (+) Curr Use (NHS): | + | $0 | $0 |
| | | -------------------------- | |
| (=) Market Value: | = | $503,481 | |
| (–) Productivity Loss: | – | $0 | |
| | | -------------------------- | |
| (=) Subtotal: | = | $503,481 | |
| (+) Senior Appraised Value: | + | $0 | |
| (+) Non-Senior Appraised Value: | + | $503,481 | |
| | | -------------------------- | |
| (=) Total Appraised Value: | = | $503,481 | |
| (–) Senior Exemption Loss: | – | $0 | |
| (–) Exemption Loss: | – | $0 | |
| | | -------------------------- | |
| (=) Taxable Value: | = | $503,481 | |
Taxing Jurisdiction
| Owner: | BUABENG, DANIEL | | |
| % Ownership: | 100.0000000000% | | |
| Total Value: | $503,481 | | |
| Tax Area: | 110 - APPRAISER-OH Schl Dist, outside OH, improved & 1 acre or less |
| CF | Conservation Futures | 0.0316035091 | $503,481 | $503,481 | $15.91 | | |
| CEM1 | Cemetery #1 | 0.0040320932 | $503,481 | $503,481 | $2.03 | | |
| FIRE2 | Fire & Rescue Dist #2 N Whidbey GEN | 0.5475949600 | $503,481 | $503,481 | $275.70 | | |
| HOBOND | Hospital BOND | 0.1910887512 | $503,481 | $503,481 | $96.21 | | |
| HOGEN | Hospital GEN | 0.3902502903 | $503,481 | $503,481 | $196.48 | | |
| CE | County Current Expense | 0.3708482477 | $503,481 | $503,481 | $186.72 | | |
| CR | County Roads | 0.4584763726 | $503,481 | $503,481 | $230.83 | | |
| ISLANDEMS | Hospital GEN (EMS) | 0.5000000000 | $503,481 | $503,481 | $251.74 | | |
| LIB | Library Sno-Isle GEN | 0.3153421757 | $503,481 | $503,481 | $158.77 | | |
| NWHIDPRMT | P & R N Whidbey GEN | 0.2004466701 | $503,481 | $503,481 | $100.92 | | |
| SCH201MO | School 201 Enrichment | 1.8559231640 | $503,481 | $503,481 | $934.42 | | |
| ST | State School | 1.3035497053 | $503,481 | $503,481 | $656.31 | | |
| ST2 | State School Part 2 | 0.8169543533 | $503,481 | $503,481 | $411.32 | | |
| | Total Tax Rate: | 6.9861102925 | | | | | |
| | | | | Taxes w/Current Exemptions: | $3,517.36 | | |
| | | | | Taxes w/o Exemptions: | $3,517.36 | | |
Improvement / Building
| Improvement #1: | RESIDENTIAL | State Code: | Y | 1872.0 sqft | Value: | $303,481 |
| Bathrooms: | 2.5 | Bedrooms: | 3 | | Ceiling: | DRY WALL SPRAYED | Exterior Wall/Cover: | WOOD SIDING | | Floor Covering: | HARDWOOD 100% | Floor Structure: | WOOD W/SUBFLOOR | | Foundation: | CONCRETE | Heating: | FHA ELECTRIC | | Interior Finish: | DRYWALL PAINT | Plumbing Fixture Cnt: | 11 | | Roof Slope: | 4" IN 12" | Roof Structure/Cover: | CJ ASPHALT |
|
| | Type | Description | Class CD | Sub Class CD | Year Built | Area |
| | BAS | BASE/MAIN FLOOR | 3 | 0 | 1978 | 1272.0 |
| | BIG | BUILT IN GARAGE | 3 | 0 | 1978 | 552.0 |
| | OWP | OPEN WOOD PORCH W/STEPS | 3 | 0 | 1978 | 69.0 |
| | OWP | OPEN WOOD PORCH W/STEPS | 3 | 0 | 1978 | 404.8 |
| | OWR | OPEN WOOD PORCH W/STEPS/ROOF | 3 | 0 | 1978 | 274.9 |
| | DWN | DOWNSTAIRS LIVING AREA | 3 | 0 | 1978 | 600.0 |
Sketch
Property Image
Land
| 1 | 15 | SQ (12001-21780) | 0.4040 | 17598.24 | 0.00 | 0.00 | 1.00 | $200,000 | $0 |
Roll Value History
| 2026 | N/A | N/A | N/A | N/A | N/A |
| 2025 | $303,481 | $200,000 | $0 | $503,481 | $503,481 |
| 2024 | $307,409 | $200,000 | $0 | $507,409 | $507,409 |
| 2023 | $311,338 | $200,000 | $0 | $511,338 | $511,338 |
| 2022 | $285,482 | $200,000 | $0 | $485,482 | $485,482 |
| 2021 | $251,333 | $130,000 | $0 | $381,333 | $381,333 |
| 2020 | $245,130 | $130,000 | $0 | $375,130 | $375,130 |
| 2019 | $183,869 | $150,000 | $0 | $333,869 | $333,869 |
| 2018 | $184,423 | $150,000 | $0 | $334,423 | $334,423 |
| 2017 | $161,155 | $120,000 | $0 | $281,155 | $281,155 |
| 2016 | $145,370 | $90,000 | $0 | $235,370 | $235,370 |
| 2015 | $147,478 | $85,000 | $0 | $232,478 | $232,478 |
| 2014 | $149,585 | $63,750 | $0 | $213,335 | $213,335 |
| 2013 | $151,693 | $63,750 | $0 | $215,443 | $215,443 |
| 2012 | $153,799 | $63,750 | $0 | $217,549 | $217,549 |
| 2011 | $155,905 | $75,000 | $0 | $230,905 | $230,905 |
| 2010 | $167,702 | $75,000 | $0 | $242,702 | $242,702 |
| 2009 | $174,868 | $80,000 | $0 | $254,868 | $254,868 |
| 2008 | $177,110 | $65,270 | $0 | $242,380 | $242,380 |
| 2007 | $179,356 | $65,270 | $0 | $244,626 | $244,626 |
Deed and Sales History
| 1 | 11/04/2021 | QCD | Quit Claim Deed | BUABENG, LILLIAN E | BUABENG, DANIEL | | | $0.00 | 50776 | 4533208 |
| 2 | 11/02/2021 | WD | Warranty Deed | LINK, GRAYSON | BUABENG, DANIEL | | | $485,000.00 | 50771 | 4533207 |
| 3 | 02/07/2018 | WD | Warranty Deed | R CUBED, LLC | LINK, GRAYSON | | | $336,000.00 | 32953 | 4439264 |
| 4 | 06/28/2017 | TRUSTEED | Trustee's Deed | MEEKS, FRANK A | R CUBED, LLC | | | $250,000.00 | 30054 | 4425540 |
| 5 | 06/15/1998 | WD | Warranty Deed | RUFF, ROBERT N | MEEKS, WENDE RAE | | | $145,000.00 | 82467 | 98012823 |
| 6 | 07/01/1990 | WD | Warranty Deed | ANDERSON, DANIEL S | RUFF, ROBERT N | | | $110,000.00 | 4083 | 90013355 |
| 7 | 02/01/1987 | WD | Warranty Deed | WEBER, ROBERT S | ANDERSON, DANIEL S | | | $77,000.00 | 70487 | 87002972 |
| 8 | 09/01/1978 | OTHER | Other - Misc. Documents | MEEKS, WENDE R | WEBER, ROBERT S | | | $57,950.00 | 85189 | 341686 |
| 9 | 01/01/1900 | OTHER | Other - Misc. Documents | Unknown | MEEKS, WENDE R | | | $0.00 | 82467 | 98012823 |
Payout Agreement
| No payout information available.. |