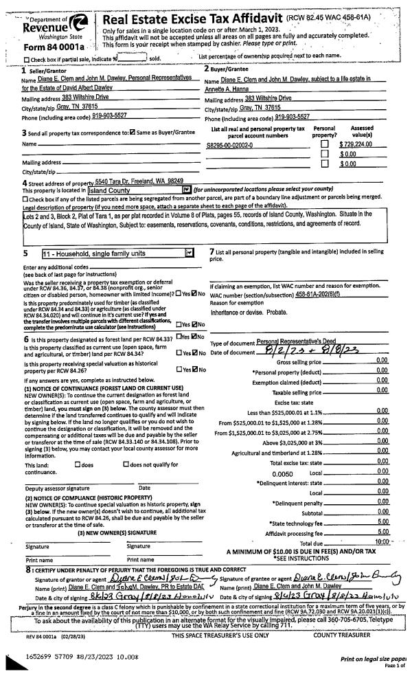
Property
Account |
| Property ID: | 428772 | Abbreviated Legal Description: | WHID PK LOT 5 |
| Geographic ID: | S8420-00-00005-0 | Agent Code: | |
| Type: | Real | | |
| Tax Area: | 112 - APPRAISER-OH Schl Dist, outside OH, improved, greater than 1 acre | Land Use Code | 11 |
| Open Space: | N | DFL | N |
| Historic Property: | N | Remodel Property: | N |
| Multi-Family Redevelopment: | N | | |
| Township: | | Section: | |
| Range: | |
Location |
| Address: | 90 TORRENCE LN OAK HARBOR, WA 98277 | Mapsco: | |
| Neighborhood: | Cycle 6 | Map ID: | 610 |
| Neighborhood CD: | 6 |
Owner |
| Name: | NEWTON-WHITAKER, CHARLOTTE ANGELA | Owner ID: | 41167 |
| Mailing Address: | 2174 CLEARVIEW LN LANGLEY, WA 98260 | % Ownership: | 100.0000000000% |
| | | Exemptions: | |
Taxes and Assessment Details
Values
| (+) Improvement Homesite Value: | + | $0 | |
| (+) Improvement Non-Homesite Value: | + | $304,730 | |
| (+) Land Homesite Value: | + | $0 | |
| (+) Land Non-Homesite Value: | + | $300,000 | |
| (+) Curr Use (HS): | + | $0 | $0 |
| (+) Curr Use (NHS): | + | $0 | $0 |
| | | -------------------------- | |
| (=) Market Value: | = | $604,730 | |
| (–) Productivity Loss: | – | $0 | |
| | | -------------------------- | |
| (=) Subtotal: | = | $604,730 | |
| (+) Senior Appraised Value: | + | $0 | |
| (+) Non-Senior Appraised Value: | + | $604,730 | |
| | | -------------------------- | |
| (=) Total Appraised Value: | = | $604,730 | |
| (–) Senior Exemption Loss: | – | $0 | |
| (–) Exemption Loss: | – | $0 | |
| | | -------------------------- | |
| (=) Taxable Value: | = | $604,730 | |
Taxing Jurisdiction
| Owner: | NEWTON-WHITAKER, CHARLOTTE ANGELA | | |
| % Ownership: | 100.0000000000% | | |
| Total Value: | $604,730 | | |
| Tax Area: | 112 - APPRAISER-OH Schl Dist, outside OH, improved, greater than 1 acre |
| CF | Conservation Futures | 0.0316035091 | $604,730 | $604,730 | $19.11 | | |
| CEM1 | Cemetery #1 | 0.0040320932 | $604,730 | $604,730 | $2.44 | | |
| FIRE2 | Fire & Rescue Dist #2 N Whidbey GEN | 0.5475949600 | $604,730 | $604,730 | $331.15 | | |
| HOBOND | Hospital BOND | 0.1910887512 | $604,730 | $604,730 | $115.56 | | |
| HOGEN | Hospital GEN | 0.3902502903 | $604,730 | $604,730 | $236.00 | | |
| CE | County Current Expense | 0.3708482477 | $604,730 | $604,730 | $224.26 | | |
| CR | County Roads | 0.4584763726 | $604,730 | $604,730 | $277.25 | | |
| ISLANDEMS | Hospital GEN (EMS) | 0.5000000000 | $604,730 | $604,730 | $302.37 | | |
| LIB | Library Sno-Isle GEN | 0.3153421757 | $604,730 | $604,730 | $190.70 | | |
| NWHIDPRMT | P & R N Whidbey GEN | 0.2004466701 | $604,730 | $604,730 | $121.22 | | |
| SCH201MO | School 201 Enrichment | 1.8559231640 | $604,730 | $604,730 | $1,122.33 | | |
| ST | State School | 1.3035497053 | $604,730 | $604,730 | $788.30 | | |
| ST2 | State School Part 2 | 0.8169543533 | $604,730 | $604,730 | $494.04 | | |
| | Total Tax Rate: | 6.9861102925 | | | | | |
| | | | | Taxes w/Current Exemptions: | $4,224.73 | | |
| | | | | Taxes w/o Exemptions: | $4,224.73 | | |
Improvement / Building
| Improvement #1: | RESIDENTIAL | State Code: | Y | 1656.3 sqft | Value: | $304,730 |
| Bathrooms: | 3 | Bedrooms: | 3 | | Ceiling: | DRYWALL PAINTED | Exterior Wall/Cover: | WOOD SIDING | | Floor Covering: | CARPET/VINYL 80-20 | Floor Structure: | WOOD W/SUBFLOOR | | Foundation: | CONCRETE | Heating: | FHA GAS | | Interior Finish: | DRYWALL PAINT | Plumbing Fixture Cnt: | 12 | | Roof Slope: | 5" IN 12" | Roof Structure/Cover: | CJ ALUMINIUM HEAVY |
|
| | Type | Description | Class CD | Sub Class CD | Year Built | Area |
| | BAS | BASE/MAIN FLOOR | 3 | 0 | 1998 | 1656.3 |
| | OP1 | OPEN PORCH SLAB | 3 | 0 | 1998 | 180.0 |
| | AGR | ATTACHED GARAGE | 3 | 0 | 1998 | 500.0 |
| | OWP | OPEN WOOD PORCH W/STEPS | 3 | 0 | 1998 | 24.0 |
| | OWC | OPEN WOOD PORCH W/STEPS/ROOF/C | 3 | 0 | 1998 | 45.0 |
| | UTY | STORAGE/UTILITY | 3 | 0 | 1998 | 288.0 |
Sketch
Property Image
Land
| 1 | 32 | AC (03.01-09.99) | 4.7300 | 0.00 | 0.00 | 0.00 | 1.00 | $300,000 | $0 |
Roll Value History
| 2026 | N/A | N/A | N/A | N/A | N/A |
| 2025 | $304,730 | $300,000 | $0 | $604,730 | $604,730 |
| 2024 | $308,673 | $300,000 | $0 | $608,673 | $608,673 |
| 2023 | $312,619 | $240,000 | $0 | $552,619 | $552,619 |
| 2022 | $302,730 | $240,000 | $0 | $542,730 | $542,730 |
| 2021 | $266,520 | $175,000 | $0 | $441,520 | $441,520 |
| 2020 | $259,478 | $150,000 | $0 | $409,478 | $409,478 |
| 2019 | $188,432 | $175,000 | $0 | $363,432 | $363,432 |
| 2018 | $188,998 | $130,000 | $0 | $318,998 | $318,998 |
| 2017 | $190,131 | $130,000 | $0 | $320,131 | $320,131 |
| 2016 | $173,286 | $130,000 | $0 | $303,286 | $303,286 |
| 2015 | $175,375 | $120,000 | $0 | $295,375 | $295,375 |
| 2014 | $177,466 | $100,000 | $0 | $277,466 | $277,466 |
| 2013 | $181,555 | $93,654 | $0 | $275,209 | $275,209 |
| 2012 | $183,647 | $93,654 | $0 | $277,301 | $277,301 |
| 2011 | $185,736 | $104,060 | $0 | $289,796 | $289,796 |
| 2010 | $188,858 | $104,060 | $0 | $292,918 | $292,918 |
| 2009 | $196,856 | $118,250 | $0 | $315,106 | $315,106 |
| 2008 | $199,322 | $137,170 | $0 | $336,492 | $336,492 |
| 2007 | $201,802 | $113,946 | $0 | $315,748 | $315,748 |
Deed and Sales History
| 1 | 12/16/2021 | QCD | Quit Claim Deed | GREENE, TERRENCE P | NEWTON-WHITAKER, CHARLOTTE ANGELA | | | $0.00 | 51642 | 4537827 |
| 2 | 02/01/1995 | DECREE | Divorce Decree/Legal Separation | NEWTON, CHARLOTTE M | NEWTON-WHITAKER, CHARLOTTE | | | $0.00 | 50535 | 95002658 |
| 3 | 01/01/1992 | DECREE | Divorce Decree/Legal Separation | MUIRHEAD, SEAN & | NEWTON, CHARLOTTE M | | | $0.00 | 20412 | 92001859 |
| 4 | 06/01/1985 | WD | Warranty Deed | CLARK, DANIEL B | MUIRHEAD, SEAN & | | | $25,922.00 | 51637 | 85006559 |
| 5 | 01/01/1900 | OTHER | Other - Misc. Documents | Unknown | CLARK, DANIEL B | | | $0.00 | 0 | 0 |
Payout Agreement
| No payout information available.. |