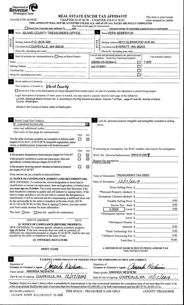
Property
Account |
| Property ID: | 428978 | Abbreviated Legal Description: | WHID SH LOT 8 INCL ADJ TIDES |
| Geographic ID: | S8425-00-00008-0 | Agent Code: | |
| Type: | Real | | |
| Tax Area: | 710 - APPRAISER-S Whid Schl Dist, outside Langley, improved & 1 acre or less | Land Use Code | 11 |
| Open Space: | N | DFL | N |
| Historic Property: | N | Remodel Property: | N |
| Multi-Family Redevelopment: | N | | |
| Township: | | Section: | |
| Range: | |
Location |
| Address: | 2273 EASTPOINT DR LANGLEY, WA 98260 | Mapsco: | |
| Neighborhood: | Cycle 3 | Map ID: | 372 |
| Neighborhood CD: | 3 |
Owner |
| Name: | NORTHEY CO TRUSTEE, MAXINE E | Owner ID: | 127915 |
| Mailing Address: | JANE ELLEN BAUMGARTNER 6207 NE 191ST ST KENMORE, WA 98028 | % Ownership: | 100.0000000000% |
| | | Exemptions: | |
Taxes and Assessment Details
Values
| (+) Improvement Homesite Value: | + | $0 | |
| (+) Improvement Non-Homesite Value: | + | $104,166 | |
| (+) Land Homesite Value: | + | $0 | |
| (+) Land Non-Homesite Value: | + | $650,500 | |
| (+) Curr Use (HS): | + | $0 | $0 |
| (+) Curr Use (NHS): | + | $0 | $0 |
| | | -------------------------- | |
| (=) Market Value: | = | $754,666 | |
| (–) Productivity Loss: | – | $0 | |
| | | -------------------------- | |
| (=) Subtotal: | = | $754,666 | |
| (+) Senior Appraised Value: | + | $0 | |
| (+) Non-Senior Appraised Value: | + | $754,666 | |
| | | -------------------------- | |
| (=) Total Appraised Value: | = | $754,666 | |
| (–) Senior Exemption Loss: | – | $0 | |
| (–) Exemption Loss: | – | $0 | |
| | | -------------------------- | |
| (=) Taxable Value: | = | $754,666 | |
Taxing Jurisdiction
| Owner: | NORTHEY CO TRUSTEE, MAXINE E | | |
| % Ownership: | 100.0000000000% | | |
| Total Value: | $754,666 | | |
| Tax Area: | 710 - APPRAISER-S Whid Schl Dist, outside Langley, improved & 1 acre or less |
| CF | Conservation Futures | 0.0316035091 | $754,666 | $754,666 | $23.85 | | |
| FIRE3 | Fire & Rescue Dist #3 S Whidbey GEN | 1.2004855531 | $754,666 | $754,666 | $905.97 | | |
| HOBOND | Hospital BOND | 0.1910887512 | $754,666 | $754,666 | $144.21 | | |
| HOGEN | Hospital GEN | 0.3902502903 | $754,666 | $754,666 | $294.51 | | |
| CE | County Current Expense | 0.3708482477 | $754,666 | $754,666 | $279.87 | | |
| CR | County Roads | 0.4584763726 | $754,666 | $754,666 | $346.00 | | |
| ISLANDEMS | Hospital GEN (EMS) | 0.5000000000 | $754,666 | $754,666 | $377.33 | | |
| LIB | Library Sno-Isle GEN | 0.3153421757 | $754,666 | $754,666 | $237.98 | | |
| PORTWHID | Port of S Whidbey GEN | 0.1094540357 | $754,666 | $754,666 | $82.60 | | |
| SCH206BOND | School 206 BOND | 0.3161759235 | $754,666 | $754,666 | $238.61 | | |
| SCH206MO | School 206 Enrichment | 0.4547169547 | $754,666 | $754,666 | $343.16 | | |
| ST | State School | 1.3035497053 | $754,666 | $754,666 | $983.74 | | |
| ST2 | State School Part 2 | 0.8169543533 | $754,666 | $754,666 | $616.53 | | |
| SWHIDPRBD | P & R S Whidbey BOND | 0.0152817568 | $754,666 | $754,666 | $11.53 | | |
| SWHIDPRBD2 | P & R S Whidbey BOND2 | 0.0138911264 | $754,666 | $754,666 | $10.48 | | |
| SWHIDPRMT | P & R S Whidbey GEN | 0.2053334452 | $754,666 | $754,666 | $154.96 | | |
| | Total Tax Rate: | 6.6934522006 | | | | | |
| | | | | Taxes w/Current Exemptions: | $5,051.33 | | |
| | | | | Taxes w/o Exemptions: | $5,051.33 | | |
Improvement / Building
| Improvement #1: | RESIDENTIAL | State Code: | Y | 866.0 sqft | Value: | $104,166 |
| Bathrooms: | 1 | Bedrooms: | 2 | | Ceiling: | DRYWALL PAINTED | Exterior Wall/Cover: | WOOD SIDING | | Floor Covering: | CARPET/VINYL 80-20 | Floor Structure: | WOOD W/SUBFLOOR | | Foundation: | WOOD BLOCKS | Heating: | BASEBOARD ELECTRIC | | Interior Finish: | DRYWALL PAINT | Plumbing Fixture Cnt: | 6 | | Roof Slope: | FLAT | Roof Structure/Cover: | CJ BUILT-UP ROCK |
|
| | Type | Description | Class CD | Sub Class CD | Year Built | Area |
| | BAS | BASE/MAIN FLOOR | 2 | 0 | 1961 | 866.0 |
| | UTY | STORAGE/UTILITY | 2 | 0 | 1961 | 68.0 |
| | OWP | OPEN WOOD PORCH W/STEPS | 2 | 0 | 1961 | 71.0 |
| | OWP | OPEN WOOD PORCH W/STEPS | 2 | 0 | 1961 | 794.0 |
| | OWC | OPEN WOOD PORCH W/STEPS/ROOF/C | 2 | 0 | 1961 | 36.0 |
Sketch
Property Image
Land
| 1 | LB | LOW BANK | 0.0000 | 0.00 | 50.00 | 0.00 | 1.00 | $650,000 | $0 |
| 2 | 55 | TIDES | 0.0000 | 0.00 | 50.00 | 0.00 | 1.00 | $500 | $0 |
Roll Value History
| 2026 | N/A | N/A | N/A | N/A | N/A |
| 2025 | $104,166 | $650,500 | $0 | $754,666 | $754,666 |
| 2024 | $108,528 | $650,500 | $0 | $759,028 | $759,028 |
| 2023 | $110,330 | $650,500 | $0 | $760,830 | $760,830 |
| 2022 | $101,535 | $650,500 | $0 | $752,035 | $752,035 |
| 2021 | $89,712 | $500,500 | $0 | $590,212 | $590,212 |
| 2020 | $87,658 | $500,500 | $0 | $588,158 | $588,158 |
| 2019 | $59,150 | $375,500 | $0 | $434,650 | $434,650 |
| 2018 | $59,391 | $375,500 | $0 | $434,891 | $434,891 |
| 2017 | $59,873 | $350,500 | $0 | $410,373 | $410,373 |
| 2016 | $60,838 | $350,500 | $0 | $411,338 | $411,338 |
| 2015 | $61,805 | $350,500 | $0 | $412,305 | $412,305 |
| 2014 | $62,770 | $350,500 | $0 | $413,270 | $413,270 |
| 2013 | $56,633 | $315,540 | $0 | $372,173 | $372,173 |
| 2012 | $57,547 | $315,540 | $0 | $373,087 | $373,087 |
| 2011 | $58,461 | $315,540 | $0 | $374,001 | $374,001 |
| 2010 | $64,160 | $350,597 | $0 | $414,757 | $414,757 |
| 2009 | $66,127 | $430,165 | $0 | $496,292 | $496,292 |
| 2008 | $67,096 | $509,732 | $0 | $576,828 | $576,828 |
| 2007 | $67,144 | $359,795 | $0 | $426,939 | $426,939 |
Deed and Sales History
| 1 | 09/01/1996 | QCD | Quit Claim Deed | NORTHEY, T R | NORTHEY, MAXINE E | | | $0.00 | 63267 | 96016005 |
| 2 | 01/01/1900 | OTHER | Other - Misc. Documents | Unknown | NORTHEY, T R | | | $0.00 | 0 | 0 |
Payout Agreement
| No payout information available.. |