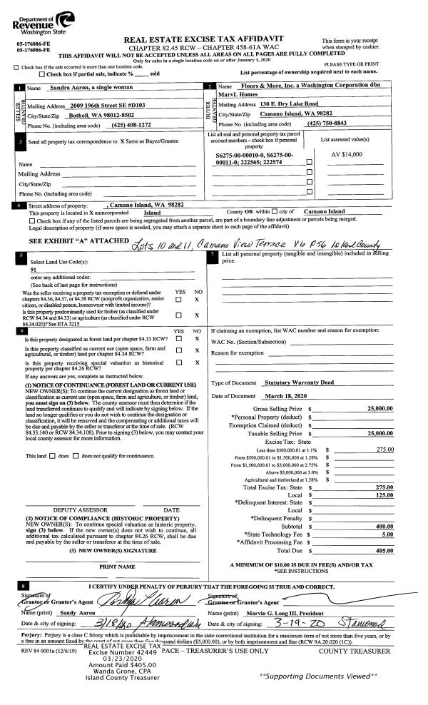
Property
Account |
| Property ID: | 429156 | Abbreviated Legal Description: | WHID SH LOT 26 INCL ADJ TIDES |
| Geographic ID: | S8425-00-00026-0 | Agent Code: | |
| Type: | Real | | |
| Tax Area: | 710 - APPRAISER-S Whid Schl Dist, outside Langley, improved & 1 acre or less | Land Use Code | 11 |
| Open Space: | N | DFL | N |
| Historic Property: | N | Remodel Property: | N |
| Multi-Family Redevelopment: | N | | |
| Township: | | Section: | |
| Range: | |
Location |
| Address: | 2209 EASTPOINT DR LANGLEY, WA 98260 | Mapsco: | |
| Neighborhood: | Cycle 3 | Map ID: | 372 |
| Neighborhood CD: | 3 |
Owner |
| Name: | THE OWLHOUSE, LLC | Owner ID: | 266246 |
| Mailing Address: | PO BOX 850 FREELAND, WA 98249 | % Ownership: | 100.0000000000% |
| | | Exemptions: | |
Taxes and Assessment Details
Values
| (+) Improvement Homesite Value: | + | $0 | |
| (+) Improvement Non-Homesite Value: | + | $164,030 | |
| (+) Land Homesite Value: | + | $0 | |
| (+) Land Non-Homesite Value: | + | $650,500 | |
| (+) Curr Use (HS): | + | $0 | $0 |
| (+) Curr Use (NHS): | + | $0 | $0 |
| | | -------------------------- | |
| (=) Market Value: | = | $814,530 | |
| (–) Productivity Loss: | – | $0 | |
| | | -------------------------- | |
| (=) Subtotal: | = | $814,530 | |
| (+) Senior Appraised Value: | + | $0 | |
| (+) Non-Senior Appraised Value: | + | $814,530 | |
| | | -------------------------- | |
| (=) Total Appraised Value: | = | $814,530 | |
| (–) Senior Exemption Loss: | – | $0 | |
| (–) Exemption Loss: | – | $0 | |
| | | -------------------------- | |
| (=) Taxable Value: | = | $814,530 | |
Taxing Jurisdiction
| Owner: | THE OWLHOUSE, LLC | | |
| % Ownership: | 100.0000000000% | | |
| Total Value: | $814,530 | | |
| Tax Area: | 710 - APPRAISER-S Whid Schl Dist, outside Langley, improved & 1 acre or less |
| CF | Conservation Futures | 0.0316035091 | $814,530 | $814,530 | $25.74 | | |
| FIRE3 | Fire & Rescue Dist #3 S Whidbey GEN | 1.2004855531 | $814,530 | $814,530 | $977.83 | | |
| HOBOND | Hospital BOND | 0.1910887512 | $814,530 | $814,530 | $155.65 | | |
| HOGEN | Hospital GEN | 0.3902502903 | $814,530 | $814,530 | $317.87 | | |
| CE | County Current Expense | 0.3708482477 | $814,530 | $814,530 | $302.07 | | |
| CR | County Roads | 0.4584763726 | $814,530 | $814,530 | $373.44 | | |
| ISLANDEMS | Hospital GEN (EMS) | 0.5000000000 | $814,530 | $814,530 | $407.27 | | |
| LIB | Library Sno-Isle GEN | 0.3153421757 | $814,530 | $814,530 | $256.86 | | |
| PORTWHID | Port of S Whidbey GEN | 0.1094540357 | $814,530 | $814,530 | $89.15 | | |
| SCH206BOND | School 206 BOND | 0.3161759235 | $814,530 | $814,530 | $257.53 | | |
| SCH206MO | School 206 Enrichment | 0.4547169547 | $814,530 | $814,530 | $370.38 | | |
| ST | State School | 1.3035497053 | $814,530 | $814,530 | $1,061.78 | | |
| ST2 | State School Part 2 | 0.8169543533 | $814,530 | $814,530 | $665.43 | | |
| SWHIDPRBD | P & R S Whidbey BOND | 0.0152817568 | $814,530 | $814,530 | $12.45 | | |
| SWHIDPRBD2 | P & R S Whidbey BOND2 | 0.0138911264 | $814,530 | $814,530 | $11.31 | | |
| SWHIDPRMT | P & R S Whidbey GEN | 0.2053334452 | $814,530 | $814,530 | $167.25 | | |
| | Total Tax Rate: | 6.6934522006 | | | | | |
| | | | | Taxes w/Current Exemptions: | $5,452.01 | | |
| | | | | Taxes w/o Exemptions: | $5,452.01 | | |
Improvement / Building
| Improvement #1: | RESIDENTIAL | State Code: | Y | 1432.0 sqft | Value: | $164,030 |
| Bathrooms: | 2 | Bedrooms: | 3 | | Ceiling: | TONGUE & GROOVE | Exterior Wall/Cover: | VINYL | | Floor Covering: | CARPET/VINYL 80-20 | Floor Structure: | WOOD W/SUBFLOOR | | Foundation: | CONCRETE BLOCKS | Heating: | BASEBOARD ELECTRIC | | Interior Finish: | DRYWALL PAINT | Plumbing Fixture Cnt: | 9 | | Roof Slope: | 3" IN 12" | Roof Structure/Cover: | BEAM ROLL COMPOSITION |
|
| | Type | Description | Class CD | Sub Class CD | Year Built | Area |
| | BAS | BASE/MAIN FLOOR | 3 | 0 | 1964 | 844.0 |
| | OP1 | OPEN PORCH SLAB | 3 | 0 | 1964 | 96.0 |
| | OP1 | OPEN PORCH SLAB | 3 | 0 | 1964 | 170.0 |
| | OWP | OPEN WOOD PORCH W/STEPS | 3 | 0 | 1964 | 292.0 |
| | OWP | OPEN WOOD PORCH W/STEPS | 3 | 0 | 1964 | 73.0 |
| | ENP | ENCLOSED PORCH | 3 | 0 | 1964 | 256.0 |
| | DWN | DOWNSTAIRS LIVING AREA | 3 | 0 | 1964 | 588.0 |
Sketch
Property Image
Land
| 1 | LB | LOW BANK | 0.0000 | 0.00 | 50.00 | 0.00 | 1.00 | $650,000 | $0 |
| 2 | 55 | TIDES | 0.0000 | 0.00 | 50.00 | 0.00 | 1.00 | $500 | $0 |
Roll Value History
| 2026 | N/A | N/A | N/A | N/A | N/A |
| 2025 | $164,030 | $650,500 | $0 | $814,530 | $814,530 |
| 2024 | $170,679 | $650,500 | $0 | $821,179 | $821,179 |
| 2023 | $173,610 | $650,500 | $0 | $824,110 | $824,110 |
| 2022 | $159,853 | $650,500 | $0 | $810,353 | $810,353 |
| 2021 | $141,312 | $500,500 | $0 | $641,812 | $641,812 |
| 2020 | $138,131 | $500,500 | $0 | $638,631 | $638,631 |
| 2019 | $93,606 | $375,500 | $0 | $469,106 | $469,106 |
| 2018 | $94,001 | $375,500 | $0 | $469,501 | $469,501 |
| 2017 | $94,793 | $350,500 | $0 | $445,293 | $445,293 |
| 2016 | $96,371 | $350,500 | $0 | $446,871 | $446,871 |
| 2015 | $97,951 | $350,500 | $0 | $448,451 | $448,451 |
| 2014 | $99,531 | $350,500 | $0 | $450,031 | $450,031 |
| 2013 | $98,576 | $315,540 | $0 | $414,116 | $414,116 |
| 2012 | $100,156 | $315,540 | $0 | $415,696 | $415,696 |
| 2011 | $101,736 | $315,540 | $0 | $417,276 | $417,276 |
| 2010 | $114,503 | $350,597 | $0 | $465,100 | $465,100 |
| 2009 | $117,852 | $430,165 | $0 | $548,017 | $548,017 |
| 2008 | $119,508 | $509,732 | $0 | $629,240 | $629,240 |
| 2007 | $121,163 | $359,795 | $0 | $480,958 | $480,958 |
Deed and Sales History
| 1 | 04/04/2014 | QCD | Quit Claim Deed | MCGILL, SHARON L | THE OWLHOUSE, LLC | | | $0.00 | 15495 | 4360272 |
| 2 | 05/05/2005 | QCD | Quit Claim Deed | MCGILL, SHARON L | MCGILL, SHARON L | | | $0.00 | 52316 | 4135291 |
| 3 | 12/04/2001 | QCD | Quit Claim Deed | MCGILL, SHARON L | MCGILL, SHARON L | | | $0.00 | 14662 | 4005405 |
| 4 | 11/06/2001 | QCD | Quit Claim Deed | MC GILL, KARRAS, HALE, | MCGILL, SHARON L | | | $0.00 | 14581 | 4004689 |
| 5 | 12/14/2001 | 5 | DNU - Marriage License/Name Change | HALE, TR, JAMES S | MC GILL, KARRAS, HALE, | | | $1.00 | 69243 | 0 |
| 6 | 05/04/2000 | QCD | Quit Claim Deed | HALE, JAMES S | HALE, TR, JAMES S | | | $0.00 | 1880 | 20009072 |
| 7 | 03/01/1996 | PRD | Personal Representatives Deed | HALE, JAMES S | HALE, JAMES S | | | $0.00 | 62454 | 96012190 |
| 8 | 01/01/1900 | OTHER | Other - Misc. Documents | Unknown | HALE, JAMES S | | | $0.00 | 0 | 0 |
Payout Agreement
| No payout information available.. |