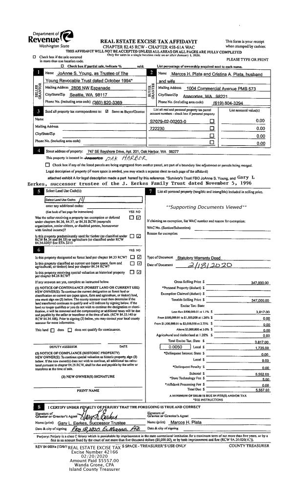
Property
Account |
| Property ID: | 429218 | Abbreviated Legal Description: | WHID SH LOT 31 |
| Geographic ID: | S8425-00-00031-0 | Agent Code: | |
| Type: | Real | | |
| Tax Area: | 710 - APPRAISER-S Whid Schl Dist, outside Langley, improved & 1 acre or less | Land Use Code | 11 |
| Open Space: | N | DFL | N |
| Historic Property: | N | Remodel Property: | N |
| Multi-Family Redevelopment: | N | | |
| Township: | | Section: | |
| Range: | |
Location |
| Address: | 2256 EASTPOINT DR LANGLEY, WA 98260 | Mapsco: | |
| Neighborhood: | Cycle 3 | Map ID: | 372 |
| Neighborhood CD: | 3 |
Owner |
| Name: | NORTHEYBAUMGARTNER, LLC | Owner ID: | 271976 |
| Mailing Address: | 6207 NE 191ST KENMORE, WA 98028 | % Ownership: | 100.0000000000% |
| | | Exemptions: | |
Taxes and Assessment Details
Values
| (+) Improvement Homesite Value: | + | $0 | |
| (+) Improvement Non-Homesite Value: | + | $243,187 | |
| (+) Land Homesite Value: | + | $0 | |
| (+) Land Non-Homesite Value: | + | $310,000 | |
| (+) Curr Use (HS): | + | $0 | $0 |
| (+) Curr Use (NHS): | + | $0 | $0 |
| | | -------------------------- | |
| (=) Market Value: | = | $553,187 | |
| (–) Productivity Loss: | – | $0 | |
| | | -------------------------- | |
| (=) Subtotal: | = | $553,187 | |
| (+) Senior Appraised Value: | + | $0 | |
| (+) Non-Senior Appraised Value: | + | $553,187 | |
| | | -------------------------- | |
| (=) Total Appraised Value: | = | $553,187 | |
| (–) Senior Exemption Loss: | – | $0 | |
| (–) Exemption Loss: | – | $0 | |
| | | -------------------------- | |
| (=) Taxable Value: | = | $553,187 | |
Taxing Jurisdiction
| Owner: | NORTHEYBAUMGARTNER, LLC | | |
| % Ownership: | 100.0000000000% | | |
| Total Value: | $553,187 | | |
| Tax Area: | 710 - APPRAISER-S Whid Schl Dist, outside Langley, improved & 1 acre or less |
| CF | Conservation Futures | 0.0316035091 | $553,187 | $553,187 | $17.48 | | |
| FIRE3 | Fire & Rescue Dist #3 S Whidbey GEN | 1.2004855531 | $553,187 | $553,187 | $664.09 | | |
| HOBOND | Hospital BOND | 0.1910887512 | $553,187 | $553,187 | $105.71 | | |
| HOGEN | Hospital GEN | 0.3902502903 | $553,187 | $553,187 | $215.88 | | |
| CE | County Current Expense | 0.3708482477 | $553,187 | $553,187 | $205.15 | | |
| CR | County Roads | 0.4584763726 | $553,187 | $553,187 | $253.62 | | |
| ISLANDEMS | Hospital GEN (EMS) | 0.5000000000 | $553,187 | $553,187 | $276.59 | | |
| LIB | Library Sno-Isle GEN | 0.3153421757 | $553,187 | $553,187 | $174.44 | | |
| PORTWHID | Port of S Whidbey GEN | 0.1094540357 | $553,187 | $553,187 | $60.55 | | |
| SCH206BOND | School 206 BOND | 0.3161759235 | $553,187 | $553,187 | $174.90 | | |
| SCH206MO | School 206 Enrichment | 0.4547169547 | $553,187 | $553,187 | $251.54 | | |
| ST | State School | 1.3035497053 | $553,187 | $553,187 | $721.11 | | |
| ST2 | State School Part 2 | 0.8169543533 | $553,187 | $553,187 | $451.93 | | |
| SWHIDPRBD | P & R S Whidbey BOND | 0.0152817568 | $553,187 | $553,187 | $8.45 | | |
| SWHIDPRBD2 | P & R S Whidbey BOND2 | 0.0138911264 | $553,187 | $553,187 | $7.68 | | |
| SWHIDPRMT | P & R S Whidbey GEN | 0.2053334452 | $553,187 | $553,187 | $113.59 | | |
| | Total Tax Rate: | 6.6934522006 | | | | | |
| | | | | Taxes w/Current Exemptions: | $3,702.71 | | |
| | | | | Taxes w/o Exemptions: | $3,702.71 | | |
Improvement / Building
| Improvement #1: | RESIDENTIAL | State Code: | Y | 1073.0 sqft | Value: | $243,187 |
| Bathrooms: | 1.5 | Bedrooms: | 1 | | Ceiling: | DRYWALL PAINTED | Exterior Wall/Cover: | PLY/HARDBOARD T-111 | | Floor Covering: | CARPET/VINYL 80-20 | Floor Structure: | WOOD W/SUBFLOOR | | Foundation: | CONCRETE | Heating: | WALL HEAT ELECTRIC | | Interior Finish: | DRYWALL PAINT | Plumbing Fixture Cnt: | 9 | | Roof Slope: | 6" IN 12" | Roof Structure/Cover: | CJ ALUMINIUM HEAVY |
|
| | Type | Description | Class CD | Sub Class CD | Year Built | Area |
| | BAS | BASE/MAIN FLOOR | 3 | 0 | 1995 | 1073.0 |
| | OP1 | OPEN PORCH SLAB | 3 | 0 | 1995 | 374.0 |
| | BIG | BUILT IN GARAGE | 3 | 0 | 1995 | 1073.0 |
| | BAW | BALCONY WOOD RAIL | 3 | 0 | 1995 | 120.0 |
Sketch
Property Image
Land
| 1 | 12 | SQ (00000-06000) | 0.0000 | 0.00 | 0.00 | 0.00 | 1.00 | $310,000 | $0 |
Roll Value History
| 2026 | N/A | N/A | N/A | N/A | N/A |
| 2025 | $243,187 | $310,000 | $0 | $553,187 | $553,187 |
| 2024 | $246,336 | $310,000 | $0 | $556,336 | $556,336 |
| 2023 | $249,483 | $310,000 | $0 | $559,483 | $559,483 |
| 2022 | $228,753 | $350,000 | $0 | $578,753 | $578,753 |
| 2021 | $201,403 | $300,000 | $0 | $501,403 | $501,403 |
| 2020 | $195,764 | $200,000 | $0 | $395,764 | $395,764 |
| 2019 | $138,273 | $200,000 | $0 | $338,273 | $338,273 |
| 2018 | $138,687 | $200,000 | $0 | $338,687 | $338,687 |
| 2017 | $139,519 | $150,000 | $0 | $289,519 | $289,519 |
| 2016 | $141,180 | $150,000 | $0 | $291,180 | $291,180 |
| 2015 | $122,489 | $85,000 | $0 | $207,489 | $207,489 |
| 2014 | $124,001 | $85,000 | $0 | $209,001 | $209,001 |
| 2013 | $127,982 | $85,000 | $0 | $212,982 | $212,982 |
| 2012 | $129,520 | $91,800 | $0 | $221,320 | $221,320 |
| 2011 | $131,057 | $108,000 | $0 | $239,057 | $239,057 |
| 2010 | $129,668 | $120,000 | $0 | $249,668 | $249,668 |
| 2009 | $135,345 | $235,000 | $0 | $370,345 | $370,345 |
| 2008 | $137,127 | $235,000 | $0 | $372,127 | $372,127 |
| 2007 | $129,165 | $102,000 | $0 | $231,165 | $231,165 |
Deed and Sales History
| 1 | 08/27/2015 | WD | Warranty Deed | ROUTH, GREGORY D | NORTHEYBAUMGARTNER, LLC | | | $340,000.00 | 21177 | 4835194 |
| 2 | 10/26/2012 | WD | Warranty Deed | HALLSTROM, JEFF & SONJA | ROUTH, GREGORY D | | | $312,500.00 | 9313 | 4326190 |
| 3 | 08/01/1993 | WD | Warranty Deed | MORRIS, RICHARD R | HALLSTROM, JEFF & | | | $12,000.00 | 33429 | 93017772 |
| 4 | 01/01/1900 | OTHER | Other - Misc. Documents | Unknown | MORRIS, RICHARD R | | | $0.00 | 0 | 0 |
Payout Agreement
| No payout information available.. |