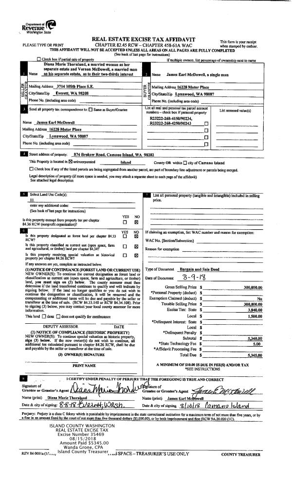
Property
Account |
| Property ID: | 42929 | Abbreviated Legal Description: | 36 ALLEN DC - PT OF SD DC & PT GL8: BG NECR GOLDIE RD ACS WLY ALG NLN SD PLAT 136 N105' E TO WLN GOLDIE RD SLY ALG SD RD TPB |
| Geographic ID: | R13335-422-3530 | Agent Code: | |
| Type: | Real | | |
| Tax Area: | 100 - APPRAISER-OH Schl Dist, in OH | Land Use Code | 11 |
| Open Space: | N | DFL | N |
| Historic Property: | N | Remodel Property: | N |
| Multi-Family Redevelopment: | N | | |
| Township: | 33 | Section: | 35 |
| Range: | R1 |
Location |
| Address: | 526 NE EASY ST OAK HARBOR, WA 98277 | Mapsco: | |
| Neighborhood: | Cycle 1 | Map ID: | 259 |
| Neighborhood CD: | 1 |
Owner |
| Name: | PULU, WANDA J | Owner ID: | 285740 |
| Mailing Address: | FRANK F PULU 32945 SR 20 OAK HARBOR, WA 98277 | % Ownership: | 100.0000000000% |
| | | Exemptions: | |
Taxes and Assessment Details
Values
| (+) Improvement Homesite Value: | + | $0 | |
| (+) Improvement Non-Homesite Value: | + | $255,091 | |
| (+) Land Homesite Value: | + | $0 | |
| (+) Land Non-Homesite Value: | + | $185,000 | |
| (+) Curr Use (HS): | + | $0 | $0 |
| (+) Curr Use (NHS): | + | $0 | $0 |
| | | -------------------------- | |
| (=) Market Value: | = | $440,091 | |
| (–) Productivity Loss: | – | $0 | |
| | | -------------------------- | |
| (=) Subtotal: | = | $440,091 | |
| (+) Senior Appraised Value: | + | $0 | |
| (+) Non-Senior Appraised Value: | + | $440,091 | |
| | | -------------------------- | |
| (=) Total Appraised Value: | = | $440,091 | |
| (–) Senior Exemption Loss: | – | $0 | |
| (–) Exemption Loss: | – | $0 | |
| | | -------------------------- | |
| (=) Taxable Value: | = | $440,091 | |
Taxing Jurisdiction
| Owner: | PULU, WANDA J | | |
| % Ownership: | 100.0000000000% | | |
| Total Value: | $440,091 | | |
| Tax Area: | 100 - APPRAISER-OH Schl Dist, in OH |
| CF | Conservation Futures | 0.0316035091 | $440,091 | $440,091 | $13.91 | | |
| CEM1 | Cemetery #1 | 0.0040320932 | $440,091 | $440,091 | $1.77 | | |
| COH | City of Oak Harbor | 2.3001546061 | $440,091 | $440,091 | $1,012.28 | | |
| OAKBOND | City of Oak Harbor BOND | 0.1926904192 | $440,091 | $440,091 | $84.80 | | |
| HOBOND | Hospital BOND | 0.1910887512 | $440,091 | $440,091 | $84.10 | | |
| HOGEN | Hospital GEN | 0.3902502903 | $440,091 | $440,091 | $171.75 | | |
| CE | County Current Expense | 0.3708482477 | $440,091 | $440,091 | $163.21 | | |
| ISLANDEMS | Hospital GEN (EMS) | 0.5000000000 | $440,091 | $440,091 | $220.05 | | |
| LIB | Library Sno-Isle GEN | 0.3153421757 | $440,091 | $440,091 | $138.78 | | |
| NWHIDPRMT | P & R N Whidbey GEN | 0.2004466701 | $440,091 | $440,091 | $88.21 | | |
| SCH201MO | School 201 Enrichment | 1.8559231640 | $440,091 | $440,091 | $816.78 | | |
| ST | State School | 1.3035497053 | $440,091 | $440,091 | $573.68 | | |
| ST2 | State School Part 2 | 0.8169543533 | $440,091 | $440,091 | $359.53 | | |
| | Total Tax Rate: | 8.4728839852 | | | | | |
| | | | | Taxes w/Current Exemptions: | $3,728.85 | | |
| | | | | Taxes w/o Exemptions: | $3,728.85 | | |
Improvement / Building
| Improvement #1: | RESIDENTIAL | State Code: | Y | 1614.0 sqft | Value: | $255,091 |
| Bathrooms: | 1 | Bedrooms: | 2 | | Ceiling: | DRYWALL PAINTED | Exterior Wall/Cover: | PLY/HARDBOARD T-111 | | Floor Covering: | VINYL TILE/HARWD 20-80 | Floor Structure: | WOOD W/SUBFLOOR | | Foundation: | CONCRETE | Heating: | FHA GAS | | Interior Finish: | DRYWALL PAINT | Plumbing Fixture Cnt: | 6 | | Roof Slope: | 4" IN 12" | Roof Structure/Cover: | CJ ASPHALT |
|
| | Type | Description | Class CD | Sub Class CD | Year Built | Area |
| | BAS | BASE/MAIN FLOOR | 3 | 0 | 1955 | 1614.0 |
| | AGR | ATTACHED GARAGE | 3 | 0 | 1955 | 315.0 |
| | OWP | OPEN WOOD PORCH W/STEPS | 3 | 0 | 1955 | 183.5 |
| | DGR | DETACHED GARAGE | 3 | 0 | 1955 | 912.0 |
| | OP4 | OPEN PORCH W/CEILING-ROOF | 3 | 0 | 1955 | 60.0 |
| | OCP | OPEN CARPORT | 3 | 0 | 1955 | 288.0 |
Sketch
Property Image
Land
| 1 | 15 | SQ (12001-21780) | 0.3100 | 13503.60 | 0.00 | 0.00 | 1.00 | $185,000 | $0 |
Roll Value History
| 2026 | N/A | N/A | N/A | N/A | N/A |
| 2025 | $255,091 | $185,000 | $0 | $440,091 | $440,091 |
| 2024 | $258,723 | $175,000 | $0 | $433,723 | $433,723 |
| 2023 | $248,441 | $180,000 | $0 | $428,441 | $428,441 |
| 2022 | $228,158 | $180,000 | $0 | $408,158 | $408,158 |
| 2021 | $201,182 | $135,000 | $0 | $336,182 | $336,182 |
| 2020 | $196,992 | $100,000 | $0 | $296,992 | $296,992 |
| 2019 | $145,476 | $160,000 | $0 | $305,476 | $305,476 |
| 2018 | $145,947 | $125,000 | $0 | $270,947 | $270,947 |
| 2017 | $100,365 | $110,000 | $0 | $210,365 | $210,365 |
| 2016 | $102,294 | $90,000 | $0 | $192,294 | $192,294 |
| 2015 | $104,225 | $70,000 | $0 | $174,225 | $174,225 |
| 2014 | $106,156 | $55,000 | $0 | $161,156 | $161,156 |
| 2013 | $108,085 | $55,000 | $0 | $163,085 | $163,085 |
| 2012 | $110,015 | $65,000 | $0 | $175,015 | $175,015 |
| 2011 | $95,030 | $65,000 | $0 | $160,030 | $160,030 |
| 2010 | $106,431 | $65,000 | $0 | $171,431 | $171,431 |
| 2009 | $111,109 | $62,250 | $0 | $173,359 | $173,359 |
| 2008 | $112,938 | $75,000 | $0 | $187,938 | $187,938 |
| 2007 | $114,767 | $75,000 | $0 | $189,767 | $189,767 |
Deed and Sales History
| 1 | 06/20/2018 | WD | Warranty Deed | LTD PREMIER PROPERTIES, LLC | PULU, WANDA J | | | $301,000.00 | 34711 | 4446925 |
| 2 | 12/29/2017 | WD | Warranty Deed | SECRETARY OF VETERAN AFFAIRS | LTD PREMIER PROPERTIES, LLC | | | $150,000.00 | 32467 | 4436599 |
| 3 | 02/01/2017 | WD | Warranty Deed | NATIONSTAR MORTGAGE LLC | SECRETARY OF VETERAN AFFAIRS | | | $205,570.00 | 28126 | 4417305 |
| 4 | 01/09/2017 | TRUSTEED | Trustee's Deed | RUTLEDGE, MICHAEL L | NATIONSTAR MORTGAGE LLC | | | $203,822.00 | 27743 | 4415247 |
| 5 | 01/13/2012 | WD | Warranty Deed | RUTLEDGE, MICHAEL L | RUTLEDGE, MICHAEL L | | | $0.00 | 6707 | 4308741 |
| 6 | 11/13/2007 | WD | Warranty Deed | SULLIVAN, WILFRED M | RUTLEDGE, MICHAEL L | | | $207,500.00 | 73830 | 4216633 |
| 7 | 08/01/1992 | QCD | Quit Claim Deed | SULLIVAN, WILFRED M | SULLIVAN, WILFRED M | | | $0.00 | 23822 | 92018535 |
| 8 | 03/01/1992 | QCD | Quit Claim Deed | SULLIVAN, W M | SULLIVAN, WILFRED M | | | $0.00 | 20841 | 92004248 |
Payout Agreement
| No payout information available.. |