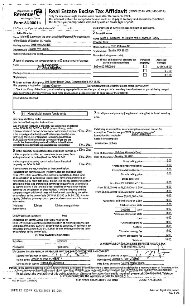
Property
Account |
| Property ID: | 429352 | Abbreviated Legal Description: | WHID SH LOT 47 |
| Geographic ID: | S8425-00-00047-0 | Agent Code: | |
| Type: | Real | | |
| Tax Area: | 710 - APPRAISER-S Whid Schl Dist, outside Langley, improved & 1 acre or less | Land Use Code | 11 |
| Open Space: | N | DFL | N |
| Historic Property: | N | Remodel Property: | N |
| Multi-Family Redevelopment: | N | | |
| Township: | | Section: | |
| Range: | |
Location |
| Address: | 2418 EASTPOINT DR LANGLEY, WA 98260 | Mapsco: | |
| Neighborhood: | Cycle 3 | Map ID: | 372 |
| Neighborhood CD: | 3 |
Owner |
| Name: | HOLLANDER, ARI | Owner ID: | 309032 |
| Mailing Address: | LAURA MCKEE 420 18TH AVE EAST SEATTLE, WA 98112 | % Ownership: | 100.0000000000% |
| | | Exemptions: | |
Taxes and Assessment Details
Values
| (+) Improvement Homesite Value: | + | $0 | |
| (+) Improvement Non-Homesite Value: | + | $488,802 | |
| (+) Land Homesite Value: | + | $0 | |
| (+) Land Non-Homesite Value: | + | $400,000 | |
| (+) Curr Use (HS): | + | $0 | $0 |
| (+) Curr Use (NHS): | + | $0 | $0 |
| | | -------------------------- | |
| (=) Market Value: | = | $888,802 | |
| (–) Productivity Loss: | – | $0 | |
| | | -------------------------- | |
| (=) Subtotal: | = | $888,802 | |
| (+) Senior Appraised Value: | + | $0 | |
| (+) Non-Senior Appraised Value: | + | $888,802 | |
| | | -------------------------- | |
| (=) Total Appraised Value: | = | $888,802 | |
| (–) Senior Exemption Loss: | – | $0 | |
| (–) Exemption Loss: | – | $0 | |
| | | -------------------------- | |
| (=) Taxable Value: | = | $888,802 | |
Taxing Jurisdiction
| Owner: | HOLLANDER, ARI | | |
| % Ownership: | 100.0000000000% | | |
| Total Value: | $888,802 | | |
| Tax Area: | 710 - APPRAISER-S Whid Schl Dist, outside Langley, improved & 1 acre or less |
| CF | Conservation Futures | 0.0316035091 | $888,802 | $888,802 | $28.09 | | |
| FIRE3 | Fire & Rescue Dist #3 S Whidbey GEN | 1.2004855531 | $888,802 | $888,802 | $1,066.99 | | |
| HOBOND | Hospital BOND | 0.1910887512 | $888,802 | $888,802 | $169.84 | | |
| HOGEN | Hospital GEN | 0.3902502903 | $888,802 | $888,802 | $346.86 | | |
| CE | County Current Expense | 0.3708482477 | $888,802 | $888,802 | $329.61 | | |
| CR | County Roads | 0.4584763726 | $888,802 | $888,802 | $407.49 | | |
| ISLANDEMS | Hospital GEN (EMS) | 0.5000000000 | $888,802 | $888,802 | $444.40 | | |
| LIB | Library Sno-Isle GEN | 0.3153421757 | $888,802 | $888,802 | $280.28 | | |
| PORTWHID | Port of S Whidbey GEN | 0.1094540357 | $888,802 | $888,802 | $97.28 | | |
| SCH206BOND | School 206 BOND | 0.3161759235 | $888,802 | $888,802 | $281.02 | | |
| SCH206MO | School 206 Enrichment | 0.4547169547 | $888,802 | $888,802 | $404.15 | | |
| ST | State School | 1.3035497053 | $888,802 | $888,802 | $1,158.60 | | |
| ST2 | State School Part 2 | 0.8169543533 | $888,802 | $888,802 | $726.11 | | |
| SWHIDPRBD | P & R S Whidbey BOND | 0.0152817568 | $888,802 | $888,802 | $13.58 | | |
| SWHIDPRBD2 | P & R S Whidbey BOND2 | 0.0138911264 | $888,802 | $888,802 | $12.35 | | |
| SWHIDPRMT | P & R S Whidbey GEN | 0.2053334452 | $888,802 | $888,802 | $182.50 | | |
| | Total Tax Rate: | 6.6934522006 | | | | | |
| | | | | Taxes w/Current Exemptions: | $5,949.15 | | |
| | | | | Taxes w/o Exemptions: | $5,949.15 | | |
Improvement / Building
| Improvement #1: | RESIDENTIAL | State Code: | Y | 2524.7 sqft | Value: | $488,802 |
| Bathrooms: | 2.5 | Bedrooms: | 3 | | Ceiling: | DRYWALL PAINTED | Exterior Wall/Cover: | SHINGLE | | Floor Covering: | HARDWOOD/CARP 20-80 | Floor Structure: | WOOD W/SUBFLOOR | | Foundation: | CONCRETE | Heating: | FHA GAS | | Interior Finish: | DRYWALL PAINT | Plumbing Fixture Cnt: | 14 | | Roof Slope: | 12" IN 12" | Roof Structure/Cover: | CJ ASPHALT |
|
| | Type | Description | Class CD | Sub Class CD | Year Built | Area |
| | BAS | BASE/MAIN FLOOR | 4 | 0 | 1997 | 888.0 |
| | DWN | DOWNSTAIRS LIVING AREA | 4 | 0 | 1997 | 407.5 |
| | UPS | UPPER STORY | 4 | 0 | 1997 | 690.2 |
| | OWP | OPEN WOOD PORCH W/STEPS | 4 | 0 | 1997 | 439.6 |
| | OWP | OPEN WOOD PORCH W/STEPS | 4 | 0 | 1997 | 118.3 |
| | OWP | OPEN WOOD PORCH W/STEPS | 4 | 0 | 1997 | 99.9 |
| | DWN | DOWNSTAIRS LIVING AREA | 4 | 0 | 1997 | 539.0 |
| | OWP | OPEN WOOD PORCH W/STEPS | 4 | 0 | 1997 | 104.0 |
| | UTY | STORAGE/UTILITY | 4 | 0 | 1997 | 120.0 |
| | UTY | STORAGE/UTILITY | 4 | 0 | 1997 | 229.3 |
Sketch
Property Image
Land
| 1 | HB | HIGH BLUFF | 0.0000 | 0.00 | 70.00 | 0.00 | 1.00 | $400,000 | $0 |
Roll Value History
| 2026 | N/A | N/A | N/A | N/A | N/A |
| 2025 | $488,802 | $400,000 | $0 | $888,802 | $888,802 |
| 2024 | $494,674 | $400,000 | $0 | $894,674 | $894,674 |
| 2023 | $477,641 | $400,000 | $0 | $877,641 | $877,641 |
| 2022 | $437,587 | $400,000 | $0 | $837,587 | $837,587 |
| 2021 | $384,908 | $300,000 | $0 | $684,908 | $684,908 |
| 2020 | $374,961 | $300,000 | $0 | $674,961 | $674,961 |
| 2019 | $256,110 | $250,000 | $0 | $506,110 | $506,110 |
| 2018 | $256,901 | $250,000 | $0 | $506,901 | $506,901 |
| 2017 | $258,467 | $250,000 | $0 | $508,467 | $508,467 |
| 2016 | $261,621 | $250,000 | $0 | $511,621 | $511,621 |
| 2015 | $264,772 | $250,000 | $0 | $514,772 | $514,772 |
| 2014 | $267,925 | $250,000 | $0 | $517,925 | $517,925 |
| 2013 | $255,243 | $178,420 | $0 | $433,663 | $433,663 |
| 2012 | $258,307 | $178,420 | $0 | $436,727 | $436,727 |
| 2011 | $261,373 | $178,420 | $0 | $439,793 | $439,793 |
| 2010 | $268,790 | $198,248 | $0 | $467,038 | $467,038 |
| 2009 | $278,029 | $278,029 | $0 | $556,057 | $556,057 |
| 2008 | $283,735 | $318,950 | $0 | $602,685 | $602,685 |
| 2007 | $282,137 | $318,950 | $0 | $601,087 | $601,087 |
Deed and Sales History
| 1 | 06/21/2023 | WD | Warranty Deed | BAYLEY TTEE, CORRINE | HOLLANDER, ARI | | | $899,000.00 | 57065 | 4561349 |
| 2 | 05/31/2019 | WD | Warranty Deed | BAYLEY TRUSTEE, CORRINE | BAYLEY TTEE, CORRINE | | | $0.00 | 38870 | 4464918 |
| 3 | 08/29/2014 | WD | Warranty Deed | BAYLEY TRUSTEE 50% UNDIV INT, CORRINE MARIE | BAYLEY TRUSTEE, CORRINE | | | $0.00 | 16803 | 4365551 |
| 4 | 02/16/2010 | QCD | Quit Claim Deed | BAYLEY, CORRINE MARIE | BAYLEY TRUSTEE 50% UNDIV INT, | | | $0.00 | 365 | 4268949 |
| 5 | 12/11/2007 | WD | Warranty Deed | HUNT TRUSTEE, GEORGE A | BAYLEY, CORRINE MARIE | | | $775,000.00 | 73998 | 4217903 |
| 6 | 11/05/2004 | 5 | DNU - Marriage License/Name Change | HUNT, GEORGE O | HUNT TRUSTEE, GEORGE A | | | $0.00 | 45268 | 4117614 |
| 7 | 10/01/1995 | WD | Warranty Deed | HUNT, GEORGE A | HUNT, GEORGE O | | | $75,000.00 | 53908 | 95017897 |
| 8 | 10/01/1995 | WD | Warranty Deed | FLY, JAMES O | HUNT, GEORGE A | | | $0.00 | 60926 | 96004832 |
| 9 | 09/01/1989 | WD | Warranty Deed | MCCLELLAN, JOHN D | FLY, JAMES O | | | $30,000.00 | 94485 | 89014661 |
| 10 | 04/01/1988 | WD | Warranty Deed | MANAGEMENT, & P | MCCLELLAN, JOHN D | | | $15,500.00 | 81490 | 88005648 |
| 11 | 08/01/1986 | WD | Warranty Deed | NAEHER, JAMES C | MANAGEMENT, & P | | | $12,500.00 | 62389 | 86010812 |
| 12 | 01/01/1900 | OTHER | Other - Misc. Documents | Unknown | NAEHER, JAMES C | | | $0.00 | 0 | 0 |
Payout Agreement
| No payout information available.. |