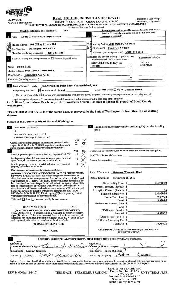
Property
Account |
| Property ID: | 429361 | Abbreviated Legal Description: | WHID SH LOT 48 |
| Geographic ID: | S8425-00-00048-0 | Agent Code: | |
| Type: | Real | | |
| Tax Area: | 710 - APPRAISER-S Whid Schl Dist, outside Langley, improved & 1 acre or less | Land Use Code | 11 |
| Open Space: | N | DFL | N |
| Historic Property: | N | Remodel Property: | N |
| Multi-Family Redevelopment: | N | | |
| Township: | | Section: | |
| Range: | |
Location |
| Address: | 2292 WHIDBEY SHORES RD LANGLEY, WA 98260 | Mapsco: | |
| Neighborhood: | Cycle 3 | Map ID: | 372 |
| Neighborhood CD: | 3 |
Owner |
| Name: | OLSON, DENNIS & MARCIA | Owner ID: | 102333 |
| Mailing Address: | 16015 SUNNYSIDE AVE N SHORELINE, WA 98133-5843 | % Ownership: | 100.0000000000% |
| | | Exemptions: | |
Taxes and Assessment Details
Values
| (+) Improvement Homesite Value: | + | $0 | |
| (+) Improvement Non-Homesite Value: | + | $155,819 | |
| (+) Land Homesite Value: | + | $0 | |
| (+) Land Non-Homesite Value: | + | $400,000 | |
| (+) Curr Use (HS): | + | $0 | $0 |
| (+) Curr Use (NHS): | + | $0 | $0 |
| | | -------------------------- | |
| (=) Market Value: | = | $555,819 | |
| (–) Productivity Loss: | – | $0 | |
| | | -------------------------- | |
| (=) Subtotal: | = | $555,819 | |
| (+) Senior Appraised Value: | + | $0 | |
| (+) Non-Senior Appraised Value: | + | $555,819 | |
| | | -------------------------- | |
| (=) Total Appraised Value: | = | $555,819 | |
| (–) Senior Exemption Loss: | – | $0 | |
| (–) Exemption Loss: | – | $0 | |
| | | -------------------------- | |
| (=) Taxable Value: | = | $555,819 | |
Taxing Jurisdiction
| Owner: | OLSON, DENNIS & MARCIA | | |
| % Ownership: | 100.0000000000% | | |
| Total Value: | $555,819 | | |
| Tax Area: | 710 - APPRAISER-S Whid Schl Dist, outside Langley, improved & 1 acre or less |
| CF | Conservation Futures | 0.0316035091 | $555,819 | $555,819 | $17.57 | | |
| FIRE3 | Fire & Rescue Dist #3 S Whidbey GEN | 1.2004855531 | $555,819 | $555,819 | $667.25 | | |
| HOBOND | Hospital BOND | 0.1910887512 | $555,819 | $555,819 | $106.21 | | |
| HOGEN | Hospital GEN | 0.3902502903 | $555,819 | $555,819 | $216.91 | | |
| CE | County Current Expense | 0.3708482477 | $555,819 | $555,819 | $206.12 | | |
| CR | County Roads | 0.4584763726 | $555,819 | $555,819 | $254.83 | | |
| ISLANDEMS | Hospital GEN (EMS) | 0.5000000000 | $555,819 | $555,819 | $277.91 | | |
| LIB | Library Sno-Isle GEN | 0.3153421757 | $555,819 | $555,819 | $175.27 | | |
| PORTWHID | Port of S Whidbey GEN | 0.1094540357 | $555,819 | $555,819 | $60.84 | | |
| SCH206BOND | School 206 BOND | 0.3161759235 | $555,819 | $555,819 | $175.74 | | |
| SCH206MO | School 206 Enrichment | 0.4547169547 | $555,819 | $555,819 | $252.74 | | |
| ST | State School | 1.3035497053 | $555,819 | $555,819 | $724.54 | | |
| ST2 | State School Part 2 | 0.8169543533 | $555,819 | $555,819 | $454.08 | | |
| SWHIDPRBD | P & R S Whidbey BOND | 0.0152817568 | $555,819 | $555,819 | $8.49 | | |
| SWHIDPRBD2 | P & R S Whidbey BOND2 | 0.0138911264 | $555,819 | $555,819 | $7.72 | | |
| SWHIDPRMT | P & R S Whidbey GEN | 0.2053334452 | $555,819 | $555,819 | $114.13 | | |
| | Total Tax Rate: | 6.6934522006 | | | | | |
| | | | | Taxes w/Current Exemptions: | $3,720.35 | | |
| | | | | Taxes w/o Exemptions: | $3,720.35 | | |
Improvement / Building
| Improvement #1: | RESIDENTIAL | State Code: | Y | 1872.0 sqft | Value: | $155,819 |
| Bathrooms: | 1 | Bedrooms: | 2 | | Ceiling: | DRYWALL PAINTED | Exterior Wall/Cover: | SHINGLE | | Floor Covering: | CARPET/VINYL 60-40 | Floor Structure: | WOOD W/SUBFLOOR | | Foundation: | CONCRETE | Heating: | BASEBOARD ELECTRIC | | Interior Finish: | DRYWALL PAINT | Plumbing Fixture Cnt: | 6 | | Roof Slope: | FLAT | Roof Structure/Cover: | BEAM BUILT-UP ROCK |
|
| | Type | Description | Class CD | Sub Class CD | Year Built | Area |
| | BAS | BASE/MAIN FLOOR | 3 | 0 | 1970 | 1200.0 |
| | UPS | UPPER STORY | 3 | 0 | 1970 | 672.0 |
| | oCB2 | CABIN FIN | 3 | 0 | 1970 | 0.0 |
Sketch
Property Image
Land
| 1 | HB | HIGH BLUFF | 0.0000 | 0.00 | 80.00 | 0.00 | 1.00 | $400,000 | $0 |
Roll Value History
| 2026 | N/A | N/A | N/A | N/A | N/A |
| 2025 | $155,819 | $400,000 | $0 | $555,819 | $555,819 |
| 2024 | $161,916 | $400,000 | $0 | $561,916 | $561,916 |
| 2023 | $164,915 | $400,000 | $0 | $564,915 | $564,915 |
| 2022 | $153,389 | $400,000 | $0 | $553,389 | $553,389 |
| 2021 | $137,598 | $300,000 | $0 | $437,598 | $437,598 |
| 2020 | $135,730 | $300,000 | $0 | $435,730 | $435,730 |
| 2019 | $106,801 | $250,000 | $0 | $356,801 | $356,801 |
| 2018 | $107,229 | $250,000 | $0 | $357,229 | $357,229 |
| 2017 | $108,082 | $250,000 | $0 | $358,082 | $358,082 |
| 2016 | $109,789 | $250,000 | $0 | $359,789 | $359,789 |
| 2015 | $111,497 | $250,000 | $0 | $361,497 | $361,497 |
| 2014 | $113,203 | $250,000 | $0 | $363,203 | $363,203 |
| 2013 | $117,764 | $199,750 | $0 | $317,514 | $317,514 |
| 2012 | $119,500 | $199,750 | $0 | $319,250 | $319,250 |
| 2011 | $121,237 | $199,750 | $0 | $320,987 | $320,987 |
| 2010 | $102,588 | $221,946 | $0 | $324,534 | $324,534 |
| 2009 | $106,870 | $308,660 | $0 | $415,530 | $415,530 |
| 2008 | $108,804 | $357,075 | $0 | $465,879 | $465,879 |
| 2007 | $109,142 | $357,075 | $0 | $466,217 | $466,217 |
Deed and Sales History
| 1 | 05/01/1996 | WD | Warranty Deed | WETSTONE, RAYMOND S | OLSON, DENNIS & | | | $166,000.00 | 61601 | 96008063 |
| 2 | 12/01/1990 | REC | Real Estate Contract | WETSTONE, PROFIT | WETSTONE, RAYMOND S | | | $147,000.00 | 6771 | 90023608 |
| 3 | 05/01/1990 | WD | Warranty Deed | Unknown | WETSTONE, PROFIT | | | $121,350.00 | 2633 | 90008474 |
Payout Agreement
| No payout information available.. |