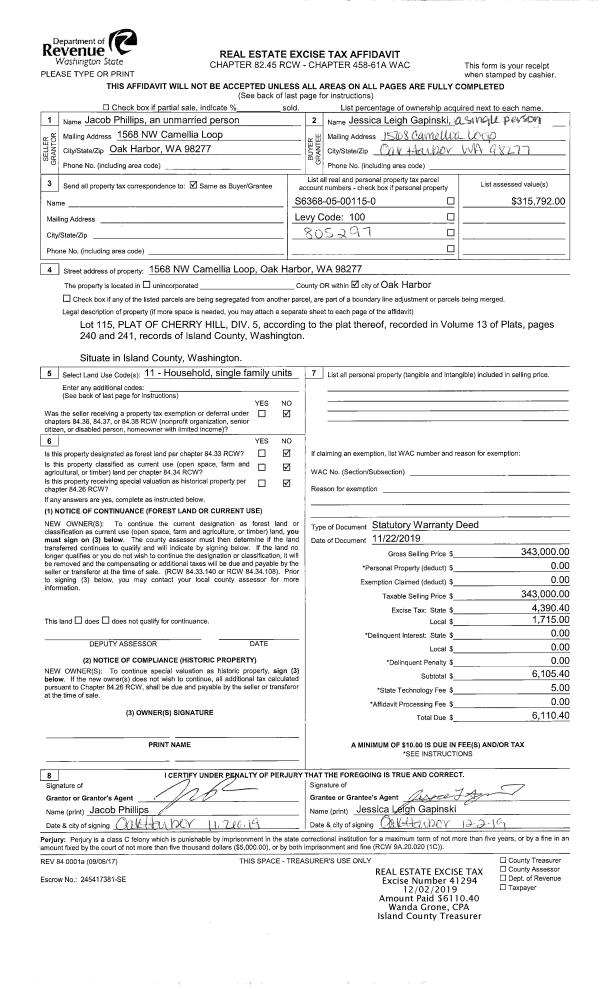
Property
Account |
| Property ID: | 429370 | Abbreviated Legal Description: | WHID SH LOT 49 |
| Geographic ID: | S8425-00-00049-0 | Agent Code: | |
| Type: | Real | | |
| Tax Area: | 710 - APPRAISER-S Whid Schl Dist, outside Langley, improved & 1 acre or less | Land Use Code | 11 |
| Open Space: | N | DFL | N |
| Historic Property: | N | Remodel Property: | N |
| Multi-Family Redevelopment: | N | | |
| Township: | | Section: | |
| Range: | |
Location |
| Address: | 2290 WHIDBEY SHORES RD LANGLEY, WA 98260 | Mapsco: | |
| Neighborhood: | Cycle 3 | Map ID: | 372 |
| Neighborhood CD: | 3 |
Owner |
| Name: | REGER, NANCY A | Owner ID: | 102334 |
| Mailing Address: | PAUL L REGER 2290 WHIDBEY SHORES RD LANGLEY, WA 98260 | % Ownership: | 100.0000000000% |
| | | Exemptions: | |
Taxes and Assessment Details
Values
| (+) Improvement Homesite Value: | + | $0 | |
| (+) Improvement Non-Homesite Value: | + | $348,638 | |
| (+) Land Homesite Value: | + | $0 | |
| (+) Land Non-Homesite Value: | + | $400,000 | |
| (+) Curr Use (HS): | + | $0 | $0 |
| (+) Curr Use (NHS): | + | $0 | $0 |
| | | -------------------------- | |
| (=) Market Value: | = | $748,638 | |
| (–) Productivity Loss: | – | $0 | |
| | | -------------------------- | |
| (=) Subtotal: | = | $748,638 | |
| (+) Senior Appraised Value: | + | $0 | |
| (+) Non-Senior Appraised Value: | + | $748,638 | |
| | | -------------------------- | |
| (=) Total Appraised Value: | = | $748,638 | |
| (–) Senior Exemption Loss: | – | $0 | |
| (–) Exemption Loss: | – | $0 | |
| | | -------------------------- | |
| (=) Taxable Value: | = | $748,638 | |
Taxing Jurisdiction
| Owner: | REGER, NANCY A | | |
| % Ownership: | 100.0000000000% | | |
| Total Value: | $748,638 | | |
| Tax Area: | 710 - APPRAISER-S Whid Schl Dist, outside Langley, improved & 1 acre or less |
| CF | Conservation Futures | 0.0316035091 | $748,638 | $748,638 | $23.66 | | |
| FIRE3 | Fire & Rescue Dist #3 S Whidbey GEN | 1.2004855531 | $748,638 | $748,638 | $898.73 | | |
| HOBOND | Hospital BOND | 0.1910887512 | $748,638 | $748,638 | $143.06 | | |
| HOGEN | Hospital GEN | 0.3902502903 | $748,638 | $748,638 | $292.16 | | |
| CE | County Current Expense | 0.3708482477 | $748,638 | $748,638 | $277.63 | | |
| CR | County Roads | 0.4584763726 | $748,638 | $748,638 | $343.23 | | |
| ISLANDEMS | Hospital GEN (EMS) | 0.5000000000 | $748,638 | $748,638 | $374.32 | | |
| LIB | Library Sno-Isle GEN | 0.3153421757 | $748,638 | $748,638 | $236.08 | | |
| PORTWHID | Port of S Whidbey GEN | 0.1094540357 | $748,638 | $748,638 | $81.94 | | |
| SCH206BOND | School 206 BOND | 0.3161759235 | $748,638 | $748,638 | $236.70 | | |
| SCH206MO | School 206 Enrichment | 0.4547169547 | $748,638 | $748,638 | $340.42 | | |
| ST | State School | 1.3035497053 | $748,638 | $748,638 | $975.89 | | |
| ST2 | State School Part 2 | 0.8169543533 | $748,638 | $748,638 | $611.60 | | |
| SWHIDPRBD | P & R S Whidbey BOND | 0.0152817568 | $748,638 | $748,638 | $11.44 | | |
| SWHIDPRBD2 | P & R S Whidbey BOND2 | 0.0138911264 | $748,638 | $748,638 | $10.40 | | |
| SWHIDPRMT | P & R S Whidbey GEN | 0.2053334452 | $748,638 | $748,638 | $153.72 | | |
| | Total Tax Rate: | 6.6934522006 | | | | | |
| | | | | Taxes w/Current Exemptions: | $5,010.98 | | |
| | | | | Taxes w/o Exemptions: | $5,010.98 | | |
Improvement / Building
| Improvement #1: | RESIDENTIAL | State Code: | Y | 1772.7 sqft | Value: | $348,638 |
| Bathrooms: | 2 | Bedrooms: | 2 | | Ceiling: | DRYWALL PAINTED | Cooling: | HEAT PUMP/CONV/V | | Exterior Wall/Cover: | WOOD SIDING | Floor Covering: | HARDWOOD/CARP 60-40 | | Floor Structure: | WOOD W/SUBFLOOR | Foundation: | CONCRETE | | Interior Finish: | DRYWALL PAINT | Plumbing Fixture Cnt: | 9 | | Roof Slope: | 6" IN 12" | Roof Structure/Cover: | CJ ASPHALT |
|
| | Type | Description | Class CD | Sub Class CD | Year Built | Area |
| | BAS | BASE/MAIN FLOOR | 4 | 0 | 1990 | 1212.7 |
| | AGR | ATTACHED GARAGE | 4 | 0 | 1990 | 575.7 |
| | UPS | UPPER STORY | 4 | 0 | 1990 | 320.0 |
| | OWP | OPEN WOOD PORCH W/STEPS | 4 | 0 | 1990 | 402.7 |
| | OWC | OPEN WOOD PORCH W/STEPS/ROOF/C | 4 | 0 | 1990 | 57.1 |
| | LOF | LOFT | 4 | 0 | 1990 | 240.0 |
Sketch
Property Image
Land
| 1 | HB | HIGH BLUFF | 0.0000 | 0.00 | 90.00 | 0.00 | 1.00 | $400,000 | $0 |
Roll Value History
| 2026 | N/A | N/A | N/A | N/A | N/A |
| 2025 | $348,638 | $400,000 | $0 | $748,638 | $748,638 |
| 2024 | $353,035 | $400,000 | $0 | $753,035 | $753,035 |
| 2023 | $357,437 | $400,000 | $0 | $757,437 | $757,437 |
| 2022 | $327,650 | $400,000 | $0 | $727,650 | $727,650 |
| 2021 | $288,380 | $300,000 | $0 | $588,380 | $588,380 |
| 2020 | $281,301 | $300,000 | $0 | $581,301 | $581,301 |
| 2019 | $203,258 | $250,000 | $0 | $453,258 | $453,258 |
| 2018 | $203,867 | $250,000 | $0 | $453,867 | $453,867 |
| 2017 | $205,088 | $250,000 | $0 | $455,088 | $455,088 |
| 2016 | $191,950 | $250,000 | $0 | $441,950 | $441,950 |
| 2015 | $194,410 | $250,000 | $0 | $444,410 | $444,410 |
| 2014 | $196,871 | $250,000 | $0 | $446,871 | $446,871 |
| 2013 | $190,029 | $220,040 | $0 | $410,069 | $410,069 |
| 2012 | $192,489 | $220,040 | $0 | $412,529 | $412,529 |
| 2011 | $194,950 | $220,040 | $0 | $414,990 | $414,990 |
| 2010 | $201,323 | $244,488 | $0 | $445,811 | $445,811 |
| 2009 | $209,986 | $340,008 | $0 | $549,994 | $549,994 |
| 2008 | $212,509 | $393,341 | $0 | $605,850 | $605,850 |
| 2007 | $199,466 | $393,341 | $0 | $592,807 | $592,807 |
Deed and Sales History
| 1 | 05/19/2009 | QCD | Quit Claim Deed | REGER TTEE, NANCY A | REGER, NANCY A | | | $0.00 | 91097 | 4251787 |
| 2 | 11/05/2008 | QCD | Quit Claim Deed | REGER TTEE, PAUL L | REGER TTEE, NANCY A | | | $0.00 | 82930 | 4239889 |
| 3 | 11/05/2008 | QCD | Quit Claim Deed | REGER, PAUL L | REGER TTEE, PAUL L | | | $0.00 | 82929 | 4239888 |
| 4 | 10/01/2005 | WD | Warranty Deed | EYMAN, CHARLES W | REGER, PAUL L | | | $629,000.00 | 55268 | 4151267 |
| 5 | 11/01/1989 | WD | Warranty Deed | TODD, WILLIAM E | EYMAN, CHARLES W | | | $51,000.00 | 95045 | 89016278 |
| 6 | 07/01/1980 | EXECUTORD | Executor Deed | MCCLINTOCK, ROBERT H | TODD, WILLIAM E | | | $24,000.00 | 2331 | 371047 |
| 7 | 01/01/1900 | OTHER | Other - Misc. Documents | Unknown | MCCLINTOCK, ROBERT H | | | $0.00 | 0 | 0 |
Payout Agreement
| No payout information available.. |