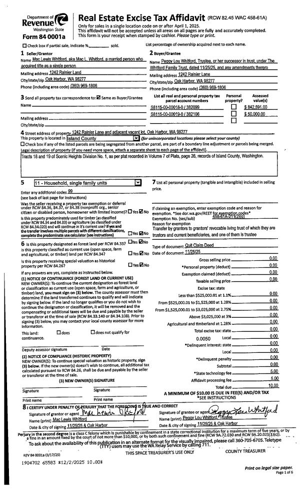
Property
Account |
| Property ID: | 429450 | Abbreviated Legal Description: | WHID SH LOT 57 |
| Geographic ID: | S8425-00-00057-0 | Agent Code: | |
| Type: | Real | | |
| Tax Area: | 710 - APPRAISER-S Whid Schl Dist, outside Langley, improved & 1 acre or less | Land Use Code | 11 |
| Open Space: | N | DFL | N |
| Historic Property: | N | Remodel Property: | N |
| Multi-Family Redevelopment: | N | | |
| Township: | | Section: | |
| Range: | |
Location |
| Address: | 2270 WHIDBEY SHORES RD LANGLEY, WA 98260 | Mapsco: | |
| Neighborhood: | Cycle 3 | Map ID: | 372 |
| Neighborhood CD: | 3 |
Owner |
| Name: | SHAFFER, CHRISTINE | Owner ID: | 102342 |
| Mailing Address: | 2270 WHIDBEY SHORES RD LANGLEY, WA 98260-9672 | % Ownership: | 100.0000000000% |
| | | Exemptions: | |
Taxes and Assessment Details
Values
| (+) Improvement Homesite Value: | + | $0 | |
| (+) Improvement Non-Homesite Value: | + | $332,997 | |
| (+) Land Homesite Value: | + | $0 | |
| (+) Land Non-Homesite Value: | + | $400,000 | |
| (+) Curr Use (HS): | + | $0 | $0 |
| (+) Curr Use (NHS): | + | $0 | $0 |
| | | -------------------------- | |
| (=) Market Value: | = | $732,997 | |
| (–) Productivity Loss: | – | $0 | |
| | | -------------------------- | |
| (=) Subtotal: | = | $732,997 | |
| (+) Senior Appraised Value: | + | $0 | |
| (+) Non-Senior Appraised Value: | + | $732,997 | |
| | | -------------------------- | |
| (=) Total Appraised Value: | = | $732,997 | |
| (–) Senior Exemption Loss: | – | $0 | |
| (–) Exemption Loss: | – | $0 | |
| | | -------------------------- | |
| (=) Taxable Value: | = | $732,997 | |
Taxing Jurisdiction
| Owner: | SHAFFER, CHRISTINE | | |
| % Ownership: | 100.0000000000% | | |
| Total Value: | $732,997 | | |
| Tax Area: | 710 - APPRAISER-S Whid Schl Dist, outside Langley, improved & 1 acre or less |
| CF | Conservation Futures | 0.0316035091 | $732,997 | $732,997 | $23.17 | | |
| FIRE3 | Fire & Rescue Dist #3 S Whidbey GEN | 1.2004855531 | $732,997 | $732,997 | $879.95 | | |
| HOBOND | Hospital BOND | 0.1910887512 | $732,997 | $732,997 | $140.07 | | |
| HOGEN | Hospital GEN | 0.3902502903 | $732,997 | $732,997 | $286.05 | | |
| CE | County Current Expense | 0.3708482477 | $732,997 | $732,997 | $271.83 | | |
| CR | County Roads | 0.4584763726 | $732,997 | $732,997 | $336.06 | | |
| ISLANDEMS | Hospital GEN (EMS) | 0.5000000000 | $732,997 | $732,997 | $366.50 | | |
| LIB | Library Sno-Isle GEN | 0.3153421757 | $732,997 | $732,997 | $231.14 | | |
| PORTWHID | Port of S Whidbey GEN | 0.1094540357 | $732,997 | $732,997 | $80.23 | | |
| SCH206BOND | School 206 BOND | 0.3161759235 | $732,997 | $732,997 | $231.76 | | |
| SCH206MO | School 206 Enrichment | 0.4547169547 | $732,997 | $732,997 | $333.31 | | |
| ST | State School | 1.3035497053 | $732,997 | $732,997 | $955.50 | | |
| ST2 | State School Part 2 | 0.8169543533 | $732,997 | $732,997 | $598.83 | | |
| SWHIDPRBD | P & R S Whidbey BOND | 0.0152817568 | $732,997 | $732,997 | $11.20 | | |
| SWHIDPRBD2 | P & R S Whidbey BOND2 | 0.0138911264 | $732,997 | $732,997 | $10.18 | | |
| SWHIDPRMT | P & R S Whidbey GEN | 0.2053334452 | $732,997 | $732,997 | $150.51 | | |
| | Total Tax Rate: | 6.6934522006 | | | | | |
| | | | | Taxes w/Current Exemptions: | $4,906.29 | | |
| | | | | Taxes w/o Exemptions: | $4,906.29 | | |
Improvement / Building
| Improvement #1: | RESIDENTIAL | State Code: | Y | 1326.0 sqft | Value: | $332,997 |
| Bathrooms: | 2 | Bedrooms: | 2 | | Ceiling: | DRYWALL PAINTED | Exterior Wall/Cover: | WOOD SIDING | | Floor Covering: | HARDWOOD/CARP 20-80 | Floor Structure: | WOOD W/SUBFLOOR | | Foundation: | CONCRETE | Heating: | HEAT PUMP | | Interior Finish: | DRYWALL PAINT | Plumbing Fixture Cnt: | 10 | | Roof Slope: | 5" IN 12" | Roof Structure/Cover: | CJ ALUMINIUM HEAVY |
|
| | Type | Description | Class CD | Sub Class CD | Year Built | Area |
| | BAS | BASE/MAIN FLOOR | 4 | 0 | 1992 | 1326.0 |
| | UB8 | BASEMENT UNFINISHED 8" | 4 | 0 | 1992 | 320.0 |
| | BGR | BASEMENT GARAGE | 4 | 0 | 1992 | 400.0 |
| | BAW | BALCONY WOOD RAIL | 4 | 0 | 1992 | 66.0 |
| | OWP | OPEN WOOD PORCH W/STEPS | 4 | 0 | 1992 | 50.0 |
| | OWC | OPEN WOOD PORCH W/STEPS/ROOF/C | 4 | 0 | 1992 | 76.0 |
Sketch
Property Image
Land
| 1 | HB | HIGH BLUFF | 0.0000 | 0.00 | 35.00 | 0.00 | 1.00 | $400,000 | $0 |
Roll Value History
| 2026 | N/A | N/A | N/A | N/A | N/A |
| 2025 | $332,997 | $400,000 | $0 | $732,997 | $732,997 |
| 2024 | $333,763 | $400,000 | $0 | $733,763 | $733,763 |
| 2023 | $338,257 | $400,000 | $0 | $738,257 | $738,257 |
| 2022 | $310,361 | $400,000 | $0 | $710,361 | $710,361 |
| 2021 | $273,418 | $250,000 | $0 | $523,418 | $523,418 |
| 2020 | $266,105 | $250,000 | $0 | $516,105 | $516,105 |
| 2019 | $184,250 | $200,000 | $0 | $384,250 | $384,250 |
| 2018 | $184,862 | $200,000 | $0 | $384,862 | $384,862 |
| 2017 | $186,087 | $150,000 | $0 | $336,087 | $336,087 |
| 2016 | $188,535 | $150,000 | $0 | $338,535 | $338,535 |
| 2015 | $190,983 | $85,000 | $0 | $275,983 | $275,983 |
| 2014 | $193,432 | $85,000 | $0 | $278,432 | $278,432 |
| 2013 | $211,577 | $91,030 | $0 | $302,607 | $302,607 |
| 2012 | $214,222 | $91,030 | $0 | $305,252 | $305,252 |
| 2011 | $216,867 | $91,030 | $0 | $307,897 | $307,897 |
| 2010 | $218,809 | $101,147 | $0 | $319,956 | $319,956 |
| 2009 | $228,107 | $140,665 | $0 | $368,772 | $368,772 |
| 2008 | $230,705 | $162,729 | $0 | $393,434 | $393,434 |
| 2007 | $228,167 | $162,729 | $0 | $390,896 | $390,896 |
Deed and Sales History
| 1 | 09/01/1991 | OTHER | Other - Misc. Documents | BEAN, CHRISTINE S | SHAFFER, CHRISTINE | | | $0.00 | 64418 | 0 |
| 2 | 08/01/1986 | DECREE | Divorce Decree/Legal Separation | BEAN, RICHARD N | BEAN, CHRISTINE S | | | $0.00 | 62276 | 86010509 |
| 3 | 07/01/1979 | EXECUTORD | Executor Deed | LEA, WILLIAM | BEAN, RICHARD N | | | $22,000.00 | 94400 | 358337 |
| 4 | 01/01/1900 | OTHER | Other - Misc. Documents | Unknown | LEA, WILLIAM | | | $0.00 | 0 | 0 |
Payout Agreement
| No payout information available.. |