Property
Account |
| Property ID: | 429469 | Abbreviated Legal Description: | WHIDBEY SHORES LOT 58 |
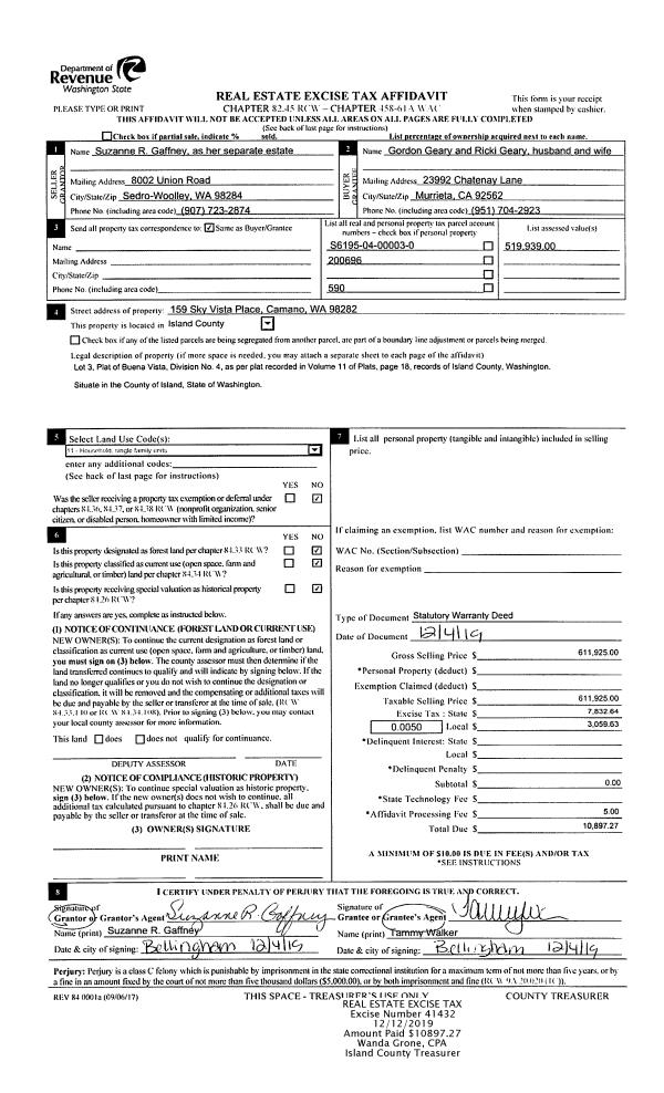
| Geographic ID: | S8425-00-00058-0 | Agent Code: | |
| Type: | Real | | |
| Tax Area: | 710 - APPRAISER-S Whid Schl Dist, outside Langley, improved & 1 acre or less | Land Use Code | 11 |
| Open Space: | N | DFL | N |
| Historic Property: | N | Remodel Property: | N |
| Multi-Family Redevelopment: | N | | |
| Township: | | Section: | |
| Range: | |
Location |
| Address: | 2266 WHIDBEY SHORES RD LANGLEY, WA 98260 | Mapsco: | |
| Neighborhood: | Cycle 3 | Map ID: | 372 |
| Neighborhood CD: | 3 |
Owner |
| Name: | KELLY, KYONG HWA | Owner ID: | 102343 |
| Mailing Address: | 2266 WHIDBEY SHORES RD LANGLEY, WA 98260-9672 | % Ownership: | 100.0000000000% |
| | | Exemptions: | |
Taxes and Assessment Details
Values
| (+) Improvement Homesite Value: | + | $0 | |
| (+) Improvement Non-Homesite Value: | + | $243,793 | |
| (+) Land Homesite Value: | + | $0 | |
| (+) Land Non-Homesite Value: | + | $300,000 | |
| (+) Curr Use (HS): | + | $0 | $0 |
| (+) Curr Use (NHS): | + | $0 | $0 |
| | | -------------------------- | |
| (=) Market Value: | = | $543,793 | |
| (–) Productivity Loss: | – | $0 | |
| | | -------------------------- | |
| (=) Subtotal: | = | $543,793 | |
| (+) Senior Appraised Value: | + | $0 | |
| (+) Non-Senior Appraised Value: | + | $543,793 | |
| | | -------------------------- | |
| (=) Total Appraised Value: | = | $543,793 | |
| (–) Senior Exemption Loss: | – | $0 | |
| (–) Exemption Loss: | – | $0 | |
| | | -------------------------- | |
| (=) Taxable Value: | = | $543,793 | |
Taxing Jurisdiction
| Owner: | KELLY, KYONG HWA | | |
| % Ownership: | 100.0000000000% | | |
| Total Value: | $543,793 | | |
| Tax Area: | 710 - APPRAISER-S Whid Schl Dist, outside Langley, improved & 1 acre or less |
| CF | Conservation Futures | 0.0316035091 | $543,793 | $543,793 | $17.19 | | |
| FIRE3 | Fire & Rescue Dist #3 S Whidbey GEN | 1.2004855531 | $543,793 | $543,793 | $652.82 | | |
| HOBOND | Hospital BOND | 0.1910887512 | $543,793 | $543,793 | $103.91 | | |
| HOGEN | Hospital GEN | 0.3902502903 | $543,793 | $543,793 | $212.22 | | |
| CE | County Current Expense | 0.3708482477 | $543,793 | $543,793 | $201.66 | | |
| CR | County Roads | 0.4584763726 | $543,793 | $543,793 | $249.32 | | |
| ISLANDEMS | Hospital GEN (EMS) | 0.5000000000 | $543,793 | $543,793 | $271.90 | | |
| LIB | Library Sno-Isle GEN | 0.3153421757 | $543,793 | $543,793 | $171.48 | | |
| PORTWHID | Port of S Whidbey GEN | 0.1094540357 | $543,793 | $543,793 | $59.52 | | |
| SCH206BOND | School 206 BOND | 0.3161759235 | $543,793 | $543,793 | $171.93 | | |
| SCH206MO | School 206 Enrichment | 0.4547169547 | $543,793 | $543,793 | $247.27 | | |
| ST | State School | 1.3035497053 | $543,793 | $543,793 | $708.86 | | |
| ST2 | State School Part 2 | 0.8169543533 | $543,793 | $543,793 | $444.25 | | |
| SWHIDPRBD | P & R S Whidbey BOND | 0.0152817568 | $543,793 | $543,793 | $8.31 | | |
| SWHIDPRBD2 | P & R S Whidbey BOND2 | 0.0138911264 | $543,793 | $543,793 | $7.55 | | |
| SWHIDPRMT | P & R S Whidbey GEN | 0.2053334452 | $543,793 | $543,793 | $111.66 | | |
| | Total Tax Rate: | 6.6934522006 | | | | | |
| | | | | Taxes w/Current Exemptions: | $3,639.85 | | |
| | | | | Taxes w/o Exemptions: | $3,639.85 | | |
Improvement / Building
| Improvement #1: | RESIDENTIAL | State Code: | Y | 1680.0 sqft | Value: | $243,793 |
| Bathrooms: | 2 | Bedrooms: | 2 | | Ceiling: | DRYWALL PAINTED | Exterior Wall/Cover: | WOOD SIDING | | Floor Covering: | CARPET/VINYL 80-20 | Floor Structure: | WOOD W/SUBFLOOR | | Foundation: | CONCRETE | Heating: | WALL HEAT ELECTRIC | | Interior Finish: | DRYWALL PAINT | Plumbing Fixture Cnt: | 9 | | Roof Slope: | 4" IN 12" | Roof Structure/Cover: | CJ ASPHALT |
|
| | Type | Description | Class CD | Sub Class CD | Year Built | Area |
| | BAS | BASE/MAIN FLOOR | 3 | 0 | 1990 | 1120.0 |
| | BGR | BASEMENT GARAGE | 3 | 0 | 1990 | 520.0 |
| | OWP | OPEN WOOD PORCH W/STEPS | 3 | 0 | 1990 | 220.0 |
| | OWP | OPEN WOOD PORCH W/STEPS | 3 | 0 | 1990 | 68.0 |
| | OWP | OPEN WOOD PORCH W/STEPS | 3 | 0 | 1990 | 96.0 |
| | DWN | DOWNSTAIRS LIVING AREA | 3 | 0 | 1990 | 560.0 |
| | oPV5 | EXP AGGRE | 3 | 0 | 1990 | 0.0 |
Sketch
Property Image
Land
| 1 | 15 | SQ (12001-21780) | 0.0000 | 0.00 | 0.00 | 0.00 | 1.00 | $300,000 | $0 |
Roll Value History
| 2026 | N/A | N/A | N/A | N/A | N/A |
| 2025 | $243,793 | $300,000 | $0 | $543,793 | $543,793 |
| 2024 | $247,199 | $300,000 | $0 | $547,199 | $547,199 |
| 2023 | $250,606 | $300,000 | $0 | $550,606 | $550,606 |
| 2022 | $230,119 | $300,000 | $0 | $530,119 | $530,119 |
| 2021 | $202,928 | $300,000 | $0 | $502,928 | $502,928 |
| 2020 | $198,102 | $200,000 | $0 | $398,102 | $398,102 |
| 2019 | $134,687 | $150,000 | $0 | $284,687 | $284,687 |
| 2018 | $135,156 | $150,000 | $0 | $285,156 | $285,156 |
| 2017 | $136,093 | $150,000 | $0 | $286,093 | $286,093 |
| 2016 | $137,968 | $150,000 | $0 | $287,968 | $287,968 |
| 2015 | $139,843 | $75,000 | $0 | $214,843 | $214,843 |
| 2014 | $141,719 | $85,000 | $0 | $226,719 | $226,719 |
| 2013 | $143,594 | $85,000 | $0 | $228,594 | $228,594 |
| 2012 | $145,468 | $91,800 | $0 | $237,268 | $237,268 |
| 2011 | $147,343 | $108,000 | $0 | $255,343 | $255,343 |
| 2010 | $156,345 | $120,000 | $0 | $276,345 | $276,345 |
| 2009 | $162,943 | $235,000 | $0 | $397,943 | $397,943 |
| 2008 | $164,938 | $235,000 | $0 | $399,938 | $399,938 |
| 2007 | $167,007 | $135,000 | $0 | $302,007 | $302,007 |
Deed and Sales History
| 1 | 02/01/1992 | QCD | Quit Claim Deed | KELLY, MICHAEL J | KELLY, KYONG H | | | $0.00 | 20559 | 92002685 |
| 2 | 08/01/1991 | QCD | Quit Claim Deed | KELLY, MICHAEL J | KELLY, MICHAEL J | | | $0.00 | 13181 | 91013474 |
| 3 | 08/01/1991 | QCD | Quit Claim Deed | STRUBLE, EVALYN G | KELLY, MICHAEL J | | | $0.00 | 13180 | 91013475 |
| 4 | 09/01/1990 | QCD | Quit Claim Deed | KELLY, MICHAEL J | STRUBLE, EVALYN G | | | $0.00 | 5222 | 90017374 |
| 5 | 06/01/1990 | WD | Warranty Deed | R.K.P., ENTERPRISES, I | KELLY, MICHAEL J | | | $139,500.00 | 3455 | 90011237 |
| 6 | 06/01/1989 | WD | Warranty Deed | MEL, CORP | R.K.P., ENTERPRISES, I | | | $12,500.00 | 92285 | 89007811 |
| 7 | 01/01/1900 | OTHER | Other - Misc. Documents | Unknown | MEL, CORP | | | $0.00 | 0 | 0 |
Payout Agreement
| No payout information available.. |