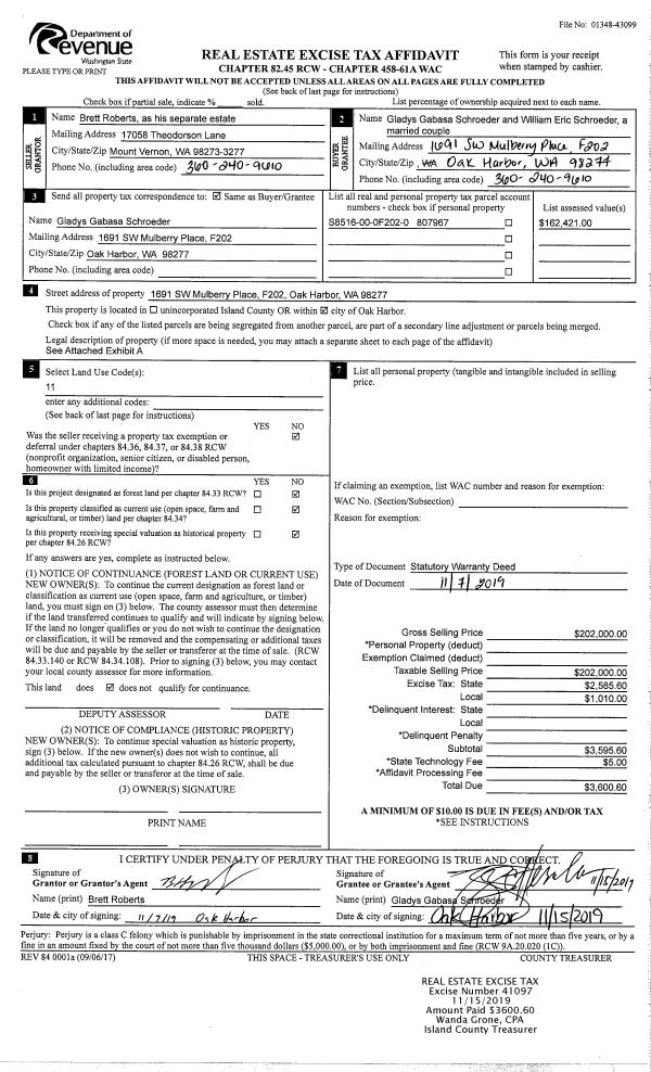
Property
Account |
| Property ID: | 429496 | Abbreviated Legal Description: | WHID SH LOTS 65 & 66 |
| Geographic ID: | S8425-00-00065-0 | Agent Code: | |
| Type: | Real | | |
| Tax Area: | 710 - APPRAISER-S Whid Schl Dist, outside Langley, improved & 1 acre or less | Land Use Code | 11 |
| Open Space: | N | DFL | N |
| Historic Property: | N | Remodel Property: | N |
| Multi-Family Redevelopment: | N | | |
| Township: | | Section: | |
| Range: | |
Location |
| Address: | 2249 WHIDBEY SHORES RD LANGLEY, WA 98260 | Mapsco: | |
| Neighborhood: | Cycle 3 | Map ID: | 372 |
| Neighborhood CD: | 3 |
Owner |
| Name: | CORETTI, STEPHEN P | Owner ID: | 275337 |
| Mailing Address: | NANCY G JELINEK 2249 WHIDBEY SHORES RD LANGLEY, WA 98260 | % Ownership: | 100.0000000000% |
| | | Exemptions: | |
Taxes and Assessment Details
Values
| (+) Improvement Homesite Value: | + | $0 | |
| (+) Improvement Non-Homesite Value: | + | $518,442 | |
| (+) Land Homesite Value: | + | $0 | |
| (+) Land Non-Homesite Value: | + | $310,000 | |
| (+) Curr Use (HS): | + | $0 | $0 |
| (+) Curr Use (NHS): | + | $0 | $0 |
| | | -------------------------- | |
| (=) Market Value: | = | $828,442 | |
| (–) Productivity Loss: | – | $0 | |
| | | -------------------------- | |
| (=) Subtotal: | = | $828,442 | |
| (+) Senior Appraised Value: | + | $0 | |
| (+) Non-Senior Appraised Value: | + | $828,442 | |
| | | -------------------------- | |
| (=) Total Appraised Value: | = | $828,442 | |
| (–) Senior Exemption Loss: | – | $0 | |
| (–) Exemption Loss: | – | $0 | |
| | | -------------------------- | |
| (=) Taxable Value: | = | $828,442 | |
Taxing Jurisdiction
| Owner: | CORETTI, STEPHEN P | | |
| % Ownership: | 100.0000000000% | | |
| Total Value: | $828,442 | | |
| Tax Area: | 710 - APPRAISER-S Whid Schl Dist, outside Langley, improved & 1 acre or less |
| CF | Conservation Futures | 0.0316035091 | $828,442 | $828,442 | $26.18 | | |
| FIRE3 | Fire & Rescue Dist #3 S Whidbey GEN | 1.2004855531 | $828,442 | $828,442 | $994.53 | | |
| HOBOND | Hospital BOND | 0.1910887512 | $828,442 | $828,442 | $158.31 | | |
| HOGEN | Hospital GEN | 0.3902502903 | $828,442 | $828,442 | $323.30 | | |
| CE | County Current Expense | 0.3708482477 | $828,442 | $828,442 | $307.23 | | |
| CR | County Roads | 0.4584763726 | $828,442 | $828,442 | $379.82 | | |
| ISLANDEMS | Hospital GEN (EMS) | 0.5000000000 | $828,442 | $828,442 | $414.22 | | |
| LIB | Library Sno-Isle GEN | 0.3153421757 | $828,442 | $828,442 | $261.24 | | |
| PORTWHID | Port of S Whidbey GEN | 0.1094540357 | $828,442 | $828,442 | $90.68 | | |
| SCH206BOND | School 206 BOND | 0.3161759235 | $828,442 | $828,442 | $261.93 | | |
| SCH206MO | School 206 Enrichment | 0.4547169547 | $828,442 | $828,442 | $376.71 | | |
| ST | State School | 1.3035497053 | $828,442 | $828,442 | $1,079.92 | | |
| ST2 | State School Part 2 | 0.8169543533 | $828,442 | $828,442 | $676.80 | | |
| SWHIDPRBD | P & R S Whidbey BOND | 0.0152817568 | $828,442 | $828,442 | $12.66 | | |
| SWHIDPRBD2 | P & R S Whidbey BOND2 | 0.0138911264 | $828,442 | $828,442 | $11.51 | | |
| SWHIDPRMT | P & R S Whidbey GEN | 0.2053334452 | $828,442 | $828,442 | $170.11 | | |
| | Total Tax Rate: | 6.6934522006 | | | | | |
| | | | | Taxes w/Current Exemptions: | $5,545.15 | | |
| | | | | Taxes w/o Exemptions: | $5,545.15 | | |
Improvement / Building
| Improvement #1: | RESIDENTIAL | State Code: | A1 | 2352.0 sqft | Value: | $518,442 |
| Bathrooms: | 2.75 | Bedrooms: | 2 | | Ceiling: | DRYWALL PAINTED | Cooling: | HEAT PUMP/CONV/V | | Exterior Wall/Cover: | SHINGLE | Floor Covering: | HARDWOOD 100% | | Floor Structure: | WOOD W/SUBFLOOR | Foundation: | CONCRETE | | Interior Finish: | DRYWALL PAINT | Plumbing Fixture Cnt: | 12 | | Roof Slope: | 10" IN 12" | Roof Structure/Cover: | CJ ASPHALT |
|
| | Type | Description | Class CD | Sub Class CD | Year Built | Area |
| | BAS | BASE/MAIN FLOOR | 4 | 0 | 2011 | 1200.0 |
| | UPS | UPPER STORY | 4 | 0 | 2011 | 1152.0 |
| | OWP | OPEN WOOD PORCH W/STEPS | 4 | 0 | 2011 | 612.3 |
| | OWP | OPEN WOOD PORCH W/STEPS | 4 | 0 | 2011 | 144.0 |
| | OP1 | OPEN PORCH SLAB | 4 | 0 | 2011 | 181.0 |
| | DGR | DETACHED GARAGE | 4 | 0 | 2011 | 936.0 |
Sketch
Property Image
Land
| 1 | 15 | SQ (12001-21780) | 0.1300 | 5662.80 | 0.00 | 0.00 | 1.00 | $310,000 | $0 |
Roll Value History
| 2026 | N/A | N/A | N/A | N/A | N/A |
| 2025 | $518,442 | $310,000 | $0 | $828,442 | $828,442 |
| 2024 | $524,316 | $310,000 | $0 | $834,316 | $834,316 |
| 2023 | $528,721 | $310,000 | $0 | $838,721 | $838,721 |
| 2022 | $483,015 | $350,000 | $0 | $833,015 | $833,015 |
| 2021 | $423,255 | $300,000 | $0 | $723,255 | $723,255 |
| 2020 | $411,413 | $200,000 | $0 | $611,413 | $611,413 |
| 2019 | $304,157 | $250,000 | $0 | $554,157 | $554,157 |
| 2018 | $273,519 | $250,000 | $0 | $523,519 | $523,519 |
| 2017 | $262,172 | $150,000 | $0 | $412,172 | $412,172 |
| 2016 | $234,031 | $150,000 | $0 | $384,031 | $384,031 |
| 2015 | $236,519 | $85,000 | $0 | $321,519 | $321,519 |
| 2014 | $239,010 | $85,000 | $0 | $324,010 | $324,010 |
| 2013 | $234,824 | $85,000 | $0 | $319,824 | $319,824 |
| 2012 | $237,245 | $91,800 | $0 | $329,045 | $329,045 |
| 2011 | $107,543 | $108,000 | $0 | $215,543 | $215,543 |
| 2010 | $4,000 | $70,000 | $0 | $74,000 | $74,000 |
| 2009 | $4,000 | $90,000 | $0 | $94,000 | $94,000 |
| 2008 | $4,000 | $90,000 | $0 | $94,000 | $94,000 |
| 2007 | $4,000 | $90,000 | $0 | $94,000 | $94,000 |
Deed and Sales History
| 1 | 05/22/2016 | WD | Warranty Deed | PIRZADA, VAQAR | CORETTI, STEPHEN P | | | $525,000.00 | 24431 | 4399871 |
| 2 | 04/18/2010 | WD | Warranty Deed | BOND, VINCENT E | PIRZADA, VAQAR | | | $78,471.00 | 926 | 4272526 |
| 3 | 12/14/2001 | WD | Warranty Deed | STIEBEN, L T | BOND, VINCENT E | | | $71,000.00 | 14765 | 4006023 |
| 4 | 12/14/2001 | ESTSEPPROP | Establish Separate Property | STIEBEN, L T | STIEBEN, L T | | | $0.00 | 14764 | 4006022 |
| 5 | 07/01/1995 | WD | Warranty Deed | BEARDEMPHL, LYLE H | STIEBEN, L T | | | $64,500.00 | 52421 | 95011196 |
| 6 | 07/01/1994 | WD | Warranty Deed | BOHLIN, BARBARA L | BEARDEMPHL, LYLE H | | | $40,000.00 | 42926 | 94015976 |
| 7 | 11/01/1978 | OTHER | Other - Misc. Documents | Unknown | BOHLIN, BARBARA L | | | $11,000.00 | 85364 | 342227 |
Payout Agreement
| No payout information available.. |