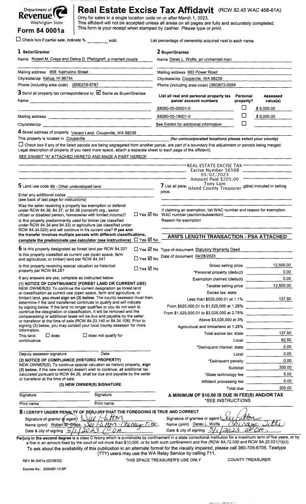
Property
Account |
| Property ID: | 429806 | Abbreviated Legal Description: | WHID SH LOT 96 |
| Geographic ID: | S8425-00-00096-0 | Agent Code: | |
| Type: | Real | | |
| Tax Area: | 710 - APPRAISER-S Whid Schl Dist, outside Langley, improved & 1 acre or less | Land Use Code | 11 |
| Open Space: | N | DFL | N |
| Historic Property: | N | Remodel Property: | N |
| Multi-Family Redevelopment: | N | | |
| Township: | | Section: | |
| Range: | |
Location |
| Address: | 2139 EASTPOINT DR LANGLEY, WA 98260 | Mapsco: | |
| Neighborhood: | Cycle 3 | Map ID: | 371 |
| Neighborhood CD: | 3 |
Owner |
| Name: | TRYON, MARK | Owner ID: | 307727 |
| Mailing Address: | JOOYOUNG KIM 1672 HIGHLAND DR LAKE OSWEGO, OR 97034 | % Ownership: | 100.0000000000% |
| | | Exemptions: | |
Taxes and Assessment Details
Values
| (+) Improvement Homesite Value: | + | $0 | |
| (+) Improvement Non-Homesite Value: | + | $182,140 | |
| (+) Land Homesite Value: | + | $0 | |
| (+) Land Non-Homesite Value: | + | $650,000 | |
| (+) Curr Use (HS): | + | $0 | $0 |
| (+) Curr Use (NHS): | + | $0 | $0 |
| | | -------------------------- | |
| (=) Market Value: | = | $832,140 | |
| (–) Productivity Loss: | – | $0 | |
| | | -------------------------- | |
| (=) Subtotal: | = | $832,140 | |
| (+) Senior Appraised Value: | + | $0 | |
| (+) Non-Senior Appraised Value: | + | $832,140 | |
| | | -------------------------- | |
| (=) Total Appraised Value: | = | $832,140 | |
| (–) Senior Exemption Loss: | – | $0 | |
| (–) Exemption Loss: | – | $0 | |
| | | -------------------------- | |
| (=) Taxable Value: | = | $832,140 | |
Taxing Jurisdiction
| Owner: | TRYON, MARK | | |
| % Ownership: | 100.0000000000% | | |
| Total Value: | $832,140 | | |
| Tax Area: | 710 - APPRAISER-S Whid Schl Dist, outside Langley, improved & 1 acre or less |
| CF | Conservation Futures | 0.0316035091 | $832,140 | $832,140 | $26.30 | | |
| FIRE3 | Fire & Rescue Dist #3 S Whidbey GEN | 1.2004855531 | $832,140 | $832,140 | $998.97 | | |
| HOBOND | Hospital BOND | 0.1910887512 | $832,140 | $832,140 | $159.01 | | |
| HOGEN | Hospital GEN | 0.3902502903 | $832,140 | $832,140 | $324.74 | | |
| CE | County Current Expense | 0.3708482477 | $832,140 | $832,140 | $308.60 | | |
| CR | County Roads | 0.4584763726 | $832,140 | $832,140 | $381.52 | | |
| ISLANDEMS | Hospital GEN (EMS) | 0.5000000000 | $832,140 | $832,140 | $416.07 | | |
| LIB | Library Sno-Isle GEN | 0.3153421757 | $832,140 | $832,140 | $262.41 | | |
| PORTWHID | Port of S Whidbey GEN | 0.1094540357 | $832,140 | $832,140 | $91.08 | | |
| SCH206BOND | School 206 BOND | 0.3161759235 | $832,140 | $832,140 | $263.10 | | |
| SCH206MO | School 206 Enrichment | 0.4547169547 | $832,140 | $832,140 | $378.39 | | |
| ST | State School | 1.3035497053 | $832,140 | $832,140 | $1,084.74 | | |
| ST2 | State School Part 2 | 0.8169543533 | $832,140 | $832,140 | $679.82 | | |
| SWHIDPRBD | P & R S Whidbey BOND | 0.0152817568 | $832,140 | $832,140 | $12.72 | | |
| SWHIDPRBD2 | P & R S Whidbey BOND2 | 0.0138911264 | $832,140 | $832,140 | $11.56 | | |
| SWHIDPRMT | P & R S Whidbey GEN | 0.2053334452 | $832,140 | $832,140 | $170.87 | | |
| | Total Tax Rate: | 6.6934522006 | | | | | |
| | | | | Taxes w/Current Exemptions: | $5,569.90 | | |
| | | | | Taxes w/o Exemptions: | $5,569.90 | | |
Improvement / Building
| Improvement #1: | RESIDENTIAL | State Code: | Y | 1113.8 sqft | Value: | $182,140 |
| Bathrooms: | 1 | Bedrooms: | 2 | | Ceiling: | TONGUE & GROOVE | Cooling: | HEAT PUMP/CONV/V | | Exterior Wall/Cover: | WOOD SIDING | Floor Covering: | CARPET/VINYL 80-20 | | Floor Structure: | WOOD W/SUBFLOOR | Foundation: | CONCRETE | | Interior Finish: | DRYWALL PAINT | Plumbing Fixture Cnt: | 6 | | Roof Slope: | 6" IN 12" | Roof Structure/Cover: | BEAM ASPHALT |
|
| | Type | Description | Class CD | Sub Class CD | Year Built | Area |
| | BAS | BASE/MAIN FLOOR | 3 | 0 | 1973 | 660.0 |
| | OWP | OPEN WOOD PORCH W/STEPS | 3 | 0 | 1973 | 1097.0 |
| | LOF | LOFT | 3 | 0 | 1973 | 453.8 |
Sketch
Property Image
Land
| 1 | LB | LOW BANK | 0.0000 | 0.00 | 50.00 | 0.00 | 1.00 | $650,000 | $0 |
Roll Value History
| 2026 | N/A | N/A | N/A | N/A | N/A |
| 2025 | $182,140 | $650,000 | $0 | $832,140 | $832,140 |
| 2024 | $184,329 | $650,000 | $0 | $834,329 | $834,329 |
| 2023 | $186,516 | $650,000 | $0 | $836,516 | $836,516 |
| 2022 | $112,556 | $650,000 | $0 | $762,556 | $762,556 |
| 2021 | $99,524 | $500,000 | $0 | $599,524 | $599,524 |
| 2020 | $97,533 | $500,000 | $0 | $597,533 | $597,533 |
| 2019 | $70,198 | $475,000 | $0 | $545,198 | $545,198 |
| 2018 | $70,481 | $375,000 | $0 | $445,481 | $445,481 |
| 2017 | $66,377 | $350,000 | $0 | $416,377 | $416,377 |
| 2016 | $67,430 | $350,000 | $0 | $417,430 | $417,430 |
| 2015 | $68,484 | $350,000 | $0 | $418,484 | $418,484 |
| 2014 | $69,538 | $350,000 | $0 | $419,538 | $419,538 |
| 2013 | $70,824 | $315,090 | $0 | $385,914 | $385,914 |
| 2012 | $71,878 | $315,090 | $0 | $386,968 | $386,968 |
| 2011 | $72,931 | $315,090 | $0 | $388,021 | $388,021 |
| 2010 | $82,837 | $350,097 | $0 | $432,934 | $432,934 |
| 2009 | $86,589 | $429,665 | $0 | $516,254 | $516,254 |
| 2008 | $87,857 | $509,232 | $0 | $597,089 | $597,089 |
| 2007 | $89,058 | $359,645 | $0 | $448,703 | $448,703 |
Deed and Sales History
| 1 | 02/21/2023 | WD | Warranty Deed | CENNAME, MICHAEL | TRYON, MARK | | | $862,500.00 | 55921 | 4557029 |
| 2 | 07/05/2013 | WD | Warranty Deed | THORN, TERRY | CENNAME, MICHAEL | | | $425,000.00 | 11925 | 4343487 |
| 3 | 12/06/2001 | WD | Warranty Deed | NAUGHTON, MICHAEL/MARLENE | THORN, TERRY | | | $233,000.00 | 14793 | 4006280 |
| 4 | 11/01/1995 | WD | Warranty Deed | DONALDSON, MELVIN W | NAUGHTON, MICHAEL/MARLENE | | | $205,000.00 | 54125 | 95018998 |
| 5 | 05/01/1988 | WD | Warranty Deed | WERSTIUK, IVAN G | DONALDSON, MELVIN W | | | $125,000.00 | 81630 | 88006142 |
| 6 | 07/01/1978 | OTHER | Other - Misc. Documents | Unknown | WERSTIUK, IVAN G | | | $52,000.00 | 83579 | 337016 |
Payout Agreement
| No payout information available.. |