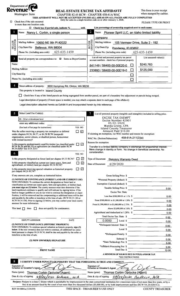
Property
Account |
| Property ID: | 429824 | Abbreviated Legal Description: | WHID SH LOT 98 |
| Geographic ID: | S8425-00-00098-0 | Agent Code: | |
| Type: | Real | | |
| Tax Area: | 710 - APPRAISER-S Whid Schl Dist, outside Langley, improved & 1 acre or less | Land Use Code | 11 |
| Open Space: | N | DFL | N |
| Historic Property: | N | Remodel Property: | N |
| Multi-Family Redevelopment: | N | | |
| Township: | | Section: | |
| Range: | |
Location |
| Address: | 2133 EASTPOINT DR LANGLEY, WA 98260 | Mapsco: | |
| Neighborhood: | Cycle 3 | Map ID: | 371 |
| Neighborhood CD: | 3 |
Owner |
| Name: | DOLGOFF, BRIAN | Owner ID: | 276558 |
| Mailing Address: | 12621 197TH PLACE NE WOODINVILLE, WA 98077 | % Ownership: | 100.0000000000% |
| | | Exemptions: | |
Taxes and Assessment Details
Values
| (+) Improvement Homesite Value: | + | $0 | |
| (+) Improvement Non-Homesite Value: | + | $231,044 | |
| (+) Land Homesite Value: | + | $0 | |
| (+) Land Non-Homesite Value: | + | $650,000 | |
| (+) Curr Use (HS): | + | $0 | $0 |
| (+) Curr Use (NHS): | + | $0 | $0 |
| | | -------------------------- | |
| (=) Market Value: | = | $881,044 | |
| (–) Productivity Loss: | – | $0 | |
| | | -------------------------- | |
| (=) Subtotal: | = | $881,044 | |
| (+) Senior Appraised Value: | + | $0 | |
| (+) Non-Senior Appraised Value: | + | $881,044 | |
| | | -------------------------- | |
| (=) Total Appraised Value: | = | $881,044 | |
| (–) Senior Exemption Loss: | – | $0 | |
| (–) Exemption Loss: | – | $0 | |
| | | -------------------------- | |
| (=) Taxable Value: | = | $881,044 | |
Taxing Jurisdiction
| Owner: | DOLGOFF, BRIAN | | |
| % Ownership: | 100.0000000000% | | |
| Total Value: | $881,044 | | |
| Tax Area: | 710 - APPRAISER-S Whid Schl Dist, outside Langley, improved & 1 acre or less |
| CF | Conservation Futures | 0.0316035091 | $881,044 | $881,044 | $27.84 | | |
| FIRE3 | Fire & Rescue Dist #3 S Whidbey GEN | 1.2004855531 | $881,044 | $881,044 | $1,057.68 | | |
| HOBOND | Hospital BOND | 0.1910887512 | $881,044 | $881,044 | $168.36 | | |
| HOGEN | Hospital GEN | 0.3902502903 | $881,044 | $881,044 | $343.83 | | |
| CE | County Current Expense | 0.3708482477 | $881,044 | $881,044 | $326.73 | | |
| CR | County Roads | 0.4584763726 | $881,044 | $881,044 | $403.94 | | |
| ISLANDEMS | Hospital GEN (EMS) | 0.5000000000 | $881,044 | $881,044 | $440.52 | | |
| LIB | Library Sno-Isle GEN | 0.3153421757 | $881,044 | $881,044 | $277.83 | | |
| PORTWHID | Port of S Whidbey GEN | 0.1094540357 | $881,044 | $881,044 | $96.43 | | |
| SCH206BOND | School 206 BOND | 0.3161759235 | $881,044 | $881,044 | $278.56 | | |
| SCH206MO | School 206 Enrichment | 0.4547169547 | $881,044 | $881,044 | $400.63 | | |
| ST | State School | 1.3035497053 | $881,044 | $881,044 | $1,148.48 | | |
| ST2 | State School Part 2 | 0.8169543533 | $881,044 | $881,044 | $719.77 | | |
| SWHIDPRBD | P & R S Whidbey BOND | 0.0152817568 | $881,044 | $881,044 | $13.46 | | |
| SWHIDPRBD2 | P & R S Whidbey BOND2 | 0.0138911264 | $881,044 | $881,044 | $12.24 | | |
| SWHIDPRMT | P & R S Whidbey GEN | 0.2053334452 | $881,044 | $881,044 | $180.91 | | |
| | Total Tax Rate: | 6.6934522006 | | | | | |
| | | | | Taxes w/Current Exemptions: | $5,897.21 | | |
| | | | | Taxes w/o Exemptions: | $5,897.21 | | |
Improvement / Building
| Improvement #1: | RESIDENTIAL | State Code: | Y | 1712.0 sqft | Value: | $231,044 |
| Bathrooms: | 2 | Bedrooms: | 2 | | Ceiling: | DRY WALL SPRAYED | Exterior Wall/Cover: | PLY/HARDBOARD T-111 | | Floor Covering: | CARPET/VINYL 80-20 | Floor Structure: | WOOD W/SUBFLOOR | | Foundation: | CONCRETE | Heating: | BASEBOARD ELECTRIC | | Interior Finish: | DRYWALL PAINT | Plumbing Fixture Cnt: | 9 | | Roof Slope: | 6" IN 12" | Roof Structure/Cover: | BEAM ASPHALT |
|
| | Type | Description | Class CD | Sub Class CD | Year Built | Area |
| | BAS | BASE/MAIN FLOOR | 3 | 0 | 1976 | 972.0 |
| | UPS | UPPER STORY | 3 | 0 | 1976 | 740.0 |
| | BAW | BALCONY WOOD RAIL | 3 | 0 | 1976 | 64.0 |
| | OWP | OPEN WOOD PORCH W/STEPS | 3 | 0 | 1976 | 968.0 |
Sketch
Property Image
Land
| 1 | LB | LOW BANK | 0.0000 | 0.00 | 50.00 | 0.00 | 1.00 | $650,000 | $0 |
Roll Value History
| 2026 | N/A | N/A | N/A | N/A | N/A |
| 2025 | $231,044 | $650,000 | $0 | $881,044 | $881,044 |
| 2024 | $239,091 | $650,000 | $0 | $889,091 | $889,091 |
| 2023 | $242,226 | $650,000 | $0 | $892,226 | $892,226 |
| 2022 | $222,185 | $650,000 | $0 | $872,185 | $872,185 |
| 2021 | $195,667 | $500,000 | $0 | $695,667 | $695,667 |
| 2020 | $190,940 | $500,000 | $0 | $690,940 | $690,940 |
| 2019 | $110,287 | $475,000 | $0 | $585,287 | $585,287 |
| 2018 | $110,717 | $375,000 | $0 | $485,717 | $485,717 |
| 2017 | $111,161 | $350,000 | $0 | $461,161 | $461,161 |
| 2016 | $112,871 | $350,000 | $0 | $462,871 | $462,871 |
| 2015 | $114,582 | $350,000 | $0 | $464,582 | $464,582 |
| 2014 | $116,292 | $350,000 | $0 | $466,292 | $466,292 |
| 2013 | $118,002 | $315,090 | $0 | $433,092 | $433,092 |
| 2012 | $119,712 | $315,090 | $0 | $434,802 | $434,802 |
| 2011 | $121,423 | $315,090 | $0 | $436,513 | $436,513 |
| 2010 | $131,062 | $350,097 | $0 | $481,159 | $481,159 |
| 2009 | $136,726 | $429,665 | $0 | $566,391 | $566,391 |
| 2008 | $138,453 | $509,232 | $0 | $647,685 | $647,685 |
| 2007 | $138,453 | $359,645 | $0 | $498,098 | $498,098 |
Deed and Sales History
| 1 | 08/18/2016 | QCD | Quit Claim Deed | DOLGOFF, LARRY & FRANCES | DOLGOFF, BRIAN | | | $0.00 | 25842 | 4405976 |
| 2 | 06/01/1978 | OTHER | Other - Misc. Documents | Unknown | DOLGOFF, LARRY & | | | $58,500.00 | 82976 | 335092 |
Payout Agreement
| No payout information available.. |