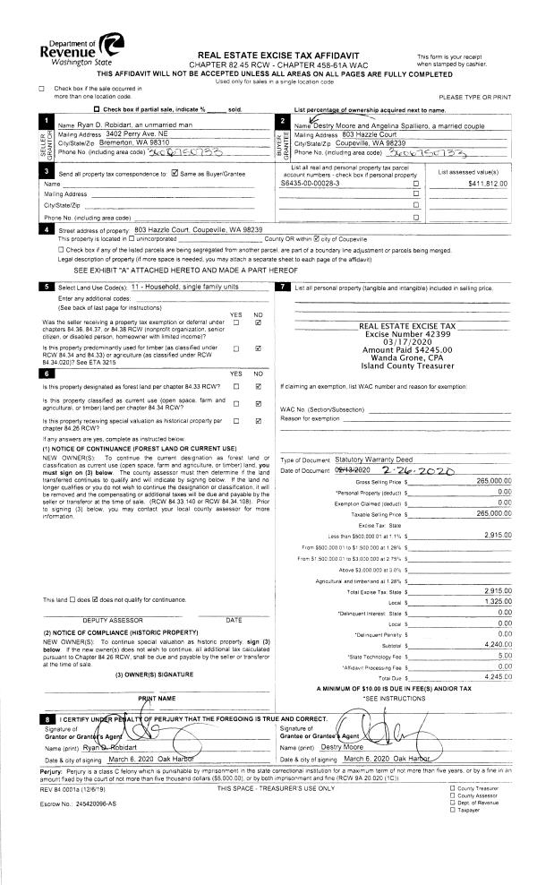
Property
Account |
| Property ID: | 430073 | Abbreviated Legal Description: | WHID SH LOTS 126 & 127 COMB 7/88 |
| Geographic ID: | S8425-00-00126-0 | Agent Code: | |
| Type: | Real | | |
| Tax Area: | 710 - APPRAISER-S Whid Schl Dist, outside Langley, improved & 1 acre or less | Land Use Code | 11 |
| Open Space: | N | DFL | N |
| Historic Property: | N | Remodel Property: | N |
| Multi-Family Redevelopment: | N | | |
| Township: | | Section: | |
| Range: | |
Location |
| Address: | 2039 EASTPOINT DR LANGLEY, WA 98260 | Mapsco: | |
| Neighborhood: | Cycle 3 | Map ID: | 371 |
| Neighborhood CD: | 3 |
Owner |
| Name: | AIKEN, MARY M | Owner ID: | 193398 |
| Mailing Address: | 2039 EAST POINT DR LANGLEY, WA 98260 | % Ownership: | 100.0000000000% |
| | | Exemptions: | |
Taxes and Assessment Details
Values
| (+) Improvement Homesite Value: | + | $0 | |
| (+) Improvement Non-Homesite Value: | + | $335,527 | |
| (+) Land Homesite Value: | + | $0 | |
| (+) Land Non-Homesite Value: | + | $675,000 | |
| (+) Curr Use (HS): | + | $0 | $0 |
| (+) Curr Use (NHS): | + | $0 | $0 |
| | | -------------------------- | |
| (=) Market Value: | = | $1,010,527 | |
| (–) Productivity Loss: | – | $0 | |
| | | -------------------------- | |
| (=) Subtotal: | = | $1,010,527 | |
| (+) Senior Appraised Value: | + | $0 | |
| (+) Non-Senior Appraised Value: | + | $1,010,527 | |
| | | -------------------------- | |
| (=) Total Appraised Value: | = | $1,010,527 | |
| (–) Senior Exemption Loss: | – | $0 | |
| (–) Exemption Loss: | – | $0 | |
| | | -------------------------- | |
| (=) Taxable Value: | = | $1,010,527 | |
Taxing Jurisdiction
| Owner: | AIKEN, MARY M | | |
| % Ownership: | 100.0000000000% | | |
| Total Value: | $1,010,527 | | |
| Tax Area: | 710 - APPRAISER-S Whid Schl Dist, outside Langley, improved & 1 acre or less |
| CF | Conservation Futures | 0.0316035091 | $1,010,527 | $1,010,527 | $31.94 | | |
| FIRE3 | Fire & Rescue Dist #3 S Whidbey GEN | 1.2004855531 | $1,010,527 | $1,010,527 | $1,213.12 | | |
| HOBOND | Hospital BOND | 0.1910887512 | $1,010,527 | $1,010,527 | $193.10 | | |
| HOGEN | Hospital GEN | 0.3902502903 | $1,010,527 | $1,010,527 | $394.36 | | |
| CE | County Current Expense | 0.3708482477 | $1,010,527 | $1,010,527 | $374.75 | | |
| CR | County Roads | 0.4584763726 | $1,010,527 | $1,010,527 | $463.30 | | |
| ISLANDEMS | Hospital GEN (EMS) | 0.5000000000 | $1,010,527 | $1,010,527 | $505.26 | | |
| LIB | Library Sno-Isle GEN | 0.3153421757 | $1,010,527 | $1,010,527 | $318.66 | | |
| PORTWHID | Port of S Whidbey GEN | 0.1094540357 | $1,010,527 | $1,010,527 | $110.61 | | |
| SCH206BOND | School 206 BOND | 0.3161759235 | $1,010,527 | $1,010,527 | $319.50 | | |
| SCH206MO | School 206 Enrichment | 0.4547169547 | $1,010,527 | $1,010,527 | $459.50 | | |
| ST | State School | 1.3035497053 | $1,010,527 | $1,010,527 | $1,317.27 | | |
| ST2 | State School Part 2 | 0.8169543533 | $1,010,527 | $1,010,527 | $825.55 | | |
| SWHIDPRBD | P & R S Whidbey BOND | 0.0152817568 | $1,010,527 | $1,010,527 | $15.44 | | |
| SWHIDPRBD2 | P & R S Whidbey BOND2 | 0.0138911264 | $1,010,527 | $1,010,527 | $14.04 | | |
| SWHIDPRMT | P & R S Whidbey GEN | 0.2053334452 | $1,010,527 | $1,010,527 | $207.49 | | |
| | Total Tax Rate: | 6.6934522006 | | | | | |
| | | | | Taxes w/Current Exemptions: | $6,763.89 | | |
| | | | | Taxes w/o Exemptions: | $6,763.89 | | |
Improvement / Building
| Improvement #1: | RESIDENTIAL | State Code: | Y | 2520.0 sqft | Value: | $335,527 |
| Bathrooms: | 2 | Bedrooms: | 2 | | Ceiling: | DRYWALL PAINTED | Exterior Wall/Cover: | WOOD SIDING | | Floor Covering: | COLORED CONCRETE | Floor Structure: | WOOD W/SUBFLOOR | | Foundation: | CONCRETE | Heating: | RADIANT FLOOR | | Interior Finish: | DRYWALL PAINT | Plumbing Fixture Cnt: | 9 | | Roof Slope: | 6" IN 12" | Roof Structure/Cover: | CJ ALUMINIUM HEAVY |
|
| | Type | Description | Class CD | Sub Class CD | Year Built | Area |
| | BAS | BASE/MAIN FLOOR | 3 | 0 | 2005 | 1260.0 |
| | OP1 | OPEN PORCH SLAB | 3 | 0 | 2005 | 792.0 |
| | OP1 | OPEN PORCH SLAB | 3 | 0 | 2005 | 84.0 |
| | UTY | STORAGE/UTILITY | 3 | 0 | 2005 | 168.0 |
| | UPS | UPPER STORY | 3 | 0 | 2005 | 1260.0 |
Sketch
Property Image
Land
| 1 | LB | LOW BANK | 0.0000 | 0.00 | 100.00 | 0.00 | 1.00 | $675,000 | $0 |
Roll Value History
| 2026 | N/A | N/A | N/A | N/A | N/A |
| 2025 | $335,527 | $675,000 | $0 | $1,010,527 | $1,010,527 |
| 2024 | $339,559 | $675,000 | $0 | $1,014,559 | $1,014,559 |
| 2023 | $343,587 | $675,000 | $0 | $1,018,587 | $1,018,587 |
| 2022 | $314,781 | $675,000 | $0 | $989,781 | $989,781 |
| 2021 | $276,886 | $525,000 | $0 | $801,886 | $801,886 |
| 2020 | $270,508 | $525,000 | $0 | $795,508 | $795,508 |
| 2019 | $205,159 | $500,000 | $0 | $705,159 | $705,159 |
| 2018 | $205,753 | $375,000 | $0 | $580,753 | $580,753 |
| 2017 | $206,943 | $350,000 | $0 | $556,943 | $556,943 |
| 2016 | $209,321 | $350,000 | $0 | $559,321 | $559,321 |
| 2015 | $211,700 | $350,000 | $0 | $561,700 | $561,700 |
| 2014 | $214,079 | $350,000 | $0 | $564,079 | $564,079 |
| 2013 | $211,881 | $185,400 | $0 | $397,281 | $397,281 |
| 2012 | $214,209 | $185,400 | $0 | $399,609 | $399,609 |
| 2011 | $216,537 | $185,400 | $0 | $401,937 | $401,937 |
| 2010 | $229,338 | $206,000 | $0 | $435,338 | $435,338 |
| 2009 | $236,517 | $206,000 | $0 | $442,517 | $442,517 |
| 2008 | $239,158 | $206,000 | $0 | $445,158 | $445,158 |
| 2007 | $238,105 | $642,473 | $0 | $880,578 | $880,578 |
Deed and Sales History
| 1 | 09/24/2004 | WD | Warranty Deed | BECKES, ROBERT & | AIKEN, MARY M | | | $259,000.00 | 44581 | 4114223 |
| 2 | 01/01/1993 | WD | Warranty Deed | SPARLING, THOMAS E | BECKES, ROBERT & | | | $195,000.00 | 30368 | 93001896 |
| 3 | 07/01/1988 | OTHER | Other - Misc. Documents | SPARLING, THOMAS E | SPARLING, THOMAS E | | | $0.00 | 62722 | 88008395 |
| 4 | 01/01/1900 | OTHER | Other - Misc. Documents | Unknown | SPARLING, THOMAS E | | | $0.00 | 0 | 0 |
Payout Agreement
| No payout information available.. |